Ich glaube ich dreh durch....

CHS411

Mitglied
Beiträge
20
Wohnort
Bayern
Hallo allerseits,

nachdem ich Jahre lang sicher war, dass der Küchenkauf - so er denn mal fällig ist - ein Leichtes wird, steh ich nun vor der großen Aufgabe, meine erste eigene Küche auszusuchen....und plötzlich ist alles anders :-[

Ich tüftel schon ewig an einem Grundriss und mal sind die Wege zu lang ("Mensch, da muss ich ja ständig um die Insel rennen"), dann passt wieder die Ausrichtung der Insel nicht ("da sitz ich ja dann mit dem Rücken zum Wohnzimmer...") und beim nächsten mal werden wiederum die Durchgänge zu schmal.

Nun versuche ich also seit einigen Tagen eine sinnvolle Planung im Alno -Planer zu entwerfen und muss gestehen, dass dies nur von mäßigem Erfolg gekrönt ist :-[ Ich hoffe, dass ich hier also so einige Tipps bekomme - insbesondere, da ich mich mit dem Alno-Planer momentan noch arg anstelle.

Meine Must-haves:


  • Halbinsel mit Sitzgelegenheit (gerne als Kochinsel, jedoch kein muss)
  • Besenschrank
  • Biomüll unter der APL
  • 1 Hochschrank mit Innenauszügen oder Tandem
  • Oberschränke mit Lifttüren (daher nicht so hoch)


Angehängt (ich hoffe im richtigen Format) habe ich nun mal zwei stümperhafte Versuche - einmal mit Insel Planlinks und einmal Planrechts - glücklich bin ich bisher mit keiner.... :-\:stocksauer:

Ach ja, Stil klassisch bis Landhaus



Checkliste zur Küchenplanung von CHS411

Anzahl Personen im Haushalt : 2
Davon Kinder? : 1
Körpergrössen aller Hauptbenutzer (wegen Arbeitshöhe ) in cm : 165
Art des Gebäudes? : Bestandsbau, (kleinere) Umbauten möglich
Brüstungshöhe des Fensters (in cm) : 90
Fensterhöhe (in cm) :
Raumhöhe in cm: : 250
Heizung : Heizkörper wie im Grundriss
Sanitäranschlüsse : vollkommen variabel
Ausführung Kühlgerät? : Stand-Alone bis 75 cm Breite
Kühlgerät Größe : bis 175 cm Höhe
Ausführung Tiefkühl (TK)-Gerät : Im Kühlschrank ab 3 Schubladen unten
Dunstabzugshaube? : Abluft
Hochgebauter Backofen ? : Ja
Hochgebauter Geschirrspüler ? : nein
Kochfeldart? : Ceran (herkömmlich)
Kochfeldbreite ca. (in cm)? : 90
Spülenform: : 1,5 Becken mit Abtropffläche
Weitere geplante Heißgeräte :
Küchenstil? : modern
Sitzmöglichkeit in der Küche / im Küchenbereich als : Überstehende Arbeitsplatte
Sitzmöglichkeit: Für wieviel Personen? : für 3 Personen
Sitzmöglichkeit: Tisch - wenn gesonderter Tisch oder offene Küche : Keine
Gewünschte o. vorhandene Tischgröße : keine
Wofür soll der Sitzplatz in der Küche genutzt werden? Wie häufig? : Täglich. Frühstück und Schnippelarbeit.
Welche Arbeitshöhe ist angedacht (in cm)? :
Was steht auf der Arbeitsplatte oder soll dort stehen? : Kaffeevollautomat, Wasserkocher, Toaster
Welche weiteren Küchenmaschinen müssen in der Küche untergebracht werden? : Küchenmaschine
Was soll in der Küche außer den Standards untergebracht werden? : Staubsauger/Wischer etc.
Welchen Stauraum gibt es sonst noch? : Keller
Was/wie wird gekocht? (Alltagsküche, Menüs, Snacks usw) : Alltagsküche, Menüs, viel Backen (Kuchen, Torten, Kekse).
Wie häufig wird gekocht? : (fast) täglich 1x warm
Wird alleine gekocht? Oder auch gemeinsam? Mit und für Gäste? : Oft mit Kind oder für und mit Gästen
Was stört an der bisherigen Küche und was soll die neue Küche unbedingt können? Warum? : Alte Küche ist viel zu klein, zu wenig Stauraum, kaum Arbeitsfläche.
Steht schon ein Küchenhersteller fest oder wird bevorzugt? :
Steht schon ein Gerätehersteller fest oder wird bevorzugt? : Neff
Preisvorstellung (Budget) : bis 15.000,-
 

Anhänge

  • Küchenforum2.jpg
    Küchenforum2.jpg
    57,3 KB · Aufrufe: 285
  • GrundrissEG.jpg
    GrundrissEG.jpg
    80,3 KB · Aufrufe: 295
  • 20130922_Plan_Kochinsellinks.KPL
    3,9 KB · Aufrufe: 219
  • 20130922_Plan_KochinselRechts.KPL
    3,9 KB · Aufrufe: 223
  • 20130922_Plan_Kochinsellinks.POS
    5,1 KB · Aufrufe: 201
  • 20130922_Plan_KochinselRechts.POS
    5,6 KB · Aufrufe: 230
AW: Ich glaube ich dreh durch....

Hallo und herzlich willkommen!

Schön, dass du dich schon in den Alnoplaner eigearbeitet hast! Wenn du bitte noch die beiden Planungsdateien (*.KPL und *.POS, manchmal auch ohne die Endungen gespeichert) hochlädst, dann können wir damit weiterarbeiten und müssen nicht alles selbst neu anlegen.

Ist das ein offener Durchgang nach unten in den Wohnraum und eine Tür zum Flur?
 
AW: Ich glaube ich dreh durch....

KPL und POS habe ich bereits hochgeladen (je 2x) und sehe diese auch - kann es sein, dass nur ich die sehe und dass mit dem Hochladen etwas nicht geklappt hat ???

P.s. im Alno -Planer habe ich den Durchbruch als Tür angelegt, weil ich irgendwie zu blöd war einen Durchbruch anzulegen - trotz der tollen Anleitung hier.

Ja, das ist ein offener Durchgang. Kurz war auch angedacht, auf der anderen Seite des Kamins auch noch zu öffnen (ganz oder als Durchreiche), da bin ich mir aber nicht mehr so sicher.
 
AW: Ich glaube ich dreh durch....

:-[ war mit vorübergehender Blindheit geschlagen ... hat sich gebessert ... sehe die Anhänge jetzt auch ... :-[
Vielleicht sollte ich mal schlafen gehen. :cool:
 
AW: Ich glaube ich dreh durch....

Womma soo sagen: als ich das erste Mal in diesen Thread schaute, waren da auch keine *.pos. Lag wohl doch nicht an fehlendem Schlaf, wohl eher an fehlender Geduld.
Manch einer ist halt nicht ganz so schnell.
 
AW: Ich glaube ich dreh durch....

Auch von mir ein herzliches Willkommen! :welcome:

Ich hab mal deine Grundrisse hochgladen... Sei so gut und hänge sie stets deinen Planungen mit an, damit man auf einem Blick sieht, wie die Durchgänge sind. ;-)
 

Anhänge

  • chs411 - grundriss kochinsel links.JPG
    chs411 - grundriss kochinsel links.JPG
    32 KB · Aufrufe: 220
  • chs411-grundriss kochinsel rechts.JPG
    chs411-grundriss kochinsel rechts.JPG
    33,1 KB · Aufrufe: 227
AW: Ich glaube ich dreh durch....

Deine Planungen funktionieren so leider nicht. Du hast nirgens Blenden eingeplant. Die braucht man, um Schränke öffnen zu können, sonst schrabt ein Auszug an der Wand entlang oder die Schrank- oder Kühlschranktür lässt sich nicht komplett öffnen. ;-) Die Kochinsel finde ich viel zu klein, hinterm Kochfeld würde ich auch nicht sitzen wollen, Fett spritzt relativ weit.

Die Tür zum Flur, könnte man die im Flur als Schiebetür auf der Wand laufen lassen, oder könnte man das Türblatt einfach aushängen und weglassen?

Hm, ideal für eine Insel, finde ich diese Küche nicht... :rose:
 
Zuletzt bearbeitet:
AW: Ich glaube ich dreh durch....

Wie hoch ist das Fenster?
 
AW: Ich glaube ich dreh durch....

Auch von mir ein herzliches Willkommen! :welcome:
Danke :rose:


Ich hab mal deine Grundrisse hochgladen... Sei so gut und hänge sie stets deinen Planungen mit an, damit man auf einem Blick sieht, wie die Durchgänge sind. ;-)
Und nochmal Danke! :-[


Deine Planungen funktionieren so leider nicht. Du hast nirgens Blenden eingeplant.
OMG, natürlich :rolleyes: Ich habe einfach mal ein paar Schränke völlig Planlos durch die Gegend geschoben, um ein Gefühl für den Grundriss zu bekommen und habe dabei gar nicht an Blenden etc. gedacht :-[


Die Kochinsel finde ich viel zu klein, hinterm Kochfeld würde ich auch nicht sitzen wollen, Fett spritzt relativ weit.
IMHO darf die Kochinsel zwar größer sein, sie muss es aber nicht. Meine Mutter hat seit einigen Jahren eine Kochinsel, die sogar 10 cm weniger tief ist. Ich würde diese zwar nicht komplett für Gäste eindecken, wenn ich gerade Baggers oder paniertes rausbacke, zum Schnibbeln, ratschen und Teig ausrollen reicht sie jedoch allemal.

Das ist zumindest unsere Erfahrung...

Allerdings bin ich beim Grundriss auch noch überhaupt nicht festgelegt und würde auch eine reine Arbeits-/Sitzinsel akzeptieren und das Kochfeld auf die Arbeitsfläche Planrechts verschieben.

...oder eben eine ganz andere (Insel-/Sitzarbeitsplatten-)Lösung...


Die Tür zum Flur, könnte man die im Flur als Schiebetür auf der Wand laufen lassen, oder könnte man das Türblatt einfach aushängen und weglassen?

Weglassen würde ich es ungern, eine Schiebetür ist jedoch möglich und auch eine nach außen öffnende Tür wäre dekbar.


Wie hoch ist das Fenster?
Öhm, ja - da müsste ich dann nochmal nachmessen... Ich dachte, dass dieses Maß - im Hinblick darauf, dass ich das Fenster frei halten will - unerheblich ist :-[
 
AW: Ich glaube ich dreh durch....

Deine Planungen wirkten auf mich auch sehr planlos... :cool: :rose:

Bitte nicht zitieren, das stört den Lesefluss. Wenn du einen Stichpunkt nennst oder mit Namen ansprichst, erkennen wir auch so, wer oder was gemeint ist. ;-)

Jedes Maß ist wichtig und wenn du schon am Messen bist, dann messe bitte auch, den Kamin einmal aus, Breite und Tiefe.
 
AW: Ich glaube ich dreh durch....

Ich habe einmal geplant... Überlegt habe ich mir einen Zweizeiler, Spülenzeile mit Kochinsel. Ich hatte zuvor eine Planung mit Kochen vor dem Fenster angedacht, habe im Laufe der Planung dann festgestellt, das ich mit einer Kochinsel, mehr Stauraum erhalte... So konnte ich 3 übertiefe, 80cm breite Unterschränke unterbringen. :cool:

Hier mal ein Vergleich von normal zu übertief, aus meiner Küche...

-


Leider hat dadurch der Schrank für Müll unter der APL, einen nicht so tollen Platz bekommen. ...aber man kann wohl nicht alles haben. ;-)

Da du überlegt hast, die Wand Plan rechts des Kamins auch einzureißen, habe ich das einmal getan. Leider war der Schornstein nicht vermaßt, ich habe deshalb eine Tiefe von 45cm angenommen. In die Nische habe ich zwei 60cm breite, 45cm tiefe Hochschränke gestellt. Diese habe ich als Putzschränke angedacht. Ich hoffe dein Staubsauger passt dort hinein... Meiner würde es. :cool:

Die Tür zum Flur, habe ich durch eine Schiebetür ersetzt.

Geplant habe ich mit einem 6er Raster.

Was es heißt 6rastig zu werden...
Bild in Originalgröße sehen - 596x466px.
full

Typische Korpushöhen für 5-rasterig: 65cm, 70 cm, 72 cm, 75cm.
Typische Korpushöhen für 6-rasterig: 78cm, 79,8cm, 86,4cm
In Korpushöhen - Rastermaße - Auszugs-Innenmaße - Stauraumplanung sind diverse Hersteller mit ihren Standardkorpushöhen verlinkt.
Wenn man dann z. B. einen 78cm hohen Korpus wählt, ergeben sich folgende Maße
- 78 cm Korpushöhe
- 4 cm APL-Höhe
- 14 cm Sockelhöhe
-----------------
= 96 cm Gesamthöhe=Arbeitshöhe
Typische Hersteller wären Schüller , Häcker , Ballerina, Bauformat , Beckermann , Brion, Leicht, Alno usw.
In diesem Zusammenhang empfehlen wir dann gerne, die Rasterung 1-1-2-2 zu verwenden, denn auch in Schubladen bringt man sehr viel unter, z. B. ein komplettes Kaffeegeschirr ;-).
3-rasterige Auszüge braucht man in aller Regel nur für wenige Sachen
--> 38er Auszugshöhe - wie nutzt ihr die?
Zum Angucken, wie Stauraum genutzt werden kann:
Gerbera mit ganz vielen übertiefen Auszügen
Stauraumnutzung von doppelkeks und die Küche dazu
Küche von Moiree
Küche von KerstinB und nach dem Umzug
Küche von Jelena
Küche von Ulla
Nekos Küche
Darlas Küche
Magnolias Küche
Vanessas Küche
Hemerocallis Küche
Littlequeenies Küche
Angelikas Küche
Küche von atmos
Küche von biggimaus
Küche von Bodybiene
Küche von Missjenny
Küche von träumerle
Muckelinas Küche

Verplant habe ich...

- Standalone
- 30cm Unterschrank im Raster 3-3, für Müll unter der APL
- 60cm Spülenschrank
- 80cm Unterschrank im Raster 1-1-2-2
- Wange damit man nicht seitlich auf die BO-Tür gucken kann
- Hochschrank für BO und GSP (leider nicht hochgestellt)
- 30cm Hochschrank mit Drehtür, (um Ellbogenfreiheit zum Bedienen des BO zu gewährleisten) z.B. um Backbleche hochkannt zu lagern oder Brettchen und Tabletts.
- Blende

Insel

- Blende
- 3 x 80er Unterschränke im Raster 1-1-2-2, übertief
- 35cm überstehende APL

In der Wand

- 2 x 45cm tiefe Hochschänke
 

Anhänge

  • chs.jpg
    chs.jpg
    48,5 KB · Aufrufe: 230
  • chs2.jpg
    chs2.jpg
    51,5 KB · Aufrufe: 229
  • chs3.jpg
    chs3.jpg
    46,7 KB · Aufrufe: 238
  • chs411 - grundriss.JPG
    chs411 - grundriss.JPG
    22,5 KB · Aufrufe: 214
  • chs411-conny 2.KPL
    3,9 KB · Aufrufe: 210
  • chs411-conny 2.POS
    12 KB · Aufrufe: 210
AW: Ich glaube ich dreh durch....

Der Kamin ist 68cm breit und hat eine Tiefe von 31 cm.

Bei der Planung stehe ich noch ganz am Anfang und sammel gerade Ideen, sodass ich in den nächste 1-2 Wochen mal bei div. Küchenstudios aufschlagen kann. Ich bin also noch relativ offen für Vorschläge ;-)

@edit
Und danke für den ersten Vorschlag!:rose::clap: Nur das mit dem 6er-Raster wird bei mir befürchte ich nicht hinhauen. Ich kam bei den Messungen immer auf eine Arbeitshöhe zwischen 89 und 93cm (bin doch nur 1,65 ;D).
 
AW: Ich glaube ich dreh durch....

Ok, dann müsste man die Schräke "in" der Wand etwas vorziehen... Es bleibt dann immer noch 106cm Platz zwischen Insel und Putzschränke.
Ich würde dann die ganze Wand hinter den Schränken mit Rigips verkleiden, damit man die Schränke nicht noch weiter in die Küche ziehen muss.

Vielleicht könnte man auch die 15cm vom anderen Zimmer für die Schränke abknapsen?
 

Anhänge

  • chs411 - grundriss.JPG
    chs411 - grundriss.JPG
    26,7 KB · Aufrufe: 210
  • chs.jpg
    chs.jpg
    50,8 KB · Aufrufe: 224
  • chs411-conny 2 überarbeitet.KPL
    3,9 KB · Aufrufe: 205
  • chs411-conny 2 überarbeitet.POS
    12 KB · Aufrufe: 209
AW: Ich glaube ich dreh durch....

Arbeitshöhen ab 90cm sind mit einem 6er Raster problemlos zu realisieren, dann wird der Sockel einfach etwas niedriger.
Also 8cm Sockel + 78cm Korpus + 4cm APL = 90cm Arbeitshöhe.
 
AW: Ich glaube ich dreh durch....

Hmm .. ich lese auch noch "Heizkörper wie im Grundriss", kann aber keine entdecken. Wie sieht es da aus? Unter dem Fenster? Dort in einer Nische oder in den Raum ragend? Wie breit, wieviel in den Raum ragend?
 
AW: Ich glaube ich dreh durch....

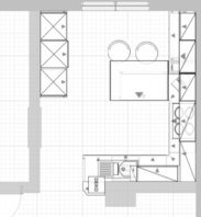
So, mal eine Variante mit richtiger Insel.

Leider ist oben der Durchgang Inselecke/Kühlschrank etwas eng. Allerdings wird der Weg wohl auch nicht zu häufig sein.

Müll unter der APL :top:
Besenschrank :top:
Unter Backofen Innenauszüge für Vorräte :top: (weiterer Hochschrank wäre einfach zuviel)
Wasser unverlegt dort am Kamin
Fenster, vermutlich wg. Heizung frei

Sitzplatz sehe ich hier allerdings nur einen oder man stellt sich halt alles zu.
 

Anhänge

  • chs411_20131002_kb1-alt_Ansicht1.jpg
    chs411_20131002_kb1-alt_Ansicht1.jpg
    122,7 KB · Aufrufe: 219
  • chs411_20131002_kb1-alt.POS
    8,2 KB · Aufrufe: 225
  • chs411_20131002_kb1-alt.KPL
    4,1 KB · Aufrufe: 200
  • chs411_20131002_kb1-alt_Grundriss.jpg
    chs411_20131002_kb1-alt_Grundriss.jpg
    85,1 KB · Aufrufe: 220
  • chs411_20131002_kb1-alt_Ansicht6.jpg
    chs411_20131002_kb1-alt_Ansicht6.jpg
    147,8 KB · Aufrufe: 219
  • chs411_20131002_kb1-alt_Ansicht5.jpg
    chs411_20131002_kb1-alt_Ansicht5.jpg
    157 KB · Aufrufe: 218
  • chs411_20131002_kb1-alt_Ansicht4.jpg
    chs411_20131002_kb1-alt_Ansicht4.jpg
    144,3 KB · Aufrufe: 225
  • chs411_20131002_kb1-alt_Ansicht3.jpg
    chs411_20131002_kb1-alt_Ansicht3.jpg
    142,5 KB · Aufrufe: 216
  • chs411_20131002_kb1-alt_Ansicht2.jpg
    chs411_20131002_kb1-alt_Ansicht2.jpg
    101,2 KB · Aufrufe: 217
AW: Ich glaube ich dreh durch....

Und dann mal noch mit Halbinsel und 2 Sitzplätzen, wobei der zweite Sitzplatz dann allerdings behindernd für die Auszüge planoben rechts ist. Also, tendenziell auch wieder eher nur 1 Sitzplatz.
 

Anhänge

  • chs411_20131002_kb2-alt.KPL
    4,1 KB · Aufrufe: 203
  • chs411_20131002_kb2-alt_Grundriss.jpg
    chs411_20131002_kb2-alt_Grundriss.jpg
    87,8 KB · Aufrufe: 465
  • chs411_20131002_kb2-alt_Ansicht5.jpg
    chs411_20131002_kb2-alt_Ansicht5.jpg
    135 KB · Aufrufe: 214
  • chs411_20131002_kb2-alt_Ansicht4.jpg
    chs411_20131002_kb2-alt_Ansicht4.jpg
    135,7 KB · Aufrufe: 207
  • chs411_20131002_kb2-alt_Ansicht3.jpg
    chs411_20131002_kb2-alt_Ansicht3.jpg
    149,8 KB · Aufrufe: 211
  • chs411_20131002_kb2-alt_Ansicht2.jpg
    chs411_20131002_kb2-alt_Ansicht2.jpg
    103,1 KB · Aufrufe: 218
  • chs411_20131002_kb2-alt_Ansicht1.jpg
    chs411_20131002_kb2-alt_Ansicht1.jpg
    122,8 KB · Aufrufe: 212
  • chs411_20131002_kb2-alt.POS
    8,8 KB · Aufrufe: 228
AW: Ich glaube ich dreh durch....

Super, vielen Dank. :rose: ich find es toll wie ihr hier alle mit dem Planer umgehen könnt. Bei mir ist das noch so ein gestocher und gestöpsel...

Ich habe heut Abend einen ersten Termin bei einem :kfb: und bin gespannt was dieser so erzählt und vorschlägt.

@Heizkörper
Dieser ist aktuell unter dem Fenster in einer Nische, wird aber ggf versetzt oder entfernt.
 
AW: Ich glaube ich dreh durch....

Kannst du bitte mal ein bisschen was zu unseren Planungen sagen... Was dir gefällt, was dir nicht gefällt. Dies ist ein Mittmachforum, die besten Planungen entstehen, wenn der TE konstruktiv mitarbeitet, mitdenkt und plant. So ist es etwas müßig und macht für uns keinen Spaß... :rose:
 

Ähnliche Beiträge

Neff Hausgeräte Ballerina Küchen Blum Bewegungstechnologie Weibel - Intelligente Küchenlüftung

Neff Spezial

Blum Zonenplaner

Weibel Abluft-Tuning

Weibel Abluft-Tuning
Zurück
Oben