F95Jan
Mitglied
- Beiträge
- 11
Hallo Forum,
ich bin neu hier und über die Informationsmöglichkeiten hier begeistert.
Meine Partnerin und ich bauen gerade unser Traumhaus in der Nähe von München. Da wir gerade erst die Bauveträge unterschrieben haben sind wir noch in der Planungsphase und können noch Sachen ändern. Natürlich wollen wir frühzeitig mit der Küchenplanung beginnen.
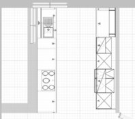
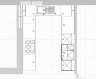
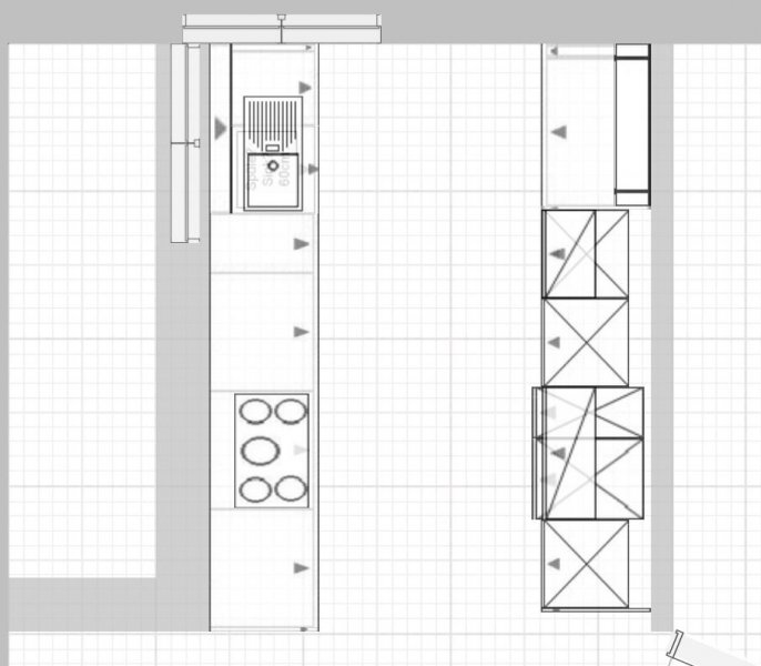
Im Anhang findet Ihr einen Grundriss von unserem EG. Wir planen einen großzügigen Wohn- Essbreich mit offener Küche. Die Küche im Grundriss dient nur als Muster. Selbstverständlich kann diese noch weiter rausgezogen werden.
Das Eckfenster in der Küche ist von der Höhe auch noch nicht festgelegt und kann noch geändert werden. Als Übergang zur Küche stellen wir uns eine Theke mit integrierter Herdplatte vor. Auch möchten wir auf eine Dunstabzugshaube verzichten und stattdessen die Bora Basic Herdplatte mit eingebautem Abzug nutzen.
An Küchengeräten stellen wir uns neben der Bora Basic Herdplatte, einen höhergelegten Backofen , eine Spülmaschine einen Weinkühler und einen Amerikanischen Kühlschrank mit Eiswürfelbereiter und Wasseranschluss (Side by Side) vor. Die Spüle sollte oben am Fenster sein und über einen Grohe Blue Wasserhahn verfügen. An der rechten Wand sollte der Side by Side Kühlschrank und der Weinkühler sein. Die Tiefe der Schränke an der Seite sollten angepasst an den Side by Side sein.
Könnt Ihr uns Tipps für die Planung geben?
LG u Danke

Checkliste zur Küchenplanung von F95Jan
Anzahl Personen im Haushalt : 3
Davon Kinder? : 1
Körpergrössen aller Hauptbenutzer (wegen Arbeitshöhe ) in cm : 186 und 165
Art des Gebäudes? : Neu-/Umbau, Planänderungen möglich
Brüstungshöhe des Fensters (in cm) : Änderungen noch möglich
Fensterhöhe (in cm) : Änderungen noch möglich
Raumhöhe in cm: : 245
Heizung : Fussbodenheizung
Sanitäranschlüsse : vollkommen variabel
Ausführung Kühlgerät? : Side by Side ca. 90cm breit
Kühlgerät Größe : noch unbekannt
Ausführung Tiefkühl (TK)-Gerät : Nicht erforderlich bzw. steht woanders
Dunstabzugshaube? : keine
Hochgebauter Backofen ? : Ja
Hochgebauter Geschirrspüler ? : nein
Kochfeldart? : Induktion
Kochfeldbreite ca. (in cm)? : Bora Basic
Spülenform: : Noch nicht festgelegt
Weitere geplante Heißgeräte :
Küchenstil? : modern
Sitzmöglichkeit in der Küche / im Küchenbereich als : Tresen in Barhöhe
Sitzmöglichkeit: Für wieviel Personen? : für 3 Personen
Sitzmöglichkeit: Tisch - wenn gesonderter Tisch oder offene Küche : Wird nach Bedarf neu gekauft
Gewünschte o. vorhandene Tischgröße : Esstisch steht im Essbereich nicht in der Küche
Wofür soll der Sitzplatz in der Küche genutzt werden? Wie häufig? : Frühstück und Gespräche
Welche Arbeitshöhe ist angedacht (in cm)? : 95
Was steht auf der Arbeitsplatte oder soll dort stehen? : Kaffeevollautomat, Wasserkocher, Messerblock, Toaster, Obstschale
Welche weiteren Küchenmaschinen müssen in der Küche untergebracht werden? : Handrührgerät, Mixer
Was soll in der Küche außer den Standards untergebracht werden? : Geschirr komplett (nichts in Ess-/Wohnzimmer)
Welchen Stauraum gibt es sonst noch? : Geschirr/Gläserschrank im Wohn-/Esszimmer, Speisekammer, Keller
Was/wie wird gekocht? (Alltagsküche, Menüs, Snacks usw) : Alltagsküche fast täglich
Wie häufig wird gekocht? : (fast) täglich 1x warm
Wird alleine gekocht? Oder auch gemeinsam? Mit und für Gäste? : Gemeinsam
Was stört an der bisherigen Küche und was soll die neue Küche unbedingt können? Warum? : Neubau, deshalb neue Küche
Steht schon ein Küchenhersteller fest oder wird bevorzugt? : Alnostar Cerra; gerne alternativen
Steht schon ein Gerätehersteller fest oder wird bevorzugt? : Kochplatte Bora Basic, Wasserhahn Grohe Blue sonst offen
Preisvorstellung (Budget) : bis 20.000,-
ich bin neu hier und über die Informationsmöglichkeiten hier begeistert.
Meine Partnerin und ich bauen gerade unser Traumhaus in der Nähe von München. Da wir gerade erst die Bauveträge unterschrieben haben sind wir noch in der Planungsphase und können noch Sachen ändern. Natürlich wollen wir frühzeitig mit der Küchenplanung beginnen.
Im Anhang findet Ihr einen Grundriss von unserem EG. Wir planen einen großzügigen Wohn- Essbreich mit offener Küche. Die Küche im Grundriss dient nur als Muster. Selbstverständlich kann diese noch weiter rausgezogen werden.
Das Eckfenster in der Küche ist von der Höhe auch noch nicht festgelegt und kann noch geändert werden. Als Übergang zur Küche stellen wir uns eine Theke mit integrierter Herdplatte vor. Auch möchten wir auf eine Dunstabzugshaube verzichten und stattdessen die Bora Basic Herdplatte mit eingebautem Abzug nutzen.
An Küchengeräten stellen wir uns neben der Bora Basic Herdplatte, einen höhergelegten Backofen , eine Spülmaschine einen Weinkühler und einen Amerikanischen Kühlschrank mit Eiswürfelbereiter und Wasseranschluss (Side by Side) vor. Die Spüle sollte oben am Fenster sein und über einen Grohe Blue Wasserhahn verfügen. An der rechten Wand sollte der Side by Side Kühlschrank und der Weinkühler sein. Die Tiefe der Schränke an der Seite sollten angepasst an den Side by Side sein.
Könnt Ihr uns Tipps für die Planung geben?
LG u Danke

Checkliste zur Küchenplanung von F95Jan
Anzahl Personen im Haushalt : 3
Davon Kinder? : 1
Körpergrössen aller Hauptbenutzer (wegen Arbeitshöhe ) in cm : 186 und 165
Art des Gebäudes? : Neu-/Umbau, Planänderungen möglich
Brüstungshöhe des Fensters (in cm) : Änderungen noch möglich
Fensterhöhe (in cm) : Änderungen noch möglich
Raumhöhe in cm: : 245
Heizung : Fussbodenheizung
Sanitäranschlüsse : vollkommen variabel
Ausführung Kühlgerät? : Side by Side ca. 90cm breit
Kühlgerät Größe : noch unbekannt
Ausführung Tiefkühl (TK)-Gerät : Nicht erforderlich bzw. steht woanders
Dunstabzugshaube? : keine
Hochgebauter Backofen ? : Ja
Hochgebauter Geschirrspüler ? : nein
Kochfeldart? : Induktion
Kochfeldbreite ca. (in cm)? : Bora Basic
Spülenform: : Noch nicht festgelegt
Weitere geplante Heißgeräte :
Küchenstil? : modern
Sitzmöglichkeit in der Küche / im Küchenbereich als : Tresen in Barhöhe
Sitzmöglichkeit: Für wieviel Personen? : für 3 Personen
Sitzmöglichkeit: Tisch - wenn gesonderter Tisch oder offene Küche : Wird nach Bedarf neu gekauft
Gewünschte o. vorhandene Tischgröße : Esstisch steht im Essbereich nicht in der Küche
Wofür soll der Sitzplatz in der Küche genutzt werden? Wie häufig? : Frühstück und Gespräche
Welche Arbeitshöhe ist angedacht (in cm)? : 95
Was steht auf der Arbeitsplatte oder soll dort stehen? : Kaffeevollautomat, Wasserkocher, Messerblock, Toaster, Obstschale
Welche weiteren Küchenmaschinen müssen in der Küche untergebracht werden? : Handrührgerät, Mixer
Was soll in der Küche außer den Standards untergebracht werden? : Geschirr komplett (nichts in Ess-/Wohnzimmer)
Welchen Stauraum gibt es sonst noch? : Geschirr/Gläserschrank im Wohn-/Esszimmer, Speisekammer, Keller
Was/wie wird gekocht? (Alltagsküche, Menüs, Snacks usw) : Alltagsküche fast täglich
Wie häufig wird gekocht? : (fast) täglich 1x warm
Wird alleine gekocht? Oder auch gemeinsam? Mit und für Gäste? : Gemeinsam
Was stört an der bisherigen Küche und was soll die neue Küche unbedingt können? Warum? : Neubau, deshalb neue Küche
Steht schon ein Küchenhersteller fest oder wird bevorzugt? : Alnostar Cerra; gerne alternativen
Steht schon ein Gerätehersteller fest oder wird bevorzugt? : Kochplatte Bora Basic, Wasserhahn Grohe Blue sonst offen
Preisvorstellung (Budget) : bis 20.000,-






















