sunnystef
Mitglied
- Beiträge
- 18
Liebe Küchenforumteilnehmer.
Nach viel Recherche und stillem Lesen hier im Forum starte ich nun auch mal meinen eigenen Planungsthread. Im Sommer 2014 ziehen wir um von der Mietwohnung ins eigene Haus.
Die derzeit vorhandene Küche soll komplett erneuert werden. Das Haus ist BJ 1979 und eher im Stil quadratisch, praktisch, gut gehalten.
Ich koche hobbymäßig ziemlich gerne, mache Chutneys und Cupcakes und das derzeit auf noch kleinerem Raum.
Das Motto der Küche soll sein: Modern,hell und mit ein wenig Landhaus- Cottageeinfluss. Sprich matte Fronten, gerne mit leichter Rahmenoptik.
Wir sind beim Umzug zwei Erwachsene und kommenden Sommer auch zwei Kinder (4J und 0J)
Zur Zeit haben wir eine Ballerina Küche mit weißen Schichtstofffronten, die sich was Robustheit betrifft auch bewährt haben. Aber mein Mann und ich hätten halt nun gerne ein bisschen was in Richtung Landhaus (z.B. Schüller Breda (Satinlack) oder Schüller Como (Folie).
Gerne hätte ich ein 6er Raster, sprich 78cm Korpushöhe.
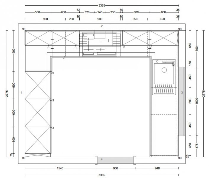
Noch eine wichtige Sache, die es zu klären gilt: Essplatz in der Küche oder nicht? Derzeit gibt es einen kleinen Essplatz in der Küche unseres zukünftigen Hauses (siehe Bilder), aber das ist ja wirklich nicht schön gelöst. Ich könnte mir eine U-Form der Küche vorstellen mit kleinem 2 Personen Essplatz/Dabeisitzplatz mit Blick aus dem Fenster.
Aber auch eine L-Form ist denkbar, so ist es im Moment im zukünftigen Haus (siehe Fotos)
Außerdem habe ich beim letzten Ausmessen im zukünftigen Haus 3 Fotos von der dort verbauten Küche geschossen, siehe Anhang.
Trotz Computeraffinität bereitet mit der ALNO -Planer echt graue Haare mit meinen 32 Lenzen.
Daher mal meine Idee als digitale Skizze.
Kommende Woche Dienstag habe ich einen ersten Termin bei einem kleinen KFB, welches mir empfohlen wurde, die haben ausschließlich Schüller Küchen soweit ich weiß. Ich werde aber denk ich noch weitere Händler abklappern.
Ich wäre euch für Ideen sehr sehr dankbar!!!
Schöne Grüße, Steffi
Checkliste zur Küchenplanung von sunnystef
Anzahl Personen im Haushalt : 4
Davon Kinder? : 2
Körpergrössen aller Hauptbenutzer (wegen Arbeitshöhe ) in cm : 166 cm (Hauptnutzer), 181 cm (mein Mann)
Art des Gebäudes? : Bestandsbau, (kleinere) Umbauten möglich
Brüstungshöhe des Fensters (in cm) : 85 cm, Der Abstand vom Boden bis zum unteren Fensterflügel beträgt 90,6 cm
Fensterhöhe (in cm) : 120 cm??
Raumhöhe in cm: : 255 cm
Heizung : Heizkörper wie im Grundriss
Sanitäranschlüsse : vollkommen variabel
Ausführung Kühlgerät? : Integriert im Hochschrank (60cm)
Kühlgerät Größe : bis 175 cm Höhe
Ausführung Tiefkühl (TK)-Gerät : Im Kühlschrank ab 3 Schubladen unten
Dunstabzugshaube? : Abluft
Hochgebauter Backofen ? : Wenn möglich
Hochgebauter Geschirrspüler ? : wenn möglich
Kochfeldart? : Induktion
Kochfeldbreite ca. (in cm)? : 60 - 80 cm
Spülenform: : 1,5 Becken mit Abtropffläche
Weitere geplante Heißgeräte : Standmikrowelle
Küchenstil? : modern
Sitzmöglichkeit in der Küche / im Küchenbereich als : Arbeitsplatte in Tischhöhe
Sitzmöglichkeit: Für wieviel Personen? : für 2 Personen
Sitzmöglichkeit: Tisch - wenn gesonderter Tisch oder offene Küche : Wird nach Bedarf neu gekauft
Gewünschte o. vorhandene Tischgröße : 2 - 3 Personen
Wofür soll der Sitzplatz in der Küche genutzt werden? Wie häufig? : zum kleinen Frühstück oder zum Dabeisitzen
Welche Arbeitshöhe ist angedacht (in cm)? : im Moment arbeite ich mit 91 cm Höhe, das geht recht gut
Was steht auf der Arbeitsplatte oder soll dort stehen? : Kaffeemaschine, Wasserkocher, Küchenmaschine, Toaster, Brotbehälter
Welche weiteren Küchenmaschinen müssen in der Küche untergebracht werden? : Schneidemaschine (z. B. in Schublade), Handrührgerät, Pürierstab, Eierkocher
Was soll in der Küche außer den Standards untergebracht werden? : ALLE Vorräte, Sonstiges (evtl. im Beitragstext benennen)
Welchen Stauraum gibt es sonst noch? : Geschirr/Gläserschrank im Wohn-/Esszimmer, Keller, Abseiten
Was/wie wird gekocht? (Alltagsküche, Menüs, Snacks usw) : Alltagsküche, gerne auch auch mal etwas aus Kochzeitschriften, also die Küche wird schon regelmäßig genutzt.
Wie häufig wird gekocht? : (fast) täglich 1x warm
Wird alleine gekocht? Oder auch gemeinsam? Mit und für Gäste? : 95% alleine, ab und an für Gäste
Was stört an der bisherigen Küche und was soll die neue Küche unbedingt können? Warum? : an meiner jetzigen Küche in der Mietwohnung stört mich die wenige Arbeitsfläche. Toll dagegen ist der Stauraum.
Steht schon ein Küchenhersteller fest oder wird bevorzugt? : evtl. Schüller od Ballerina
Steht schon ein Gerätehersteller fest oder wird bevorzugt? : nein
Preisvorstellung (Budget) : bis 15.000,-
Nach viel Recherche und stillem Lesen hier im Forum starte ich nun auch mal meinen eigenen Planungsthread. Im Sommer 2014 ziehen wir um von der Mietwohnung ins eigene Haus.
Die derzeit vorhandene Küche soll komplett erneuert werden. Das Haus ist BJ 1979 und eher im Stil quadratisch, praktisch, gut gehalten.
Ich koche hobbymäßig ziemlich gerne, mache Chutneys und Cupcakes und das derzeit auf noch kleinerem Raum.
Das Motto der Küche soll sein: Modern,hell und mit ein wenig Landhaus- Cottageeinfluss. Sprich matte Fronten, gerne mit leichter Rahmenoptik.
Wir sind beim Umzug zwei Erwachsene und kommenden Sommer auch zwei Kinder (4J und 0J)
Zur Zeit haben wir eine Ballerina Küche mit weißen Schichtstofffronten, die sich was Robustheit betrifft auch bewährt haben. Aber mein Mann und ich hätten halt nun gerne ein bisschen was in Richtung Landhaus (z.B. Schüller Breda (Satinlack) oder Schüller Como (Folie).
Gerne hätte ich ein 6er Raster, sprich 78cm Korpushöhe.
Noch eine wichtige Sache, die es zu klären gilt: Essplatz in der Küche oder nicht? Derzeit gibt es einen kleinen Essplatz in der Küche unseres zukünftigen Hauses (siehe Bilder), aber das ist ja wirklich nicht schön gelöst. Ich könnte mir eine U-Form der Küche vorstellen mit kleinem 2 Personen Essplatz/Dabeisitzplatz mit Blick aus dem Fenster.
Aber auch eine L-Form ist denkbar, so ist es im Moment im zukünftigen Haus (siehe Fotos)
Außerdem habe ich beim letzten Ausmessen im zukünftigen Haus 3 Fotos von der dort verbauten Küche geschossen, siehe Anhang.
Trotz Computeraffinität bereitet mit der ALNO -Planer echt graue Haare mit meinen 32 Lenzen.
Kommende Woche Dienstag habe ich einen ersten Termin bei einem kleinen KFB, welches mir empfohlen wurde, die haben ausschließlich Schüller Küchen soweit ich weiß. Ich werde aber denk ich noch weitere Händler abklappern.
Ich wäre euch für Ideen sehr sehr dankbar!!!
Schöne Grüße, Steffi
Checkliste zur Küchenplanung von sunnystef
Anzahl Personen im Haushalt : 4
Davon Kinder? : 2
Körpergrössen aller Hauptbenutzer (wegen Arbeitshöhe ) in cm : 166 cm (Hauptnutzer), 181 cm (mein Mann)
Art des Gebäudes? : Bestandsbau, (kleinere) Umbauten möglich
Brüstungshöhe des Fensters (in cm) : 85 cm, Der Abstand vom Boden bis zum unteren Fensterflügel beträgt 90,6 cm
Fensterhöhe (in cm) : 120 cm??
Raumhöhe in cm: : 255 cm
Heizung : Heizkörper wie im Grundriss
Sanitäranschlüsse : vollkommen variabel
Ausführung Kühlgerät? : Integriert im Hochschrank (60cm)
Kühlgerät Größe : bis 175 cm Höhe
Ausführung Tiefkühl (TK)-Gerät : Im Kühlschrank ab 3 Schubladen unten
Dunstabzugshaube? : Abluft
Hochgebauter Backofen ? : Wenn möglich
Hochgebauter Geschirrspüler ? : wenn möglich
Kochfeldart? : Induktion
Kochfeldbreite ca. (in cm)? : 60 - 80 cm
Spülenform: : 1,5 Becken mit Abtropffläche
Weitere geplante Heißgeräte : Standmikrowelle
Küchenstil? : modern
Sitzmöglichkeit in der Küche / im Küchenbereich als : Arbeitsplatte in Tischhöhe
Sitzmöglichkeit: Für wieviel Personen? : für 2 Personen
Sitzmöglichkeit: Tisch - wenn gesonderter Tisch oder offene Küche : Wird nach Bedarf neu gekauft
Gewünschte o. vorhandene Tischgröße : 2 - 3 Personen
Wofür soll der Sitzplatz in der Küche genutzt werden? Wie häufig? : zum kleinen Frühstück oder zum Dabeisitzen
Welche Arbeitshöhe ist angedacht (in cm)? : im Moment arbeite ich mit 91 cm Höhe, das geht recht gut
Was steht auf der Arbeitsplatte oder soll dort stehen? : Kaffeemaschine, Wasserkocher, Küchenmaschine, Toaster, Brotbehälter
Welche weiteren Küchenmaschinen müssen in der Küche untergebracht werden? : Schneidemaschine (z. B. in Schublade), Handrührgerät, Pürierstab, Eierkocher
Was soll in der Küche außer den Standards untergebracht werden? : ALLE Vorräte, Sonstiges (evtl. im Beitragstext benennen)
Welchen Stauraum gibt es sonst noch? : Geschirr/Gläserschrank im Wohn-/Esszimmer, Keller, Abseiten
Was/wie wird gekocht? (Alltagsküche, Menüs, Snacks usw) : Alltagsküche, gerne auch auch mal etwas aus Kochzeitschriften, also die Küche wird schon regelmäßig genutzt.
Wie häufig wird gekocht? : (fast) täglich 1x warm
Wird alleine gekocht? Oder auch gemeinsam? Mit und für Gäste? : 95% alleine, ab und an für Gäste
Was stört an der bisherigen Küche und was soll die neue Küche unbedingt können? Warum? : an meiner jetzigen Küche in der Mietwohnung stört mich die wenige Arbeitsfläche. Toll dagegen ist der Stauraum.
Steht schon ein Küchenhersteller fest oder wird bevorzugt? : evtl. Schüller od Ballerina
Steht schon ein Gerätehersteller fest oder wird bevorzugt? : nein
Preisvorstellung (Budget) : bis 15.000,-
Anhänge
-
Grundriss_mit_Maßen.jpg187,5 KB · Aufrufe: 507 -
Erste_Planungsskizze_U-Form.jpg87,2 KB · Aufrufe: 2.777 -
Grundriss_EG_gesamt.jpg97,6 KB · Aufrufe: 379 -
Grundriss_EG_gesamt_2.jpg64,3 KB · Aufrufe: 358 -
Außenansicht_Küche.jpg90,2 KB · Aufrufe: 389 -
Aktuelle_Situation_planrechts.jpg77,4 KB · Aufrufe: 449 -
Aktuelle_Situation_planoben.jpg77,2 KB · Aufrufe: 390 -
Aktuelle_Situation_planlinks.jpg68,5 KB · Aufrufe: 435
Zuletzt bearbeitet von einem Moderator:




