Datschi
Mitglied
- Beiträge
- 2
U-Küche mit Insel für eine 4-Zimmer Wohnung (Vermietung)
Hallo liebes Küchenforum,
eine Weile lese ich nun im Stillen mit und habe mir schon den ein oder anderen Tipp hier mitnehmen können. Aktuell stehe ich davor eine für Küche für meine Wohnung zu kaufen und diese dann zu vermieten, da ich mit meinem Partner zusammenziehen möchte. Ursprünglich habe ich die Küche für mich eingeplant, nun ziehe ich aber zu meinem Partner.
kurz zum Hintergrund:
Ich habe bereits einen Küchenvertrag mit einem Küchenstudio geschlossen für eine Nobilia Küche. 11.000€ darf das gute Stück Kosten - nun möchte ich für den potentiellen Mieter das meiste an Qualität rausholen und die Küche bestmöglich für diesen Preis ausstatten. Möglicherweise wird eins meiner Kinder die Wohnung mal bewohnen, aber das ist alles noch ungewiss (Studium, etc.). Der Preis ist recht fix, alternativ wäre nur Rücktritt gegen eine Gebühr von 3250€.
Hinweise zu den Unterlagen:
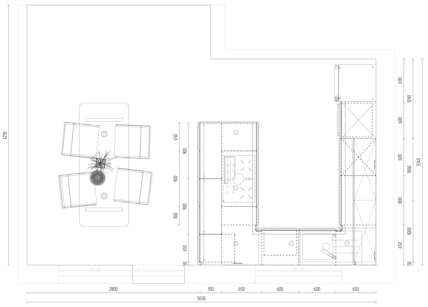
Wohnungsgrundriss: Hier ist gezeigt wie die Küche derzeit ungefähr montiert ist.
- Rot markiert ist eine Wand (Nicht-tragend), welche ich angedacht hatte rauszunehmen zugunsten einer offenen Küchengestaltung mit Insel.
- Blau markiert ist die Positionierung des Wasserventils.
- Orange markiert ist ein kleiner Heizkörper unter der Fensternische.
Vermaßungen:
Hier war bereits jemand zum Vermessen vor Ort, auf dessen Basis wurde bereits eine Version der Küchenplanung erstellt.
Geräte:
- Kühlschrank habe ich noch ein Standalone Gerät von Liebherr , aus Kostengründen würde ich diesen in der neuen Küche übernehmen. (Eckposition)
- Spülmachine von AEG (https://www.aeg.de/kitchen/dishwashing/dishwashers/built-in-dishwasher/eg5bvi/)
- Backofen von AEG (https://www.aeg.de/kitchen/cooking/ovens/oven/eb30m/)
- Kochfeld von Bora Puru
(https://www.bora.com/de-de/kochfeldabzugssysteme/pure)
Optik:
Fronten: Melaminfronten, weiß
Korpus: weiß
Arbeitsplatte : Dekor, Eiche Sierra
Nischenverkleidung : wie Arbeitsplatte, Eiche Sierra
Ich möchte eine robuste, pflegeleichte und möglichst neutrale Küche anschaffen. Für Vorschläge und Optimmierungsideen bin ich daher offen
Die Küche sollte in Wasseranschlussnähe Platz für ein Filtersystem bieten (ca. 30x40cm). Zudem würde ich gerne den Müll in die Küche integrieren, entweder als Auszugsschrank unter der Spüle oder in die Schrankflächen.
Hier meine konkreten Fragen:
a) Wenn das Bora Kochfeld auf die Insel kommt, wie viel Platz sollte man links und rechts daneben einplanen? Ich hätte eher auf der Fensterabgewandten Seite mehr Platz gelassen ca. 50cm um dort noch andere Dinge z.B.: Einkäufe abstellen zu können?
b) In die Insel hätte ich auch einen Auszug integriert für Bratöl etc. - sinnvoll?
c) Ich wollte ursprünglich neben den Backofen einen Apothekerschrank einbauen (30-40cm), nun überlege ich einfach einen normalen Geschirrschrank zu nehmen um dort Vorräte platzieren zu können. Bei Bedarf kann dann zu einem späteren Zeitpunkt ein Apothekerschrank nachgerüstet werden.
d) in der Wandecke befindet sich oben eine Öffnung für einen Abluftanschluss. Das Küchenstudio hat mir allerdings eine Planung mit Umluft nahegelegt. Sinnvoll?
e) die Optik des Bodens habe ich noch nicht entschieden, angedacht war Laminat - Gestaltung noch ungewiss - hier wäre ich auch für einen Tipp dankbar.
Ich habe 2 Entwürfe mit dem Nobilia Küchenplaner erstellt (siehe Anhang). Vom Küchenstudio wurde mir das Bora Kochfeld empfohlen - ein Kochfeld mit Wandabzug ist für mich auch denkbar und könnte auch an der Wandseite platziert werden.
Nun würde ich gerne einmal meine beiden Planungen mit euch teilen ein erstes Feedback abwarten. Ich freue mich über konstruktive Kritik und hifreiche Diskussion. Vielen Dank fürs lesen!
Liebe Grüße
Checkliste zur Kuechenplanung
Personenkriterien und Ergonomie
Anzahl Personen im Haushalt: 4
Davon Kinder: 2
Körpergrößen aller Hauptbenutzer in cm (wegen Arbeitshoehe): 180
Welche Arbeitshöhe ist angedacht (in cm)?: 91
Gebäudekriterien
Art des Gebäudes: Bestandsbau > (kleinere) Umbauten möglich, Eigentum
Bruestungshöhe des Fensters (in cm): 110
Fensterhöhe (in cm): 120
Raumhöhe in cm: 250
Heizung: Heizkörper wie im Grundriss
Sanitäranschlüsse: fix (Bitte Position im Grundriss vermaßt angeben)
Einbaugerätekriterien
Ausführung Kühlgerät: Stand-Alone bis 60cm Breite
Einbaukühlgerät Größe: N. a.
Ausführung Tiefkühl (TK)-Gerät: Im Kühlschrank ab 3 Schubladen unten
Dunstabzugshaube: Umluft
Hochgebauter Backofen : wenn möglich
Geplante Heißgeräte: Standmikrowelle, Backofen
Hochgebauter Geschirrspüler : nein
Art des Kochfeldes: Induktionskochfeld
Kochfeldbreite (ca. in cm): 80
Sitzmöglichkeiten
Sitzmöglichkeit in der Küche / im Küchenbereich: Keine
Sitzmöglichkeit: Für wieviel Personen?: nein
Sitzmöglichkeit: Tisch - wenn gesonderter Tisch oder offene Küche: Vorhandener Tisch
Gewünschte oder vorhandene Tischgröße: für 4-6 Personen
Wofür soll der Sitzplatz in der Küche genutzt werden und wie häufig:
Stauraum-Planung
Was steht auf der Arbeitsplatte oder soll dort stehen?: Kaffeevollautomat, Wasserkocher, Thermomix, Toaster, Obstschale
Welche weiteren Küchenmaschinen müssen in der Küche untergebracht werden: Handrührgerät, Mixer, Pürierstab, Eierkocher
Was soll in der Küche außer den Standards untergebracht werden: ALLE Vorräte
Welchen Stauraum gibt es sonst noch: Geschirr/Gläserschrank im Wohn-/Esszimmer, Keller
Kochgewohnheiten
Was/wie wird gekocht? (Alltagsküche, Menüs, Snacks usw): Alltagsküche, Frühstück
Wie häufig wird gekocht: (fast) täglich 1x warm
Wird alleine gekocht? Oder auch gemeinsam? Mit und für Gäste?: offen für alle Optionen
Spülen und Müll
Spülenform: 1 Becken mit Abtropffläche
Welche Mülltrennung soll in der Küche vorgehalten werden: Altpapier, Biomüll, Gelber Sack Müll, Restmüll
Sonstiges
Steht schon ein Küchenhersteller fest oder wird bevorzugt: Nobilia
Steht schon ein Gerätehersteller fest oder wird bevorzugt: Bora, AEG
Küchenstil: Klassisch
Was stört an der bisherigen Küche und was soll die neue Küche unbedingt können? Warum?: Bisherige Küche ist über 20 jahre alt und in die Jahre gekommen, sieht nicht mehr frisch aus.
Die neue Küche sollte Mülleimer integriert haben und Platz für eine Wasserfilteranlage bieten (ca. 30x40cm). Zudem benötigt die Küche am besten auch Stauraum für Vorräte. Die Küche wird mit Insel geplant, dabei kann auf der Insel das Kochfeld liegen, muss aber nicht.
Preisvorstellung (Budget): 11000
Angehängte Dateien
Hallo liebes Küchenforum,
eine Weile lese ich nun im Stillen mit und habe mir schon den ein oder anderen Tipp hier mitnehmen können. Aktuell stehe ich davor eine für Küche für meine Wohnung zu kaufen und diese dann zu vermieten, da ich mit meinem Partner zusammenziehen möchte. Ursprünglich habe ich die Küche für mich eingeplant, nun ziehe ich aber zu meinem Partner.
kurz zum Hintergrund:
Ich habe bereits einen Küchenvertrag mit einem Küchenstudio geschlossen für eine Nobilia Küche. 11.000€ darf das gute Stück Kosten - nun möchte ich für den potentiellen Mieter das meiste an Qualität rausholen und die Küche bestmöglich für diesen Preis ausstatten. Möglicherweise wird eins meiner Kinder die Wohnung mal bewohnen, aber das ist alles noch ungewiss (Studium, etc.). Der Preis ist recht fix, alternativ wäre nur Rücktritt gegen eine Gebühr von 3250€.
Hinweise zu den Unterlagen:
Wohnungsgrundriss: Hier ist gezeigt wie die Küche derzeit ungefähr montiert ist.
- Rot markiert ist eine Wand (Nicht-tragend), welche ich angedacht hatte rauszunehmen zugunsten einer offenen Küchengestaltung mit Insel.
- Blau markiert ist die Positionierung des Wasserventils.
- Orange markiert ist ein kleiner Heizkörper unter der Fensternische.
Vermaßungen:
Hier war bereits jemand zum Vermessen vor Ort, auf dessen Basis wurde bereits eine Version der Küchenplanung erstellt.
Geräte:
- Kühlschrank habe ich noch ein Standalone Gerät von Liebherr , aus Kostengründen würde ich diesen in der neuen Küche übernehmen. (Eckposition)
- Spülmachine von AEG (https://www.aeg.de/kitchen/dishwashing/dishwashers/built-in-dishwasher/eg5bvi/)
- Backofen von AEG (https://www.aeg.de/kitchen/cooking/ovens/oven/eb30m/)
- Kochfeld von Bora Puru
(https://www.bora.com/de-de/kochfeldabzugssysteme/pure)
Optik:
Fronten: Melaminfronten, weiß
Korpus: weiß
Arbeitsplatte : Dekor, Eiche Sierra
Nischenverkleidung : wie Arbeitsplatte, Eiche Sierra
Ich möchte eine robuste, pflegeleichte und möglichst neutrale Küche anschaffen. Für Vorschläge und Optimmierungsideen bin ich daher offen
Die Küche sollte in Wasseranschlussnähe Platz für ein Filtersystem bieten (ca. 30x40cm). Zudem würde ich gerne den Müll in die Küche integrieren, entweder als Auszugsschrank unter der Spüle oder in die Schrankflächen.
Hier meine konkreten Fragen:
a) Wenn das Bora Kochfeld auf die Insel kommt, wie viel Platz sollte man links und rechts daneben einplanen? Ich hätte eher auf der Fensterabgewandten Seite mehr Platz gelassen ca. 50cm um dort noch andere Dinge z.B.: Einkäufe abstellen zu können?
b) In die Insel hätte ich auch einen Auszug integriert für Bratöl etc. - sinnvoll?
c) Ich wollte ursprünglich neben den Backofen einen Apothekerschrank einbauen (30-40cm), nun überlege ich einfach einen normalen Geschirrschrank zu nehmen um dort Vorräte platzieren zu können. Bei Bedarf kann dann zu einem späteren Zeitpunkt ein Apothekerschrank nachgerüstet werden.
d) in der Wandecke befindet sich oben eine Öffnung für einen Abluftanschluss. Das Küchenstudio hat mir allerdings eine Planung mit Umluft nahegelegt. Sinnvoll?
e) die Optik des Bodens habe ich noch nicht entschieden, angedacht war Laminat - Gestaltung noch ungewiss - hier wäre ich auch für einen Tipp dankbar.
Ich habe 2 Entwürfe mit dem Nobilia Küchenplaner erstellt (siehe Anhang). Vom Küchenstudio wurde mir das Bora Kochfeld empfohlen - ein Kochfeld mit Wandabzug ist für mich auch denkbar und könnte auch an der Wandseite platziert werden.
Nun würde ich gerne einmal meine beiden Planungen mit euch teilen ein erstes Feedback abwarten. Ich freue mich über konstruktive Kritik und hifreiche Diskussion. Vielen Dank fürs lesen!
Liebe Grüße
Checkliste zur Kuechenplanung
Personenkriterien und Ergonomie
Anzahl Personen im Haushalt: 4
Davon Kinder: 2
Körpergrößen aller Hauptbenutzer in cm (wegen Arbeitshoehe): 180
Welche Arbeitshöhe ist angedacht (in cm)?: 91
Gebäudekriterien
Art des Gebäudes: Bestandsbau > (kleinere) Umbauten möglich, Eigentum
Bruestungshöhe des Fensters (in cm): 110
Fensterhöhe (in cm): 120
Raumhöhe in cm: 250
Heizung: Heizkörper wie im Grundriss
Sanitäranschlüsse: fix (Bitte Position im Grundriss vermaßt angeben)
Einbaugerätekriterien
Ausführung Kühlgerät: Stand-Alone bis 60cm Breite
Einbaukühlgerät Größe: N. a.
Ausführung Tiefkühl (TK)-Gerät: Im Kühlschrank ab 3 Schubladen unten
Dunstabzugshaube: Umluft
Hochgebauter Backofen : wenn möglich
Geplante Heißgeräte: Standmikrowelle, Backofen
Hochgebauter Geschirrspüler : nein
Art des Kochfeldes: Induktionskochfeld
Kochfeldbreite (ca. in cm): 80
Sitzmöglichkeiten
Sitzmöglichkeit in der Küche / im Küchenbereich: Keine
Sitzmöglichkeit: Für wieviel Personen?: nein
Sitzmöglichkeit: Tisch - wenn gesonderter Tisch oder offene Küche: Vorhandener Tisch
Gewünschte oder vorhandene Tischgröße: für 4-6 Personen
Wofür soll der Sitzplatz in der Küche genutzt werden und wie häufig:
Stauraum-Planung
Was steht auf der Arbeitsplatte oder soll dort stehen?: Kaffeevollautomat, Wasserkocher, Thermomix, Toaster, Obstschale
Welche weiteren Küchenmaschinen müssen in der Küche untergebracht werden: Handrührgerät, Mixer, Pürierstab, Eierkocher
Was soll in der Küche außer den Standards untergebracht werden: ALLE Vorräte
Welchen Stauraum gibt es sonst noch: Geschirr/Gläserschrank im Wohn-/Esszimmer, Keller
Kochgewohnheiten
Was/wie wird gekocht? (Alltagsküche, Menüs, Snacks usw): Alltagsküche, Frühstück
Wie häufig wird gekocht: (fast) täglich 1x warm
Wird alleine gekocht? Oder auch gemeinsam? Mit und für Gäste?: offen für alle Optionen
Spülen und Müll
Spülenform: 1 Becken mit Abtropffläche
Welche Mülltrennung soll in der Küche vorgehalten werden: Altpapier, Biomüll, Gelber Sack Müll, Restmüll
Sonstiges
Steht schon ein Küchenhersteller fest oder wird bevorzugt: Nobilia
Steht schon ein Gerätehersteller fest oder wird bevorzugt: Bora, AEG
Küchenstil: Klassisch
Was stört an der bisherigen Küche und was soll die neue Küche unbedingt können? Warum?: Bisherige Küche ist über 20 jahre alt und in die Jahre gekommen, sieht nicht mehr frisch aus.
Die neue Küche sollte Mülleimer integriert haben und Platz für eine Wasserfilteranlage bieten (ca. 30x40cm). Zudem benötigt die Küche am besten auch Stauraum für Vorräte. Die Küche wird mit Insel geplant, dabei kann auf der Insel das Kochfeld liegen, muss aber nicht.
Preisvorstellung (Budget): 11000
Angehängte Dateien
Anhänge
-
Grundriss Whg.png680,5 KB · Aufrufe: 105 -
Wand längs.png1,2 MB · Aufrufe: 102 -
wand quer.png1,2 MB · Aufrufe: 97 -
V1 Perspektive.png274,3 KB · Aufrufe: 94 -
V1_Grundriss.png72,2 KB · Aufrufe: 98 -
V1_Vogelperspektive.png293,2 KB · Aufrufe: 89 -
v2 grundriss.png81,4 KB · Aufrufe: 89 -
v2 perspektive.png774 KB · Aufrufe: 82 -
v2 vogelperspektive.png291 KB · Aufrufe: 100
