Unbeendet Zeile + Kochinsel + Highboards geplant für Haus-Neubau

Stephan1

Mitglied
Beiträge
4
Zeile + Kochinsel + Highboards geplant für Haus-Neubau

Hallo liebe Forumsmitglieder!

Ein tolles Forum mit vielen interessanten Anregungen und Meinungen für uns!

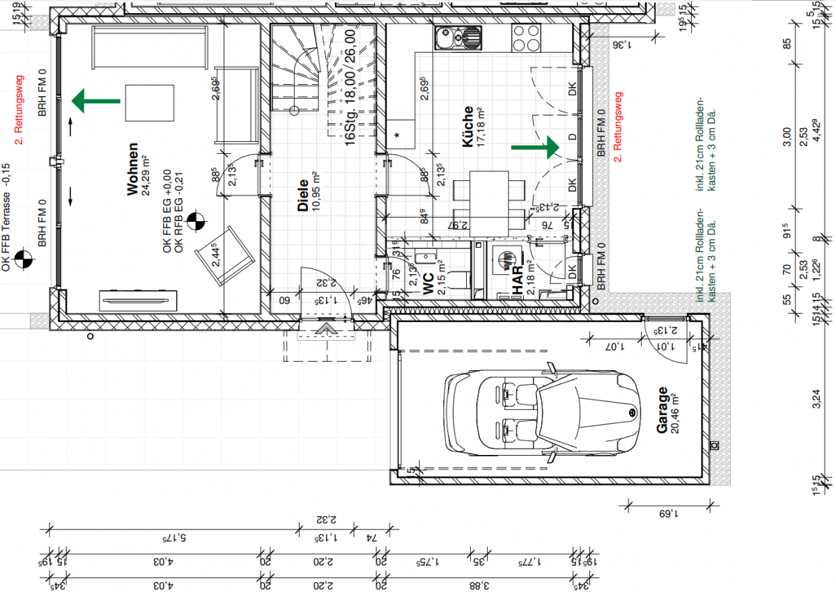
Wir lassen bauen. Bekommen unsere DHH mit separatem Küchenraum mit 3 bodentiefen Fenstern zum kleinen Hinten-Garten Anfang 2021. Vom Bauträger, wo man fast nichts ändern kann. Bald wird der Untergrund für die Bodenplatte (ohne Keller) vorbereitet und Abwasserleitungen darunter gelegt. Abwasser könnten wir vielleicht jetzt noch anders anordnen.
(Bisher war es festgelegt an der 3,88m-Wand (Norden, oben, ohne Tür, ohne Fenster) bei 2,58 m von der Treppenhaus-Wand (Westen, links) = 1,30 m von der Fenster-Wand (Osten, rechts).)

In den nächsten Tagen will der Bauträger von uns wissen, wo Kalt- und Warmwasser und Elektro platziert werden sollen.

- Funktioniert unsere Planung so?
- Sind die Durchgänge/ Abstände in der richtigen Größe?
- Sind 3 Blöcke (Zeile, Insel, Highboards) realistisch in diesem nicht allzu großen Küchenraum?
- 60er oder 90er Unterschränke?
- Vitrine so ok?

Mit leichtem Landhaus/ angedeutetem Rahmen in den Fronten,
möglichst in einfachem Lack matt,
z.B. Schüller Cambia/ Valletta/ Vienna oder Nolte Windsor oder Nobilia Sylt,
weiß oder hellgrau oder vielleicht auch helles pastellgrün,
Arbeitsplatte Schichtstoff , Farbe Holz/ mittelhelles Holz, z.B. rustikal, nicht zu dunkel.
Korpus und Sockel möglichst in Front-Farbe und ähnlichem Material.

Die Küche soll enthalten:
- hochgestellter Geschirrspüler in langer Zeile rechts, z.B. Siemens einfaches Modell, darunter 1 Auszug, schmal "gerahmt" in AP-Design 1,6 cm links+rechts+oben.
- Spüle Quadrat schwarz oder rund Edelstahl, einfache Bogen-Armatur, nicht herausziehbar,
- darunter Müll-Auszug z.B. 2 große Eimer,
- neben Spüle 20 cm breiter offener Korpus für ausziehbaren Doppel-Handtuchhalter,
- andere Unterschränke alle 60 cm breit (linke drei evtl. durch 2x90 ersetzen),
- Vitrinen-Matrix, Rasterbreite 40 oder 45 cm, Obere evtl. höher als Untere, Glas matt (Milchglas), aufgesetzt auf AP links (Alno -Planer: als Türen gezeichnet, da keine Vitrinen gefunden), ggf. mit Innenbeleuchtung,
- Regal-Brett von Vitrinen-Matrix bis rechte Wand, Tiefe Hälfte der Vitrinen oder weniger, Unterseite Beleuchtung für AP,
- von Arbeitsplatte bis zu diesem halbtiefen Brett Rückwand/Nische verkleiden im Design der Arbeitsplatte (dünnstes Wangen-Material),

- Insel: Kochfeld 60 cm breit, 4 Stellen, Induktion , Facettenschräge oder Metall-Leiste,
-- bewusst ohne jeglichen Luftabzug (Abluft baulich nicht möglich. Umluft benutzen wir bisher fast gar nicht.), 3 große Fenster daneben,
-- Kochfeld-Unterschrank 120 cm breit, mit Besteckschublade falls möglich,
-- Überstand hinten 40 cm (Richtung Highboards) für 3 niedrige Barhocker möglichst vollständig unter Platte,
-- Überstand rechts 60 cm (Richtung Wand) für 1 Barhocker,
-- Stützwangen an Frontseiten links und rechts, 5 cm Dicke nötig für Stabilität? Befestigung Insel? Verstärkung der großen Überstände wegen Schichtstoff?
-- Überstände bewusst selbe Höhe wie Arbeitsplatte. Keine Stufe!

- Highboards, schmal "gerahmt" in Front-Design 1,6 cm links+rechts+oben:
-- rechts: Kühlschrank (ohne Gefrier), darunter 1 Tür oder 1 Auszug,
-- Mitte: Gefrier (ggf. weniger Höhe als Kühlschrank), darunter 1 Tür oder 1 Auszug,
-- links: oben Mikrowelle , dann Backofen , darunter 1 Tür oder 1..2 Auszüge.

- überall Auszüge, außer ggf. in Highboards unter Geräten vielleicht Tür,

- Griffe irgendwie Landhaus, gern Schalen nach unten geöffnet (Landhaus) in Stahl-Farbe,

- Symmetrien nach Möglichkeit:
- Lange Zeile (Wand: 3,88 m): 20 cm Handtuchhalter neben Spüle ist die Mitte, links davon 3 x 60, rechts 3 x 60 cm; Ausgleichs-Passstücke linke und rechte Wand gleichmäßig verteilen (in Summe ca. 5 bis 8 cm);
- Insel: Kochfeld-Mitte in Flucht (selbe Position) mit Spülen-Mitte;
- Highboards: symmetrisch zu Insel, in Flucht (abzüglich Wangen); dafür fast an kleiner Tür zum Hausanschlussraum (HAR, Vorräte, Getränke, Gerätschaften).
- Insel mittig zwischen Langer Zeile und Highboards (Zimmer-Länge: 4,43 m),
- Insel ca. 98 bis 100 cm von Fenster-Wand bzw. Fenstern, damit mittleres noch voll aufgeht (Fensterrahmen 100 cm breit, Flügelbreite nicht bekannt).
Raumhöhe 2,55 m, Türhöhe 2,135 m, Fensterhöher 2,53 m.

Aus meinen mehreren Planungen in verschiedenen Planungsprogrammen hänge ich erst einmal folgendes an (Alno habe ich fürs Forum begonnen):
Grundriss Erdgeschoss mit Küche vermaßt, Nord
Küchengrundriss vermaßt, Nord
Alno1 - Grundriss (ohne Maße)
Alno1 - von Tür
KüQuelle1 60erUS 45erVitrin - von Tür
Schüller - Grundriss, Bemaßt
Nolte - Grundriss, Bemaßt
KüQuelle3 Ohne Brett 90erUS 45erVitrin NauticPine - Abwasser 2,58 ab Türwand (alternative Farben, alternative US-Breite)
KüQuelle3 Ohne Brett 90erUS 45erVitrin NauticPine - von Tür (alternative Farben, alternative US-Breite)
KüQuelle4 Ohne Brett 60erUS 60erVitrin NauticPine - Grundriss, Insel-Abstände (alternative Farben, alternative Vitrinen-Breite)

Wir freuen uns auf Eure Meinungen und Anmerkungen. Vielen Dank schon mal! LG, Stephan

Checkliste zur Küchenplanung

Personenkriterien und Ergonomie
Anzahl Personen im Haushalt:
3
Davon Kinder: 1
Körpergrößen aller Hauptbenutzer in cm (wegen Arbeitshöhe ): 179, 174
Welche Arbeitshöhe ist angedacht (in cm)?: 91 bis 93

Gebäudekriterien
Art des Gebäudes:
Neu-/Umbau > Planänderungen nicht möglich, Eigentum
Brüstungshöhe des Fensters (in cm): 0
Fensterhöhe (in cm): 253
Raumhöhe in cm: 253
Heizung: Fußbodenheizung
Sanitäranschlüsse: variabel an aktueller Wand

Einbaugerätekriterien
Ausführung Kühlgerät:
Integriert im Hochschrank (60cm)
Einbaukühlgerät Größe: Noch unbekannt
Ausführung Tiefkühl (TK)-Gerät: Eigenständiges Gerät bis 72 cm Höhe
Dunstabzugshaube: keine
Hochgebauter Backofen : ja
Geplante Heißgeräte: Einbaumikrowelle, Backofen
Hochgebauter Geschirrspüler : ja
Art des Kochfeldes: Induktion
Kochfeldbreite (ca. in cm): 60

Sitzmöglichkeiten
Sitzmöglichkeit in der Küche / im Küchenbereich:
Überstehende Arbeitsplatte
Sitzmöglichkeit: Für wieviel Personen?: Für 3 Personen
Sitzmöglichkeit: Tisch - wenn gesonderter Tisch oder offene Küche: Keiner
Gewünschte oder vorhandene Tischgröße:
Wofür soll der Sitzplatz in der Küche genutzt werden und wie häufig:
Schnelles Frühstück 6x/Woche, evtl. schnelles Abendbrot 4x/Woche; Mit Freunden was Trinken/Naschen 1x/Woche; Freunde zuschauen beim Kochen 1x/Woche; Sitzen beim Schnippeln 1x/Woche

Stauraumplanung
Was steht auf der Arbeitsplatte oder soll dort stehen?:
Wasserkocher, Obstschale
Welche weiteren Küchenmaschinen müssen in der Küche untergebracht werden: N. a.
Was soll in der Küche außer den Standards untergebracht werden: Geschirr komplett (nichts in Ess-/Wohnzimmer)
Welchen Stauraum gibt es sonst noch: Hauswirtschaftsraum

Kochgewohnheiten

Was/wie wird gekocht? (Alltagsküche, Menüs, Snacks usw): Alltagsküche
Wie häufig wird gekocht: (fast) täglich 1x warm
Wird alleine gekocht? Oder auch gemeinsam? Mit und für Gäste?: Meist allein; 1x/Woche zu zweit (Vorbereiten/Kochen); 1x/Monat Pizza machen mit Freunden

Spülen und Müll

Spülenform: Noch nicht festgelegt
Welche Mülltrennung soll in der Küche vorgehalten werden: Biomüll, Gelber Sack Müll

Sonstiges

Steht schon ein Küchenhersteller fest oder wird bevorzugt: Haltbar, Angenehm, untere Mittelklasse (Schüller C1 (Haben wir derzeit), Nolte, Nobilia)
Steht schon ein Gerätehersteller fest oder wird bevorzugt: dt. "Marke": z.B. AEG reicht f. Ofen+Kochfeld, GS Siemens
Küchenstil: Landhausküche
Was stört an der bisherigen Küche und was soll die neue Küche unbedingt können? Warum?: (Maßgeschneiderte in Alt-Wohnung bleibt für Nach-Bewohner (viel Wandverkleidung + AP-Tisch): 2013 Schüller C1 Strukturlack Magnolie + AP Wenge Havanna ist schön, Halbinsel auch; aber wir würden gern eine Abwechslung versuchen.) Runde Insel-Umlufthaube zu laut, nicht benutzt, weglassen (neu 3 Fenster).
Preisvorstellung (Budget): 11.000 - 15.000

Angehängte Dateien
 

Anhänge

  • Grundriss Erdgeschoss mit Küche vermaßt, Nord.PNG
    Grundriss Erdgeschoss mit Küche vermaßt, Nord.PNG
    593,5 KB · Aufrufe: 287
  • Küchengrundriss vermaßt, Nord.PNG
    Küchengrundriss vermaßt, Nord.PNG
    343,3 KB · Aufrufe: 297
  • Alno1 - Grundriss.JPG
    Alno1 - Grundriss.JPG
    75,3 KB · Aufrufe: 318
  • Alno1 - von Tür.JPG
    Alno1 - von Tür.JPG
    73,5 KB · Aufrufe: 310
  • KüQuelle1 60erUS 45erVitrin - von Tür.JPG
    KüQuelle1 60erUS 45erVitrin - von Tür.JPG
    90 KB · Aufrufe: 318
  • Schüller - Grundriss, Bemaßt.jpg
    Schüller - Grundriss, Bemaßt.jpg
    76,3 KB · Aufrufe: 326
  • Nolte - Grundriss, Bemaßt.jpg
    Nolte - Grundriss, Bemaßt.jpg
    69,9 KB · Aufrufe: 295
  • KüQuelle3 Ohne Brett 90erUS 45erVitrin NauticPine - Abwasser 2,58 ab Türwand.JPG
    KüQuelle3 Ohne Brett 90erUS 45erVitrin NauticPine - Abwasser 2,58 ab Türwand.JPG
    108,7 KB · Aufrufe: 280
  • KüQuelle3 Ohne Brett 90erUS 45erVitrin NauticPine - von Tür.JPG
    KüQuelle3 Ohne Brett 90erUS 45erVitrin NauticPine - von Tür.JPG
    82,3 KB · Aufrufe: 254
  • KüQuelle4 Ohne Brett 60erUS 60erVitrin NauticPine - Grundriss, Insel-Abstände.JPG
    KüQuelle4 Ohne Brett 60erUS 60erVitrin NauticPine - Grundriss, Insel-Abstände.JPG
    78,6 KB · Aufrufe: 229
Zuletzt bearbeitet:
Hallo und herzlich willkommen.

Der viele text ist für mich zu unübersichtlich. Es wäre gut, wenn du layout Diskussion und optik trennen würdest, da letzteres für die Planung weniger wichtig ist. Auch Details wo Glas oder nicht, ist im moment nicht so wichtig.

Ich verstehe zb diesen Satz nicht
(Bisher war es festgelegt an der 3,88m-Wand (Norden, oben, ohne Tür, ohne Fenster) bei 2,58 m von der Treppenhaus-Wand (Westen, links) = 1,30 m von der Fenster-Wand (Osten, rechts).)
verstehe ich nicht, was du sagen willst.

Zur Info, wir reden bez Richtung von planoben, planunten, planrechts und planlinks auf den eingestellten EG Plan, Himmelsrichtungen helfen uns weniger.

Der Raum ist 388 x 442 groß und du willst 3 Zeilen stellen.

Beschreibe deinen Zeilen so, dass jeder es versteht, zB planoben links beginnend

Blende
60er US
80er US
60er US mit Spüle
......
Ich habe jetzt nur willkürliche Schrankbreiten gewählt. Wenn das "gerüst" steht, die Rasterung usw

Landhausküchen sind teuer, €11k reichen nicht.
 
.. und kann man in der Küche nicht eine Schiebetüre zum Garten UND zum Kabuff mit der WaMa einbauen?

natürlich 'kann' man es so machen wie ihr euch das plant - wirklich praktisch und viel Stauraum gibt das alles aber nicht.

Und ob man im Alltag wirklich wie die Hühner auf der Stange sitzen will, am Fettverspritzten Kochfeld???

und das Kabuff als HWR zu bezeichnen ist Trumpscher Grössenwahn.
 
Danke für die Anmerkungen. Sorry für viel Text.
In den 388 x 442,9 cm großen Raum sollen 3 Zeilen:
1) planoben Wand, von planlinks:
Blende,
3 x 60er US,
20er Handtuchhalter offen,
60er US mit Spüle,
60er US,
60er GS hoch + 1,6 cm Wangen,
Blende.
+ darüber 1. Reihe, von planlinks:
Blende,
40er Aufsatz-Hängeschrank,
80er Aufsatz-Hängeschrank,
Brett bis planrechte Wand.
+ darüber 2. Reihe, von planlinks:
Blende,
40er Hängeschrank,
80er Hängeschrank.

2) Raummitte, von planlinks:
109 cm Durchgang von Tür,
5 cm Wange,
60 cm AP ohne US,
120er US mit Induktionsfeld (40 cm Überstand nach planunten, zwischen Wangen),
5 cm Wange,
89+6 cm Durchgang bis Fenster.

3) planunten Wand, von planlinks:
111 cm frei,
1,6 cm Wange,
60er Highboard mit Kühlschrank,
60er Highboard mit Gefrierschrank,
60er Highboard mit Mikrowelle + BO,
1,6 cm Wange,
80 cm Tür zum Hausanschlussraum,
15 cm frei.

Esstisch im Wohnzimmer planunten.
Räume, Türen, Fenster leider nicht veränderbar beim Bauträger.
Abwasser bisher planoben Wand von planlinks 258 cm.
 

Anhänge

  • Alno1 KPL.KPL
    3,6 KB · Aufrufe: 124
  • Alno1 POS.POS
    9 KB · Aufrufe: 119
Zuletzt bearbeitet:
Was meint ihr? Sind
113 cm Durchgang planoben genug (mit z.B. Müllauszug von der Wand-Zeile planoben oder 120er Töpfe-Auszug von der Insel)?
Ebenso 113 cm planunten (mit Kühlschrank, Backofen und evtl. gleichzeitig Sitzen)?
109 cm Durchgang planlinks ohne Funktionen, ohne Sitzen sollten so ausreichen, oder?
Planrechts am Fenster muss man nicht so oft durch, circa 90 cm sollten reichen. (Dass mittlerer Fensterflügel gerade so aufgeht. Dieser ist wohl eh nur der Zweit-Flügel des planunten Fensterflügels.)
 
Wenn das Kochfeld in Betrieb ist, hat man eigentlich keine Lust, sich neben das Fett zu setzen, insbesondere ohne Haube.

ich würde das Ganze etwas anders aufteilen und zwar so, dass es für die Person, die darin arbeiten darf, angenehmer ist.

Einmal hätte ich keine Lust, eine Insel zu umkreisen, um an den KS zu gelangen, ein Backblech zu entnehmen oder eine Tasse heisse Milch durch den Raum zu tragen. Ich habe eine Insel. Aber bei mir sind die wichtigen Dinge griffbereit, zB der KS in Spülennähe.

Und für Pizza braucht man Platz, viel Platz, wenn's nicht nur eine sein soll. Auch die mache ich auf meiner "nackten" Insel.

Man braucht keinen 40cm Überstand für eine Theke, bei mehr als 30cm muss die Platte unterstützt werden. Auch fehlt für 40cm der Platz.

Und wenn ich nur Geld für 2 Geräte in der Küche hätte, wäre das 2. eine sehr gute Haube über dem Kochfeld. Oder ich benutze das Kochfeld nicht zum Fleisch braten. Hochgebauter GSP bräuchte ich nicht, eine Haube ist sehr viel wichtiger. Denn ein hochgestellter GSP braucht eine Deckseite, damit er nicht rausfällt, und die sind nicht billig.

Stephan1.PNG Stephan11.PNG stephan2.PNG

OS nach Wunsch. In der Insel habe ich 2 x 60er US geplant, denn 120er US blockiert die ganze Insel. Wenn eine 2. Person etwas entnehmen will, muss die erste Person wegtreten. Wenn man 2 x 60er nimmt, kann man den Stauraum so aufteilen, dass man nicht unbedingt immer alle Auszüge blockiert. Aber du kannst es machen, wie es dir gefällt, eine Stauraumplanung hilft.

3 Stühle nebeneinander ist wie Vögel aufgereit auf einer Leine, man kann sich schlechter unterhalten.

Zeilenabstand nach planoben 110cm? Die Auszüge stehen 45cm in den Raum.

Ich plane mit der 15b Version, die gibt es im downloadbereich. Mit höheren Versionen kann man meine Planung nicht öffnen.
 

Anhänge

  • stephan-evelin-PLAN1.KPL
    3,9 KB · Aufrufe: 124
  • stephan-evelin-PLAN1.POS
    8,6 KB · Aufrufe: 121
Vielen lieben Dank, Evelin, für deine Hinweise und deine Planung! Das sieht sehr praktisch und nach guten Arbeitsabläufen aus. Wir werden darüber nachdenken. Auf die Schnelle findet meine bessere Hälfte unser bisheriges Layout vom Aussehen her weiterhin gut und meint, dass wir mit weiten Wegen leben könnten.
Fürs Schnippeln und Kochen denken wir, die Lebensmittel aus dem KS auf die Insel zu legen und dann schrittweise zu benutzen. Das sind wir zumindest aus unserer jetzigen Küche gewohnt, wo KS und BO aus Platzgründen hinter einer Kochfeld-Halbinsel (beim Esstisch) liegen, um die wir herumgehen müssen.

Nackte Insel wäre natürlich besser zum Arbeiten und Essen.
Sie wünscht sich bisher weiterhin, dass das Kochfeld nicht an die Wand kommt. Fettspritzer/ Sitz-Gemütlichkeit am Kochfeld müssen wir nochmal bedenken. Fleisch Braten oder Fettiges in der Pfanne machen wir selten, eher Zubereitung im Backofen .

Für eine evtl. Haube an der Decke (wenn, dann wohl leider nur Umluft möglich, da leider vom Bauträger keine Abluft vorgesehen) würde ich zumindest Strom mit Abdeckdose vorsehen. Die sollte man doch problemlos nachrüsten können bei Bedarf. Die Decke ist ja nicht abgehängt, sondern Stahlbeton.
"Hühner auf der Stange" / "Vögel auf einer Leine" - Vielleicht stellen wir erst einmal an die planunten Seite der Insel nur 2 statt 3 Hocker und wie geplant 1 Hocker für planoben planlinks vom Kochfeld-US. Die Insel-Giebel hatten wir bewusst mit (Stütz-)Wange geschlossen, damit Insel von Seite etwas massiver aussieht und keiner im Durchgang sitzt.

Hochgebauten GSP empfinden wir derzeit sehr, sehr angenehm, auch wenn er Arbeitsfläche klaut. Da auch über unserem jetzigen Hoch-GSP nur Arbeitsplatte ist, kann man schön beim Ein- oder Ausräumen kurz was abstellen darauf.

Insel-US 2x60 statt 120 ist ein sehr guter Punkt. Das Im-Weg-Stehen merken wir schon derzeit an einem nur 90er US mit Haupt-Besteckschublade unter Kochfeld, wenn einer kocht.

Hast du für die Mikrowelle über BO absichtlich eine Lifttür gewählt? (Oder nur als Beispiel?) Hat die mehr Vorteile, als ein billigeres MW-Standgerät zu verstecken? (Gegen Preis von Front und Scharnieren.) Bei Einbau-MW spar ich mir bei vollen Händen das Lifttür-Öffnen. KFB z.B. erwähnt die mechanische Belastung der Scharnier-Verankerung bzw. Scharniere. Ggf. lässt man solche Lifttüren auf die Schnelle dann einfach länger/ dauerhaft offen, was mir bei OS-Lifttüren bei Freunden mit wenig Zeit auffällt (nicht so schön).

Wir überlegen mal noch weiter. Danke erst einmal!
 
Zuletzt bearbeitet:
vom Ablauf her ist diese Reihenfolge praktisch

Lebensmittel aus dem KS entnehmen, links von der Spüle ablegen, waschen, rechts von der Spüle schneiden, rein in den Topf, links vom Kochfeld servieren. Oben eben gespiegelt. Man spart Lauferei.

Gut ist auch ein 2-Zeiler, im Rücken die HS, auf der anderen Zeile/Insel, waschen, schneiden, kochen. Dafür brauch man aber min 320cm Platz.

Man kocht wenig (Zeitaufwand) auf dem Kochfeld, bei Induktion muss alles vorbereitet werden. Der Rest bei mir und anderen, läuft über timer. Ich stehe nicht am Kochfeld und beobachte, wie die Kartoffeln oder Nudeln kochen, dito Fleisch, zB steak. Ich weiß genau, wie lange es dauert bis mein Nudelwasser heiß wird, ich weiß genau wie lang ich selbige kochen muss. Alles per timer. Wo ich anfangs dabeistehe ist, wenn ich zB Fleisch für Gulasch anbrate. Aber sowas mache ich nicht jeden Tag. Ich bereite viel im BO zu, Reiskocher, Dampfdrucktopf.

Ob ihr eine Standmikro hinter Lifttür nehmt oder ein Einbaugerät, ist an sich egal. Ich finde halt, es einfacher eine Standmikro zu erneuern als ein Einbaugerät, dass dann vielleicht nicht mehr zum BO passt und auch teurer ist. Ich würde die Nische aber so groß machen, dass ein 2. Einbaugerät, was auch immer reinpasst. Diese Kompaktgeräte sind gewöhnlich 45cm hoch.
 
Zuletzt bearbeitet:

Ähnliche Beiträge

Neff Hausgeräte Ballerina Küchen Blum Bewegungstechnologie Weibel - Intelligente Küchenlüftung

Neff Spezial

Blum Zonenplaner

Weibel Abluft-Tuning

Weibel Abluft-Tuning
Zurück
Oben