Unbeendet Offene Wohnküche mit kleineren Umbaumaßnahmen

minimalist

Mitglied
Beiträge
23
Liebes Küchen-Forum,


seit einiger Zeit beschäftigen wir - eine Familie aus NRW - uns intensiv mit der Neuplanung unserer Küche. Wir waren schon in vielen Studios zur Inspiration und haben uns bisher zwei Mal beraten lassen (weitere Beratungen folgen in den nächsten Wochen). So richtig optimal fanden wir bisher keinen Vorschlag, weshalb wir nun einen ersten eigenen Entwurf geplant haben. Hierbei haben wir versucht, möglichst viele der super hilfreichen Tipps aus diesem Forum zu berücksichtigen :top: Danke an dieser Stelle für die genialen Anregungen, auf die wir sonst nie gekommen wären!

Hier noch ein paar ergänzende Hinweise zur Planung:


  • Es handelt sich um einen hellen, offenen Wohnraum mit Küchennische. Die Nische hat aus unserer Sicht schlechte Planungsmaße, da sie sehr schmal ist.
  • Das Abluftrohr (leider nur 10 cm) befindet sich in der Decke über der Halbinsel (in unserem Entwurf ist dort die Abkofferung mit Licht). Das Rohr geht gerade durch das Dach nach oben (ca. 1m).
  • Im Vergleich zur jetzigen Situation würden wir gerne Kochstelle und Spülbereich tauschen, um eine Arbeitsinsel zu schaffen.
  • Alle bisherigen Entwürfe der Studios wurden als U geplant. Unsere Idee ist, die zwei Hochschränke mit KGK und BO als zweite Zeile zu planen und mit einer Wange optisch zu verstecken.
  • Wir wollen die Küche in den Wohnraum hineinziehen, um zusätzlichen Stauraum zu gewinnen, der vom Wohnbereich zugänglich ist. So lässt sich auch elegant die tote Ecke zwischen Küchenzeile und Halbinsel als Stauraum nutzen.
  • Wir haben auf Eckschränke, Lemans etc. verzichtet, da wir viel über tote Ecken gelernt haben :-)
  • In der zum Wohnraum gewandten Seite der Halbinsel wollen wir einen zweiten Kühlschrank für Getränke integrieren.
  • Die Abkofferung an der Decke ist noch nicht vorhanden und müsste mit gebaut werden.
  • Als Fronten wollen wir pflegeleichte Kunststoff/Melamim Fronten verwenden. Im Küchenbereich klassisch weiß und zum Wohnraum hin als Kontrast in einem dunklen Anthrazit oder Grafit.
  • Alternativ würden wir die Korpen gerne mit einem eigenen Schichtstoff versehen lassen, den wir bei unseren restlichen, geschreinerten Möbeln, genutzt haben.
  • Da unsere restliche Wohnung schnörkellos und modern eingerichtet ist, streben wir das auch für die Küche an.

Fragen, die uns zurzeit beschäftigen:


  • Wir stehen vor der Entscheidung: Abkofferung mit drei 90 Grad Winkeln und neue Einbauhaube weiterhin mit Abluft betreiben oder Abluftrohr verschließen und auf Umluft umstellen? Bei - Bei Umluft besteht das Problem mit der Feuchtigkeit aber wir haben im Wohnraum sehr viele Fenster und Lichtkuppeln, die sich öffnen lassen. Wenn man ausreichend lüftet, sollte das doch gehen, oder? In vielen Threads wird Abluft favorisiert, aber durch das 10cm Rohr ist die Leistung bisher auch sehr bescheiden gewesen.
  • Welche Einbauhauben bieten das beste Preis-Leistungs-verhältnis? Im Blick haben wir bisher Berbel , O + F und Gutmann .
  • Zwischen den beiden Hochschränken und der langen Küchenzeile ist nur rund 80cm Platz. Nicht ideal, aber reicht das vielleicht aus?
  • Welche Kühlschränke eignen sich für die Integration in Unterschränke? Das 88cm Nischenmaß ist ja zu hoch für eine 90cm Arbeitshöhe . Nimmt man dafür ein Unterbaugerät und stellt es in einen Korpus mit Tür?
  • Verlegt man die Spüle, müssen ja auch die Zu- und Abwasserschläuche verlegt werden. Reicht dafür der Platz hinter und zwischen den Unterschränken, oder muss man die Korpen vorziehen und die APL tiefer machen?
  • Liefern Häcker , Nieburg und Leicht auch "nackte" Möbel, die dann vom Küchenstudio mit dem eigenen Schichtstoff bezogen werden? Gibt es Erfahrungswerte, wie sich das preislich niederschlägt?

So... das waren die Dinge, die uns zunächst eingefallen sind. Ich hoffe, ihr seid nicht erschlagen von dem langen Text. Wer bis hierher gelesen hat: Danke :-)

Die Alno -Entwürfe und die Bilder hänge ich an diesen Beitrag dran und hoffe, dass das direkt klappt. Es wäre toll, wenn wir ein paar Anregungen und Einschätzungen von euch bekommen könnten.

LG
Minimalist


Checkliste zur Küchenplanung von minimalist

Anzahl Personen im Haushalt : 3
Davon Kinder? : 1
Körpergrössen aller Hauptbenutzer (wegen Arbeitshöhe) in cm : 178, 161
Art des Gebäudes? : Bestandsbau, (kleinere) Umbauten möglich
Brüstungshöhe des Fensters (in cm) : kein Fenster in der Küchennische
Fensterhöhe (in cm) : -
Raumhöhe in cm: : 275
Heizung : Keine Heizung
Sanitäranschlüsse : fix
Ausführung Kühlgerät? : Integriert im Hochschrank (60cm)
Kühlgerät Größe : bis 175 cm Höhe
Ausführung Tiefkühl (TK)-Gerät : Im Kühlschrank ab 3 Schubladen unten
Dunstabzugshaube? : Abluft
Hochgebauter Backofen ? : Ja
Hochgebauter Geschirrspüler ? : wenn möglich
Kochfeldart? : Induktion
Kochfeldbreite ca. (in cm)? : 80
Spülenform: : 1,5 Becken ohne Abtropffläche
Weitere geplante Heißgeräte : Standmikrowelle
Küchenstil? : grifflos
Sitzmöglichkeit in der Küche / im Küchenbereich als : Keine
Sitzmöglichkeit: Für wieviel Personen? : nein
Sitzmöglichkeit: Tisch - wenn gesonderter Tisch oder offene Küche : Keine
Gewünschte o. vorhandene Tischgröße : -
Wofür soll der Sitzplatz in der Küche genutzt werden? Wie häufig? : -
Welche Arbeitshöhe ist angedacht (in cm)? : 90
Was steht auf der Arbeitsplatte oder soll dort stehen? : Kaffeemaschine, Obstschale
Welche weiteren Küchenmaschinen müssen in der Küche untergebracht werden? : Wasserkocher, Toaster, Handrührgerät, Mixer, Pürierstab, Eierkocher
Was soll in der Küche außer den Standards untergebracht werden? : ALLE Vorräte, Getränkekisten, Bügelbrett, Geschirr komplett (nichts in Ess-/Wohnzimmer)
Welchen Stauraum gibt es sonst noch? : Keller
Was/wie wird gekocht? (Alltagsküche, Menüs, Snacks usw) : Ganztägig Babynahrung und abends täglich warme Gerichte.
Wie häufig wird gekocht? : (fast) täglich 1x warm
Wird alleine gekocht? Oder auch gemeinsam? Mit und für Gäste? : Zu zweit und mit Freunden
Was stört an der bisherigen Küche und was soll die neue Küche unbedingt können? Warum? : Die bisherige Küche ist eine Ansammlung aus der Studentenzeit. Da wir viel und gerne kochen, soll die neue Küche gute E-Geräte beinhalten. Aufgrund des offenen Wohnraumes soll die Küche sich gut in den Wohnraum integrieren und mehr nach Möbel als nach Küche aussehen.
Steht schon ein Küchenhersteller fest oder wird bevorzugt? : Erste Planungen erfolgten mit Häcker (Systemat) und Nieburg (Linie 75). Andere Hersteller kommen aber auch in Frage.
Steht schon ein Gerätehersteller fest oder wird bevorzugt? : Miele (Backofen oder BO-DG-Combi sowie Kühl-Gefrier-Kombi), Neff (Induktion und GSP)
Preisvorstellung (Budget) : bis 15.000,-
 

Anhänge

  • v3-ansicht-spuele.jpg
    v3-ansicht-spuele.jpg
    47,3 KB · Aufrufe: 277
  • PLAN-Minimalist-V9-forum.POS
    11,9 KB · Aufrufe: 261
  • PLAN-Minimalist-V9-forum.KPL
    3,9 KB · Aufrufe: 267
  • v3-ansicht-ansicht-aus-wohnraum-links.jpg
    v3-ansicht-ansicht-aus-wohnraum-links.jpg
    39,1 KB · Aufrufe: 288
  • v3-ansicht-aus-wohnraum.jpg
    v3-ansicht-aus-wohnraum.jpg
    40,8 KB · Aufrufe: 282
  • v3-ansicht-hochschraenke.jpg
    v3-ansicht-hochschraenke.jpg
    47 KB · Aufrufe: 280
  • v3-ansicht-kochzeile.jpg
    v3-ansicht-kochzeile.jpg
    44,2 KB · Aufrufe: 286
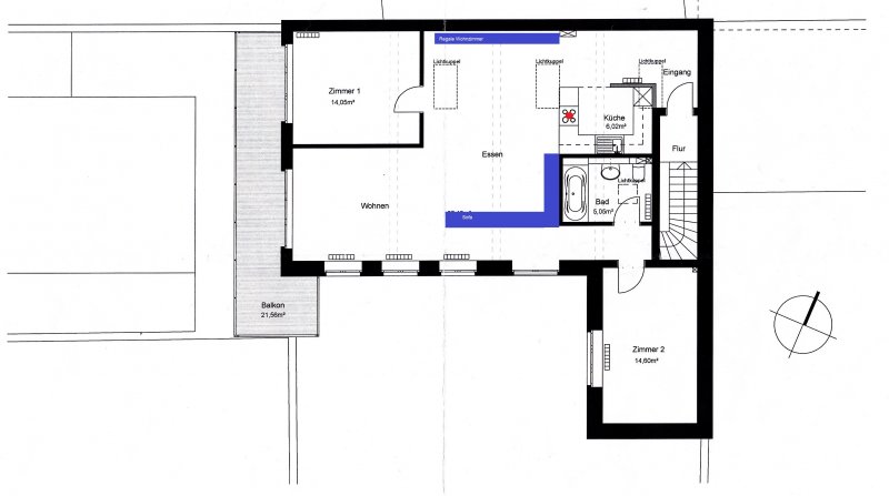
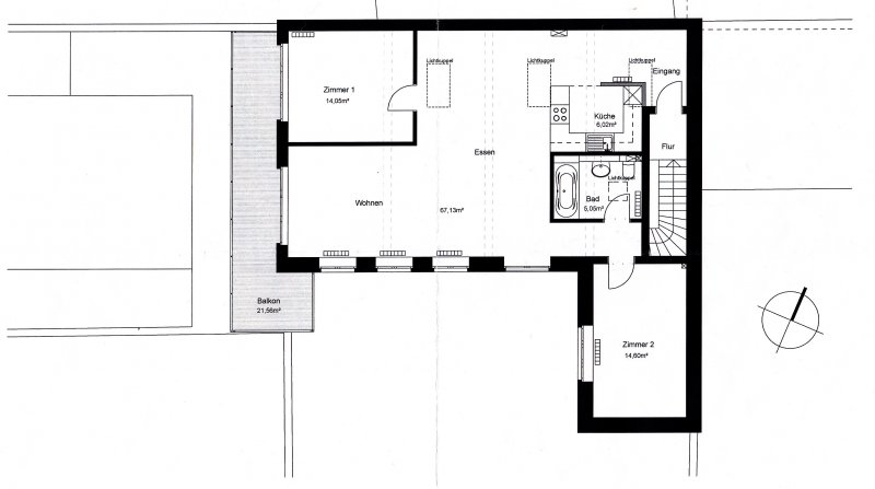
  • grundriss-kueche-minimalist.jpg
    grundriss-kueche-minimalist.jpg
    92,1 KB · Aufrufe: 793
  • grundriss-wohnung-minimalist.jpg
    grundriss-wohnung-minimalist.jpg
    36,8 KB · Aufrufe: 294
AW: Offene Wohnküche mit kleineren Umbaumaßnahmen

Guten Morgen,
eine tolle Vorstellung :-).
Der Raum ist echt nicht einfach, mit dem was ihr wollt ist der bisherige Küchenbereich viel zu klein, auch 80cm halte ich für viel zu schmal.
mmh ich glaube fast ihr müsstet die bisherige Planung etwas auflockern.
Ist das Mäuerchen rechts schon vorhanden? Könnte man es wegnehmen?

LG, Muckelina

PS wir haben Nieburg und sind sehr zufrieden haben auch Sondermasse ohne gravierenden Aufpreis bekommen unser :kfb: war aber auch sehr unkompliziert :tounge:
 
AW: Offene Wohnküche mit kleineren Umbaumaßnahmen

Moin, herzlich Willkommen hier im Forum! :welcome:

Ich hab grad keine Zeit richtig zu planen, aber wie wäre es mit einer freistehenden Insel? Wenn das Mäuerchen wegkönnte wäre es ideal, wenn es bleiben müsste, sie vielleicht ein kleines Stück erweitern und an die Insel andocken.


So in etwa... Bitte nicht auf die Schrankaufteilung achten, hab schnell das genommen was im Grundriss schon eingefügt war. ;-)
 

Anhänge

  • minimalist.JPG
    minimalist.JPG
    38 KB · Aufrufe: 240
AW: Offene Wohnküche mit kleineren Umbaumaßnahmen

Guten Morgen Muckelina und Conny,

danke für eure schnellen Antworten, die nette Begrüßung und die guten Hinweise! :-)

Ja, der Raum ist echt nicht einfach. Erschwerend kommt hinzu, dass das angrenzende Wohnzimmer schon fertig eingerichtet ist und wir da nicht viel verändern wollen und können. Rechts bei dem kleinen Mäuerchen steht z.B. ein riesiges Sofa, welches wir nicht anders stellen können. Es bleibt uns also nur die Option, in der Tiefe ein Stück aus der Nische herauszurücken.

Die Idee mit der Insel als Auflockerung finde ich prinzipiell gut. Das werde ich mal in Ruhe im Alno -Planer testen, ob der Raum das her gibt. Ich fürchte aber, dass das nicht gehen wird :(

Was die 80 cm Raum zwischen den Zeilen betrifft: Wir haben gestern zum Test unseren freistehenden Kühlschrank so gestellt, dass es der Situation in meiner Planung entspricht. Die Fläche zwischen den Zeilen ist zwar etwas schmal, man kann aber noch ganz gut hantieren. Da wir beide schmal gebaut sind, würde das also funktionieren ;-)

LG
Minimalist
 
AW: Offene Wohnküche mit kleineren Umbaumaßnahmen

Rechts bei der kleinen Mauer ein Riesensofa?

Wenn wir von Richtungsangaben reden, beziehen wir uns immer auf die Grundrissansicht. Daher kann ich mir nicht vorstellen, wo rechts ein Sofa stehen soll.

Wenn in offenen Räumen andere Einrichtungsgegenstände feststehen, ist es immer sinnvoll, diese kurz in den Plan mit Größenmaßen einzuskizzieren.

An der Küchentrennwand nach planoben ist lt. Grundrisszeichnung ein Heizkörper Richtung Flur - oder?

Die 80 cm in der bisherhigen Planung vor den Hochschränken empfinde ich nicht als ideal, bei der Aufteilung wären sie aber akzeptabel.

Zur Abluft, wenn sich da keine Variante ergibt, das Abluftloch größer als 10 cm zu machen, würde ich auch auf Umluft wechseln.

In der einen Planung hattest du unter der Decke eine Verkleidung nach planoben gemacht ... sollte das irgendwie Abluftverkleidung sein? Vielleicht kannst du auch nochmal die Position des Abluftloches im Grundriss einzeichnen.

EDIT:
Und eine Bitte, zu einer Alnoplanung gehört auch immer eine Grundrissansicht aus dem Alnoplaner.
 
AW: Offene Wohnküche mit kleineren Umbaumaßnahmen

Hallo Kerstin,
lieben Dank für Deine Tipps und Einschätzungen - vor allem zur Abluft! Zu Deinen Fragen:
- Ja, an der Küchentrennwand ist ein Heizkörper auf der Seite des Flures. Die Wand ist nicht versetzbar.
- Die Verkleidung nach oben ist eine von mir geplante Verkofferung zur Abführung der Abluft. Das Abluftrohr sitzt dort, wo in unserem Wohnungsgrundriss das Kochfeld eingezeichnet ist. Ich hänge einen neuen Grundriss an, auf dem das Abluftrohr mit einem roten Punkt vermerkt ist und die Möbel in Blau. Da die Verkofferung nicht unbedingt zur Schönheit der Küche beiträgt, wäre das noch ein Argument zur Umstellung auf Umluft ;-)
- Die Grundrissansicht aus dem Alno -PLaner hänge ich auch an... die hatte ich vergessen beim ersten Posting.
LG
Minimalist
 

Anhänge

  • grundriss-kuechenplanung-2.jpg
    grundriss-kuechenplanung-2.jpg
    32,7 KB · Aufrufe: 711
  • grundriss-wohnung-minimalist-mit-moebeln.jpg
    grundriss-wohnung-minimalist-mit-moebeln.jpg
    37,9 KB · Aufrufe: 282
AW: Offene Wohnküche mit kleineren Umbaumaßnahmen

Was bedeuten die blauen Balken? Ich kann leider nicht lesen, was da drinnen steht. Wie ist der Raum möbliert? Kannst du bitte ein Skizze anlegen.
 
AW: Offene Wohnküche mit kleineren Umbaumaßnahmen

Hallo Conny,

da wurden die Bilder beim Upload scheinbar verkleinert. Die blauen Balken sollen einen Eindruck der Möbel geben. Die blauen Balken in L-Form sind das Sofa und an der oberen Wand des Wohnungs-Grundrisses befinden sich die Regale im Wohnraum.

LG
Minimalist
 
AW: Offene Wohnküche mit kleineren Umbaumaßnahmen

Das Sofa hat aber eine geringe Sitztiefe...;-) Wo steht der Esstisch und wie groß ist er? Es fehlt auch noch ein genau vermaßter Grundriss vom gesamten Raum. Der Grundriss ist im Alnoplaner zu klein angelegt, bei einem offenen Grundriss, sollte man, soweit der Alnoplaner es zulässt, den gesamten Raum anlegen.
 
AW: Offene Wohnküche mit kleineren Umbaumaßnahmen

Ja, Esstisch und echte Sofamaße würden mich auch interessieren. Die Position finde ich ja für den Raum sehr ungewöhnlich. Was passiert denn mit dem linken Teil?

In deiner Planung würde das Sofa ja dann gleich neben der Küchenhalbinsel anfangen - oder?

Wenn die Abluft nicht vergrößerbar ist, dann würde ich auf Umluft gehen.
 
AW: Offene Wohnküche mit kleineren Umbaumaßnahmen

Hallo Conny und Kerstin,

ich hatte bei meiner Planung erst mit Sketchup angefangen, um auch Sofa und andere Einrichtungsgegenstände besser darstellen zu können. Habe mich dann lieber auf die reine Küchenplanung mit dem Alnoplaner beschränkt, weil mir das zunächst wichtiger war, um hier überhaupt was einstellen zu können :-)

Da ich zurzeit unterwegs bin, werde ich mich erst nächste Woche dran setzen können, um den gesamten Raum anzulegen.

LG
Minimalist
 
AW: Offene Wohnküche mit kleineren Umbaumaßnahmen

Der wird eh nicht ganz in den Alnoplaner passen.

Ein paar Erläuterungen zu Essen/Sofa etc. wären schon jetzt ganz nett .. und, evtl. hast du ja eine vermaßte Sketchup-Aufsicht um sie als Bild oder PDF-Ausdruck anzuhängen.
 
AW: Offene Wohnküche mit kleineren Umbaumaßnahmen

Mal noch eine Frage, bei der Eingangsplanung ist ja wohl der Wasseranschluß ggü. der Architektenplanung verlegt.

Wie kommt der in die Halbinsel?
118726d1376058470-offene-wohnkueche-mit-kleineren-umbaumassnahmen-grundriss-kuechenplanung-2.jpg
 
AW: Offene Wohnküche mit kleineren Umbaumaßnahmen

Hallo,

sorry, dass ich mich erst heute wieder melden kann. Ich war viel unterwegs und habe es nicht früher geschafft :(

Dafür habe ich es jetzt geschafft, den Grundriss endlich mit Maßen zu versehen. Musste mich erstmal in Sketchup zurechtfinden. Ich hoffe, man kann die Beschriftung von der Größe erkennen. Zur Sicherheit hänge ich noch ein PDF des Grundrisses an.



Im Grundriss sind auch in Blau das Sofa und der Esstisch eingezeichnet.

Zur Frage von Kerstin: Ja, den Wasseranschluss müssen wir verlegen. Wir haben überlegt, das Wasser durch den Sockel in die Halbinsel zu führen. Ein KFB hat uns das so empfohlen. Ein anderer KFB meinte, man müsse dazu rund 13cm Hohlraum hinter den Möbeln gewinnen, um die Schläuche hinter den Unterschränken entlang zu führen. Favorisieren würden wir natürlich die Sockel-Variante, da wir in der engen Küche dadurch Platz sparen.

Zur Abluft: Wir werden das Abluftrohr nun definitiv verschließen und auf Umluft wechseln. Dafür werden wir uns dann eine Einbauhaube mit in die Planung nehmen, die in einen Oberschrank kommen soll.
 

Anhänge

  • Grundriss mit Massen.pdf
    1,2 MB · Aufrufe: 300
AW: Offene Wohnküche mit kleineren Umbaumaßnahmen

Hallo,

ich finde die Aufteilung ziemlich unpraktisch. Der Esstisch ist doch sehr weit von der Küche entfernt. Warum nicht die Bereiche Wohnen und Essen tauschen? Dann könnte man auch das Mäuerchen in die Küchenplanung einbeziehen.

Kann man das Sofa wirklich nicht planlinks unterbringen?

LG
Traviata
 
AW: Offene Wohnküche mit kleineren Umbaumaßnahmen

Wohn- und Essbereich lassen sich bei uns nicht tauschen. Erstens ist das Sofa zu riesig ;D und zweitens wollen wir unseren großen Massivholz-Tisch nicht mitten im Raum stehen haben. So ist die Aufteilung vom Wohn-/Essbereich schon ideal für uns :-)
 
AW: Offene Wohnküche mit kleineren Umbaumaßnahmen

Wie breit ist die Tür? Was passiert in der Fläche zwischen Sofa und Wand Plan oben? Wo wird der Fernseher stehen?
 
AW: Offene Wohnküche mit kleineren Umbaumaßnahmen

Unsere Türen sind in der gesamten Wohnung jeweils 81 cm breit. Die Fläche zwischen Sofa und planoben wollen wir gerne weitestgehend frei halten als Spielfläche für unseren Sohn. Die Küche sollte deshalb idealerweise nur bis zur Sofatiefe von ca. 1m aus der Küchennische herauskommen.

Einen Fernseher haben wir nicht und werden wir auch nicht haben :rolleyes:
 
AW: Offene Wohnküche mit kleineren Umbaumaßnahmen

Der Eingangsbereich ist nicht bemaßt... Breite und Wandstärke? Der Abstand zwischen Wandstummel und Wand Plan oben fehlt auch.
 
AW: Offene Wohnküche mit kleineren Umbaumaßnahmen

Und was passiert mit der großen freien Fläche wenn euer Sohn älter ist und nicht mehr unter Aufsicht spielen möchte?

Sorry, aber das Kind spielt maximal 3-4 Jahre in eurer Nähe, die Küche habt ihr aber für 15 - 20 Jahre da stehen.

LG
Sabine
 

Ähnliche Beiträge

Neff Hausgeräte Ballerina Küchen Blum Bewegungstechnologie Weibel - Intelligente Küchenlüftung

Neff Spezial

Blum Zonenplaner

Weibel Abluft-Tuning

Weibel Abluft-Tuning
Zurück
Oben