Noch nicht ganz zufrieden...

Unwissende

Mitglied
Beiträge
20
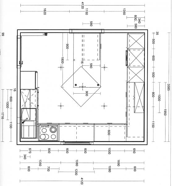
Hallo liebe Mitglieder,
hier stelle ich nun meine nun mal angedachte Küche ein...
Bin für jeden Verbesserungsvorschlag ( Umplanung), Ideenreichtum von Euch dankbar.
Das Fenster liegt zur Zeit noch auf der eingezeichneten Höhe, die Möglichkeit das Fenster auszutauschen
und den Fensterstock auf 91 cm zu bringen liegt vor ( unten am Fenster würde ein starres Fensterstück
eingebaut werden, damit die Arbeisplatte bis zum Fensterstock gezogen werden könnte ( bei Bedarf kann
ich die Zeichnung des Fensters noch einstellen).
Der Kühl-Gefrierschrank wird wohl nun doch ca. 2,00 m hoch werden ( damit unten ein Gefrierteil mit 2-3 Fächer
noch Platz hat).
Mit der Arbeitsfläche um den Herd bin ich derzeit noch nicht so glücklich... die Planung basiert auf den derzeitigen Herd und Spülenanschluss ( unter der Küche wird die neue Heizung einbeaut ( Gas), damit wäre evtl. die Verlegung des Spülenanschlusses möglich, jedoch ist dies ja wie mit allem eine Preisfrage)... sprich, Verlegung ist möglich, jedoch aus Kostengründen nicht unbedingt mein Favorit!
Weiterhin bin ich mir unschlüssig, ob es wirklich ein Apothekerschrank sein muss... der 50ér Schrank neben dem Herd ist als reiner Schrank mit Böden angedacht, jedoch kann evtl auch ein Apo sein.. aber einzelne Auszüge wären mir lieber, sind jedoch sehr teuer ( vielleicht gibt es ja eine Zwischenlösung?).
Ebenso bin ich mir mit dem Kochfeld noch unschlüssig... Ceran oder Induktion ... hab teure WMF Edelstahltöpfe, jedoch nicht Induktiongeeignet... Ratschläge dazu wären mir ganz lieb.
Gasanschluss für einen Gasherd wäre auch möglich, jedoch nur um den Wok oder den Esspreso zu benutzen.. stellt sich die Frage ob das im Verhältnis zum Anschaffungspreis steht ( hab gesehen, es gibt Auflagen für den Wok auf das Kochfeld.. wäre also auch nicht unbedingt nötig.
Dunstabzug ist derzeit noch keiner eingezeichnet, auch der Wandbelag ist noch offen ( evtl Edelstahl oder Glas an der Kochfeldumgebung)
So.. viele noch offen Fragen... aber evtl. komm ich mit Euch ja zu meiner endgültigen Traumküche...?
Danke schon mal für Euere Mühe...
die Unwissende


Checkliste zur Küchenplanung von Unwissende

Anzahl Personen im Haushalt : 3
Davon Kinder? : 2
Körpergrössen aller Hauptbenutzer (wegen Arbeitshöhe ) in cm : 185
Art des Gebäudes? : Neu-/Umbau, Planänderungen möglich
Brüstungshöhe des Fensters (in cm) : 86 (91moch möglich)
Fensterhöhe (in cm) : siehe Brüstungshöhe
Raumhöhe in cm: : ? ( übliche Reihenhaushöhe) Baujahr 1963
Heizung : Heizkörper wie im Grundriss
Sanitäranschlüsse : variabel an aktueller Wand
Ausführung Kühlgerät? : Stand-Alone bis 60 cm Breite
Kühlgerät Größe : bis 175 cm Höhe
Ausführung Tiefkühl (TK)-Gerät : Im Kühlschrank bis 2 Schubladen unten
Dunstabzugshaube? : Umluft
Hochgebauter Backofen ? : Ja
Hochgebauter Geschirrspüler ? : nein
Kochfeldart? : Ceran (herkömmlich)
Kochfeldbreite ca. (in cm)? : 60 - 90
Spülenform: : Noch nicht festgelegt
Weitere geplante Heißgeräte : Standmikrowelle
Küchenstil? : klassisch
Sitzmöglichkeit in der Küche / im Küchenbereich als : Überstehende Arbeitsplatte
Sitzmöglichkeit: Für wieviel Personen? : für 4 Personen
Sitzmöglichkeit: Tisch - wenn gesonderter Tisch oder offene Küche : Wird nach Bedarf neu gekauft
Gewünschte o. vorhandene Tischgröße : siehe Zeichnung bzw. andere Idden von Euch
Wofür soll der Sitzplatz in der Küche genutzt werden? Wie häufig? : Frühstück, Kaffeepausen, teilweise Hausaufgaben, ( Essecke liegt im Zimmer nebenan hinter der Durchreiche)
Welche Arbeitshöhe ist angedacht (in cm)? : 91
Was steht auf der Arbeitsplatte oder soll dort stehen? : Kaffeevollautomat, Wasserkocher, Küchenmaschine, Toaster, Brotbehälter, Obstschale
Welche weiteren Küchenmaschinen müssen in der Küche untergebracht werden? : Schneidemaschine (z. B. in Schublade), Handrührgerät, Mixer, Pürierstab, Eierkocher
Was soll in der Küche außer den Standards untergebracht werden? : Getränkekisten, Staubsauger/Wischer etc., Sonstiges (evtl. im Beitragstext benennen)
Welchen Stauraum gibt es sonst noch? : Keller
Was/wie wird gekocht? (Alltagsküche, Menüs, Snacks usw) : Bei uns wird viel gekocht ( Mittagessen, Abendessen,Menüs, Nachspeisen), viel gebacken ( Torten, Gebäck)
Wie häufig wird gekocht? : (fast) täglich 2x warm
Wird alleine gekocht? Oder auch gemeinsam? Mit und für Gäste? : mit meinen Kindern, oft für Gäste
Was stört an der bisherigen Küche und was soll die neue Küche unbedingt können? Warum? : bisherige Küche zu neu, es soll meine "Traumküche" werden. Der Backofen soll "top" sein ( gleichmässiges Backen, selbstreinigend), Arbeitsabläufe so kurz wie möglich,
Steht schon ein Küchenhersteller fest oder wird bevorzugt? : ja
Steht schon ein Gerätehersteller fest oder wird bevorzugt? : bin ich unschlüssig, Kühlschrank (Bosch ), Herd ( evtl Miele ) Geschirrspüler bring ich mit aus der bisherigen Küche ( Constructa )
Preisvorstellung (Budget) : bis 10.000,-
 

Anhänge

  • img032.jpg
    img032.jpg
    45,2 KB · Aufrufe: 1.709
  • img028.jpg
    img028.jpg
    35,2 KB · Aufrufe: 1.694
  • img029.jpg
    img029.jpg
    38,7 KB · Aufrufe: 1.676
  • img030.jpg
    img030.jpg
    38,2 KB · Aufrufe: 1.686
  • img031.jpg
    img031.jpg
    40,8 KB · Aufrufe: 1.676
Zuletzt bearbeitet:
AW: Noch nicht ganz zufrieden...

Hallo ...
und stellvertretend schonmal :welcome:, die Profis melden sich sicher noch.
Hast Du einen Grundriss der gesamten Wohnung, damit man die Laufwege nachvollziehen kann und ist es am Tresen eine große Durchreiche? Könntest Du Deine Küche auch schon im Alnoplaner anlegen, dann kann man hier weiterschupsen.

Auf den ersten Blick würde ich das Kochfeld ggf auf den niedrigeren Schrank setzen und über das Fenster einen Deckenlüfter setzen. Auch sieht es aktuell so aus, als wäre die GSP im Laufweg nach draußen und der kann nicht mal eben offen rumstehen, auch bist Du nicht so klein, ich mit 1,89 bekomme auch eine hochgesetzte GSP und freue mich drauf...

Hersteller hast Du schon, welcher wäre das?

LG und viel Erfolg beim Planen
Muckelina

PS: kannst Du die Bilder drehen? zB in der Windowsfotoanzeige und neu speicher und ersetzen? so verrenkt sich jeder den Kopf ;-)
 
AW: Noch nicht ganz zufrieden...

Hallo,
die Planung rund um Herd und Spüle halte ich auch für gelinde gesagt *Murks*;-).
Wenn man auch vielleicht einen Wasser-/Abwasser-Anschluß nicht so leicht verlegen kann und zumindest die Hähne erreichbar bleiben müssen, so lässt sich eine Herdanschlußleitung nahezu beliebig länger verlegen (darf nur nicht verlängert werden, sondern es muss von Dose zu Herd eben eine längere Leitung benutzt werden).
Der Herd kann also auch wo anders hin, als platsch an die Spüle ran, Platz ist ja nun wirklich genug!

Wenn ein Hochschrank mit Auszügen wirklich das Budget sprengen sollte (würde ich mir aber auf jeden Fall mal rechnen lassen, wenn wir deine Planung optimiert haben!), dann als Zwischenlösung auf jeden Fall einen Schrank mit Borden kaufen, hier kann man dann ggf. mal Auszüge nach montieren, günstige Möglichkeiten gibt es da schon als Edelstahlkörbe, habe ich kürzlich bei Schwiegermutter montiert. Da geht zwar wegen der Technik etwas Stauraum flöten, aber der dann vorhandene ist besser zu nutzen.
 
AW: Noch nicht ganz zufrieden...

Tja,ein Planungsprogramm zu beherrschen ,bedeutet nicht unbedingt Küchen planen zu können.;-)

LG Bibbi
 
das ist wohl wahr.
nur wenn dies das Ergebnis eines Studios ist, sollte man besser Ausschau nach einem anderen halten.
 
AW: Noch nicht ganz zufrieden...

Angelika,

Idee hört sich schon mal gut an. Herd kann natürlich woanders stehen als wie dort (längere Laufwege !? ) und Schrank mit Borden : Ist dies ein normaler Schrank mit Einlegeböden ??? und passen alle Auszüge mit Edelstahlkörbe bzw passen die von IKEA auch ??? :read:
 
Zuletzt bearbeitet von einem Moderator:
AW: Noch nicht ganz zufrieden...

Hallo,
nein Ikea passt nicht, die sind tiefer, weil die 60 cm tiefe Schränke haben und fast alle anderen um die 58 cm.

Ich habe mal ein bisschen rum geschoben, die Hauptarbeitsfläche liegt optimaler Weise zwischen Herd und Spüle (erst Gemüse abwaschen, dann schnippeln, dann kochen;-)) und die GSP sollte nicht dazwischen stehen, damit man sie auch mal offen stehen lassen kann, während man kocht.
Planung 1 lehnt sich an der Ausgangsplanung an:
Zur Optimierung der Arbeitsfläche habe ich alles ein bisschen vor gezogen, außerdem kann man da noch Leitungen verstecken:
Planlinks neben der Tür beginnend:
  • Blende
  • GSP
  • 45-er 3-3 z.B. als Müll unter APL zu nutzen
  • 125-er Spüleneckschrank, damit die Anschlüsse erreichbar bleiben
  • 60-er 1-1-2-2 Gewürze und Vorräte, übertiefe
  • 120-er 1-1-2-2 mit Herd vor dem Fenster (spart die Rückwand;-)),übertiefe
  • 90-er 1-1-2-2 übertiefe
  • tote Ecke
  • 90-er 1-1-2-2
  • BO mit Mikro hinter Klappe
  • Kühlschrank integriert (notfalls lässt sich hier auch ein Stand-Alone einschieben)
  • Vorratsschrank mit Innenauszügen.
  • Tisch zur Kostenoptimierung nicht aus APL-Material
unwissende1-1.JPG
unwissende1-3.jpg
unwissende1-2.jpg

Ganz anderer Ansatz folgt :cool:
 

Anhänge

  • unwissende1.KPL
    3,9 KB · Aufrufe: 1.606
  • unwissende1.POS
    6,2 KB · Aufrufe: 1.669
AW: Noch nicht ganz zufrieden...

Da die 1. Planung noch ihre Schwächen hat, wie der weite Weg zum Kühlschrank und viele (teure) Schränke enthält, habe ich mal diesen Ansatz geplant.
Wieder beginnend neben der Tür:
  • Kühlschrank
  • BO-Schrank
  • hochgebaute GSP (bei deiner Größe sicher eine Erleichterung, wenn machbar (leider stehen sich Spüle und GSP ein wenig im Weg, aber ist ja noch umbaubar;-))
  • Wieder Spüleneckschrank
  • 40-er 3-3 Müll unter APL
  • 80-er 1-1-2-2
  • 100-er 1-1-2-2 mit Herd und DAH und Glasrückwand
  • tote Ecke
  • 80-er 1-1-2-2
  • 60-er 1-1-2-2
  • angesetzte APL auf APL-Höhe, damit man den gleich mit als Arbeitsfläche nutzen kann.

Dieser Aufbau sollte preisgünstiger sein, als Version 1.
Ein bisschen unglücklich finde ich, dass Herd und Spüle so in die Ecken gedrückt sind, da sollte man mal schauen, ob das Wasser nicht doch Aufputz verlegt werden könnte.
unwissende2-1.JPG
unwissende2-4.jpg
unwissende2-3.jpg
unwissende2-2.jpg
 

Anhänge

  • unwissende2.POS
    5,8 KB · Aufrufe: 1.598
  • unwissende2.KPL
    3,9 KB · Aufrufe: 1.657
Hallo Angelika,
wird keine Dunsthaube verbaut?
Im Anfang wird geschrieben, dass das Studio feststeht. Damit auch der Küchenhersteller. Daher sollte abgeklärt werden ob auch eine Rasterküche verplant werden kann.
 
AW: Noch nicht ganz zufrieden...

Bei Variante 1 habe ich keine DAH verplant, weil ich mit Deckenlüftern meine Alnoprobleme habe ;-), wegen des Budget wäre der aber vielleicht so wie so erst mal außen vor...
Laut dem anderen Posting von *Unwissende* läuft der Kauf über ein großes Möbelhaus, da gehe ich eigentlich davon aus, dass die auch 6-er Raster anbieten, wenn nicht, dann ändert das ja nicht viel an den grundsätzlichen Stellmöglichkeiten.
Bei der Körpergröße und der APL-Höhe wäre es aber auch schade, auf das 6-er Raster zu verzichten.
 
AW: Noch nicht ganz zufrieden...

"Noch nicht ganz zufrieden" - der Titel ist gut. ;D Der Küchenplaner von dem "Top - Küchenstudio "müsste echt Haue Kriegen .:knuppel: Bloß gut , daś Du den Weg hierher gefunden hast. Also nee Soviel Platz und den Herd in die Ecke gequetscht und so besch... Am Fenster ohne Möglichkeit ein breiteres als 60 zu nehmen. Kopfschütteln!!! Da sieht man mal daś die großen nur dein Bestes wollen , nämlich deine Moneten .;-) Die Planung scheint denen scheißegal zu sein, egal ob Du damit zufrieden bist.:-X
 
AW: Noch nicht ganz zufrieden...

Hallo zusammen,
da ich unter der Woche beruflich sehr eingebunden bin, bedanke ich mich vorab schon mal recht herzlich für euere Mühen und werde mich dann Ende der Woche zu den Vorschlägen.. Ratschlägen, etc. melden.:pc:
Danke nochmal... bin echt turbofroh, dass ich den Weg hierher gefunden habe!:rose:

Einen schönen Abend noch
die Unwissende
 
AW: Noch nicht ganz zufrieden...

..nochmal zu dem Auszugsschrank.. der Preis für einen Auszugsschrank, wobei alle Körbe am Türblatt befestigt ist wohl geringer, jedoch hatte ich einen solchen in einer früheren Küche... 1. kommt bei jedem öffnen das gesamte Gewicht mit, der Auszug war nach kurzer Zeit schwer auszuzihen und 2. sammelt sich unten in der Führungsschiene der ganze Dreck... ein Auszugsschrank worin die einzelen Fächer einzeln auszuziehen sind ist jeodoch sehr teuer (lt. Küchenstudio ca 1800,--€).... gibt es hierzu noch alternativen und wie sieht ein Schrank mit Borden aus ( evtl ein normaler Schrank mit einzelne Ablagefächer.. wobei sich dann die Frage stellt, wie funktioniert dass mit den Edelstahlkörben??
 
Zuletzt bearbeitet von einem Moderator:
AW: Noch nicht ganz zufrieden...

...was ist eine Rasterküche?? ( mein mitgliedsname drückt mein Wissen über Küchen und deren Planung ja schon aus ;-))
 
Zuletzt bearbeitet von einem Moderator:

Ähnliche Beiträge

Neff Hausgeräte Ballerina Küchen Blum Bewegungstechnologie Weibel - Intelligente Küchenlüftung

Neff Spezial

Blum Zonenplaner

Weibel Abluft-Tuning

Weibel Abluft-Tuning
Zurück
Oben