Chielo
Mitglied
- Beiträge
- 31
Neue Küche in Bestandsimmobilie
Zunächst einmal wünsche ich euch allen ein gutes und gesundes neues Jahr!
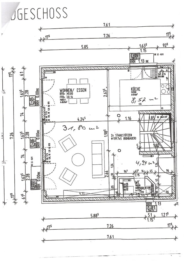
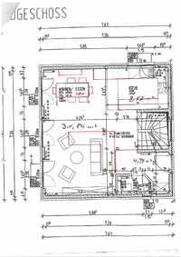
Wir dürfen (etwas früher als eigentlich gedacht) dieses Jahr eine neue Küche planen und haben die freien Tage genutzt, um uns schon etwas einzulesen und Gedanken zu machen. Wir wohnen in einem Einfamilienhaus von 2008, auch die Küche ist aus diesem Jahr. Wir selbst sind 2014 eingezogen und haben die Küche übernommen. Jetzt muss am Fußboden im Erdgeschoss etwas gemacht werden und wir verbinden das mit der neuen Küche.
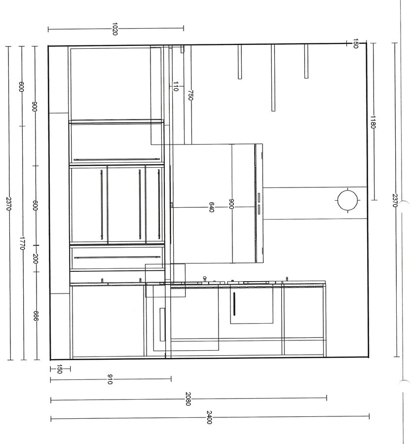
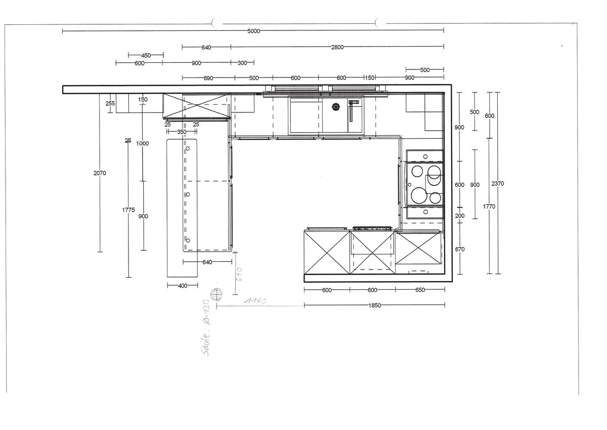
Für die neue Küche wünschen wir uns vor allem mehr Stauraum, mein Traum wäre ein raumhoher Space Tower für Vorräte. Ich finde freistehende Kühlschränke schön, aber ich vermute da müssen wir uns einschränken und bei 60 cm Breite bleiben, deshalb würde ich da auch drauf verzichten. Der Kühlschrank soll aber auf jeden Fall höher werden als der aktuelle. Wir haben aktuell Abluft, nachdem das so vorhanden ist würden wir das eigentlich gerne weiter nutzen, sind aber gegebenenfalls auch offen für Umluft wenn sich damit eine bessere Planung ergibt. Arbeitsfläche haben wir aktuell vor allem auf der Halbinsel, die durch die Theke aber nur einseitig genutzt werden kann und auch oft vollgestellt ist. Zum Plätzchen backen oder wenn die Kinder mit schnippeln wollen weichen wir meist an den Esstisch aus, das wäre auch weiterhin möglich.
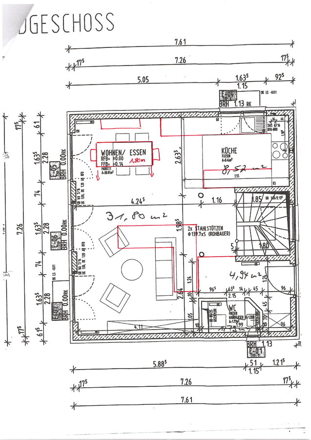
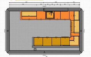
Aufgrund der räumlichen Gegebenheiten sind uns eigentlich nur die aktuelle Lösung mit Halbinsel (die ich dann verbreitern würde, also vom Essplatz aus auch noch Schränke und auf die Theke verzichten) eingefallen und die Variante, die ich mal mit angehängt habe. Bei der angehängten Variante wären mehr deckenhohe Schränke möglich, aber es würde sich der Zugang in die Küche ändern und wir sind uns unschlüssig ob das gut aussieht, wenn sich die Küche so weit in Richtung Essplatz zieht. Die Wand vom Treppenhaus endet hinter dem Kühlschrank, der Unterschrank mit den Schubladen steht als Raumtrenner dort, dahinter ist keine Wand. In unserem EG sind zwei Pfosten die auch im Grundriss eingezeichnet sind. Der Pfosten bei der Küche ist in einer Linie mit der Treppenhauswand, er ist also im Küchenplan nicht ganz an der richtigen Stelle. In dem einen Grundrissplan vom EG hab ich mal versucht, die neue Küchenplanung , unsere Esstischgröße, unser Sofa und auch die Wand zum Flur die wir eingebaut haben mit einzuzeichnen. Der Tisch ist noch um 1 Meter ausziehbar, aber das wird nur zwei- oder dreimal im Jahr gemacht.
Ein richtiges Planungsgespräch im Küchenstudio haben wir erst nächste Woche, der Fachberater meinte aber, dass Wasseranschlüsse in der Regel an der selben Wand auch problemlos etwas verschoben werden können, davon sind wir jetzt bei der Planung mal ausgegangen um Spüle und Spülmaschine etwas zu verschieben und mehr Arbeitsfläche zwischen Spüle und Kochfeld zu bekommen (und endlich mal das Fenster öffnen zu können). Mit den Geräten haben wir uns noch nicht näher befasst, außer dass der Kühlschrank größer werden soll. Gerade was Kombigeräte betrifft, also bei Backofen /Mikrowelle /evtl Dampfgarer müssen wir uns noch informieren. Auch bei der Spüle sind wir uns noch nicht ganz sicher. Aktuell haben wir zwei Becken und Abtropffläche, die wir auch nutzen, aber evtl lässt sich da die feste Fläche auch durch eine flexible Matte ersetzen, da ich gerne auch etwas Abstellfläche neben dem hochgestellten Geschirrspüler hätte.
Eckunterschränke habe ich nach Recherche hier im Forum nicht geplant. Aktuell haben wir ein Karussell (will ich nicht wieder haben, das ist eines der Dinge die in der jetzigen Küche kaputt sind) und einen Le Mans Unterschrank, allerdings bin ich großer Verfechter von Schubladen statt Schränken, deshalb ist jetzt erstmal komplett ohne sowas geplant.
Als Abstellfläche für Kaffeemaschine und Toaster hatten wir jetzt mal den Unterschrank neben dem Kühlschrank angedacht, da müssten dann Steckdosen hin verlegt werden. Was den Stauraum für Geschirr und Gläser angeht ist es aktuell so, dass Wein- und Sektgläser in einem Highboard im Essbereich unter gebracht sind und da sicher auch noch einige Gläser zusätzlich hinpassen, die Alltagsgläser sollen aber auf jeden Fall in der Küche bleiben, deshalb war ich da etwas unsicher was ich im Steckbrief ankreuzen soll.
So, jetzt habe ich mal versucht unsere aktuellen Gedanken aufzuschreiben, ist ganz schön viel geworden und vermutlich bleiben für euch trotzdem noch genug Fragen offen, aber ich hoffe ich konnte die Situation einigermaßen anschaulich beschreiben und freue mich auf eure Gedanken dazu, für die ich mich schon einmal ganz herzlich bedanke.
Fotos der aktuellen Küche in Beitrag 4.
Checkliste zur Kuechenplanung
Personenkriterien und Ergonomie
Anzahl Personen im Haushalt: 4
Davon Kinder: 2
Körpergrößen aller Hauptbenutzer in cm (wegen Arbeitshoehe): 169, 173
Welche Arbeitshöhe ist angedacht (in cm)?: 91 cm
Gebäudekriterien
Art des Gebäudes: Bestandsbau > (kleinere) Umbauten möglich, Eigentum
Bruestungshöhe des Fensters (in cm): 113, korrigiert auf 102 am 07.01.2013
Fensterhöhe (in cm): N. a.
Raumhöhe in cm: 238,5
Heizung: Keine Heizung
Sanitäranschlüsse: variabel an aktueller Wand
Einbaugerätekriterien
Ausführung Kühlgerät: Integriert im Hochschrank (60cm)
Einbaukühlgerät Größe: 178cm
Ausführung Tiefkühl (TK)-Gerät: Nicht erforderlich bzw. steht woanders
Dunstabzugshaube: Abluft
Hochgebauter Backofen : ja
Geplante Heißgeräte: Einbaumikrowelle, Backofen
Hochgebauter Geschirrspüler : wenn möglich
Art des Kochfeldes: Induktionskochfeld
Kochfeldbreite (ca. in cm): 60
Sitzmöglichkeiten
Sitzmöglichkeit in der Küche / im Küchenbereich: Keine
Sitzmöglichkeit: Für wieviel Personen?: nein
Sitzmöglichkeit: Tisch - wenn gesonderter Tisch oder offene Küche: Vorhandener Tisch
Gewünschte oder vorhandene Tischgröße: 1,80 (ausgezogen 2,80)
Wofür soll der Sitzplatz in der Küche genutzt werden und wie häufig: N. a.
Stauraum-Planung
Was steht auf der Arbeitsplatte oder soll dort stehen?: Kaffeevollautomat, Messerblock, Toaster, Brotbehälter, Obstschale
Welche weiteren Küchenmaschinen müssen in der Küche untergebracht werden: Küchenmaschine, Wasserkocher, Mixer, Pürierstab, Eierkocher
Was soll in der Küche außer den Standards untergebracht werden: Geschirr komplett (nichts in Ess-/Wohnzimmer)
Welchen Stauraum gibt es sonst noch: Geschirr/Gläserschrank im Wohn-/Esszimmer, Keller
Kochgewohnheiten
Was/wie wird gekocht? (Alltagsküche, Menüs, Snacks usw): Alltagsküche/Familienküche
Wie häufig wird gekocht: (fast) täglich 1x warm
Wird alleine gekocht? Oder auch gemeinsam? Mit und für Gäste?: Alleine (1-2 Personen)
Mithilfe von Kindern auch an Esstisch möglich (Plätzchen backen, schnippeln)
Spülen und Müll
Spülenform: 1 1/2 Becken ohne Abtropffläche
Welche Mülltrennung soll in der Küche vorgehalten werden: Altpapier, Biomüll, Plastik, Restmüll
Sonstiges
Steht schon ein Küchenhersteller fest oder wird bevorzugt: nein
Steht schon ein Gerätehersteller fest oder wird bevorzugt: nein
Küchenstil: Klassisch
Was stört an der bisherigen Küche und was soll die neue Küche unbedingt können? Warum?: Mehr Stauraum, Hochschränke deckenhoch, mehr Arbeitsfläche bei Waschbecken und Kochfeld.
Preisvorstellung (Budget): N. a.
Angehängte Dateien
Zunächst einmal wünsche ich euch allen ein gutes und gesundes neues Jahr!
Wir dürfen (etwas früher als eigentlich gedacht) dieses Jahr eine neue Küche planen und haben die freien Tage genutzt, um uns schon etwas einzulesen und Gedanken zu machen. Wir wohnen in einem Einfamilienhaus von 2008, auch die Küche ist aus diesem Jahr. Wir selbst sind 2014 eingezogen und haben die Küche übernommen. Jetzt muss am Fußboden im Erdgeschoss etwas gemacht werden und wir verbinden das mit der neuen Küche.
Für die neue Küche wünschen wir uns vor allem mehr Stauraum, mein Traum wäre ein raumhoher Space Tower für Vorräte. Ich finde freistehende Kühlschränke schön, aber ich vermute da müssen wir uns einschränken und bei 60 cm Breite bleiben, deshalb würde ich da auch drauf verzichten. Der Kühlschrank soll aber auf jeden Fall höher werden als der aktuelle. Wir haben aktuell Abluft, nachdem das so vorhanden ist würden wir das eigentlich gerne weiter nutzen, sind aber gegebenenfalls auch offen für Umluft wenn sich damit eine bessere Planung ergibt. Arbeitsfläche haben wir aktuell vor allem auf der Halbinsel, die durch die Theke aber nur einseitig genutzt werden kann und auch oft vollgestellt ist. Zum Plätzchen backen oder wenn die Kinder mit schnippeln wollen weichen wir meist an den Esstisch aus, das wäre auch weiterhin möglich.
Aufgrund der räumlichen Gegebenheiten sind uns eigentlich nur die aktuelle Lösung mit Halbinsel (die ich dann verbreitern würde, also vom Essplatz aus auch noch Schränke und auf die Theke verzichten) eingefallen und die Variante, die ich mal mit angehängt habe. Bei der angehängten Variante wären mehr deckenhohe Schränke möglich, aber es würde sich der Zugang in die Küche ändern und wir sind uns unschlüssig ob das gut aussieht, wenn sich die Küche so weit in Richtung Essplatz zieht. Die Wand vom Treppenhaus endet hinter dem Kühlschrank, der Unterschrank mit den Schubladen steht als Raumtrenner dort, dahinter ist keine Wand. In unserem EG sind zwei Pfosten die auch im Grundriss eingezeichnet sind. Der Pfosten bei der Küche ist in einer Linie mit der Treppenhauswand, er ist also im Küchenplan nicht ganz an der richtigen Stelle. In dem einen Grundrissplan vom EG hab ich mal versucht, die neue Küchenplanung , unsere Esstischgröße, unser Sofa und auch die Wand zum Flur die wir eingebaut haben mit einzuzeichnen. Der Tisch ist noch um 1 Meter ausziehbar, aber das wird nur zwei- oder dreimal im Jahr gemacht.
Ein richtiges Planungsgespräch im Küchenstudio haben wir erst nächste Woche, der Fachberater meinte aber, dass Wasseranschlüsse in der Regel an der selben Wand auch problemlos etwas verschoben werden können, davon sind wir jetzt bei der Planung mal ausgegangen um Spüle und Spülmaschine etwas zu verschieben und mehr Arbeitsfläche zwischen Spüle und Kochfeld zu bekommen (und endlich mal das Fenster öffnen zu können). Mit den Geräten haben wir uns noch nicht näher befasst, außer dass der Kühlschrank größer werden soll. Gerade was Kombigeräte betrifft, also bei Backofen /Mikrowelle /evtl Dampfgarer müssen wir uns noch informieren. Auch bei der Spüle sind wir uns noch nicht ganz sicher. Aktuell haben wir zwei Becken und Abtropffläche, die wir auch nutzen, aber evtl lässt sich da die feste Fläche auch durch eine flexible Matte ersetzen, da ich gerne auch etwas Abstellfläche neben dem hochgestellten Geschirrspüler hätte.
Eckunterschränke habe ich nach Recherche hier im Forum nicht geplant. Aktuell haben wir ein Karussell (will ich nicht wieder haben, das ist eines der Dinge die in der jetzigen Küche kaputt sind) und einen Le Mans Unterschrank, allerdings bin ich großer Verfechter von Schubladen statt Schränken, deshalb ist jetzt erstmal komplett ohne sowas geplant.
Als Abstellfläche für Kaffeemaschine und Toaster hatten wir jetzt mal den Unterschrank neben dem Kühlschrank angedacht, da müssten dann Steckdosen hin verlegt werden. Was den Stauraum für Geschirr und Gläser angeht ist es aktuell so, dass Wein- und Sektgläser in einem Highboard im Essbereich unter gebracht sind und da sicher auch noch einige Gläser zusätzlich hinpassen, die Alltagsgläser sollen aber auf jeden Fall in der Küche bleiben, deshalb war ich da etwas unsicher was ich im Steckbrief ankreuzen soll.
So, jetzt habe ich mal versucht unsere aktuellen Gedanken aufzuschreiben, ist ganz schön viel geworden und vermutlich bleiben für euch trotzdem noch genug Fragen offen, aber ich hoffe ich konnte die Situation einigermaßen anschaulich beschreiben und freue mich auf eure Gedanken dazu, für die ich mich schon einmal ganz herzlich bedanke.
Fotos der aktuellen Küche in Beitrag 4.
Checkliste zur Kuechenplanung
Personenkriterien und Ergonomie
Anzahl Personen im Haushalt: 4
Davon Kinder: 2
Körpergrößen aller Hauptbenutzer in cm (wegen Arbeitshoehe): 169, 173
Welche Arbeitshöhe ist angedacht (in cm)?: 91 cm
Gebäudekriterien
Art des Gebäudes: Bestandsbau > (kleinere) Umbauten möglich, Eigentum
Bruestungshöhe des Fensters (in cm): 113, korrigiert auf 102 am 07.01.2013
Fensterhöhe (in cm): N. a.
Raumhöhe in cm: 238,5
Heizung: Keine Heizung
Sanitäranschlüsse: variabel an aktueller Wand
Einbaugerätekriterien
Ausführung Kühlgerät: Integriert im Hochschrank (60cm)
Einbaukühlgerät Größe: 178cm
Ausführung Tiefkühl (TK)-Gerät: Nicht erforderlich bzw. steht woanders
Dunstabzugshaube: Abluft
Hochgebauter Backofen : ja
Geplante Heißgeräte: Einbaumikrowelle, Backofen
Hochgebauter Geschirrspüler : wenn möglich
Art des Kochfeldes: Induktionskochfeld
Kochfeldbreite (ca. in cm): 60
Sitzmöglichkeiten
Sitzmöglichkeit in der Küche / im Küchenbereich: Keine
Sitzmöglichkeit: Für wieviel Personen?: nein
Sitzmöglichkeit: Tisch - wenn gesonderter Tisch oder offene Küche: Vorhandener Tisch
Gewünschte oder vorhandene Tischgröße: 1,80 (ausgezogen 2,80)
Wofür soll der Sitzplatz in der Küche genutzt werden und wie häufig: N. a.
Stauraum-Planung
Was steht auf der Arbeitsplatte oder soll dort stehen?: Kaffeevollautomat, Messerblock, Toaster, Brotbehälter, Obstschale
Welche weiteren Küchenmaschinen müssen in der Küche untergebracht werden: Küchenmaschine, Wasserkocher, Mixer, Pürierstab, Eierkocher
Was soll in der Küche außer den Standards untergebracht werden: Geschirr komplett (nichts in Ess-/Wohnzimmer)
Welchen Stauraum gibt es sonst noch: Geschirr/Gläserschrank im Wohn-/Esszimmer, Keller
Kochgewohnheiten
Was/wie wird gekocht? (Alltagsküche, Menüs, Snacks usw): Alltagsküche/Familienküche
Wie häufig wird gekocht: (fast) täglich 1x warm
Wird alleine gekocht? Oder auch gemeinsam? Mit und für Gäste?: Alleine (1-2 Personen)
Mithilfe von Kindern auch an Esstisch möglich (Plätzchen backen, schnippeln)
Spülen und Müll
Spülenform: 1 1/2 Becken ohne Abtropffläche
Welche Mülltrennung soll in der Küche vorgehalten werden: Altpapier, Biomüll, Plastik, Restmüll
Sonstiges
Steht schon ein Küchenhersteller fest oder wird bevorzugt: nein
Steht schon ein Gerätehersteller fest oder wird bevorzugt: nein
Küchenstil: Klassisch
Was stört an der bisherigen Küche und was soll die neue Küche unbedingt können? Warum?: Mehr Stauraum, Hochschränke deckenhoch, mehr Arbeitsfläche bei Waschbecken und Kochfeld.
Preisvorstellung (Budget): N. a.
Angehängte Dateien
Anhänge
-
Bilder alte Küche.jpg95,6 KB · Aufrufe: 342 -
Grundriss Erdgeschoss mit Überlegungen neue Küche.jpg114,7 KB · Aufrufe: 354 -
Grundriss Erdgeschoss.jpg108 KB · Aufrufe: 324 -
Maße alte Küche.jpg74 KB · Aufrufe: 295 -
Planung ohne Insel Beschriftung.jpg137,4 KB · Aufrufe: 290 -
Planung ohne Insel Fensterseite.jpg74,6 KB · Aufrufe: 288 -
Planung ohne Insel hinten.jpg85 KB · Aufrufe: 279 -
Planung ohne Insel Seite Treppenhaus.jpg66,9 KB · Aufrufe: 271 -
Maße alte Küche Fensterseite mit Wasseranschluss.jpg55,2 KB · Aufrufe: 173 -
Maße alte Küche hinten mit Abluft.jpg66,5 KB · Aufrufe: 224
Zuletzt bearbeitet von einem Moderator:
