- Beiträge
- 63
AW: Neue Küche in Bestandsimmobilie
@ Doppelkeks, der Hänger wollte einfach nicht weiß werden - keine Ahnung warum
.
@ Kerstin, ich weiß nicht, ob ich zu erschlagen wäre, we
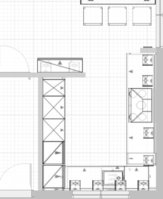
nn ich gleich am Anfang der Küche mit zwei Hochschränken begrüßt werden würde. Der Vorteil ohne Hochschränke da an der Seite wäre nämlich, dasss man vom Kochfeld gut zum Esstisch und ins Wohnzimmer gucken könnte.
Meinst Du an der Kühlschrankseite wäre es unklug alles Hochschränke zu bauen und es wäre besser dort auch Arbeitsfläche zu haben, so wie wir es eigentlich jetzt schon haben?
Die unterschiedlichen Höhen für die Arbeitsplatte brauchen wir nicht. Wir haben jetzt auch schon 90 cm, da kommt es auf 4 cm nicht mehr an.
Neben der Wohnzimmertür (die übrigens tatsächlich aus Glas ist, wie bei Deinem Vorschlag
) haben wir derzeit ein Highboard stehen. Das Teil ist einen halben Kopf kleiner als ich und darüber hängt in etwas Abstand der Gong für die Klingel.
Ich weiß, blöde Planung, ist uns auf dem Grundriss aber nicht aufgefallen und dann wars auch schon zu spät (Holzständerwerk)
Aber ein Sideboard mit einem kleinen Hängeteil bekämen wir da bestimmt hin oder ein Regal.
Allerdings würde dann natürlich Stellfläche wegfallen.
@Doppelkeks, mich hatte das nur mit der Spüle bzw. den Spülen interessiert, weil es doch eher selten ist. Ich wußte ja nicht, dass Ihr so unterschiedlich groß seit.
Shenja
@ Doppelkeks, der Hänger wollte einfach nicht weiß werden - keine Ahnung warum
@ Kerstin, ich weiß nicht, ob ich zu erschlagen wäre, we
nn ich gleich am Anfang der Küche mit zwei Hochschränken begrüßt werden würde. Der Vorteil ohne Hochschränke da an der Seite wäre nämlich, dasss man vom Kochfeld gut zum Esstisch und ins Wohnzimmer gucken könnte.
Meinst Du an der Kühlschrankseite wäre es unklug alles Hochschränke zu bauen und es wäre besser dort auch Arbeitsfläche zu haben, so wie wir es eigentlich jetzt schon haben?
Die unterschiedlichen Höhen für die Arbeitsplatte brauchen wir nicht. Wir haben jetzt auch schon 90 cm, da kommt es auf 4 cm nicht mehr an.
Neben der Wohnzimmertür (die übrigens tatsächlich aus Glas ist, wie bei Deinem Vorschlag
Aber ein Sideboard mit einem kleinen Hängeteil bekämen wir da bestimmt hin oder ein Regal.
Allerdings würde dann natürlich Stellfläche wegfallen.
@Doppelkeks, mich hatte das nur mit der Spüle bzw. den Spülen interessiert, weil es doch eher selten ist. Ich wußte ja nicht, dass Ihr so unterschiedlich groß seit.
Shenja



