Neue Ideen gesucht....

protz

Mitglied
Beiträge
6
Hallo zusammen,

ich bin vor kurzem über dieses Forum gestolpert und war sofort begeistert wie hilfsberweit die User hier sind und wie viele gute Ideen/Lösungen für Küchen hier gepostet werden.

Ich bin über dieses Forum gestolpert, da wir gerade bei der Planung von unserem Haus sind. Wir sind auch "eigentlich" super zufrieden mit unserem Gruindriss.
Naja nur die Küche macht aktuell etwas "Kopfschmerzen".
Ich muss dazu sagen, dass akteull unsere Küche nicht gerade oft nutzen aber wir hoffen das sich dies dann durch die neue Küche ändert..
Und gerade deswegen wollen wir jetzt keine Fehler, aus unser Unerfahrenheit, bei der Küchenplanung machen und hoffen auf gute und neue Ideen für unsere Küche.

Wir waren auch schon bei Küchenplaner, aber diese haben bis jetzt noch nicht wirklich überzeugt und haben nur unsere Ideen eingezeichnet. Diese sahen dann aber sehr gequetscht und nicht wirlich schön aus!!!

Wir wünschen uns eigentlich eine offene Küche mit Kochinsel, ist aber auch kein unbedingtes muss.

Könnt ihr uns vielleicht Mit neuen Ideen und einem anderen Blickwinkel auf die ganze Sache helfen. Wir würden uns sehr freuen!



Checkliste zur Küchenplanung von protz

Anzahl Personen im Haushalt : 4
Davon Kinder? : 2
Körpergrössen aller Hauptbenutzer (wegen Arbeitshöhe ) in cm : 189cm und 167cm
Art des Gebäudes? : Neu-/Umbau, Planänderungen möglich
Brüstungshöhe des Fensters (in cm) : Schiebetür
Fensterhöhe (in cm) : Schiebetür
Raumhöhe in cm: : normale Raumhöhe
Heizung : Fussbodenheizung
Sanitäranschlüsse : vollkommen variabel
Ausführung Kühlgerät? : Integriert im Hochschrank
Kühlgerät Größe : noch unbekannt
Ausführung Tiefkühl (TK)-Gerät : Nicht erforderlich bzw. steht woanders
Dunstabzugshaube? : Abluft
Hochgebauter Backofen ? : Ja
Hochgebauter Geschirrspüler ? : ja
Kochfeldart? : Induktion
Kochfeldbreite ca. (in cm)? : Standard
Spülenform: : Noch nicht festgelegt
Weitere geplante Heißgeräte : Einbaumikrowelle, Dampfgarer mit Wasseranschluß
Küchenstil? : modern
Sitzmöglichkeit in der Küche / im Küchenbereich als : Tresen in Barhöhe
Sitzmöglichkeit: Für wieviel Personen? : 2
Sitzmöglichkeit: Tisch - wenn gesonderter Tisch oder offene Küche : Wird nach Bedarf neu gekauft
Gewünschte o. vorhandene Tischgröße : Ausziehbar bis 8 Personen
Wofür soll der Sitzplatz in der Küche genutzt werden? Wie häufig? : Sitzmöglichkeit für ein Frühstück zu zweit oder dass andere beim Kochen zu schauen können
Welche Arbeitshöhe ist angedacht (in cm)? : Standard, da 2 deutlcih unterschiedlich Große Personen die Küche nutzen
Was steht auf der Arbeitsplatte oder soll dort stehen? : Toaster
Welche weiteren Küchenmaschinen müssen in der Küche untergebracht werden? :
Was soll in der Küche außer den Standards untergebracht werden? : Geschirr komplett (nichts in Ess-/Wohnzimmer)
Welchen Stauraum gibt es sonst noch? : Geschirr/Gläserschrank im Wohn-/Esszimmer, Hauswirtschaftsraum
Was/wie wird gekocht? (Alltagsküche, Menüs, Snacks usw) : Alltagsküche
Wie häufig wird gekocht? : (fast) täglich 1x warm
Wird alleine gekocht? Oder auch gemeinsam? Mit und für Gäste? : Mit und für Gäste
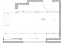
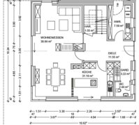
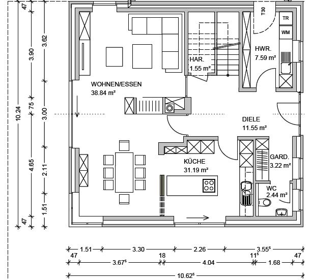
Was stört an der bisherigen Küche und was soll die neue Küche unbedingt können? Warum? : Einfach neue Ideen für die anliegende Zeichnung. Wir würden gerne direkt über die eingezeichnete Schiebetür in den Garten gehen können.
Preisvorstellung (Budget) : bis 10.000,-
 

Anhänge

  • Auszugküche2.jpg
    Auszugküche2.jpg
    35,8 KB · Aufrufe: 232
  • Auszugküche.jpg
    Auszugküche.jpg
    28 KB · Aufrufe: 238
  • Erdgeschoss.JPG
    Erdgeschoss.JPG
    59,6 KB · Aufrufe: 254
AW: Neue Ideen gesucht....

:welcome: protz

(wobei es netter wäre Dich mit einem anderen Namen anzusprechen :-X)

Gute Einführung, gute vermasste Grundrisse :2daumenhoch: - klare Ansage, was ich euch wünscht. Wie weit seit ihr?

Grundsätzlich finde ich den Vorschlag vom Architekten schonmal gut; folgende Aenderungen würde ich empfehlen:
  • Schiebetüre in die Küche
  • die Schiebetüren nach draussen würde ich jeweils andersrum öffnen (Küche & Wohnen - das würde m.E. besser funktionieren - ich würde in der Küche den Durchgang im Anschluss an die Zeile / Gegenüber von der Türe wollen.
wenn ich euch den Alno -Planer runter ladet legt doch bitte gleich das ganze Wohnen - Essen - Küche an, bei einer offenen Küche sollte man die Umgebung mit planen ;-) um die Raumwirkung erleben zu können.

Sobald es einen Alno gibt, können wir mal Möbel schubsen.
 
AW: Neue Ideen gesucht....

ohhh kann ich den namen noch irgendwo ändern?
 
AW: Neue Ideen gesucht....

Bitte ermittelt getrennt die jeweils optimale Schnibbelhöhe: da es wahrscheinlich zwei getrennte Arbeitsflächen geben wird; könnte man auch einfach zwei verschiedene Höhen realisieren.


ARBEITSHÖHE ermitteln:
- Ellbogen abwinkeln und von dort 15 cm runter messen (unpräzise)
- z. B. Bügelbrett nehmen und in verschiedenen Höhen Probeschnippeln und messen, wenn es einem am bequemsten erscheint.
- maximale Höhe ist Oberkante Beckenknochen.
Sobald man die Schultern hochzieht ist es zu hoch; wenn man sich vorbeugt zu niedrig.
Ausführlicher in Optimale Arbeitshöhen beschrieben.
 
AW: Neue Ideen gesucht....

;D Du könntest mit einem positiveren Namen signieren ;-)


EDIT: Warum wird von den 'Kochtopfguggern' immer angenommen, dass sie alle Fusskrank sind und einen Sitzplatz brauchen :rolleyes:?
 
AW: Neue Ideen gesucht....

Ich bekomme unter WIN7 immer einen Runtime error 217 und kann den ALNO nicht öffnen.:stocksauer:
 
AW: Neue Ideen gesucht....

https://www.kuechen-forum.de/forum...rzanleitung-incl-pdf-zum-herunterladen.2883// da findest du eine Anleitung, wie du den Alno auch in WIN7 nutzen kannst und wenn man ihn dann nicht über Programme, sondern direkt im Editor aufruft ist er meistens voll nutzbar (nennt sich da KPL und ist eine Anwendung).

Da der Esstisch nicht wirklich weit weg vom Küchenbereich ist, würde ich mir einen Tresen in Barhöhe echt sparen, wenn es machbar ist, vielleicht einen Sitzplatz, den man auch als Schnippelplatz nutzen kann, aber nicht erzwungen ;-), bei eurer Körpergröße kommt ihr wahrscheinlich auf eine APL-Höhe bummelig über 90 cm und das ist hoch genug, um *zwanglos* ein Sektglas ab stellen zu können*drinksund sich als Zuschauer bequem an zu lehnen (im Küchenstudio oder Möbelladen mal ausprobieren, Deko steht da ja genug rum ;-))
 
AW: Neue Ideen gesucht....

Da der Esstisch nicht wirklich weit weg vom Küchenbereich ist, würde ich mir einen Tresen in Barhöhe echt sparen,

haben wir auch gemacht... siehe meine Küche in meiner Signatur... wenn unsere Insel nicht oft mit Deko vollgestellt wäre ;D hätte ein Sektglas sogar noch Platz!
 
AW: Neue Ideen gesucht....

Jep, das hat doch *Gesicht*, eine Fläche, optisch ruhig und Deko kann als Stilmittel eingesetzt werden.
Und wer wirklich *fusslahm* ist, der dreht halt den Stuhl in Richtung Küche.
 
AW: Neue Ideen gesucht....

Von den vorgeschlagenen Küchenplaner funktioniert so wirklich keiner bei mir oder es stehen nicht genug Auswahlmöglichkeiten bei der Raumgestaltung und Kücheneinrichtung zur Verfügung.
Hat jemand noch eine Idee für einen gutebn Küchenplaner? Der ALNO funktioniert bei mir unter WIN7 leider gar nicht. Egal wie ich versuche das Programm zu starten, bekomme ich immer eine Fehlermeldung.

:stocksauer::stocksauer:
 
AW: Neue Ideen gesucht....

Das ist komisch, habe WIN7 64-er und bei mir läuft er, wenn auch mit kleineren Macken, aber damit kann ich leben.
Eventuell noch mal komplett deinstallieren, neu aufspielen und ERST wie in der Alnohilfe beschrieben die Zugriffsrechte ändern und dann auf rufen.
Könnte es vielleicht auch noch an Adminrechten liegen?
 

Ähnliche Beiträge

Neff Hausgeräte Ballerina Küchen Blum Bewegungstechnologie Weibel - Intelligente Küchenlüftung

Neff Spezial

Blum Zonenplaner

Weibel Abluft-Tuning

Weibel Abluft-Tuning
Zurück
Oben