Fertig mit Bildern Neubau-Wohnung: Standort und Planung Küche

Außerdem scheint diese Querwand eine tragende Wand zu sein ... du hast da wohl in der Zeichnung ein weißes Feld drüber gelegt, aber am rechten Rand sieht man noch, dass die Wand dicker eingetragen ist. Würde auch zu den sonstigen Maßen passen.
 
Mir gefällt Appartement C1.18 etwas besser, auch wenn schwerer zu designen und möblieren weil mehr quadratisch. Die Idee des gemeinsamen Balkons, der große Westbalkon am Wohnbereich und sogar den kleinen "Vorflur" finde ich extrem charming. Im ersten von zwei Stockwerken zu wohnen hat auch Vorteile, z.B. ist es wärmer mit weniger Heizeinsatz ;-) (bin gerade hier am Bibbern, merkt man das?).

Gerade wenn man tagsüber arbeitet ist so ein Westbalkon was Tolles. Ich hab ja sowohl einen in Richtung Süden als auch einen in Richtung Westen, und abends heim kommen und noch die Sonne genießen ist einfach toll.

Würde mir überlegen, ob eine Schiebetür in den ein oder anderen Raum Sinn ergibt (here I go again, bekennender Schiebetür-Fan...), einfach um zusätzlich Bewegungsfreiraum und Stellfläche zu schaffen. Die Tür (und Wand) zur Waschküche eventuell ganz weg lassen, mit Einbaumöbeln dort die WaMa/Tr verstecken und einen großzügigen Mudroom gestalten...:kiss:Einfach ein schönes Appartement!
 
C1.18 mehr quadratisch als das vorige? Ich finde dass das C1.18 gerade etwas einfach zu möblieren ist weil es nicht ganz so quadratisch ist ;D
Beim Balkon bin ich ja gerade so in Zweifel: es ist eine Loggia mit Wänden rechts und links und überdacht. Gibt das dann noch das Balkon-Gefühl?
Hach, es ist schwierig: beide Wohnungen haben Vor- und Nachteile. Das alte hat einen etwas schöneren Ausblick, ist aber schwierig zu möblieren, hat ein Fenster im Bad und liegt ganz oben im Gebäude.
Die neue Alternative ist günstiger geschnitten, hat eine Loggia zum Westen hin, aber ist 1. OG von 2OG, hat das Nachbargebäude gegenüber näher dran. Uuih uih, ich weiss es einfach nicht. Ein wahres Luxusproblem.
(hinzu kommt dass ich schon eine Vorauszahlung auf App 1 gemacht habe. Ich kann diese vollständig zurückfordern. Ist aber mit viel Verwaltungsaufwand und schlecht gelaunten Maklern verbunden)
 
Wir haben eine kleine Loggia und lieben das. Man ist draußen, aber geschützt vor Wind, zuviel Sonne (dann mögen wir dort nicht mehr sitzen und braten) und Nachbarsblicken.

Hast du denn die Chance, die Wohnung einfach mal zu begehen, um dir selbst einen Eindruck zu machen?
 
Fenster im Bad und ganz oben waren für mich bei meinem Wohnungskauf, zusammen u.a. mit der Lage, wichtige Voraussetzungen. Dafür habe ich in Kauf genommen, dass die Einrichtung z.T. nicht so einfach ist und der Grundriss nicht überall so ist, wie ich ihn geplant hätte (was allerdings in meine Fall bei sehr vielen Immobilien der Fall ist). Die Loggia kann sehr angenehm sein, um auch bei schlechtem Wetter draußen sitzen zu können, aber die Wände schlucken *sehr viel* Licht.
 
Na ja, die bisher angezahlte Wohnung hat dann aber nur einen kleinen Westbalkon, wo noch nicht mal ein Tisch richtig passt.

Und ja, ich finde auch eine Loggia bietet Balkongefühl mit Zusatznutzen. Und Westen finde ich auch total gut ... eben wg. Nachmittag/Abend.

Für die neue Wohnung musst du auf jeden Fall klären, wie die Fensterseite zur Loggia aussehen wird und ob du links unten im Wohnraum dann auch 60 cm Wand hast. Welche Öffnungen du wählen kannst in dieser Fensterwand usw.

In der neuen Wohnung lassen sich in den Schlafräumen viel bessere Schranknischen bilden, die dir ordentlich Stauraum bieten.
 
Ja, die neue Wohnung erscheint bei mir auf dem Bildschirm als komplettes Quadrat. Also insgesamt, der reine Wohn-Ess-Küchenbereich ist natürlich schön rechteckig.

Was Kerstin mit den Schranknischen anspricht ist allerdings wirklich ein guter Grund, und auch, wenn du die Fenster noch selbst bestimmen kannst.

Was heißt denn "dicht dran" beim Nachbargebäude? Weniger als 10m? Ich bin selbst im Staffelgeschoss (nicht ganz oben, aber Gefühl von ganz oben) und würde mir dieser Tage sehr gerne eine Loggia wünschen da es draußen einfach nur windet und dadurch zu kalt ist um es zu genießen. Aus welcher Richtung weht es denn bei dir hauptsächlich? Das würde ich noch einbeziehen in meine Entscheidung.

Besonders der Eingangsbereich der neuen Wohnung hat es mir persönlich halt total angetan, den kann man so schnuckelig machen:kiss:, und auch wenn es eine Loggia ist, den größeren Balkon werdet ihr deutlich besser nutzen können als die beiden kleineren in der ersten Wohnung.
 
Die neue Wohnung gefällt mir auch besser, Schlafzimmer kann mit begehbaren Schrank gestaltet werden, die Loggia bei über 4,5 m wird nicht einengend wirken und bietet doch mehr Windschutz. Wohnzimmer ist auch deutlich besser zu möblieren. Ein Flur im Eingang mit Garderobe ist gerade im Winter viel wert.
 
Toll dass ihr verschiedene Erfahrungen und Aspekte aufgezeigt habt.
Meine Sorge dass eine Loggia kein Balkon-Draussen-Gefühl gibt, ist anscheinend unberechtigt.
Ich bin gestern noch einmal zur Baustelle gegangen um zu gucken. Von der ursprünglichen Wohnung steht noch nichts. Da wird gerade die Tiefgarage gegossen. Die zweite Wohnung ist schon etwas weiter, es steht der Rohbau, noch ohne Fenster. Ich konnte die Loggia schon sehen. Leider, wirklich leider zeigt die Loggia in den "Innenraum" vom L mit einem seitlichen Gebäude direkt daneben. (ca 6m). Es ist eher ein U wobei die Loggia dann der untere Strich vom U wäre mit Sicht auf den Innenraum. "Oberseite" auch begrenzt von Gebäuden. Dazu noch im 1. von 3 Geschossen (ich dachte es wären 2. Sind aber drei, wobei das Dachgeschoss kleiner gehalten ist um eine Dachterrasse zu kreieren. Ich fürchte dass mir die Lage zu eingeschlossen ist. Ich kontaktieren den Makler nocheinmal um zu hören was der sagt oder ober nicht noch eine dritte Alternative hat.
Vielen lieben Dank für eure Tips. Ich werde wohl entweder bei Alternative 1 bleiben oder nochmal ganz neu rumhacken. Ich wohne leider in einer recht teuren Grossstadt wo die Auswahl begrenzt ist (vor allem wenn das Budget auch begrenst ist)
 
So, ich habe nun Klarheit: ich komme aus dem ersten Vertrag nicht mehr raus ohne Schadenersatz. Es wird nun Wohnung 1 wie ursprünglich gedacht. Also ist die Planung immerhin nicht umsonst gewesen
Ich befasse mich jetzt nochmal damit wie man quadratische Räume am besten einrichtet ich schneien nochmal den Grundriss aus den Kerstin auf den ersten Seiten geplant hat. Den Durchgang zu den Schlafräumen mittig zu legen finde ich eine gute Idee..Muss mich aber mal näher damit befassen. Auch mit den Kosten die daran verbunden sind.
 
So, nach diversen Umwegen (eventuell andere Wohnung, dann doch nicht, Ausflug ins Hausbauforum um die Badezimemreinteilung zu besprechen, nochmalige Küchenplanung für mich selber) bin ich nun wieder da und hoffe auf weitere Tips für meine Küchenplanung.
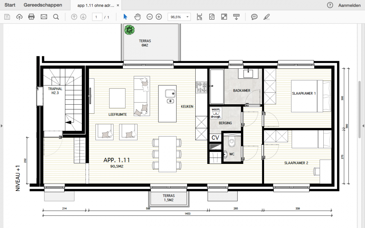
Anbei der Grundriss so wie er im Grund bleibt: Durchgang Planrechts vom grossen Raum zu den Schlafzimmern bleibt Planrechts unten. Eine Verlegung in die Mitte geht nicht wegen zu teuer und wegen dem Leitungsschacht der dann im Weg stehen würde.

Es bleibt also der Raum von 580x598 zum planen wobei die Küche planrechts die Wand von 480 maximal zur Verfügung hat + Insel. Ich will jedoch nicht die vollen 480 ausnutzen, das wird mir dann zu viel und zu massiv.

Es wird auf jeden Fall eine Spülinsel werden. Weiterhin hätte ich gerne eine hochgestellte Spülmaschine. Aber da habe ich ein Problem: ich finde keinen geeigneten Platz dafür: entweder dicht an der Spüle aber dann ist die Klappe im Weg oder in die planobere Ecke, aber dann ist sie weit weg von der Spüle.

Ich füge ein Bild vom Grundriss hinzu (als pdf und als jpeg) und einen in der früheren Version erstellten Alno Plan mit einigen Änderungen. Der Plan folgt der Johaennes-Kochnische.
Wenn ich hier HS mit BO tausche mit GS dann steht die GS seitlich frei. Das scheint mir so unpraktisch wegen keinem seitlichem Spritzschutz. Wo setzte ich am besten die GS?

Eine Überlegung zur Optik: wenn die HS rechts und links verteilt stehen, sieht es doch irgendwie massiv aus. HS alle rechts und nur OS bis zur Wand am Fenster könnte etwas eleganter bzw luftiger aussehen, oder? Ich werde heute nachmittag nochmal die Anordnung verändern und zeige die neuen Versionen dann hier.
Habt ihr Tips wie ich die Optik zo zurückhalten wie möglich halten kann? Welche Anordnung ist dabei am vorteilhaftesten?

Hier noch die Beschreibung des Plans:

Zeile von planoben nach unten bzw von links nach rechts:
Blende
60 HS (Kühl)
40
80
60
HS GSP
HS BO

Insel:
ingesamt 200x80 Abmessungen, wovon 100 Spülenschrank und 100 aufgeteilt auf MUPL und Rest, eventuell Sammy-Schrank mit unten 100 und oben 40-60 (ist ein Samy-Schrank teurer als zwei einzelne US?
 

Anhänge

  • app 1.11 ohne adresse.pdf
    261,2 KB · Aufrufe: 259
  • foto ursprünglicher plan ohne Adresse.png
    foto ursprünglicher plan ohne Adresse.png
    241,4 KB · Aufrufe: 310
  • KS oben ohne vorrat nische 180.KPL
    3,9 KB · Aufrufe: 189
  • KS oben ohne vorrat nische 180.POS
    15,3 KB · Aufrufe: 200
  • Schermopname (5).png
    Schermopname (5).png
    390,1 KB · Aufrufe: 290
  • Schermopname (6).png
    Schermopname (6).png
    506,7 KB · Aufrufe: 306
Zuletzt bearbeitet:
Ich habe auch nochmal eine Version gebastelt in der die HS zusammen stehen: ich kann mich nicht recht entscheiden was ich schöner finde und vor allem nicht, was geeigneter für den Raum ist.
Ausserdem verspringen die Schränke ein wenig im Alno -Bild. Man möge sich schöne gerade Kanten vorstellen :-)
 

Anhänge

  • alle HS rechts Nische 170.KPL
    3,9 KB · Aufrufe: 207
  • alle HS rechts Nische 170.POS
    15,5 KB · Aufrufe: 200
  • Schermopname (7).png
    Schermopname (7).png
    433,4 KB · Aufrufe: 271
  • Schermopname (8).png
    Schermopname (8).png
    406,3 KB · Aufrufe: 261
  • Schermopname (9).png
    Schermopname (9).png
    651,7 KB · Aufrufe: 255
  • Schermopname (7).png
    Schermopname (7).png
    433,4 KB · Aufrufe: 272
  • Schermopname (8).png
    Schermopname (8).png
    406,3 KB · Aufrufe: 248
  • Schermopname (9).png
    Schermopname (9).png
    651,7 KB · Aufrufe: 259
  • alle HS rechts Nische 170.KPL
    3,9 KB · Aufrufe: 193
  • alle HS rechts Nische 170.POS
    15,5 KB · Aufrufe: 207
Ich frage noch einmal: kann mir jemand helfen um den besten Platz für den GSP zu finden?

Der Abstand zwischen Zeile und Insel ist 100, die Insel wird 190 oder 200 lang. Wenn der GSP offen steht, dann ist die Klappe im Weg. Ich las in einem anderen Faden dass man darauf achten sollte dass man bei geöffneter Klappe immer noch einen Durchgang hat. Das heisst das bei die GSP ausserhalb des Bereichs der gegenüberliegenden Insel stehen sollte?
Oder wäre es nicht so schlimm wenn der GSP gegenüber der Insel liegt?
 
Bei einem Abstand von 100cm zwischen Zeile und Insel hättest Du noch einen Durchgang von 40cm Breite. Besonders viel ist das nicht, aber man kommt schon noch durch. Die Frage ist, wie oft der Geschirrspüler bei Dir offen steht. Bei mir ist er außer beim Ein- und Ausladen grundsätzlich zu, aber ich kenne auch Leute, die während des gesamten Kochens den Spüler offen stehen haben. Bei ersterem wäre es zu verschmerzen, bei zweiterem würde auf Dauer nerven.
 
Bisher koche ich auch mit geschlossenem GSP, einfach weil es anders nicht möglich ist. Bei mir in der jetzigen Küche habe ich bei geöffneter Klappe einen Durchgang von 20cm was wirklich nervig ist. 40 cm würde wohl gehen. Und kochen mit geöffneter GSP muss ich mir ja gar nicht erst angewöhnen :-)
 
wo was steht hängt im grossen und ganzen davon ab, wo sich die Spüle befindet und wo die Hauptarbeitsfläche ist. Denn das wirkt sich wieder auf die Kochfeldposition aus und den GSP.

Ich habe deinen Plan zurechtgerückt und die Wandzile 20cm verlängert, damit im Kochbereich 180cm Platz sind.

Im Gundriss siehst du die GSP Tür, gegenüber den ausgezogenen MUPL . Ich finde, dass bei diesem layout sich zuviel in einer Ecke abspielt.

Die Insel ist 225cm plus Blenden lang, 100cm tief.

peerklee1.JPG peerklee2.JPG
 

Anhänge

  • alle HS rechts Nische 170.KPL
    3,9 KB · Aufrufe: 190
  • alle HS rechts Nische 170.POS
    18,6 KB · Aufrufe: 202
der GSP ist besser planoben untergebracht. Auch gefällt es mir optisch besser.

peerklee21.JPG peerklee22.JPG
 

Anhänge

  • peerklee-evelin-PLAN1.KPL
    3,9 KB · Aufrufe: 169
  • peerklee-evelin-PLAN1.POS
    18,3 KB · Aufrufe: 198
Danke, Evelien! Eine ähnliche Idee habe ich schon mal verworfen. Da hatte ich den GSP alleine planoben und BO und KS unten. Bei deiner Idee muss die Spüle auf der Insel auch nach oben wandern. Dann steht sie gefühlt im Wohnzimmer, denn die planobere linke Ecke wird das Wohnzimmer mit Couch und Leseecke. Rational hat das gar keinen Grund aber es fühlt sich so an als wäre diese planobere Seite der Insel "die Schönere".
Nur GSP ohne Spüle nach planoben umzuziehen ist irgendwie auch Mist, dann wäre mir die Spüle zu weit weg vom GSP.
Ich lasse deine Idee noch ein wenig sacken, eventuell kann ich mich "mit der Spüle im Wohnzimmer" ja noch mehr vertraut machen.
 
tja, so ist das halt, man muss sich entscheiden. Ich weiss nicht warum viele denken, dass eine Spüle immer mit Schmutz, dreckigem Geschirr verbunden ist. Bei mir ist das halt nicht so. Was man von meiner Spüle sieht, ist der Wasserhahn, das Becken ist ein 500mm Unterbau, da kann man auch was reinstellen. Was man bei mir am Ende in der Küche noch sieht, ist eine dreckige Pfanne und ein Topf, die stehen aber nicht bei der Spüle, die stehen auf dem Kochfeld. Mit Indu muss man alles vorbereiten. Und während was vor sich hinköchelt, landen dann schon die Schälchen/Teller/Schneidbretter in den GSP. Und ganz am Ende trägt bei uns jeder (2P) seinen Teller in die Küche und in den GSP.
 

Ähnliche Beiträge

Neff Hausgeräte Ballerina Küchen Blum Bewegungstechnologie Weibel - Intelligente Küchenlüftung

Neff Spezial

Blum Zonenplaner

Weibel Abluft-Tuning

Weibel Abluft-Tuning
Zurück
Oben