Unbeendet Modernisierung der Küche aus 1981

amexio

Mitglied
Beiträge
2
Hallo liebe Küchenfreunde,

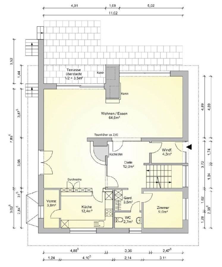
wir haben ein Haus aus dem Baujahr 1981 gekauft. Die vorhandene Einbauküche aus dem Herstellungsjahr soll komplett ersetzt werden. Hierfür wird zunächst ein Einbauschrank mit Tür entfernt werden. Es verbleibt an der Decke ein verkleideter Stahlträger, der den Raum zwischen Essbereich und Küche abgrenzt.

An dieser Stelle soll die Kochinsel beginnen. Die Dunstabzugshaube, ist in der beigefügten Planung noch nicht berücksichtigt. Aktuell befindet sich das Kochfeld noch an der rechten Wand (siehe Grundriss). Von dort führt ein Rohr zur nahe liegenden Außenwand, also ein Abluft-Dunstabzug. Aus unserer Sicht stellt sich nun die Frage, an der neuen Position in der Kochinsel eine Umluft-Abzugshaube, entweder versenkbar oder an der Decke hinter dem Stahlträger zu planen, oder ein verkleidetes Rohr ums Eck durch die bestehende Außenwand zu führen. Gibt es hierfür eine gute Lösung?

Gelber Sack und Papiermüll, soll im Vorratsraum untergebracht werden. Unter der Spüle daher nur der Restmüll. Ebenso die meisten Vorräte. In der Küche sollen vor allem Geschirr, Töpfe, Besteck, Geräte und häufig benötigte Lebensmittel untergebracht werden.

Auf der Seite mit dem ursprünglichen Kochfeld sollen durchgehend hohe Schränke verbaut werden. Der Eckschrank kann mit einem Rolltor Toaster, Wasserkocher oder Kaffeemaschine beinhalten. Auf dieser Seite sollen zudem die Kühl-/Gefrierkombination, der Backofen und eine Mikrowelle vorhanden sein. Ein durchgehender Apothekerschrank soll ebenfalls unbedingt enthalten sein. Der untere Eckschrank ist mit einem durchgehenden Boden bis zur Wand geplant. Ohne Auszugsfach, bei dem viel Platz verloren geht! Sollte der Freiraum oberhalb der Schränke bis zur Decke verkleidet werden?

Bei der Arbeitsplatte überlegen wir eine Glasplatte zu wählen. Wir sind allerdings noch unsicher, ob im täglichen Gebrauch unschöne Kratzer die Optik zerstören.

Wir freuen uns auf hilfreiche Tipps!

Laura & Marco
grundriss-jpg.197133

ansicht-vom-essbereich-jpg.197135


Checkliste zur Küchenplanung

Anzahl Personen im Haushalt: 4
Davon Kinder?: 2
Art des Gebäudes?: Bestandsbau, (kleinere) Umbauten möglich
Körpergrössen aller Hauptbenutzer (wegen Arbeitshöhe ) in cm: 169 und 183
Brüstungshöhe des Fensters (in cm):
Fensterhöhe (in cm):
Raumhöhe in cm:
245
Heizung: Fussbodenheizung
Sanitäranschlüsse: variabel an aktueller Wand
Ausführung Kühlgerät: Integriert im Hochschrank (60cm)
Kühlgerät Größe: noch unbekannt
Ausführung Tiefkühl (TK)-Gerät: Eigenständiges Gerät bis 88 cm Höhe
Dunstabzugshaube: Abluft
Backofen etc. hochgebaut?: Wenn möglich
Hochgebauter Geschirrspüler ?: Nein
Kochfeldart: Induktion
Kochfeldbreite ca. (in cm)?: noch unklar
Spülenform: 1 Becken mit Abtropffläche
Geplante Heißgeräte: Einbaumikrowelle, Backofen
Küchenstil: Modern
Sitzmöglichkeit in der Küche / im Küchenbereich: Keine
Sitzmöglichkeit: Für wieviel Personen?: Nein
Sitzmöglichkeit: Tisch - wenn gesonderter Tisch oder offene Küche: Keiner
Gewünschte o. vorhandene Tischgröße:
Wofür soll der Sitzplatz in der Küche genutzt werden? Wie häufig?:
Welche Arbeitshöhe ist angedacht (in cm)?:
Was steht auf der Arbeitsplatte oder soll dort stehen?:
Kaffeemaschine, Wasserkocher, Messerblock, Allesschneider, Toaster
Welche weiteren Küchenmaschinen müssen in der Küche untergebracht werden?: Handrührgerät, Eierkocher
Was soll in der Küche außer den Standards untergebracht werden?: Geschirr komplett (nichts in Ess-/Wohnzimmer)
Welchen Stauraum gibt es sonst noch?: Speisekammer, Keller
Was/wie wird gekocht? (Alltagsküche, Menüs, Snacks usw): Alltagsküche
Wie häufig wird gekocht?: (fast) täglich 1x warm
Wird alleine gekocht? Oder auch gemeinsam? Mit und für Gäste?: Gekocht wird von 1-2 Personen
Was stört an der bisherigen Küche und was soll die neue Küche unbedingt können? Warum?:
Welche Mülltrennung soll in der Küche vorgehalten werden?:
Restmüll
Steht schon ein Küchenhersteller fest oder wird bevorzugt?: Leicht, next125
Steht schon ein Gerätehersteller fest oder wird bevorzugt?: Miele oder Siemens
Preisvorstellung (Budget): bis 20.000,-
 

Anhänge

  • grundriss.JPG
    grundriss.JPG
    81,3 KB · Aufrufe: 1.001
  • planungsansicht.JPG
    planungsansicht.JPG
    78,8 KB · Aufrufe: 416
  • Ansicht vom Essbereich.JPG
    Ansicht vom Essbereich.JPG
    84,5 KB · Aufrufe: 1.231
  • ansicht vom hwr.JPG
    ansicht vom hwr.JPG
    69,9 KB · Aufrufe: 458
  • fensterseite.JPG
    fensterseite.JPG
    68,6 KB · Aufrufe: 374
  • Wandseite.JPG
    Wandseite.JPG
    77,9 KB · Aufrufe: 423
  • kochinsel von der Küche aus.JPG
    kochinsel von der Küche aus.JPG
    62 KB · Aufrufe: 382
  • Küchenplanung_ALNO2.KPL
    3,9 KB · Aufrufe: 291
  • Küchenplanung_ALNO2.POS
    6,4 KB · Aufrufe: 302
Zuletzt bearbeitet:
Spülenansicht.JPG
:welcome:
Ich würde auf jeden Fall über einen hochgebauten Geschirrspüler nachdenken. Es gibt nichts bequemeres. Da die Tür zur Kammer nicht in die Küche öffnet, wäre rechts vom Fenster ein idealer Platz. Den Müll unter der Spüle , solltest du durch MUPL ersetzen.
Auch den Apothekerschrank streichen ( kostet viel und bietet wenig Platz ).
Die Spülenseite würde ich wie folgt aufteiilen :
tote Ecke / 100er Auszug 3-3 mit Innenschubkasten/ 80er Spüle 3-3 / 100er auszug unten darüber je 2x 50er Auszug ( links mit Mülltrennung / rechts mit Inneschubkasten ) und dann Hochgebauter GSP.
 
Zuletzt bearbeitet:
Einmal so
usführung Kühlgerät: Integriert im Hochschrank (60cm)
Kühlgerät Größe: noch unbekannt
Ausführung Tiefkühl (TK)-Gerät: Eigenständiges Gerät bis 88 cm Höhe
und dann
Auf dieser Seite sollen zudem die Kühl-/Gefrierkombination,

Was genau ist denn geplant?

Zum Apothekerschrank :
full


Zum Eckschrank?
Was wollt ihr da denn unterbringen? Lieber breitere Auszugsunterschränke, vorzugsweise in der Rasterung 2 Schubladen und 2 Auszüge = 6-rasterig
* 6 Raster - was heißt das? *
 
@llllincoln: Ein hochgebauter Geschirrspüler wäre schon schön. Auf der Fensterseite zerstört es aber ein wenig die Optik. Ggf. können wir den aber auch auf der fensterlosen Seite noch unterbringen.

Unter der Spüle hast du einen zweier Auszug eingeplant. Der Obere ist aufgrund der Spüle, aber nicht nutzbar, oder? Kommt man an die Anschlüsse bei Reparaturen etc. überhaupt noch richtig dran?


@KerstinB: Klar ist momentan nur, dass wir unten einen Gefrierschrank und darüber einen getrennten Kühlschrank möchten. Die Auswahloptionen im Erstellungsformular haben einfach nicht optimal gepasst. ;-)

Im Eckschrank sollen die Dinge untergebracht werden, die nur ganz selten verwendet werden, wie z.B. Fondue, Raclette etc.

Der Apothekerschrank wurde auch deshalb eingeplant, weil der sehr gut in die Lücke passt.
 
Der Auszug ist kein Problem.
Im Gegenteil ist er ideal für Sachen wie Pril, Geschirrtücher etc. Der GSP mit einem Auszug drunter. Prima Platz oben drauf für Kaffeeautomat etc. da steht er auch nicht im Weg.
 
Vorweg, der Grundriss eures Hauses gefällt mir gut. :top:

Ich habe einmal etwas umgeplant, da ich den Abstand zwischen den Zeilen als zu große empfinde und wenn du das Kochfeld mittig setzt, dass hast du sowohl rechts als auch links wenig Arbeits- bzw. Abstellfläche. Verwriklicht habe ich die hochgesetzte GSM, dafür den Apotheker und den Eckschrank geopfert. Bei einem Eckschrank hast du nur zwei Ebenen und davon ist ein Teil auch noch schlecht erreichbar. Damit der Abstand zwischen Spüle und Kochfeld nicht so groß ist, habe ich an der Fensterwand mit Übertiefe 75 cm geplant.

Beginnend planrechts, ab Mauervorsprung:
auf eine Blende verzichtet, da der Mauervorsprung nur ca. 57 cm tief ist
Kühlkombination
BO, ich würde euch anstelle der Mikrowelle einen DGC empfehlen. Am Wochenende war meine Tochter mit meiner Enkelin zu Besuch und anstelle der Mikrowelle hat sie die Gläschen im DGC regeneriert. Ging fast genauso schnell.
hochgesetzte GSM - hier ist deine Fantasie gefragt, da es diesen Schrank im Alno nicht gibt
Blende
tote Ecke 65 x 80 cm

planunten in Übertiefe, ab toter Ecke:
90er Auszug 1-1-2-2
50er Auszug 3-3, oben evtl. mit Innenschublade
60er Spüle - ohne Abtropfe, aber ein großes Becken
50er MUPL
90er Auszug
Blende

Halbinsel, rechts beginnend:
Wange
90er Auszug 1-1-2-2
90er Auszug 1-1-2-2 mit Kochfeld, hier würde ich ausnahmsweise Downdraft oder Bora empfehlen, denn die Räume haben nur eine Höhe von 2,46 cm und eine Deckenhaube braucht eine höhere Abkofferung als sie der Träger bietet.
40er Auszug 1-1-2-2
Wange

gegengestellt:
Auszugschränke, tiefenreduziert auf 50 cm
 

Anhänge

  • amexio_Mela_Draufsicht.JPG
    amexio_Mela_Draufsicht.JPG
    72,5 KB · Aufrufe: 363
  • amexio_Mela_Grundriss.JPG
    amexio_Mela_Grundriss.JPG
    35 KB · Aufrufe: 347
  • amexio_Mela_HS.JPG
    amexio_Mela_HS.JPG
    62,9 KB · Aufrufe: 363
  • amexio_Mela_Insel.JPG
    amexio_Mela_Insel.JPG
    62,3 KB · Aufrufe: 375
  • amexio_Mela_Inselrück.JPG
    amexio_Mela_Inselrück.JPG
    76 KB · Aufrufe: 368
  • amexio_Mela_Spüle.JPG
    amexio_Mela_Spüle.JPG
    62,6 KB · Aufrufe: 345
  • amexio_Mela.KPL
    3,9 KB · Aufrufe: 293
  • amexio_Mela.POS
    10,4 KB · Aufrufe: 308
Sehr schön, Mela

ich würde allerdings die Insel auf der Esszimmerseite auch als Esszimmer-Möbel behandeln und dort P2O-Türen einplanen und in einer Optik, welche zum Esszimmer passt.


Mir gefällt der Hausgrundriss auch richtig gut :-) das ist ein durchdachter grosszügiger Grundriss - ich gratuliere euch zu eurem neuen Heim.
 
Dei Aufteilung der Schränke habe ich einfach nach Gusto gewählt, so z.B. die Spülenzeile mit 3 US in 3-3. Ich habe einmal mit der Optik gespielt.
 

Ähnliche Beiträge

Neff Hausgeräte Ballerina Küchen Blum Bewegungstechnologie Weibel - Intelligente Küchenlüftung

Neff Spezial

Blum Zonenplaner

Weibel Abluft-Tuning

Weibel Abluft-Tuning
Zurück
Oben