- Beiträge
- 58.536
AW: Küche ohne Oberschränke
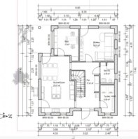
Da ist die Tür beim erneuten Laden umgesprungen. In der Erstvariante öffnet die Haustür nach innen
... ich sprach ja auch davon, dass dies als Skizze anzusehen ist.
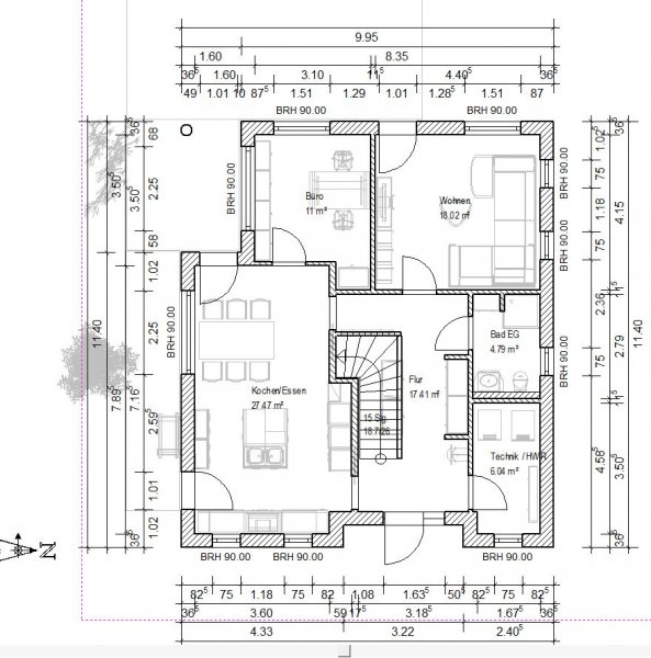
Man kann reine Abkofferungswände nachher auf ca. 8 cm reduzieren, aber die Hauswände würde ich intern immer mit den mind. 11,5 cm + Putz etc. rechnen.
Hier meine Abkofferung mit 8 cm Trockenbau:
-
__________________________
Ich habe mir meine Datei gerade nochmal geladen.
Der Flur hat eine Gesamtbreite von 295 cm. Die Schranknische habe ich mit 63 cm angelegt.
Und ja, auf ca. 200 cm wird der Flur dort nur ca. 110 cm Durchgangsbreite haben. Allerdings kommt man an der Stelle nicht zusätzlich noch aus einem Raum heraus und die ersten ca. 50 cm ist es links noch die nur ansteigende Treppe. Und, der Flur bietet insgesamt jede Menge Stauraum.
Besuch kann seine Jacken gleich im vorderen Bereich des Flures an der kleinen Garderobe abhängen und ihr als Familie habt aber 200 cm Schrank und wie gesagt evtl. Schubladen etc., die man in die Wand unter der Treppe integrieren kann als Stauraum für alles, was man so zum Außerhausgehen braucht. Und gerade mit Kindern ist das oft nicht wenig.
Von der Hauseingangstür bis zur Treppe sind es ca. 145 cm.
Desweiteren ist der Technikraum im direkten Zugang auch mal von der Küche aus .. so dass man da auch an ein evtl. dort noch gestelltes Vorratsregal schnell rankommt. Oder, wenn dann das 2. Kind da ist, dort im Technikraum tatsächlich schnell den Kinderwagen unterstellen kann.
-------------
Und, wie gesagt .. für mich waren 2 Dinge der Aufhänger, den Grundriss zu überdenken:
- Stauraumsituation im Flur .. da wo die Treppe die Wendelung macht, hat man nämlich erst eine Höhe von ca. 180 cm (wg. eurer Garderobenpläne dort)
- Küchengrundriss ... ich finde ihn einfach zu langgestreckt und schmal, die Tischsituation finde ich auch nicht ideal und mir würde da ernsthaft ein Ausgang fehlen ... wg. der berühmten Kräuter
--------------
Im übrigen finde ich nicht, dass man die Unterschränke vor Fenstern unbedingt übertief machen muss. Ich würde da auf jeden Fall die Brüstungshöhe so wählen, dass die APL bei den Fenstern in die Fensterlaibung laufen kann .. dadurch eben tiefe APL erreichen. Dazu eben auch keine Spüle oder ähnliches vors Fenster
-------------
Doppeltür zum Wohnraum .. die war bei euch mit ca. 176 cm Breite eingeplant ... was soll die Tür effektiv bringen? Was ist daran wirklich so toll?
Ich stelle mir jetzt im getauschten Grundriss:

vor, dass man das Wohnzimmer eben wirklich als Rückzugsraum nimmt. Das Büro kann bei Grundschülern durchaus auch mal Hausaufgabenraum sein .. etwas abseits vom Multifunktionsraum Kochen/Essen, aber bei einer Glastür durchaus noch im Blickbereich. Oder, wenn man auf der überdachten Terrasse sitzt
.
Die Frage ist halt auch immer, was macht ihr wann wirklich im echten Wohnbereich.
Da ist die Tür beim erneuten Laden umgesprungen. In der Erstvariante öffnet die Haustür nach innen
Man kann reine Abkofferungswände nachher auf ca. 8 cm reduzieren, aber die Hauswände würde ich intern immer mit den mind. 11,5 cm + Putz etc. rechnen.
Hier meine Abkofferung mit 8 cm Trockenbau:
-
__________________________
Ich habe mir meine Datei gerade nochmal geladen.
Der Flur hat eine Gesamtbreite von 295 cm. Die Schranknische habe ich mit 63 cm angelegt.
Und ja, auf ca. 200 cm wird der Flur dort nur ca. 110 cm Durchgangsbreite haben. Allerdings kommt man an der Stelle nicht zusätzlich noch aus einem Raum heraus und die ersten ca. 50 cm ist es links noch die nur ansteigende Treppe. Und, der Flur bietet insgesamt jede Menge Stauraum.
Besuch kann seine Jacken gleich im vorderen Bereich des Flures an der kleinen Garderobe abhängen und ihr als Familie habt aber 200 cm Schrank und wie gesagt evtl. Schubladen etc., die man in die Wand unter der Treppe integrieren kann als Stauraum für alles, was man so zum Außerhausgehen braucht. Und gerade mit Kindern ist das oft nicht wenig.
Von der Hauseingangstür bis zur Treppe sind es ca. 145 cm.
Desweiteren ist der Technikraum im direkten Zugang auch mal von der Küche aus .. so dass man da auch an ein evtl. dort noch gestelltes Vorratsregal schnell rankommt. Oder, wenn dann das 2. Kind da ist, dort im Technikraum tatsächlich schnell den Kinderwagen unterstellen kann.
-------------
Und, wie gesagt .. für mich waren 2 Dinge der Aufhänger, den Grundriss zu überdenken:
- Stauraumsituation im Flur .. da wo die Treppe die Wendelung macht, hat man nämlich erst eine Höhe von ca. 180 cm (wg. eurer Garderobenpläne dort)
- Küchengrundriss ... ich finde ihn einfach zu langgestreckt und schmal, die Tischsituation finde ich auch nicht ideal und mir würde da ernsthaft ein Ausgang fehlen ... wg. der berühmten Kräuter
--------------
Im übrigen finde ich nicht, dass man die Unterschränke vor Fenstern unbedingt übertief machen muss. Ich würde da auf jeden Fall die Brüstungshöhe so wählen, dass die APL bei den Fenstern in die Fensterlaibung laufen kann .. dadurch eben tiefe APL erreichen. Dazu eben auch keine Spüle oder ähnliches vors Fenster
-------------
Doppeltür zum Wohnraum .. die war bei euch mit ca. 176 cm Breite eingeplant ... was soll die Tür effektiv bringen? Was ist daran wirklich so toll?
Ich stelle mir jetzt im getauschten Grundriss:

vor, dass man das Wohnzimmer eben wirklich als Rückzugsraum nimmt. Das Büro kann bei Grundschülern durchaus auch mal Hausaufgabenraum sein .. etwas abseits vom Multifunktionsraum Kochen/Essen, aber bei einer Glastür durchaus noch im Blickbereich. Oder, wenn man auf der überdachten Terrasse sitzt
Die Frage ist halt auch immer, was macht ihr wann wirklich im echten Wohnbereich.
Zuletzt bearbeitet:
