Küchenplanung Küche für unseren Neubau

Rexel

Mitglied
Beiträge
8
Küche für unseren Neubau

Hallo zusammen,

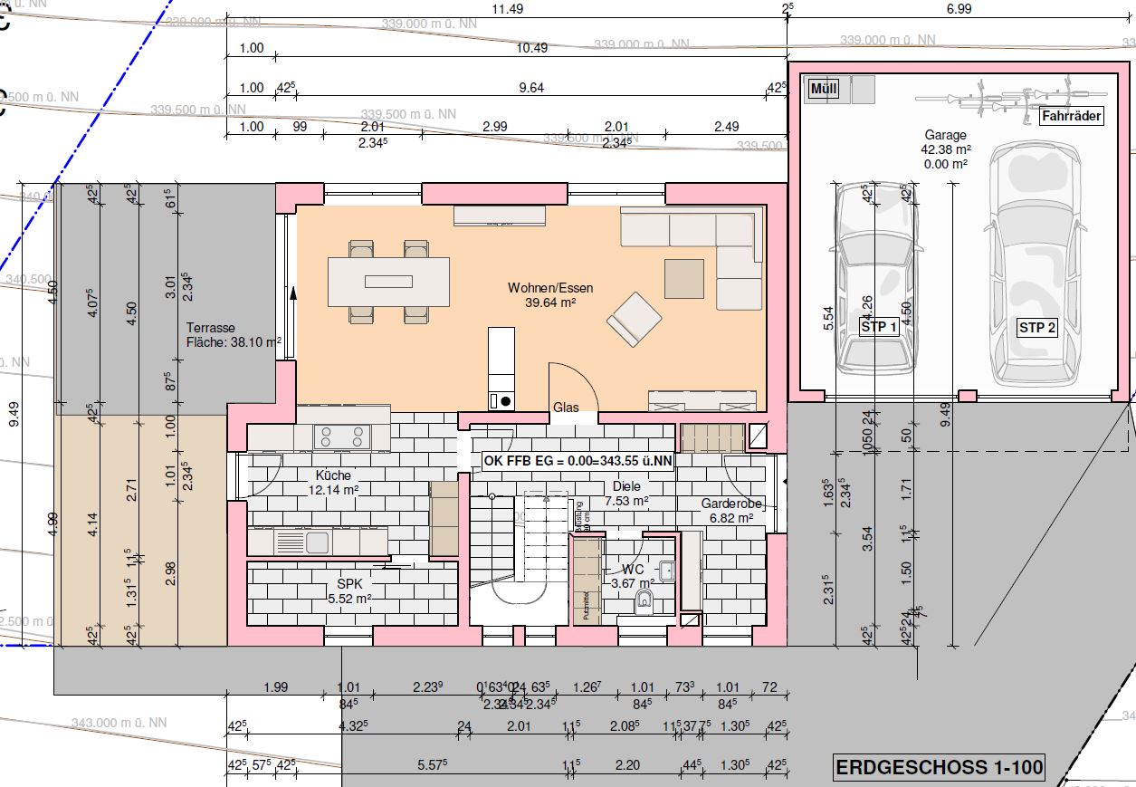
wir werden demnächst mit unserem Abenteuer Hausbau starten. Aktuell sind wir mit unserer Architektin dabei die letzten Details zu besprechen. Das bedeutet auch, dass wir aktuell noch Anpassungen am Grundriss vornehmen können.

Um das Thema Küche möglichst von Anfang an mit zu denken, möchten wir auch da schonmal in die Planung einsteigen. Um ein erstes Gefühl zu bekommen waren wir im Küchnstudio und haben uns eine erste Küche planen lassen. Die Bilder findet Ihr anbei. So richtig zufrieden sind wir damit jedoch noch nicht. So richtig stimmig ist das auch unserer Sicht noch nicht. Gefühlt ist auch die Arbeitsfläche etwas zu wenig
Vielleicht habt Ihr ja dazu noch Ideen uns Inspirationen.

Mögliche Varianten wären aus unserer Sicht:
Tür zur Terasse in ein Fenster umwandeln und so noch Platz für Unterschränke/Arbeitsfläche zu haben.

Oder die ganz extreme Variante: Tauch von Wohnzimmer und Küche. Das ist aber aktuell kein Szenario was wir ernsthaft in Erwägung ziehen. Aber wer weiß, wenn sonst nichts passt was uns gefällt rückt die Variante vielleicht wieder in den Vordergrund.

Viele Dinge sind noch flexibel und wir sind offen. Meine Frau träumt von einem Hchschrank mit versenkbaren Türen. Dazu hatte ich bereits einen Beitrag gestartet:
Hochschrank mit versenkbaren Türen -

Wir sind offen für Eure Ideen. Wenn Ihr noch weitere Details benötigt gebt gerne Bescheid.

Checkliste zur Kuechenplanung

Personenkriterien und Ergonomie
Anzahl Personen im Haushalt:
4
Davon Kinder: 2
Körpergrößen aller Hauptbenutzer in cm (wegen Arbeitshoehe): 175
Welche Arbeitshöhe ist angedacht (in cm)?: Standard

Gebäudekriterien
Art des Gebäudes:
Neu-/Umbau > Planänderungen möglich
Bruestungshöhe des Fensters (in cm): aktuell nur Terassenhöhe
Fensterhöhe (in cm):
Raumhöhe in cm:
aktuell geplant 262 abzgl Bodenaufbau
Heizung: Fußbodenheizung
Sanitäranschlüsse: vollkommen variabel

Einbaugerätekriterien
Ausführung Kühlgerät:
Integriert im Hochschrank (60cm)
Einbaukühlgerät Größe: Noch unbekannt
Ausführung Tiefkühl (TK)-Gerät: Nicht erforderlich bzw. steht woanders
Dunstabzugshaube: Umluft
Hochgebauter Backofen : ja
Geplante Heißgeräte: Backofen
Hochgebauter Geschirrspüler : ja
Art des Kochfeldes: Induktionskochfeld
Kochfeldbreite (ca. in cm): 80-90

Sitzmöglichkeiten
Sitzmöglichkeit in der Küche / im Küchenbereich:
Tresen in Barhöhe
Sitzmöglichkeit: Für wieviel Personen?: Für 2 Personen
Sitzmöglichkeit: Tisch - wenn gesonderter Tisch oder offene Küche: Keiner
Gewünschte oder vorhandene Tischgröße:
Wofür soll der Sitzplatz in der Küche genutzt werden und wie häufig:

Stauraum-Planung
Was steht auf der Arbeitsplatte oder soll dort stehen?:
Kaffeemaschine, Wasserkocher, Thermomix, Messerblock, Obstschale
Welche weiteren Küchenmaschinen müssen in der Küche untergebracht werden: Küchenmaschine, Handrührgerät, Pürierstab
Was soll in der Küche außer den Standards untergebracht werden: N. a.
Welchen Stauraum gibt es sonst noch: Geschirr/Gläserschrank im Wohn-/Esszimmer, Speisekammer

Kochgewohnheiten
Was/wie wird gekocht? (Alltagsküche, Menüs, Snacks usw):
Alltagsküche
Wie häufig wird gekocht: (fast) täglich 1x warm
Wird alleine gekocht? Oder auch gemeinsam? Mit und für Gäste?: Oft zu zweit. Auch mal mit Gästen aber eher überschaubar

Spülen und Müll
Spülenform:
1 Becken ohne Abtropffläche
Welche Mülltrennung soll in der Küche vorgehalten werden: Altpapier, Biomüll, Gelber Sack Müll, Restmüll

Sonstiges
Steht schon ein Küchenhersteller fest oder wird bevorzugt:
vollkommen offen
Steht schon ein Gerätehersteller fest oder wird bevorzugt: auch offen
Küchenstil: Klassisch
Was stört an der bisherigen Küche und was soll die neue Küche unbedingt können? Warum?:
Preisvorstellung (Budget):


Angehängte Dateien
 

Anhänge

  • Grundriss_EG.JPG
    Grundriss_EG.JPG
    170,3 KB · Aufrufe: 178
  • IMG-20250329-WA0037.jpg
    IMG-20250329-WA0037.jpg
    147,6 KB · Aufrufe: 167
  • IMG-20250329-WA0040.jpg
    IMG-20250329-WA0040.jpg
    112,6 KB · Aufrufe: 149
  • IMG-20250329-WA0039.jpg
    IMG-20250329-WA0039.jpg
    140,8 KB · Aufrufe: 147
  • IMG-20250329-WA0041.jpg
    IMG-20250329-WA0041.jpg
    130 KB · Aufrufe: 141
  • IMG-20250329-WA0038.jpg
    IMG-20250329-WA0038.jpg
    147 KB · Aufrufe: 167
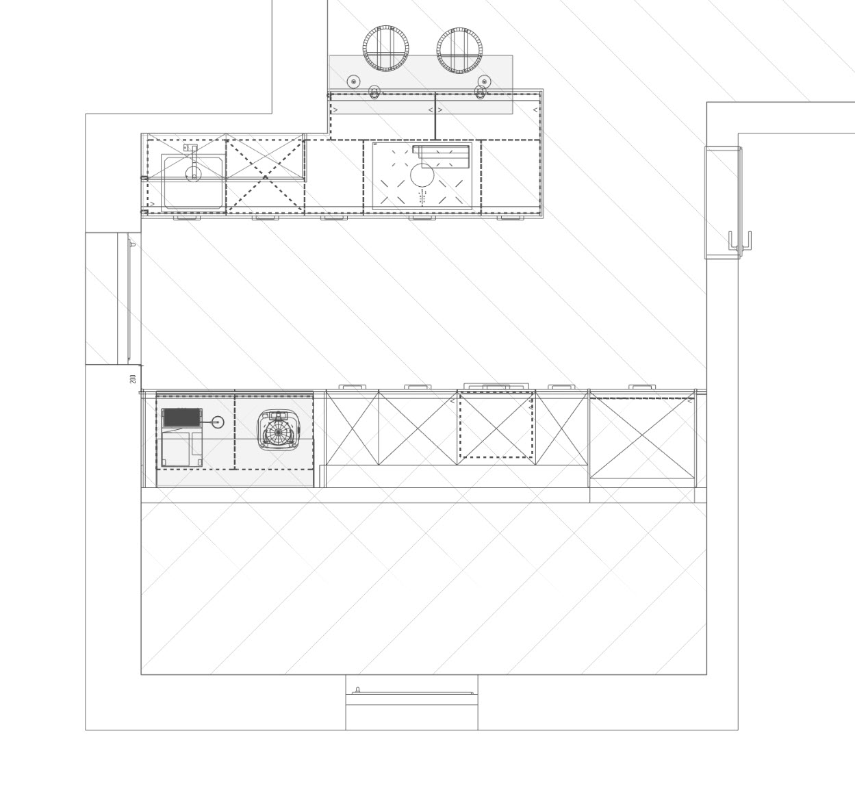
Hier mein Vorgeschlag mit einer Planung mit Schranktür zur Vorratskammer, Umbauten für Kühlschrank und Backofen , hochgebautem Geschirrspüler , Spüle im Fensterbereich sowie Kochstelle mit Muldenlüfter auf der Insel. Die Ausstattungsdetails sind noch festzulegen.
 

Anhänge

  • PV4.jpg
    PV4.jpg
    83,3 KB · Aufrufe: 140
  • PV3.jpg
    PV3.jpg
    109,8 KB · Aufrufe: 146
  • PV2.jpg
    PV2.jpg
    86,2 KB · Aufrufe: 142
  • PV1.jpg
    PV1.jpg
    81,2 KB · Aufrufe: 139
  • Grundriss.jpg
    Grundriss.jpg
    83,1 KB · Aufrufe: 148
  • PV5.jpg
    PV5.jpg
    84,3 KB · Aufrufe: 149
Hallo Rexel,
da hat euer Bauchgefühl euch nicht im Stich gelassen…… die Planung vom „Küchenstudio „ (eher ein größerer Möbelladen?) scheint plan-und hilflos Schränke nach Anordnung des Architektenplanes gezeichnet zu haben.
Den Vorschlag von @roba55 finde Ich gelungen und um Welten besser.
 
Hallo Roba,

vielen Dank für deine Mühen. Der Vorschlag gefällt uns uns bereits ganz gut. Was uns natürlich direkt etwas schmerzt ist die fehlende Terrassentür. Wir fänden es eigentlich auch schön von der Küche aus auf die Terrasse gehen zu können.
Aber wir sehen natürlich auch, dass dadurch ein Platzproblem für die Küche entstehen könnte. Aber mir fällt es (noch) schwer mich von der Tür zu verabschieden.

Mein innerer Monk hat sich gemeldet und hat gesagt, dass die Unsymmetrie von Fenster und Spüle schwer zu ertragen ist:rofl:;-)
Da das Fenster noch verschoben werden könnte, bekommt man das ja sicher auch irgendwie etwas symmetrischer hin.

Ecken sind in Küchen auch immer schwierig. Irgendwie meistens verschenkter Raum. Und meiner Frau fehlt noch der Schrank mit versenkbaren Türen. Die Idee dahinter ist, dass nicht so viel Kram auf der Arbeitsfläche rumsteht. Den könnte man so schön "verstecken".

Soweit erstmal unsere ersten Gedanken. Wir sind auf jeden Fall dankbar, dass ihr euch die Mühe macht und uns sogar konkrete Planungen vorschlagt. Top. Danke :-)
 
Hallo Rexel, hier noch eine kleine Korrektur für den inneren Monk. :-)
 

Anhänge

  • PV6.jpg
    PV6.jpg
    91,9 KB · Aufrufe: 89
Hallo und herzlich willkommen im Küchenforum!
Ich finde es sehr gut, dass ihr euch frühzeitig Gedanken macht, denn allzu oft gelingt die Wunschküche später aufgrund ungünstiger Maße nicht mehr möglich ist.
Ich kann euren Wunsch nach einer Terrassentür direkt in den Garten sehr gut nachvollziehen und würde mir das bei einem Neubau auch verwirklichen. Der Küchengrundriss ist groß genug, um diesen Wunsch zu erfüllen.
Ich würde beim WZ anfangen. Die Tür geht direkt ins WZ, aber speziell dieser Raum ist eher ein Rückzugs/Ruheraum, wo man die Tür nicht braucht beziehungsweise die Tür eher hinderlich ist.
Ich könnte mir vorstellen die Tür Richtung Essbereich zu verschieben und die Tür zur Küche wegzulassen. Können Außenmauern auch noch ein Stück verschoben werden?

Jetzt habt ihr tatsächlich sehr wenig Arbeitsfläche in der Küchenplanung , aber die grundsätzliche Anordnung ist nicht schlecht, weil Ecken fehlen. Das nennt man 3-Block-Lösung. Dazu würde ich hier auch tendieren. In der HS Zeile die Pockettür integrieren. Die zwei Zeilen können 260 lang werden, das ist eine schöne Länge.
Und ich würde mich damit auseinandersetzen, ob ich lieber Kochfeld oder Spüle auf der Insel haben möchte.
Koch(halb)-Insel o. Spülen(halb)insel o. reine Arbeits(halb)insel o. überhaupt Insel -

Ein Beispiel aus dem Forum
Neuer Lebensraum Küche| Küchenplanung einer Küche von Häcker
 

Anhänge

  • IMG_8431.jpeg
    IMG_8431.jpeg
    514,8 KB · Aufrufe: 81
Ich finde es schade dass die Küche euch beinahe "zwingt" mit dem Gesicht zum Fenster oder zur Wand zu arbeiten statt zum Raum in. Ein Kochfeld kann eine Ablagefläche sein, aber das ist nicht besonders praktisch wenn man nicht alles zerkratzen will.

Ich habe die Masse jetzt nicht genau gelesen. Eventuell ginge auch ein Zweizeiler, wenn man die Speise wegnimmt und dafür Hochschränke plant und dann eine lange Insel. Dann könnten sogar die Ecken weg (je nach Obergeschoss).
 
Ein wichtiger Punkt. Die Speisekammer wegzulassen finde ich schwierig, weil der Raum sehr tief ist. Die Raumtiefe mit der Speisekammer passt gut für den 2-Zeiler.
Wenn man die Türen lässt wie sie sind, könnte man sich auch an das Originalbild anlehnen. Planrechts KS und Pocketschrank. Planunten von der Terrassentür beginnend ein HS mit BO und US mit Kochfeld. (HS mit BO, 60 US, 80 US mit Kochfeld, 60 US) und gegenüber von der Terrassentür beginnend 60 GS, 60 Spüle, 40 Mupl , 100 US. Macht 140cm Arbeitsfläche, bei der man in den Raum sieht.
Bei euch würde mir die Spüle auf der Halbinsel sehr gut gefallen. Man ist viel weniger am Kochfeld als man denkt. Sehr viel Zeit braucht man zum Vorbereiten/Schnippeln neben der Spüle. Beispielsweise Gemüse waschen - schneiden- aufs Kochfeld. Das Kochfeld liegt idealerweise leicht schräg versetzt zur Spüle und gegenüber der Arbeitsfläche. Falls Geschirr überbleibt oder zum Abtropfen steht, wäre es versteckt hinter der Wand. Es ist auch viel angenehmer nicht hinter dem Kochfeld zu sitzen, wo es spritzt. Gemeinsam gegenüber arbeiten, geht auch viel besser, wenn kein KF im Weg ist. Und man kann einen Dunstabzug an der Wand einplanen. Nur Vorteile.
@Ostfriesentee , deine Küche ist sehr gelungen :kiss: und im Aufbau ähnlich. Vielleicht kannst du auch noch etwas dazu schreiben?
 

Anhänge

  • IMG_8432.jpeg
    IMG_8432.jpeg
    151,6 KB · Aufrufe: 68
Hier mein Vorschlag für eine Variante, bei der die Terrassentür erhalten bleibt. Die Hochschrankseite umfasst ein Pocketdoor-Element mit TIP-ON sowie eine Durchgangstür zur Speisekammer. Auf der gegenüberliegenden Arbeitsseite ist die Arbeitsfläche jedoch aufgrund des begrenzten Platzes suboptimal.
 

Anhänge

  • PVV6.jpg
    PVV6.jpg
    84,3 KB · Aufrufe: 97
  • PVV5.jpg
    PVV5.jpg
    81,3 KB · Aufrufe: 96
  • PVV4.jpg
    PVV4.jpg
    97,5 KB · Aufrufe: 89
  • PVV3.jpg
    PVV3.jpg
    75,3 KB · Aufrufe: 95
  • PVV2.jpg
    PVV2.jpg
    129,2 KB · Aufrufe: 94
  • PVV1.jpg
    PVV1.jpg
    65,1 KB · Aufrufe: 97
  • Grundriss.jpg
    Grundriss.jpg
    127,6 KB · Aufrufe: 97
Hallo Leute,

wow ich bin beeindruckt. In so kurzer Zeit hätte ich nicht mit so viel Vorschlägen gerechnet, die uns tatsächlich weiter helfen. Super, vielen Dank :-)

Hier mal meine Anmerkungen zu Euren Vorschlägen:
- Tausch von Kamin und Tür zum Wohnzimmer - Streichen der Küchentür:
Grundsätzlich finde ich das eine gute Idee. Das Versetzen des Kamins hat allerdings auch Auswirkungen auf das OG und UG. Da müssten wir prüfen ob das passt. Außerdem hat meine Frau angemerkt, dass Sie es nervig fände die Einkäufe nicht direkt in die Küche zu tragen sondern immer über den "Umweg" Esszimmer. Vielleicht kann hier dazu jemand etwas sagen wie das ganze in der Praxis ist, wenn man das so ähnlich umsetzt.

- Kochfeld oder Spüle auf der Insel:
finde ich eine super Idee und Eure Argumente sind auch einleuchtend. Anmerkung meiner Frau: Sie hätte gerne den GS in einem Hochschrank . Und die Spüle ist ja auch am praktikabelsten in der Nähe des GS. Das macht das ganze schon etwas schwieriger.

- Speisekammer offen mit Backup:
Da wären wir wahrscheinlich auch im Leben nicht drauf gekommen. Gute Inspiration:2daumenhoch:.
Die Speisekammer soll bei uns eher Lagerraum als Arbeitsraum sein. Auch dürfte es sich im Budget ordentlich bemerkbar machen, ob ich in die Speisekammer Küchenmöbel oder Baumarktregale platziere.
 
Auch dürfte es sich im Budget ordentlich bemerkbar machen, ob ich in die Speisekammer Küchenmöbel oder Baumarktregale platziere.
@Rexel zum Budget fehlen Angaben in deiner Checkliste. @Chilipflanze (sh. Link in #10) hat für ihre Backup-Küche günstigere Fronten verbaut. Lies dir mal ihren Bericht genauer. Überhaupt ist es hilf- und lehrreich, bei anderen Usern zu stöbern
Sitzmöglichkeit in der Küche / im Küchenbereich: Tresen in Barhöhe
Den würde ich streichen, weil dadurch wertvolle Arbeitsfläche verloren geht. Wenn ein Sitzplatz dringend gewünscht wird, wäre eine überstehende Arbeitsplatte sinnvoller. Die Fläche kann dann vielfältig genutzt werden. Beispiele gibt es hier im Forum bei den fertigen Küchen reichlich. Die Sitzplätze sollten dann aber nicht genau hinter einem Kochfeld geplant werden. Da ist die Küche, die Melanie in #6 verlinkt hat, auch gleich ein schönes Beispiel. Sitzplatz versetzt zum KF.
 

Ähnliche Beiträge

Neff Hausgeräte Ballerina Küchen Blum Bewegungstechnologie Weibel - Intelligente Küchenlüftung

Neff Spezial

Blum Zonenplaner

Weibel Abluft-Tuning

Weibel Abluft-Tuning
Zurück
Oben