- Beiträge
- 58.530
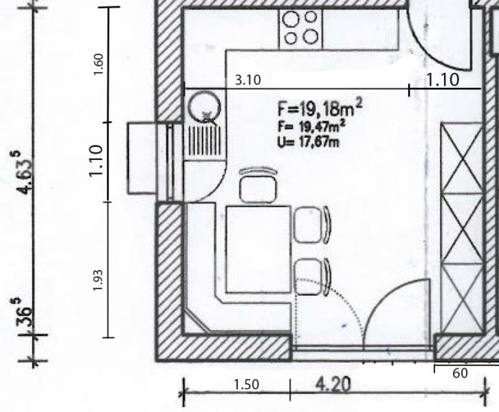
AW: Küche für unseren Neubau
Sind das bodentiefe Fenster planunten?
Es wäre wirklich sehr hilfreich mal einen Gesamtplan vom Geschoß zu haben und einen komplett vermaßten Küchengrundriss mit Angaben dazu, was noch änderbar ist. Z. B. Fensterposition etc.
Eckbank .. die Schenkellängen, wenn sie schon vorhanden ist. Und dennoch die Frage ... muss es eine Eckbank sein.
Klein ist der Raum ja eigentlich nicht.
Sind das bodentiefe Fenster planunten?
Es wäre wirklich sehr hilfreich mal einen Gesamtplan vom Geschoß zu haben und einen komplett vermaßten Küchengrundriss mit Angaben dazu, was noch änderbar ist. Z. B. Fensterposition etc.
Eckbank .. die Schenkellängen, wenn sie schon vorhanden ist. Und dennoch die Frage ... muss es eine Eckbank sein.
Klein ist der Raum ja eigentlich nicht.



