Unbeendet Küche für modernen Altbau

Pixelfehler

Mitglied
Beiträge
5
Küche für modernen Altbau

Moin,

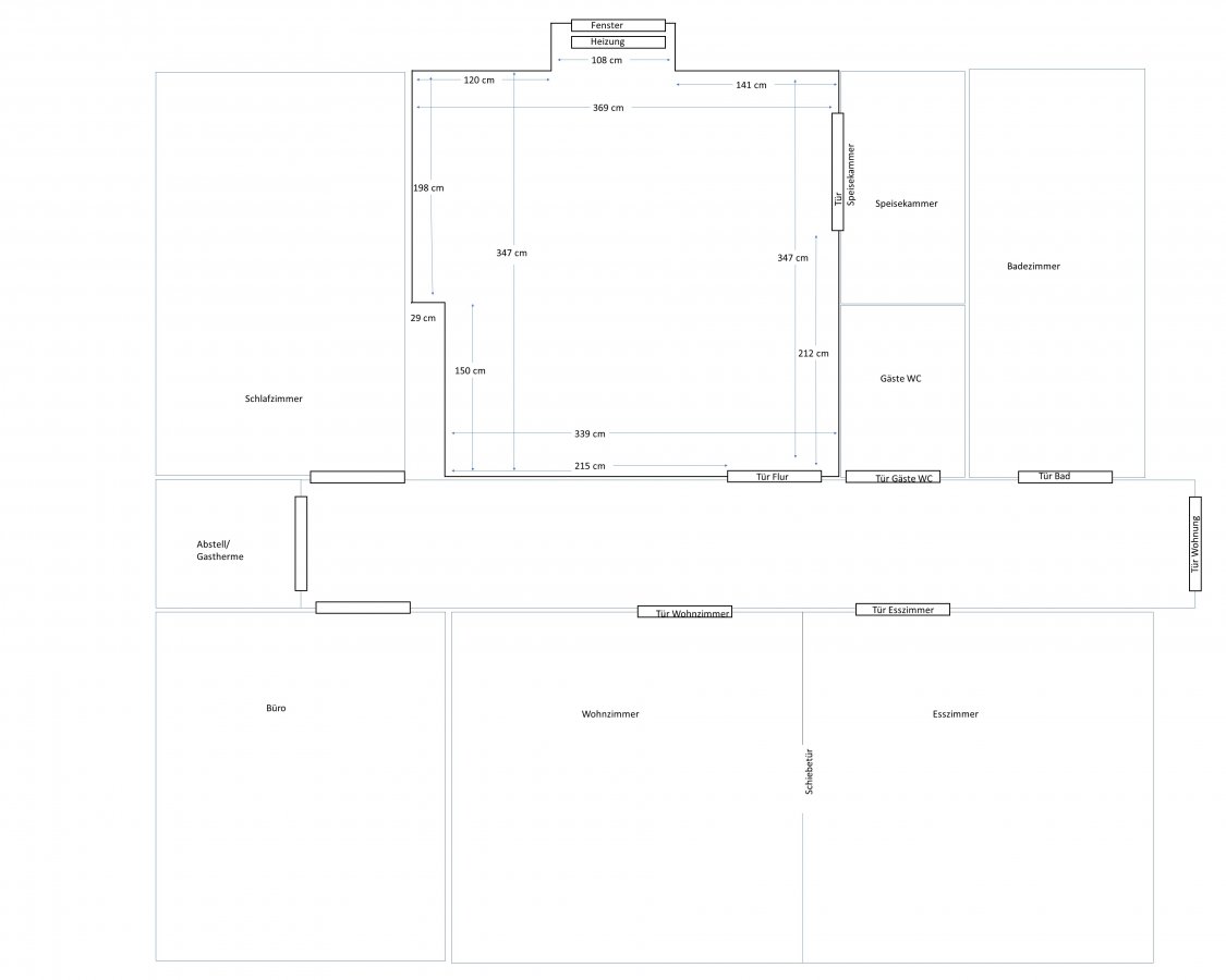
für unsere neue Wohnung in Hamburg planen wir aktuell die Küche. Wohnung ist eine Altbauwohnung, schöner Dielenboden und in der Küche eine Art grauer Terrazzo Boden.

Grundriss liegt bei. Ebenfalls ein erster Entwurf von uns.

Wir stellen uns eine relativ "saubere/ minimalistische" Küche vor. Keine Oberschränke, keine Dunstabzugshaube etc.

Auf der Arbeitsfläche stehen Kaffeemaschine, Mixer und Küchenmaschine. Es steht ein direkter Hauswirtschaftsraum/ Speisekammer zur Verfügung. In der Küche müssen nur wenig Vorräte gelagert werden.

Die Anschlüsse sind leider fix. Da wir an der einen Seite nicht nur eine Spüle stellen möchten, planen wir die angedachte Insellösung. Gerade bei der Raumplanung sind wir deshalb für alle Tipps offen. Über konkrete Geräte, Fronten und Arbeitsplatten machen wir uns noch gar keine Gedanken.

Die Vertiefung hinter dem Kochfeld würden wir unten per Fliesenspiegel schließen und oben Regale einpassen.

Wir würden uns über Anregungen sehr freuen.

Checkliste zur Küchenplanung

Personenkriterien und Ergonomie
Anzahl Personen im Haushalt:
2
Davon Kinder: keine
Körpergrößen aller Hauptbenutzer in cm (wegen Arbeitshöhe ): 176 und 162
Welche Arbeitshöhe ist angedacht (in cm)?: offen

Gebäudekriterien
Art des Gebäudes:
Miete
Brüstungshöhe des Fensters (in cm): -
Fensterhöhe (in cm): -
Raumhöhe in cm: 288
Heizung: Heizkörper wie im Grundriss
Sanitäranschlüsse: fix

Einbaugerätekriterien
Ausführung Kühlgerät:
Integriert im Hochschrank (60cm)
Einbaukühlgerät Größe: Noch unbekannt
Ausführung Tiefkühl (TK)-Gerät: Im Kühlschrank ab 3 Schubladen unten
Dunstabzugshaube: Umluft
Hochgebauter Backofen : ja
Geplante Heißgeräte: Backofen
Hochgebauter Geschirrspüler : nein
Art des Kochfeldes: Induktion
Kochfeldbreite (ca. in cm): 80

Sitzmöglichkeiten
Sitzmöglichkeit in der Küche / im Küchenbereich:
Keine
Sitzmöglichkeit: Für wieviel Personen?: nein
Sitzmöglichkeit: Tisch - wenn gesonderter Tisch oder offene Küche: Keiner
Gewünschte oder vorhandene Tischgröße: -
Wofür soll der Sitzplatz in der Küche genutzt werden und wie häufig: Reine Küche, da das Esszimmer direkt nebenan ist.

Stauraumplanung
Was steht auf der Arbeitsplatte oder soll dort stehen?:
Kaffeemaschine, Küchenmaschine, Sonstiges (evtl. im Beitragstext benennen)
Welche weiteren Küchenmaschinen müssen in der Küche untergebracht werden: N. a.
Was soll in der Küche außer den Standards untergebracht werden: Sonstiges (evtl. im Beitragstext benennen)
Welchen Stauraum gibt es sonst noch: Speisekammer, Hauswirtschaftsraum

Kochgewohnheiten

Was/wie wird gekocht? (Alltagsküche, Menüs, Snacks usw): Alltagsküche, täglich warm.
Wie häufig wird gekocht: (fast) täglich 1x warm
Wird alleine gekocht? Oder auch gemeinsam? Mit und für Gäste?: Zu zweit

Spülen und Müll

Spülenform: Noch nicht festgelegt
Welche Mülltrennung soll in der Küche vorgehalten werden: Altpapier, Biomüll, Gelber Sack Müll, Restmüll

Sonstiges

Steht schon ein Küchenhersteller fest oder wird bevorzugt: nein
Steht schon ein Gerätehersteller fest oder wird bevorzugt: nein
Küchenstil: Grifflose Küche
Was stört an der bisherigen Küche und was soll die neue Küche unbedingt können? Warum?: keine bisherige Küche
Preisvorstellung (Budget): max. 8.000€

Angehängte Dateien
 

Anhänge

  • Folie1.JPG
    Folie1.JPG
    43,8 KB · Aufrufe: 183
  • Folie2.JPG
    Folie2.JPG
    56,8 KB · Aufrufe: 170
Hallo und :welcome:,

ist der Raum tatsächlich fensterlos? Gibt es vielleicht ein Foto für einen ersten Eindruck?
So rein vom Grundriss wirkt der Raum sehr „unruhig“ mit den vielen Ecken/Vorsprüngen, das würde ich durch die Möblierung etwas „harmonisieren“ wollen.
In euerm Entwurf stehen die Schränke fast ein bisschen.. verloren in der Gegend herum. (Kann aber auch an meiner mangelnden Vorstellungskraft liegen, ohne Rasterung in der Skizze ;-))

Ihr solltet eure optimale Arbeitshöhe bestimmen. (Anleitung gibt’s hier in fast jedem zweiten Thread).

„Heizung wie im Grundriss“: wo ist die genau?

Achso, ein Gesamtgrundriss für Laufwege etc wäre ebenfalls hilfreich, kann auch fix mit der Hand gezeichnet sein..
 
ARBEITSHÖHE ermitteln - 3 Methoden haben sich da etabliert:
  • abgewinkelter Ellbogen bis Boden messen und 15 cm abziehen
  • Höhe Beckenknochen messen
  • z. B. Bügelbrett nehmen und in verschiedenen Höhen Probeschnippeln und messen, wenn es einem am bequemsten erscheint, wobei dies der wichtigste Test ist.
Idealerweise ergeben alle 3 Methoden ca. denselben Wert
Ausführlicher in Optimale Arbeitshöhen beschrieben. *
 
wie maria schon schreibt, kein Fenster sichtbar, man läuft kreuz und quer, wenige Infos. Stell doch mal ein paar Raumbilder ein. Sieht nach Dachwohnung aus.

Ich glaube aber, dass man das generelle layout nicht viel anderes machen kann.

wenn ihr ein Kochfeld mit Muldenlüfter möchtet, muss der US min 90cm breit sein.
 
Zuletzt bearbeitet:
Vielen Dank für eure konstruktive und schnelle Kritik. Fenster und Heizung habe ich tatsächlich gestern Abend vergessen. Ich habe den Grundriss aktualisiert mit der ganzen Wohnung (außer der Küche ist allerdings nichts maßstabsgetreu).
Ebenfalls habe ich ein paar Fotos vom Küchenraum hochgeladen. Wir testweise mit Kartons unsere Kücheninsel gestellt um zu schauen, wie viel Platz zwischen Insel und Küchenzeile bleibt. Die rot gestrichene Linie fällt weg. Unser aktueller Stand wäre also eine gerade Zeile (siehe Klebeband) sowie die Insel.

Zum Stil der Wohnung habe ich noch ein Foto des Wohn/Esszimmers beigefügt.

Meiner Meinung nach wäre eine gerade Zeile auf der Seite des Stromanschlusses stimmig. Wenn ich hier, wie in der Simulation, 2 x 60er Hochschrank + 2 x 80er US + 1x 60er US stelle, würden wir auf 340cm kommen. Die restlichen 7 cm wären gut um die Gasleitungen an der Fensterseite ohne Ausschnitt zu lassen und lediglich die 7cm Spalt zu verblenden. Arbeitsplatte natürlich bis an die Wand. Auch auf dem Foto mit den Kartons finde ich es platztechnisch in Ordnung. Der "Inselkarton" steht 140 cm von der Wand weg, sprich 80er US für Spüle + 60er für Spülmaschine. Die Insel würden wir 97cm tief machen. Unterschränke also Rücken an Rücken (60er und 37er Tiefe). Somit würde man noch etwas Arbeitsfläche generieren.

Einen ersten Ikea Entwurf habe ich ebenfalls hochgeladen. Eigentlich würden wir gerne auf Hochschränke verzichten und nur eine gerade Zeile machen. Allerdings können wir unter das Kochfeld mit Abzug den Backofen nicht stellen und eine versetzte Anordnung sieht irgendwie schwachsinnig aus. Auch für den Kühlschrank finde ich keinen besseren Platz.
 

Anhänge

  • Grundriss Küche.jpg
    Grundriss Küche.jpg
    50 KB · Aufrufe: 185
  • 6c66b6b2-e69b-4d5a-bfba-d86bafadf826.jpg
    6c66b6b2-e69b-4d5a-bfba-d86bafadf826.jpg
    78,7 KB · Aufrufe: 175
  • Blick Flurtür.JPEG
    Blick Flurtür.JPEG
    160,6 KB · Aufrufe: 184
  • IMG_3226.JPEG
    IMG_3226.JPEG
    244,1 KB · Aufrufe: 180
  • IMG_3227.JPEG
    IMG_3227.JPEG
    189,3 KB · Aufrufe: 193
  • IMG_3241.JPEG
    IMG_3241.JPEG
    153,3 KB · Aufrufe: 187
  • Ikea Entwurf.JPG
    Ikea Entwurf.JPG
    41,9 KB · Aufrufe: 198
Zuletzt bearbeitet:
Eigendlich sollte man die Küchentüre versetzten... das würde die Situation entspannen - das wird wohl kaum machbar sein *seufz*

bei der Nische würde ich die Arbeitsplatte bis an die Wand ziehen, eine übertiefe APL ist Gold wert.

Vom Muldenlüfter rate ich euch ab - wählt eine schlichte DAH über dem Kochfeld das schadet der Optik der Küche auf keinen Fall und ist einfacher im Handling; bei der Umluft-DAH musst Du zum Filterreinigigen und Wechseln sonst jedes mal auf dem Boden rum kriechen.

Bei KerstinB gibt es ein Album mit diversen DAH-Lösungen
 
Die Türe zu versetzen funktioniert leider nicht, leider.
Eine Dunstabzugshaube wäre natürlich günstiger und wir könnten den Backofen unten positionieren. Allerdings war der eigentliche Plan, dass wir die Nische mit einem Fliesenspiegel (metro Fliesen, rustikal passend zum Altbau) verschließen und nur über dem Fliesenspiegel eingepasste Metall (Messind/ Kupfer) Regale in die Nische setzen. Daher wollten wir eigentlich keine Dunstabzugshaube.

Alternative wäre natürlich, wir bekommen das Kochfeld inkl. Backofen und DAH ganz nach links wo aktuell die Hochschränke geplant sind. Allerdings finde ich keinen passenden Platz für den Kühlschrank.
 
Wie viel Platz würdet ihr zwischen Insel und Küchenzeile einplanen? Wenn wir die Insel aus einem 80er Spülbeckenelement + 60er GS bauen bleibt ein Bewegungsraum von 139cm zwischen Insel und Zeile übrig. Finde ich relativ viel. Eventuell könnte man die Insel auch breiter machen? Wenn ich 3 x 60er stellen würde, dann hätte man eine Länge von ~1m als Laufweg dazwischen. Reicht das aus?

@Nice-nofret danke für den Tipp mit dem DAH Album. Denkst du, es wäre ein reiner Deckenabzug möglich bei einer Raumhöhe von ~2,90 m? Das würde weniger gegen unser "Wunsch-Erscheinungsbild" spielen.
 

Anhänge

  • ikea große insel.JPG
    ikea große insel.JPG
    37 KB · Aufrufe: 137
Zuletzt bearbeitet:
Ich denke, ich würde die Spüle eher mittig auf die Insel setzen, damit man "Armraum" nach beiden Seiten hat und vor allem, damit der Weg zwischen Kochfeld und Spüle nicht so weit ist (für Nudelwasser abgießen etc). Das Abwasserrohr sollte man zwischen Inselvorder- und Rückseite verlegen können, oder? Dann könnte an der Wand ja die Kaffeemaschine platziert werden.
1,39m zwischen Insel und Zeile ist sehr/zu viel, ich denke, dass 1m ausreichend ist, das ist ja immer noch mehr als eine Türöffnung. Ihr habt ja schon schön abgeklebt, vielleicht könnt ihr das ja mal mit Umzugskartons ausprobieren.
Edit: Ich sehe an den Fotos, das habt ihr ja schon gemacht :hand-woman:
 
@Mewtu habe ich geändert, sieht vor allem besser aus mit der Spüle in der Mitte.
Ich hoffe, dass es kein Problem gibt mit dem Abwasserrohr? Muss durch den linken Schrank durchgelegt werden. Vermutlich sind dann keine Schubladen dort möglich? Einfacher wäre deshalb ein Spülbecken ganz links..

Ansonsten wäre dies erstmal unser aktueller Stand. Kühl/Gefrierkombi und GS würden wir direkt bei Ikea bestellen. Als Backofen haben wir aktuell einen NEFF mit Slide & Hide Tür im Auge, als Kochfeld das AEG Induktionsfeld mit Abzug. Gibt es hierzu Tipps?
 

Anhänge

  • ikea final.JPG
    ikea final.JPG
    35,8 KB · Aufrufe: 157

Ähnliche Beiträge

Neff Hausgeräte Ballerina Küchen Blum Bewegungstechnologie Weibel - Intelligente Küchenlüftung

Neff Spezial

Blum Zonenplaner

Weibel Abluft-Tuning

Weibel Abluft-Tuning
Zurück
Oben