stjarna2015
Mitglied
- Beiträge
- 59
Hallo zusammen,
wir müssen neben unserer eigenen Küche auch die Küche für unsere Einliegerwohnung planen. Zur Aufwertung der Wohnung würden wir die Einliegerwohnung gerne gleich mit einer Küche ausstatten. Das Budget ist allerdings eher sparsam - die Schränke werden wahrscheinlich von Ikea sein, die Geräte von Bosch /Siemens (jedenfalls in der Preisklasse). Die ELW ist vom Schnitt und der Größe eher für einen Single, maximal ein Pärchen gedacht (knapp 70m2, großes Wohnzimmer mit offener Küche, Schlafzimmer mit Ankleide).
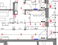
Die Küche liegt direkt am Wohnungseingang - ich sehe vom Grundriss auch keine Alternativen (außerdem ist es so günstiger, weil wir nur die eine Steigleitung für Bad und Küche brauchen). Die Wohnung ist im Tiefparterre, hat aber eine sehr komfortable Raumhöhe und große Fenster, sollte also definitiv nicht zu dunkel werden.
Bild ansehen 142787
Eigentlich hätte ich gerne die planobere Wand mit hochgebautem Herd geplant, aber nach einer ersten Recherche ist eine Abzugshaube mit Deckenmontage nicht im Budget. Das Kochfeld muss demnach also an die Wand, dann muss ein wenig Arbeitsfläche links und rechts sein und schon ist kein Platz mehr für den Herd auf den Seiten.
Bild ansehen 142790
Deswegen also das Kochfeld + Herd unterhalb planoben; links davon die Kühl-/Gefrierkombi, gegenüber die Spüle mit Müllauszug, daneben der Geschirrspüler . Der Sitzplatz reicht ein wenig in den "Flur", aber eine bessere Idee hatte ich nicht. Die Brüstungshöhe des Fensters habe ich leider noch nicht, aber es wird bestimmt nicht tiefer als normale Arbeitsplattenhöhe.
Bild ansehen 142789
Auf der "Innenseite" sind alle Unterschränke Auszüge, zum Eingang hin sind die Schränke halbtief und mit Türen.
Bild ansehen 142791Bild ansehen 142788
Ich überlege noch, ob ein 45cm schmaler Geschirrspüler nicht besser geeignet wäre für einen kleinen Haushalt? Dann würde ich ihn rechts statt links von der Spüle platzieren. Kühlschrank und Gefrierfach würde ich relativ groß belassen - als Single habe ich mich immer wahnsinnig geärgert über das Minigefrierfach im Kühlschrank, in das maximal 2 Pizzen gepasst haben. Aktuell habe ich keine Mikrowelle geplant - sollte man dafür zumindest ein entsprechend großes "Fach" frei lassen? Und wenn ja, wo? Ein Dampfgarer passt nicht ins Budget.
Checkliste zur Küchenplanung
Anzahl Personen im Haushalt: 1
Davon Kinder?:
Art des Gebäudes?: Neu-/Umbau, Planänderungen möglich
Körpergrössen aller Hauptbenutzer (wegen Arbeitshöhe ) in cm: N/A
Brüstungshöhe des Fensters (in cm):
Fensterhöhe (in cm):
Raumhöhe in cm: 240
Heizung: Heizkörper wie im Grundriss
Sanitäranschlüsse: vollkommen variabel
Ausführung Kühlgerät: Integriert im Hochschrank (60cm)
Kühlgerät Größe: noch unbekannt
Ausführung Tiefkühl (TK)-Gerät: Im Kühlschrank ab 3 Schubladen unten
Dunstabzugshaube: Abluft
Backofen etc. hochgebaut?: Wenn möglich
Hochgebauter Geschirrspüler ?: Wenn möglich
Kochfeldart: Induktion
Kochfeldbreite ca. (in cm)?: 60
Spülenform: 1 Becken ohne Abtropffläche
Geplante Heißgeräte: Backofen
Küchenstil: Modern
Sitzmöglichkeit in der Küche / im Küchenbereich: Tresen in Barhöhe
Sitzmöglichkeit: Für wieviel Personen?: für 3 Personen
Sitzmöglichkeit: Tisch - wenn gesonderter Tisch oder offene Küche: Keiner
Gewünschte o. vorhandene Tischgröße: N/A
Wofür soll der Sitzplatz in der Küche genutzt werden? Wie häufig?: Zum Essen, täglich.
Welche Arbeitshöhe ist angedacht (in cm)?:
Was steht auf der Arbeitsplatte oder soll dort stehen?:
Welche weiteren Küchenmaschinen müssen in der Küche untergebracht werden?:
Was soll in der Küche außer den Standards untergebracht werden?: ALLE Vorräte, Geschirr komplett (nichts in Ess-/Wohnzimmer)
Welchen Stauraum gibt es sonst noch?: Abseiten
Was/wie wird gekocht? (Alltagsküche, Menüs, Snacks usw):
Wie häufig wird gekocht?:
Wird alleine gekocht? Oder auch gemeinsam? Mit und für Gäste?:
Was stört an der bisherigen Küche und was soll die neue Küche unbedingt können? Warum?:
Welche Mülltrennung soll in der Küche vorgehalten werden?: Altglas, Biomüll, Gelber Sack Müll, Restmüll
Steht schon ein Küchenhersteller fest oder wird bevorzugt?: Ikea
Steht schon ein Gerätehersteller fest oder wird bevorzugt?: Bosch/Siemens
Preisvorstellung (Budget): bis 5.000,-
wir müssen neben unserer eigenen Küche auch die Küche für unsere Einliegerwohnung planen. Zur Aufwertung der Wohnung würden wir die Einliegerwohnung gerne gleich mit einer Küche ausstatten. Das Budget ist allerdings eher sparsam - die Schränke werden wahrscheinlich von Ikea sein, die Geräte von Bosch /Siemens (jedenfalls in der Preisklasse). Die ELW ist vom Schnitt und der Größe eher für einen Single, maximal ein Pärchen gedacht (knapp 70m2, großes Wohnzimmer mit offener Küche, Schlafzimmer mit Ankleide).
Die Küche liegt direkt am Wohnungseingang - ich sehe vom Grundriss auch keine Alternativen (außerdem ist es so günstiger, weil wir nur die eine Steigleitung für Bad und Küche brauchen). Die Wohnung ist im Tiefparterre, hat aber eine sehr komfortable Raumhöhe und große Fenster, sollte also definitiv nicht zu dunkel werden.
Bild ansehen 142787
Eigentlich hätte ich gerne die planobere Wand mit hochgebautem Herd geplant, aber nach einer ersten Recherche ist eine Abzugshaube mit Deckenmontage nicht im Budget. Das Kochfeld muss demnach also an die Wand, dann muss ein wenig Arbeitsfläche links und rechts sein und schon ist kein Platz mehr für den Herd auf den Seiten.
Bild ansehen 142790
Deswegen also das Kochfeld + Herd unterhalb planoben; links davon die Kühl-/Gefrierkombi, gegenüber die Spüle mit Müllauszug, daneben der Geschirrspüler . Der Sitzplatz reicht ein wenig in den "Flur", aber eine bessere Idee hatte ich nicht. Die Brüstungshöhe des Fensters habe ich leider noch nicht, aber es wird bestimmt nicht tiefer als normale Arbeitsplattenhöhe.
Bild ansehen 142789
Auf der "Innenseite" sind alle Unterschränke Auszüge, zum Eingang hin sind die Schränke halbtief und mit Türen.
Bild ansehen 142791Bild ansehen 142788
Ich überlege noch, ob ein 45cm schmaler Geschirrspüler nicht besser geeignet wäre für einen kleinen Haushalt? Dann würde ich ihn rechts statt links von der Spüle platzieren. Kühlschrank und Gefrierfach würde ich relativ groß belassen - als Single habe ich mich immer wahnsinnig geärgert über das Minigefrierfach im Kühlschrank, in das maximal 2 Pizzen gepasst haben. Aktuell habe ich keine Mikrowelle geplant - sollte man dafür zumindest ein entsprechend großes "Fach" frei lassen? Und wenn ja, wo? Ein Dampfgarer passt nicht ins Budget.
Checkliste zur Küchenplanung
Anzahl Personen im Haushalt: 1
Davon Kinder?:
Art des Gebäudes?: Neu-/Umbau, Planänderungen möglich
Körpergrössen aller Hauptbenutzer (wegen Arbeitshöhe ) in cm: N/A
Brüstungshöhe des Fensters (in cm):
Fensterhöhe (in cm):
Raumhöhe in cm: 240
Heizung: Heizkörper wie im Grundriss
Sanitäranschlüsse: vollkommen variabel
Ausführung Kühlgerät: Integriert im Hochschrank (60cm)
Kühlgerät Größe: noch unbekannt
Ausführung Tiefkühl (TK)-Gerät: Im Kühlschrank ab 3 Schubladen unten
Dunstabzugshaube: Abluft
Backofen etc. hochgebaut?: Wenn möglich
Hochgebauter Geschirrspüler ?: Wenn möglich
Kochfeldart: Induktion
Kochfeldbreite ca. (in cm)?: 60
Spülenform: 1 Becken ohne Abtropffläche
Geplante Heißgeräte: Backofen
Küchenstil: Modern
Sitzmöglichkeit in der Küche / im Küchenbereich: Tresen in Barhöhe
Sitzmöglichkeit: Für wieviel Personen?: für 3 Personen
Sitzmöglichkeit: Tisch - wenn gesonderter Tisch oder offene Küche: Keiner
Gewünschte o. vorhandene Tischgröße: N/A
Wofür soll der Sitzplatz in der Küche genutzt werden? Wie häufig?: Zum Essen, täglich.
Welche Arbeitshöhe ist angedacht (in cm)?:
Was steht auf der Arbeitsplatte oder soll dort stehen?:
Welche weiteren Küchenmaschinen müssen in der Küche untergebracht werden?:
Was soll in der Küche außer den Standards untergebracht werden?: ALLE Vorräte, Geschirr komplett (nichts in Ess-/Wohnzimmer)
Welchen Stauraum gibt es sonst noch?: Abseiten
Was/wie wird gekocht? (Alltagsküche, Menüs, Snacks usw):
Wie häufig wird gekocht?:
Wird alleine gekocht? Oder auch gemeinsam? Mit und für Gäste?:
Was stört an der bisherigen Küche und was soll die neue Küche unbedingt können? Warum?:
Welche Mülltrennung soll in der Küche vorgehalten werden?: Altglas, Biomüll, Gelber Sack Müll, Restmüll
Steht schon ein Küchenhersteller fest oder wird bevorzugt?: Ikea
Steht schon ein Gerätehersteller fest oder wird bevorzugt?: Bosch/Siemens
Preisvorstellung (Budget): bis 5.000,-



