Ideen für Küche im Neubau

Lengdeuer

Mitglied
Beiträge
7
Hallo,
brauche weitere Ideen für unsere Küche in unserem neu gebauten Haus.
Unsere erste Küche!
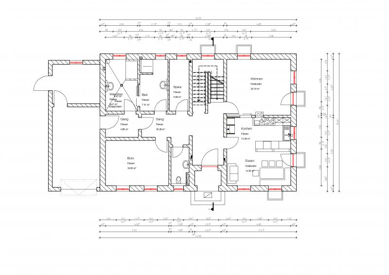
Habe den Grundriss des EG angefügt.
Das Haus ist im Landhausstil geplant, das sollte sich auch in der Küche wiederspiegeln: rustikal, gemütlich!

Gruß
Lengdeuer


Checkliste zur Küchenplanung von Lengdeuer

Anzahl Personen im Haushalt : 2
Davon Kinder? : keine
Körpergrössen aller Hauptbenutzer (wegen Arbeitshöhe ) in cm : 171 und 185
Art des Gebäudes? : Neu-/Umbau, Planänderungen nicht möglich
Brüstungshöhe des Fensters (in cm) : 92
Fensterhöhe (in cm) : 141,5
Raumhöhe in cm: : 247,5
Heizung : Fussbodenheizung
Sanitäranschlüsse : fix
Ausführung Kühlgerät? : Integriert im Hochschrank
Kühlgerät Größe : noch unbekannt
Ausführung Tiefkühl (TK)-Gerät : Nicht erforderlich bzw. steht woanders
Dunstabzugshaube? : Abluft
Hochgebauter Backofen ? : Nein
Hochgebauter Geschirrspüler ? : nein
Kochfeldart? : Ceran (herkömmlich)
Kochfeldbreite ca. (in cm)? : offen
Spülenform: : 1,5 Becken mit Abtropffläche
Weitere geplante Heißgeräte : Standmikrowelle
Küchenstil? : Landhaus
Sitzmöglichkeit in der Küche / im Küchenbereich als : Gesonderter Tisch
Sitzmöglichkeit: Für wieviel Personen? : für 6 Personen
Sitzmöglichkeit: Tisch - wenn gesonderter Tisch oder offene Küche : Wird nach Bedarf neu gekauft
Gewünschte o. vorhandene Tischgröße : offen
Wofür soll der Sitzplatz in der Küche genutzt werden? Wie häufig? : Essen, täglich
Welche Arbeitshöhe ist angedacht (in cm)? : 94
Was steht auf der Arbeitsplatte oder soll dort stehen? : Kaffeevollautomat, Wasserkocher, Obstschale
Welche weiteren Küchenmaschinen müssen in der Küche untergebracht werden? :
Was soll in der Küche außer den Standards untergebracht werden? : Geschirr komplett (nichts in Ess-/Wohnzimmer)
Welchen Stauraum gibt es sonst noch? : Speisekammer, Hauswirtschaftsraum, Keller, Abseiten
Was/wie wird gekocht? (Alltagsküche, Menüs, Snacks usw) : Alltagsküche
Wie häufig wird gekocht? : (fast) täglich 1x warm
Wird alleine gekocht? Oder auch gemeinsam? Mit und für Gäste? : allein
Was stört an der bisherigen Küche und was soll die neue Küche unbedingt können? Warum? : nichts, hab noch keine
Preisvorstellung (Budget) : bis 15.000,-
 

Anhänge

  • 111004 Plan Küche EG.jpg
    111004 Plan Küche EG.jpg
    51,2 KB · Aufrufe: 264
AW: Ideen für Küche im Neubau

:welcome:
du brauchst WEITERE Ideen? Wie wäre es denn, wenn du erstmal deine vorhandenen Ideen präsentierst? Dann lernen wir dich auch ein bisschen kennen.

Das kann auch jeweils eine Raumskizze mit den einskizzierten Möbeln sein, ansonsten lege ich dir den Alnoplaner ans Herz -->



Kocht ihr abwechselnd? Oder wer ist der Hauptnutzer der Küche?

EDIT:
Leider kann man die Maße von deinem Grundriss gar nicht lesen. Evtl. höhere Auflösung beim Scannen oder als PDF-Datei ausgeben und anhängen.
 
AW: Ideen für Küche im Neubau

Hallo,
entschuldigt!
Wir dürfen uns kurz vorstellen, wir sind ein Junges Paar, beide 35 Jahre alt.
Wir haben bis jetzt im Haus der verstorbenen Großeltern meiner Freundin gewohnt.
Wir hab uns heuer den Traum eines neuen Eigenheims erfüllt!
Nun der Rohbau steht, wir stehen kurz vor den Verputzarbeiten.

Wir haben uns nätürlich im Vorfeld gedanken über die Einteilung des Hauses sowie der Küche gemacht, folgende Punkte waren uns wichtig:
-Extra Speis
-Gefriertruhe und Halbares soll im Keller gelagert werden
-Es soll eine Essküche sein
-Wenn möglich sollte ein Sofa in die Essküche integriert werden
-Zusätzlich zum normalen Elektroherd wollten wir einen Holzoffen
-möglichst viel Arbeitsfläche

So haben wir geplant und sind auf den Entwurf im Anhang gekommen.
Das wurde nach diesem Plan gebaut.

Nun nach dem das Haus fertig ist schein uns der zur Verfügung stehende Platz doch etwas knapp zu sein.

Deshalb mein anliegen hier, gibt es vielleicht Vorschläge wie man den Platz etwas anders ausnutzen könnte?

Zu der Frage: In der Regel wird meine Freundin kochen.

Ich hänge nochmal den Plan als PDF und den Ausschnitt der Küche an.
Anhang anzeigen 111004 Plan Küche EG Ausschnitt.pdf101128 Bild Küche Bild 2.jpgAnhang anzeigen 111004 Plan Küche EG.pdf
 
AW: Ideen für Küche im Neubau

kleine Stellprobe ohne Ecken
 

Anhänge

  • Leng.KPL
    4,1 KB · Aufrufe: 208
  • Leng.POS
    8,6 KB · Aufrufe: 204
  • Leng draufsicht.jpg
    Leng draufsicht.jpg
    47 KB · Aufrufe: 202
  • Leng plan.JPG
    Leng plan.JPG
    40,8 KB · Aufrufe: 192
  • Leng planlinks.jpg
    Leng planlinks.jpg
    42,3 KB · Aufrufe: 196
  • Leng planlunten.jpg
    Leng planlunten.jpg
    41,6 KB · Aufrufe: 189
AW: Ideen für Küche im Neubau

... und wofür soll das Sofa genutzt werden? Warum wünscht ihr euch ein Sofa in der Essküche?

Seit ihr sicher, dass ihr den Durchgang ins Whz wirklich benötigt? Sooo weit ist es durch den Flur ja auch nicht ;-)

Der Raum ist zwar gross aber die vielen Wandöffnungen machen es schwierig. Besonders viel Stauraum werdet ihr da nicht haben.. kommt ihr mit sowenig aus?
 
Elkes Ansatz finde ich ja schon ganz gut. So ist die Terrassentür wesentlich besser zugänglich.

Könntet ihr euch auch eine Schiebetür zum Flur vorstellen?

Sofa ... muss doch nicht extra stehen. Ich habe auch ein Sofa an meinem Essplatz .. ein Ostfriesensofa.

Hier mal in der noch-Sofa-Position

und dann so, wie es in der neuen Wohnung immer sein wird, ein Sitzmöbel für den Tisch
 
Zuletzt bearbeitet von einem Moderator:
AW: Ideen für Küche im Neubau

Jetzt lese ich gerade "Sanitäranschluß fix". Im Neubau? Wo ist er denn genau? Und, besteht irgendeine Möglichkeit, noch Wasser/Abwasser aus dem Keller an andere Stelle zu bekommen? Oder ist das völlig ausgeschlossen?
 
AW: Ideen für Küche im Neubau

Hallo KerstinB,
als erstes über das Sofa können wir noch reden. Auch über die Schiebetür ins Wohnzimmer kann man reden.
Die Anschlüße sind zwar schon gelegt, es ist aber noch nicht verputzt, somit sind wir noch in einer gewissen weise flexibel.
Derzeit befinden sich die Anschlüsse unter der Spüle (rechte Seite des Fensters).
Die Spülmaschine war in der letzten Version beim Fenster neben der Spüle, Richtung Zwischenwand angedacht.

Gruß
Lengdeuer
 
AW: Ideen für Küche im Neubau

Hmm ... hat sich überschnitten, ich stelle es trotzdem mal rein.

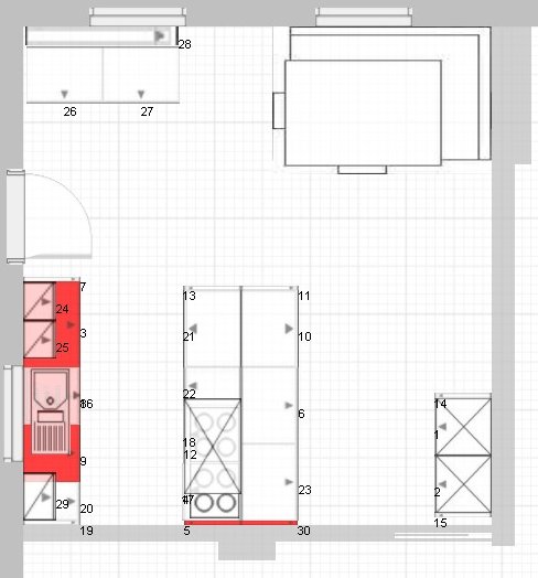
Die Küche in der anderen Ecke des Raumes. Mit einer großen Arbeitsinsel incl. Spüle, einer Kochzeile und einem kleinen Eckschrank, z. B. für den KVA.

Knackpunkt hier .. die Nähe des Sofas und des Kopfsitzplatzes zum Kaminherd.

Vermutlich wg. Wasser eh nicht durchführbar.

Was mir so besser gefallen würde ... großzügigere Sitzplätze, guter Zugang zur Terrassentür, die allerdings in meiner Variante auch besser andersherum angeschlagen wäre. Großzügige durchgängige Arbeitsfläche und genug Stauraum für alles.

EDIT:
Ich würde in dem Raum auf jeden Fall einen durchgehenden einheitlichen Boden wählen.
 

Anhänge

  • kf_lengdeuer_20111006_kb_var1.KPL
    4,1 KB · Aufrufe: 176
  • kf_lengdeuer_20111006_kb_var1.POS
    17 KB · Aufrufe: 180
  • kf_lengdeuer_20111006_kb_var1_Ansicht1.jpg
    kf_lengdeuer_20111006_kb_var1_Ansicht1.jpg
    158,1 KB · Aufrufe: 182
  • kf_lengdeuer_20111006_kb_var1_Ansicht2.jpg
    kf_lengdeuer_20111006_kb_var1_Ansicht2.jpg
    227,2 KB · Aufrufe: 192
  • kf_lengdeuer_20111006_kb_var1_Ansicht3.jpg
    kf_lengdeuer_20111006_kb_var1_Ansicht3.jpg
    215,3 KB · Aufrufe: 194
  • kf_lengdeuer_20111006_kb_var1_Ansicht4.jpg
    kf_lengdeuer_20111006_kb_var1_Ansicht4.jpg
    290,8 KB · Aufrufe: 178
  • kf_lengdeuer_20111006_kb_var1_Grundriss.jpg
    kf_lengdeuer_20111006_kb_var1_Grundriss.jpg
    102,2 KB · Aufrufe: 181
AW: Ideen für Küche im Neubau

Hallo Kerstin,
Entwurf sieht auch ziemlich gut aus!
Nur, dass der Holzofen als Kochherd gedacht war z.B.: Pertinger Ökoalpin 100 Bausatzherd. Also müsste dieser auch neben dem E-Herd sein!

Lengdeuer
 
AW: Ideen für Küche im Neubau

Man muss ja erstmal ein Gefühl für den Raum bekommen ... leider steht ja im Grunde auch schon alles fest. Vier Fenster und 2 Türen sind auch nicht gerade wenig für so einen Raum ;-). Fast quadratische Räume sind meist schwieriger einzurichten, als eher rechteckige Räume.

Mir gefällt das U nicht. Das sieht irgendwie wie ein Raum im Raum aus. Und die Ecke unten rechts mit den 144 cm bis zum Fenster finde ich für eine Sitzecke auch sehr gedrängt.

Jetzt mal mit L und Arbeitsinsel.

Planoberhalb und planunterhalb des Tisches jetzt jeweils knapp 90 cm. Das reicht gerade so fürs bequeme Sitzen auf Stühlen. Stühle finde ich auch flexibler ;-)

Dafür kommt man jetzt von der Küchenecke auch mal direkt zur Terrassentür.

GSP am Ende der Zeile, dann kann man bequem in eine Richtung ausräumen.

Auf der Küchenseite der Insel ein 120er Unterschrank und ein offenes Element z. B. für Handtücher oder zum senkrechten Einstellen gerade nicht benötigter Backbleche oder Schneidbretter.
 

Anhänge

  • kf_lengdeuer_20111006_kb_var2.POS
    17,6 KB · Aufrufe: 224
  • kf_lengdeuer_20111006_kb_var2_Ansicht1.jpg
    kf_lengdeuer_20111006_kb_var2_Ansicht1.jpg
    298,6 KB · Aufrufe: 496
  • kf_lengdeuer_20111006_kb_var2_Ansicht2.jpg
    kf_lengdeuer_20111006_kb_var2_Ansicht2.jpg
    247,7 KB · Aufrufe: 189
  • kf_lengdeuer_20111006_kb_var2_Ansicht3.jpg
    kf_lengdeuer_20111006_kb_var2_Ansicht3.jpg
    251,8 KB · Aufrufe: 183
  • kf_lengdeuer_20111006_kb_var2_Ansicht4.jpg
    kf_lengdeuer_20111006_kb_var2_Ansicht4.jpg
    312,4 KB · Aufrufe: 199
  • kf_lengdeuer_20111006_kb_var2_Grundriss.jpg
    kf_lengdeuer_20111006_kb_var2_Grundriss.jpg
    121,6 KB · Aufrufe: 198
  • kf_lengdeuer_20111006_kb_var2.KPL
    4,1 KB · Aufrufe: 175
AW: Ideen für Küche im Neubau

Das gefällt mir auch schon viel besser, als die Ausgangsplanung ... Deine V1 hat mir noch besser gefallen .. schade - aber immerhin hat man es mal gesehen :foehn:
 
AW: Ideen für Küche im Neubau

Hallo Kerstin,
Super Lösung gefällt uns sehr gut!:cool:

Wir würden zwar den GSP direkt neben das Spülbecken setzen.

Ansonsten ist die Einteilung echt toll, was eine kleine Änderung im Plan für eine riesen Auswirkung hat.:2daumenhoch:

Danke!

Gruß
Lengdeuer
 
AW: Ideen für Küche im Neubau

Das ist aber genau eigentlich kontraproduktiv ... du mußt dann beim Ausräumen immer um die Klappe herum, um das Geschirr in dem 90er Unterschrank zu verstauen.

Optisch sieht es auch noch besser aus, wenn der GSP außen ist:
60772d1317934862-ideen-fuer-kueche-im-neubau-kf_lengdeuer_20111006_kb_var2_ansicht1.jpg


Jetzt ist es
60er Ganzfront Spüle
90er Auszugsunterschrank
60er Ganzfront GSP

Manch einer würde etwas für diese Symmetrie geben :cool:
 
AW: Ideen für Küche im Neubau

Hallo Kerstin,
da hast Du eigentlich recht!

Die Anschlüsse für den Zu- und Ablauf des GSP können aber unter dem Spülbecken bleiben?

Dann sollten wir für die Arbeitsinsel noch einen Stromanschluss vorsehen.

Was empfiehlst Du in Punkto Arbeitsplatte , wir tendieren derzeit zu Stein!

Gruß
Lengdeuer
 
AW: Ideen für Küche im Neubau

Die Schläuche zur GSP werden im Sockelbereich zum Spülenschrank geführt. Bei mir sind da z. B. aktuell 110 cm zwischen den beiden.

Arbeitsplatte , das ist Geschmackssache. Ich werde mir eine Keramikarbeitsplatte gönnen.

Und ja, ganz wichtig, Strom in der Insel. Man könnte im Bereich des von mir geplanten offenen 15er Elements zur Mitte der Insel hin eine versenkbare Steckdosenleiste planen --> Powerport
 
AW: Ideen für Küche im Neubau

Ich würd die Tür zum Wohnzimmer zu machen. Den Ofen da so nah dran und dann soll der noch zum kochen benutzt werden. Ich hätt Angst das mir da jemand im vorbeigehen was runterreißt.

Was mich mal interessieren würde ist warum man darauf noch kocht. Ist jetzt nicht bös gemeint. Ich kenn das ja noch von meiner Oma, die hatte sowas auch noch in der Küche. Man kann da doch garnichts regeln, das ist ja immer sehr heiß wenn da ein Feuer an ist. Ich wüßte nicht was man die ganze Zeit auf voller Pulle kochen müßte....außer vielleicht Fond reduzieren.


LG
Sabine
 
AW: Ideen für Küche im Neubau

Hallo Bodybiene,
den Herd werden wir zum einen zum Heizen und erst in zweiter Linie zum Kochen einsetzen.
Warum Holzherd: Zum einen wir haben den Brennstoff also Holz, kostenlos zur Verfügung.
Zum anderen gibt es unserer Meinung nach nichts schöneres als einen Holzofen in der Küche.

Der aktuelle Entwurf gefällt uns sehr gut und wird es werden.

Gruß
Lengdeuer
 

Ähnliche Beiträge

Neff Hausgeräte Ballerina Küchen Blum Bewegungstechnologie Weibel - Intelligente Küchenlüftung

Neff Spezial

Blum Zonenplaner

Weibel Abluft-Tuning

Weibel Abluft-Tuning
Zurück
Oben