bambusmaus
Mitglied
- Beiträge
- 2
Hallo, wir sind gerade in der Planungsphase unserer Küche für unseren Neubau und ich würde mich über eure Expertenmeinungen sehr freuen.
Ich habs leider nicht geschafft, unsere Wunschküche im Alno Planer perfekt wiederzugeben, aber die Aufteilung sollte soweit passen.
Daher würde mich zunächst das Feedback zu unserer generellen Aufteilung interessieren.
Was noch fehlt: An der Rückseite der Arbeitshalbinsel sollen noch weitere Schränke mit geringerer Tiefe hinkommen, damit wir eine Tiefe von min. 90cm hinbekommen.
Was die Inhalte/Art der Schränke angeht, sind wir noch flexibel.
Diese Müllschublade unter der Arbeitsplatte hab ich gerade bei euch entdeckt, super Idee! Was macht man denn dann am schlausten mit dem Raum unter der Spüle?
Eine Ecklösung brauche ich auch nicht unbedingt, hab sie im Plan erstmal als einfachen Schrank reingenommen, um den Stauraum nicht zu verlieren. Wir haben momentan ein Rondell im Einsatz, wo ständig die Deckel runterfallen.
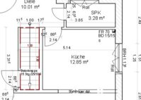
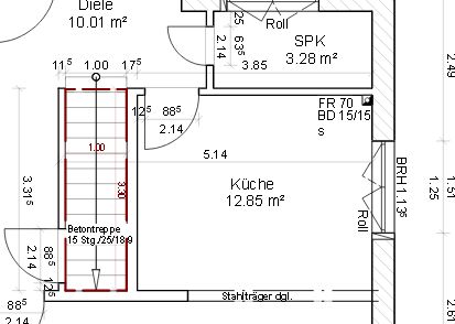
Für die Ecke rechts neben der Abzugshaube fehlt mir noch ne Idee, das sieht noch etwas nackt aus. Allerdings ist ganz in der Ecke ein Fallrohr (sieht man auf dem Detailgrundriss)
Vielleicht noch eine Frage zum Budget - sind max 15000 denn realistisch für eine grifflose Hochglanz-Küche in unserer Größe? Bei den Geräten haben wir keine Riesenansprüche, aber Biofresh beim Kühlschrank und Induktion sollten auf jeden Fall sein. Pyrolyse beim Backofen wäre auch sehr cool.
Ach ja: Küche und Essbereich sind durchgängig gefliest, da gibt es also keinen Absatz und damit kann die Arbeitsinsel auch etwas in den Essbereich hineinragen.
Bin sehr gespannt auf eure Ideen!
Checkliste zur Küchenplanung von bambusmaus
Anzahl Personen im Haushalt : 3
Davon Kinder? : 1
Körpergrössen aller Hauptbenutzer (wegen Arbeitshöhe ) in cm : 160, 171
Art des Gebäudes? : Neu-/Umbau, Planänderungen nicht möglich
Brüstungshöhe des Fensters (in cm) : 98
Fensterhöhe (in cm) : ka
Raumhöhe in cm: : 255
Heizung : Fussbodenheizung
Sanitäranschlüsse : vollkommen variabel
Ausführung Kühlgerät? : Integriert im Hochschrank (60cm)
Kühlgerät Größe : bis 140 cm Höhe
Ausführung Tiefkühl (TK)-Gerät : Nicht erforderlich bzw. steht woanders
Dunstabzugshaube? : Umluft
Hochgebauter Backofen ? : Ja
Hochgebauter Geschirrspüler ? : nein
Kochfeldart? : Induktion
Kochfeldbreite ca. (in cm)? : 80
Spülenform: : 1 Becken mit Abtropffläche
Weitere geplante Heißgeräte : Standmikrowelle
Küchenstil? : grifflos
Sitzmöglichkeit in der Küche / im Küchenbereich als : Keine
Sitzmöglichkeit: Für wieviel Personen? : nein
Sitzmöglichkeit: Tisch - wenn gesonderter Tisch oder offene Küche : Keine
Gewünschte o. vorhandene Tischgröße : 160x80
Wofür soll der Sitzplatz in der Küche genutzt werden? Wie häufig? : Auf der Arbeitsinsel soll unsere Tochter sitzen und beim Vorbereiten helfen
Welche Arbeitshöhe ist angedacht (in cm)? : 91
Was steht auf der Arbeitsplatte oder soll dort stehen? : Kaffeevollautomat, Wasserkocher, Toaster, Brotbehälter
Welche weiteren Küchenmaschinen müssen in der Küche untergebracht werden? : Mixer, Pürierstab
Was soll in der Küche außer den Standards untergebracht werden? : Geschirr komplett (nichts in Ess-/Wohnzimmer)
Welchen Stauraum gibt es sonst noch? : Speisekammer, Hauswirtschaftsraum, Keller
Was/wie wird gekocht? (Alltagsküche, Menüs, Snacks usw) : Alltags-Familienküche
Wie häufig wird gekocht? : (fast) täglich 1x warm
Wird alleine gekocht? Oder auch gemeinsam? Mit und für Gäste? : Ab und zu auch mit Gästen
Was stört an der bisherigen Küche und was soll die neue Küche unbedingt können? Warum? : Kühlschrank zu klein (88er), ansonsten perfekt
Steht schon ein Küchenhersteller fest oder wird bevorzugt? : nein
Steht schon ein Gerätehersteller fest oder wird bevorzugt? : nein
Preisvorstellung (Budget) : bis 15.000,-



Ich habs leider nicht geschafft, unsere Wunschküche im Alno Planer perfekt wiederzugeben, aber die Aufteilung sollte soweit passen.
Daher würde mich zunächst das Feedback zu unserer generellen Aufteilung interessieren.
Was noch fehlt: An der Rückseite der Arbeitshalbinsel sollen noch weitere Schränke mit geringerer Tiefe hinkommen, damit wir eine Tiefe von min. 90cm hinbekommen.
Was die Inhalte/Art der Schränke angeht, sind wir noch flexibel.
Diese Müllschublade unter der Arbeitsplatte hab ich gerade bei euch entdeckt, super Idee! Was macht man denn dann am schlausten mit dem Raum unter der Spüle?
Eine Ecklösung brauche ich auch nicht unbedingt, hab sie im Plan erstmal als einfachen Schrank reingenommen, um den Stauraum nicht zu verlieren. Wir haben momentan ein Rondell im Einsatz, wo ständig die Deckel runterfallen.
Für die Ecke rechts neben der Abzugshaube fehlt mir noch ne Idee, das sieht noch etwas nackt aus. Allerdings ist ganz in der Ecke ein Fallrohr (sieht man auf dem Detailgrundriss)
Vielleicht noch eine Frage zum Budget - sind max 15000 denn realistisch für eine grifflose Hochglanz-Küche in unserer Größe? Bei den Geräten haben wir keine Riesenansprüche, aber Biofresh beim Kühlschrank und Induktion sollten auf jeden Fall sein. Pyrolyse beim Backofen wäre auch sehr cool.
Ach ja: Küche und Essbereich sind durchgängig gefliest, da gibt es also keinen Absatz und damit kann die Arbeitsinsel auch etwas in den Essbereich hineinragen.
Bin sehr gespannt auf eure Ideen!
Checkliste zur Küchenplanung von bambusmaus
Anzahl Personen im Haushalt : 3
Davon Kinder? : 1
Körpergrössen aller Hauptbenutzer (wegen Arbeitshöhe ) in cm : 160, 171
Art des Gebäudes? : Neu-/Umbau, Planänderungen nicht möglich
Brüstungshöhe des Fensters (in cm) : 98
Fensterhöhe (in cm) : ka
Raumhöhe in cm: : 255
Heizung : Fussbodenheizung
Sanitäranschlüsse : vollkommen variabel
Ausführung Kühlgerät? : Integriert im Hochschrank (60cm)
Kühlgerät Größe : bis 140 cm Höhe
Ausführung Tiefkühl (TK)-Gerät : Nicht erforderlich bzw. steht woanders
Dunstabzugshaube? : Umluft
Hochgebauter Backofen ? : Ja
Hochgebauter Geschirrspüler ? : nein
Kochfeldart? : Induktion
Kochfeldbreite ca. (in cm)? : 80
Spülenform: : 1 Becken mit Abtropffläche
Weitere geplante Heißgeräte : Standmikrowelle
Küchenstil? : grifflos
Sitzmöglichkeit in der Küche / im Küchenbereich als : Keine
Sitzmöglichkeit: Für wieviel Personen? : nein
Sitzmöglichkeit: Tisch - wenn gesonderter Tisch oder offene Küche : Keine
Gewünschte o. vorhandene Tischgröße : 160x80
Wofür soll der Sitzplatz in der Küche genutzt werden? Wie häufig? : Auf der Arbeitsinsel soll unsere Tochter sitzen und beim Vorbereiten helfen
Welche Arbeitshöhe ist angedacht (in cm)? : 91
Was steht auf der Arbeitsplatte oder soll dort stehen? : Kaffeevollautomat, Wasserkocher, Toaster, Brotbehälter
Welche weiteren Küchenmaschinen müssen in der Küche untergebracht werden? : Mixer, Pürierstab
Was soll in der Küche außer den Standards untergebracht werden? : Geschirr komplett (nichts in Ess-/Wohnzimmer)
Welchen Stauraum gibt es sonst noch? : Speisekammer, Hauswirtschaftsraum, Keller
Was/wie wird gekocht? (Alltagsküche, Menüs, Snacks usw) : Alltags-Familienküche
Wie häufig wird gekocht? : (fast) täglich 1x warm
Wird alleine gekocht? Oder auch gemeinsam? Mit und für Gäste? : Ab und zu auch mit Gästen
Was stört an der bisherigen Küche und was soll die neue Küche unbedingt können? Warum? : Kühlschrank zu klein (88er), ansonsten perfekt
Steht schon ein Küchenhersteller fest oder wird bevorzugt? : nein
Steht schon ein Gerätehersteller fest oder wird bevorzugt? : nein
Preisvorstellung (Budget) : bis 15.000,-



Anhänge
Zuletzt bearbeitet:
