- Beiträge
- 40
Habe den Bügelbrett-Test gemacht. 86cm ist tatsächlich nicht meine Höhe.
91cm Arbeitsfläche sind gut. =)
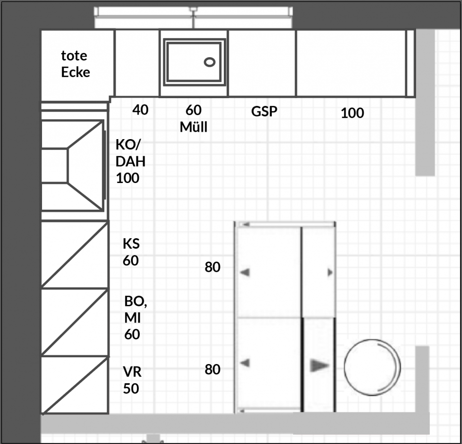
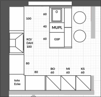
Ich habe noch mal Evelins letzte Planung aufgenommen und ein wenig umsortiert.
MUPL unter die Insel und dafür planoben zwei 100er für Geschirr hingesetzt.
Außerdem bin ich in meiner jetzigen Küche mal Schrank für Schrank durch gegangen und habe geistig in diese Planung einsortiert. Ich muss sagen, es wird arg knapp.
Obwohl mir diese Variante visuell gut gefällt, habe ich ein wenig dir Befürchtung, dass hier Stauraum fehlt. Außer Kaffee-Maschine und Wasserkocher möchte ich wirklich nichts auf der Arbeitsfläche stehen haben.
Wird über den Backofen eine Standmikrowelle passen?
Wie sähe es aus, die HS noch ein Raster zu erhöhen? Auch zu drückend?
Habt ihr Ideen, wir man hier noch Stauraum (ohne Hängeschränke) gewinnen kann?
Ich lande dann doch wieder beim 3er Block.
Ps. Ich könnte mal mit meinem Planer Rücksprache halten, ob das Außenfenster noch zu ändern ist, damit es dann wieder mittig sitzt und ggf. die APL in die Leibung laufen kann. Bin mir aber noch nicht einig, ob mir das gefällt. Ich sehe auch mal, ob ich die Bürotür und somit das Flurfenster verschieben kann, damit es zentriert an der Insel oder im Durchgang sitzt.
91cm Arbeitsfläche sind gut. =)
Ich habe noch mal Evelins letzte Planung aufgenommen und ein wenig umsortiert.
MUPL unter die Insel und dafür planoben zwei 100er für Geschirr hingesetzt.
Außerdem bin ich in meiner jetzigen Küche mal Schrank für Schrank durch gegangen und habe geistig in diese Planung einsortiert. Ich muss sagen, es wird arg knapp.
Obwohl mir diese Variante visuell gut gefällt, habe ich ein wenig dir Befürchtung, dass hier Stauraum fehlt. Außer Kaffee-Maschine und Wasserkocher möchte ich wirklich nichts auf der Arbeitsfläche stehen haben.
Wird über den Backofen eine Standmikrowelle passen?
Wie sähe es aus, die HS noch ein Raster zu erhöhen? Auch zu drückend?
Habt ihr Ideen, wir man hier noch Stauraum (ohne Hängeschränke) gewinnen kann?
Ich lande dann doch wieder beim 3er Block.
Ps. Ich könnte mal mit meinem Planer Rücksprache halten, ob das Außenfenster noch zu ändern ist, damit es dann wieder mittig sitzt und ggf. die APL in die Leibung laufen kann. Bin mir aber noch nicht einig, ob mir das gefällt. Ich sehe auch mal, ob ich die Bürotür und somit das Flurfenster verschieben kann, damit es zentriert an der Insel oder im Durchgang sitzt.
Anhänge




