Unbeendet Familie 5 plus Aupair

@Björn-im-Wald,

damit jemand in diesem Forum kreativ werden kann, brauchen wir einen Plan mit LESBAREN Maßen. Ansonsten phantasieren wir nur rum.

Anhang anzeigen 371651
wenn du nur das hast, dann das bitte noch zusätzlich als PDF.

Aber, wenn Sichtaxen und Lichteffekte von Bedeutung sind ... Meiner Meinung funktioniert diese küche nicht.

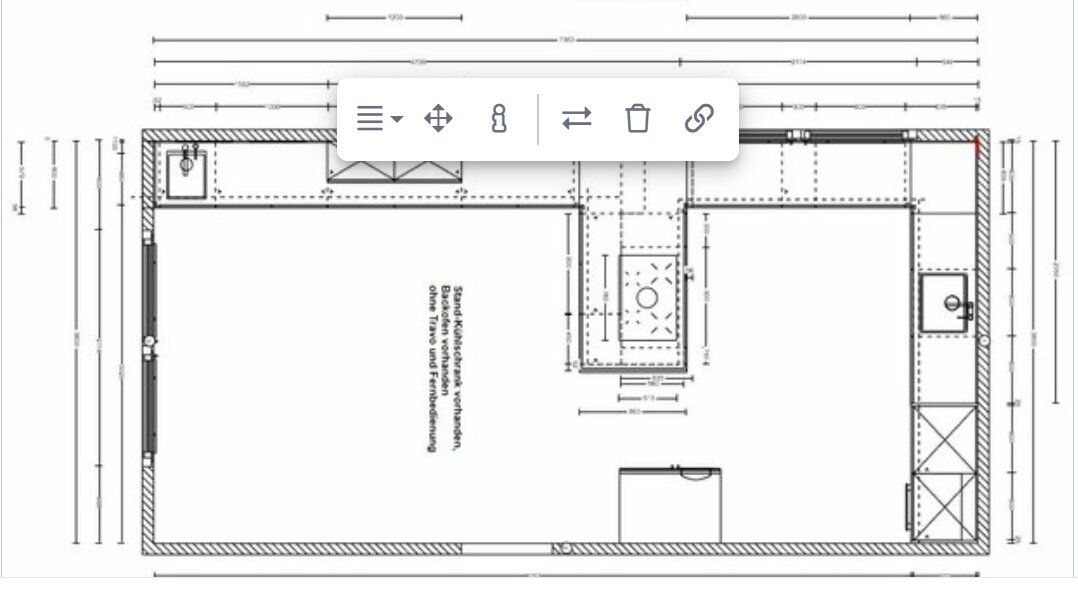
3 Ecken, SBS an engster Stelle, wo alle durchlaufen und den KS x mal öffnen, links oben sehe ich nur Schränke mit Türen usw

Und dein Planer hat wohlweislich den Tisch nicht eingezeichnet, 200 x90 plus Stühle und Bank?

Mich wundert, dass es nicht mal eine Mikro bei so vielen Personen gibt, oder 2 x BOs mit Optionen.

Welche Maße und Position hat die Kammer?

Ich habe diesen Plan so weit es geht nachgebaut
Der Planer hat mir leider nur diese schlechte Version, ohne lesbare Zahlen gesendet, echt doof. Ich gucke mal ob ich dies selbst nachtragen kann.

Sichtachsen und Licht ist für mich mit das wichtigste in der Wohnraum Planung, da es immens zur Stimmung beiträgt. Die Funktionalität der Küche ist da gleichwertig, wobei ich hier nicht die Funktion gänzlich hinten anstellen möchte: es ist eine Küche, die muß als solche auch funktionieren.

In einem meiner ersten Posts habe ich geschrieben, wenn ich zu dritt in der Küche etwas mache, dann brauche ich Raum, den gewinne ich nur, wenn ich keine freie Insel habe.

Den SBS an der Stelle ist ein Kompromiss, er steht mitten im Raum, alle kommen immer gleich schnell dran, er ist nicht sichtbar im Fokus des Raumes erzeug durch die Kochinsel aber eine kleine Engstelle, wobei dies noch händelbar ist mit 70 cm lichtem Durchgang. Hilfreich ist die Ablage auf der Arbeitsfläche davor zum ein und ausräumen des Kühlschranks in dieser Situation.

Als der Raum vorher noch durch die Wand die ich entfernt habe getrennt war, stand an der gleichen Stelle auch ein Tisch mit Bank und Stühlen, dies sit daher unverändert, das passt gut.

Der Planer hat es nicht eingezeichnet, da diese Artikel nicht von ihm sind und in dem Rahmen daher keine Rolle spielten.

Wir hatten in der letzten Küche zwei BOs, haben wir in drei Jahren nur 3-4 mal gleichzeitig in gebrauch gehabt, da verzichte ich daher drauf.

Mikrowelle ist sehr wohl in gebrauch, die stelle ich in dei Speisekammer, die sit nur schematisch skizziert, die liegt direkt an der Küche an und hat die Maße von circa 1,10 x 2,00 m

Hier habe ich noch einen zusätzlichen Hochschrank als Option eingefügt, ganz rechts unten in der Ecke. Genug Abstell und Arbeitsfläche habe ich ja, so kann ich den BO etwas von der Wand abrücken, das gefiel mir nicht so gut, so dicht an der Wand. Ausserdem habe ich so die Option einen möglichen zweiten BO (ich glaube nicht das wir nochmal einen nehmen) aber vielleicht eine einbau Kaffeemaschine, wenn die eine mal den Geist aufgibt, oder sonstetwas einzubauen...
 

Anhänge

  • Skizze Küche mit Speisekammer und Maßen.jpg
    Skizze Küche mit Speisekammer und Maßen.jpg
    136,3 KB · Aufrufe: 125
Zuletzt bearbeitet:
Alle Wandabschnitte im Raum bitte vermassen, alle Wände bis zur Fensterlaibung, die gesamte Eingangsseite der Küche z.b.fehlt.
Und wie ist der Stand des Baufortschritts denn nun tatsächlich? Im scheckig machen bin ich meisterhaft, aber es muss mir ja auch Spass machen!!! Wenn du schon am Rollrasen auslegen bist, machts halt keinen Sinn den ganzen Grundriss auseinander zu nehmen....
Weescht, wieesch määähn???
 
woher hat der Planer denn die Maße? woher wußte er, wo die Tür ist? wo ist der Durchgang in die Speise? wie breit

denn 360, 392, 342 sind Rohbaumaße?

Echte Maße, auch als Handskizze machen uns glücklich ...
 
Uih, hätte ich mir das Zeichnen ohnehin sparen können. Trotzdem, da die Arbeit schon getan ist.

Ich habe erst gestern in der Zeitung einen SBS gesehen, der von einer schmalen Holzleiste umrahmt war. Das sah toll aus und wäre in meinen Augen eine schöne optische Untergliederung der zwei Bereiche.

Eine nackte Insel hat viele Vorteile, weil sie vielfältig genutzt werden kann. Ich bin einmal auf 90 Tiefe und 210 Länge gegangen.

Mir ist beim Zeichnen aufgefallen, dass einige Maße fehlen, wie Evelin schon angemerkt hat. Eine Variante (in grün) ist die Insel quer, weil mir persönlich bei meiner Planung die Blickrichtung bei der Insel Richtung Tür nicht gefällt.
 

Anhänge

  • 13BE1306-C8CB-41AD-A5D9-F348049311AC.jpeg
    13BE1306-C8CB-41AD-A5D9-F348049311AC.jpeg
    75,4 KB · Aufrufe: 116
für den SBS sollte der KFB eine passende Lösung parat haben, US68 hat das schon beschrieben, mit Skizze.

Ich würde anders stellen, brauche aber Maße.
einer Lichten Weite von 89 cm Durchgangsbreite ist das aber immer noch komfortabel. Zumindest zum gehen, auch mit zwei Personen noch.
oh oh, habt ihr das im Moment so oder wie kommst du auf "komfortabel"?

und zu dem Plastikbomber in der Küche, ja, ich wollte auch nicht auf eine "Stickerfront" schauen. Aber dafür gibt es Gott sei Dank auch andere Optionen (für die Sticker).
 
Vielleicht kann man die Speisekammernische mit zur Küche hinzunehmen und darin den SbS und Hochschrank ( wie breit geht es?) stellen?
Rückseitig bleibt ggf noch Platz für einen Einbauschrank. M.e. fehlt es in der riesigen Diele an Stauraum/Garderobe/Schuhschrank etc. Der kleine Garderobenbereich ist viel zu wenig für 5-6 P. Bekommt das Aupair noch eine separate Duschmöglichkeit? Wo wäre das Gästezimmer? Ich finde den Zugang fürs Aupair durchs Wohnzimmer auch unglücklich. Zu wenig Privatsphäre für beide Seiten.
 

Anhänge

  • 20230325_114206.jpg
    20230325_114206.jpg
    134,4 KB · Aufrufe: 116
Wow! Da muss ich jetzt erstmal genau gucken!

Ich bin auf den ersten Blick echt platt. Cool!

Dank.

Hier aber auch nochmal die genauen Maße
 

Anhänge

  • 95CD419A-DD17-412B-88FE-FE7AF648ED02.jpeg
    95CD419A-DD17-412B-88FE-FE7AF648ED02.jpeg
    115,9 KB · Aufrufe: 101
Ja, interessant. Könnte funktionieren, aber:
  • so stehe ich mit dem Rücken zur Tür, zum Tisch, zu allem im Raum und gucke gegen eine Wand beim Kochen, das mag ich garnicht.
  • Die Hängeschränke mag meine Frau nicht, klar, ist immer mehr stauraum, aber davon haben wir auch so wirklich genug, daher habe ich den Badarf nicht zwingend, mir da Schränke hinzuhängen. Die stören mich auch immer etwas direkt vor der Nase, gerade beim kochen, ich mag einen freien Blick in den Raum und auf Kinder und Gäste.
  • könnte man dadruch lösen, dass man die Kochmulde in die Insel integriert, das wäre dahingehend eine echte alternative.
  • Positiv wäre, dass ich dann auch die zweite Spüle entfallen lassen würde, da die andere ein bisschen näher rückt (das spart Kosten)
  • nicht ganz so glücklich finde ich die Positionierung von BO direkt neben SBS. Einerseits wegen den Oberflächen der Geräte, die sind halt deutlich unterschiedlich, andererseits wegen der gefühlten unverträglichkeit von kalt und heiß, kann man machen, die Isolierungen geben es her, aber so richtig gut finde ich es nicht.
  • Dazu kommt das die Ecke hinen am Fenster oben rechts durch die Hochschränke bis in die Ecke sehr "gequetscht" wirkt. Es passt auch nicht so wirklich, da die Wandscheibe rechts neben dem Fenster auch nur 55 cm breit ist, bei einem 60 er Schrank ist das unglücklich, besonders bei einem Hochschrank .
  • Was weiterhin etwas weiter wäre, ist der Schrank vom Tisch zum Kühlschrank.
 
Vielleicht kann man die Speisekammernische mit zur Küche hinzunehmen und darin den SbS und Hochschrank ( wie breit geht es?) stellen?
Rückseitig bleibt ggf noch Platz für einen Einbauschrank. M.e. fehlt es in der riesigen Diele an Stauraum/Garderobe/Schuhschrank etc. Der kleine Garderobenbereich ist viel zu wenig für 5-6 P. Bekommt das Aupair noch eine separate Duschmöglichkeit? Wo wäre das Gästezimmer? Ich finde den Zugang fürs Aupair durchs Wohnzimmer auch unglücklich. Zu wenig Privatsphäre für beide Seiten.
Gute Idee, leider ist die Wand eine tragende, das wäre ein recht großer Eingriff in die Statik, leider so nicht (ohne großen Aufwand) umsetzbar.

Das mit dem Zugang zum Aupair Zimmer ist richtig. Die Position der Tür die du vorschlägst hatte ich auch schon bedacht, leider ist die Drehrichtung der Haustür (aktuell, wird vermutlich auch so bleiben, weil anders macht kaum sinn, nur nach Außen, dann ist sie aber dort im weg) genau dorthin und würde dann der Aupair die Sprichwörtliche Tür vor die Nase schlagen wenn sie aus dem Zimmer kommt.

Die Garderobe ist tatsächlich viel zu klein, gut erkannt. Ich werde noch einen Raum vor der Hausüre bauen als vorgelagerten Eingangsbereich, dort werden dann noch die Garage und der Eingangsbereich mit der zweiten Treppe erschlossen. Dort soll dann die Garderobe für Kinder etc Platz finden. Ein Zugang über die Rückseite der Garage mit aussenliegendem Wasser und Druckluft Anschluß für Schuh und Kleidungsreinigung und einem sogenannten "Mudroom" in der Garage als Schleuse für nasse und dreckige Kleidung und erweiterten Garderobenbereich wird dadurch entstehen. Ich mache dir gleich mal eine Skizze dazu.

Das Aupair benutzt das Bad zum Duschen oben zusammen mit den Kindern. Ich hatte auch erst überlegt dort unten den Garderoben Flur vor dem Gäste WC mit als Bad dazu zunehmen, aber:
Wenn das Aupair dieses Bad täglich benutzt und das auch unser Gäste WC sein soll, verträgt sich das nicht. Die Erfahrung durch die verganenen Aupairs hat gezeigt das dies nicht immer so aussieht wie wir uns es gerne wünschen (Sauberkeit allgemein, Ordnung etc...) daher möchte ich ein Gäste WC für Gäste ungern auch dem Aupair zur Verfügung stellen.

Wir haben noch eine Sauna mit Dusche im Keller, dort kann sie / er duschen, oder eben oben in einem der Kinder Bäder (wir haben zwei Bäder für die Kinder, jeweils mit Dusche und WC).
 
mit den neuen Maßen wird der Spülen US planlinks 45cm breit,

Die Insel habe ich dann 47+58 cm tief gemacht, also jeweils Korpus plus Front.

1679750976507.jpg
der Zeilenabstand Insel zur Zeile planoben beträgt ca 130cm.
 
Hier.
Kinder und alles was sonst so trieft und schmutzig ist, geht rund um die Garage und kann sich dort Wind und Wettergeschützt unter einem Dach aussen vorreinigen. Es ist rundherum ums Haus ein breiter Dachüberstand der sehr gut schützt, vor dem Haus ist der über 2 Meter Breit, umlaufend sonst knapp 1 Meter, sehr praktisch.

Aupair so direkt "im" Wohnzimmer ist auch nicht unsere liebste Lösung, aber:
  • wir haben keinen andren Raum welchen wir sonst gut als alternative anbieten können, sonst zu nah dram am Schlafzimmer, oder zu weit weg von den Kindern, oder unpraktisch in irgendeiner anderen Form. so bleibt es also dort.
  • Aupair gehört zur Familie, ich möchte es somit auch nicht so weit "ausgliedern".
  • Wir haben in der Vergangneheit unser Wohnzimmer kaum zu zweit genutzt, sondern immer in unserem sehr großen "Apartment" ähnlichen Schlafzimmer verbracht, da wir dort alles haben was wir brauchen: Bad en Suite, verstellbares Bett zum lesen und TV gucken, großer Beamer, Gemütlichkeit etc...
  • Wenn Gäste da sind im Wohnzimmer darf Aupair gerne mit dabei sein, sonst eben im Zimmer daneben, uns störte es nie, wenn Aupair sich gestört fühlt an einzelnen Abenden, kann sie entweder ausgehen, in die Gäste Wohnung gehen (dort sind auch unsere Büros, kleine Küche etc.) oder mit Kopfhörer TV gucken. ;-)
 

Anhänge

  • Aufteilung EG mit neuer Garderobe.jpg
    Aufteilung EG mit neuer Garderobe.jpg
    142,6 KB · Aufrufe: 142
Ahh, ok, na das ist natürlich eine super Sache!
Dann könnte das Aupair evtl. doch die Zimmertür nach planoben bekommen und sich ohne blaue Flecken aus ihrem Zimmer wagen. Die "Zwischentür" ist ja dann keine Haustür mehr und könnte auch aus Glas sein und/oder doch nach außen öffnen?
Aber jetzt gehts erstmal weiter um die Küche...
 
Ahh, ok, na das ist natürlich eine super Sache!
Dann könnte das Aupair evtl. doch die Zimmertür nach planoben bekommen und sich ohne blaue Flecken aus ihrem Zimmer wagen. Die "Zwischentür" ist ja dann keine Haustür mehr und könnte auch aus Glas sein und/oder doch nach außen öffnen?
Aber jetzt gehts erstmal weiter um die Küche...
Stimmt, ich habe auch überlegt ob man die Tür komplett weg lässt, ist aber ein gemütlichkeitsfaktor für die Wohndiele, daher bleibt die. Glas spricht somit auch dagegen. Drehrichtung nach aussen ist denkbar aber nicht ideal bei Betreten des Hauses. Mal sehen... Küche! :-)
 
Nachwievor interessant, aber Hängeschränke, volle Ecke, und Herd an der Wand sind nicht die Vorstellungen meiner Frau.
Hängeschränke lässt du einfach weg. Hochschrank direkt am Fenster auch, dafür zum Beispiel Regalbretter in die Nische und was hübsches drauf, Müsligläser, unsichtbarer Platz für Küchenmaschine etc.
Kochfeld und allgemein: wir geben hier Anregungen, entscheiden tut ihr :so-what:
 

Ähnliche Beiträge

Neff Hausgeräte Ballerina Küchen Blum Bewegungstechnologie Weibel - Intelligente Küchenlüftung

Neff Spezial

Blum Zonenplaner

Weibel Abluft-Tuning

Weibel Abluft-Tuning
Zurück
Oben