Fertig ohne Bilder 2 Zeilen; der Versuch einer Annäherung

Fantast

Premium
Beiträge
209
Jaja, etwas kryptischer Titel. Ich mache hier schon mal den Eröffnungspost, die Pläne müssen aber noch darauf warten, dass ich hier den thread wiederfinde, in dem erklärt wird, wie ich Screenshots machen und diese dann hier als Anhang hochladen kann. Die Pläne zeigen dann, dass wir wohl eine lange und eine kurze Zeile haben werden, deshalb 2 Zeilen.

"Annäherung", weil wir mit unserer Küchenplanung noch ziemlich am Anfang sind. Bis jetzt waren wir in mehreren Küchenstudios, aber fast ausschließlich zum Gucken. Eine ernsthafte Beratung haben wir bis jetzt nur in einem in Anspruch genommen. Dort fühlten wir uns aber sehr gut aufgehoben und der freundliche KFB hat uns dankenswerter Weise auch Pläne zur Verfügung gestellt. Wenn wir uns für eine Marke entscheiden, die er vertritt, kaufen wir sicherlich bei ihm, da wir voraussichtlich auch geldlich mit ihm klarkommen werden. Ich möchet mir aber noch ein, zwei andere Möglichkeiten mit anderen Marken darstellen lassen.

Marke, Modell, Farbe, mit Griffen oder ohne - wissen wir alles noch nicht; mit Verlaub sehe ich das aber auch weitgehend als Kosmetik, im Moment interessiert mich erstmal die praktische Seite, also welche Geräte wohin usw.

Immerhin sehe ich unsere Planung aber schon als so konkret an, dass mir Kritik und Anregungen äußerst willkommen wären.

Kurz zur Situation: wir kaufen eine Wohnung in einem Neubau, Baubeginn demnächst, Fertigstellung in ca. 12 Monaten. Der Kauf hat also noch Zeit, aber die Planung möchte ich jetzt machen, weil ich jetzt in gewissen Grenzen den Grundriss noch verändern kann. Es wird übrigens ein Passivhaus, also Umluft-DAH.

Keine Heizkörper, auch keine Fußbodenheizung (auch wenn die Maske mir das hier so vorgibt), sondern kontrollierte Wohnraumlüftung.

Das Fenster hat in Wirklichkeit eine BRH von 0 und ist fast raumhoch, sieht also aus wie eine Tür nach draußen, diese Angabe nimmt die Maske hier aber auch nicht an.

Beim Budget bin ich im Moment noch vorsichtig. Wenn mich ein Verkäufer fragt, was wollen Sie denn ausgeben, ist meine Standardantwort "höchstens 5 Euro". Mehr ausgeben will ich wirklich nicht. Natürlich ist auch mir klar, dass ich für 5 Euro keine Küche bekomme. Die richtige Herangehensweise ist für mich aber, dass wir erst mal definieren, was wir haben wollen. Dann kann man schauen, was es kostet und was ggf. gestrichen werden muss, damit wir's bezahlen können.

Pläne wie gesagt demnächst.

Markus

Checkliste zur Küchenplanung von Fantast

Anzahl Personen im Haushalt : 3
Davon Kinder? : 1
Körpergrössen aller Hauptbenutzer (wegen Arbeitshöhe ) in cm : 177, 178
Art des Gebäudes? : Neu-/Umbau, Planänderungen möglich
Brüstungshöhe des Fensters (in cm) : 1
Fensterhöhe (in cm) : ca 220
Raumhöhe in cm: : ca. 245 (Decke abgehängt von ca. 265 cm)
Heizung : Fussbodenheizung
Sanitäranschlüsse : vollkommen variabel
Ausführung Kühlgerät? : Integriert im Hochschrank
Kühlgerät Größe : noch unbekannt
Ausführung Tiefkühl (TK)-Gerät : Im Kühlschrank bis 2 Schubladen unten
Dunstabzugshaube? : Umluft
Hochgebauter Backofen ? : Ja
Hochgebauter Geschirrspüler ? : nein
Kochfeldart? : Induktion
Kochfeldbreite ca. (in cm)? : noch unklar; wohl 80-90 cm
Spülenform: : Noch nicht festgelegt
Weitere geplante Heißgeräte : Dampfgarer ohne Wasseranschluß
Küchenstil? : modern
Sitzmöglichkeit in der Küche / im Küchenbereich als : Gesonderter Tisch
Sitzmöglichkeit: Für wieviel Personen? : für 2 Personen
Sitzmöglichkeit: Tisch - wenn gesonderter Tisch oder offene Küche : Wird nach Bedarf neu gekauft
Gewünschte o. vorhandene Tischgröße : offen
Wofür soll der Sitzplatz in der Küche genutzt werden? Wie häufig? : Schnibbeln, Kommunikation, Hausaufgaben
Welche Arbeitshöhe ist angedacht (in cm)? : 100
Was steht auf der Arbeitsplatte oder soll dort stehen? : Wasserkocher, Messerblock
Welche weiteren Küchenmaschinen müssen in der Küche untergebracht werden? : Toaster, Handrührgerät, Mixer, Pürierstab, Eierkocher
Was soll in der Küche außer den Standards untergebracht werden? : Getränkekisten
Welchen Stauraum gibt es sonst noch? : Geschirr/Gläserschrank im Wohn-/Esszimmer
Was/wie wird gekocht? (Alltagsküche, Menüs, Snacks usw) : Alltagsküche
Wie häufig wird gekocht? : (fast) täglich 1x warm
Wird alleine gekocht? Oder auch gemeinsam? Mit und für Gäste? : Bis jetzt meist alleine, weil die bisherige Küche kaum anderes zulässt.
Was stört an der bisherigen Küche und was soll die neue Küche unbedingt können? Warum? : Die aktuelle Küche (die wir vom Voreiegntümer übernommen haben) ist saublöd, man steht sich ständig im Weg. Deshalb wollen wir die neue Küche so planen, dass wir vielleicht endlich mal gelegentlich parallel arbeiten können.
Preisvorstellung (Budget) : bis 5 Euro
 

Anhänge

  • Planung 1 kurze Zeile.jpg
    Planung 1 kurze Zeile.jpg
    50,9 KB · Aufrufe: 474
  • Planung 1 lange Zeile.jpg
    Planung 1 lange Zeile.jpg
    68,5 KB · Aufrufe: 431
  • Grundriss Küche 1.JPG
    Grundriss Küche 1.JPG
    32,9 KB · Aufrufe: 418
  • Grundriss EG 1.jpg
    Grundriss EG 1.jpg
    67 KB · Aufrufe: 458
Zuletzt bearbeitet:
AW: 2 Zeilen; der Versuch einer Annäherung

Ja! Vielen Dank.

Morgen geht's weiter, jetzt muss ich erst mal ins Bett.
 
AW: 2 Zeilen; der Versuch einer Annäherung

Immer diese kontraproduktiven Privatangelegemheiten ;-).
 
AW: 2 Zeilen; der Versuch einer Annäherung

Hängst du die Pläne bitte im ersten Beitrag mit an und postest dann, dass sie anhängen, damit der Thread wieder bei den aktuellen Threads ist? :rose:
 
AW: 2 Zeilen; der Versuch einer Annäherung

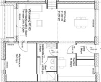
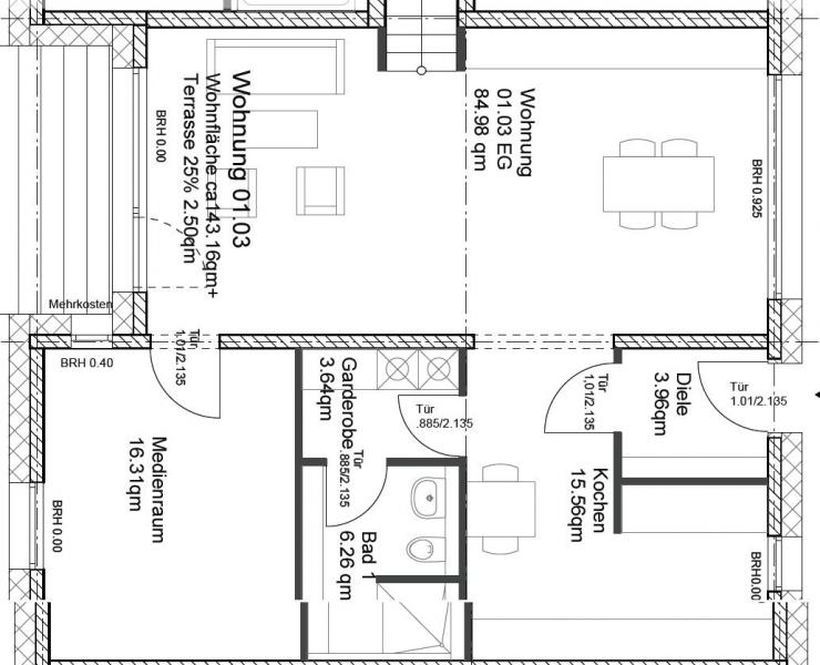
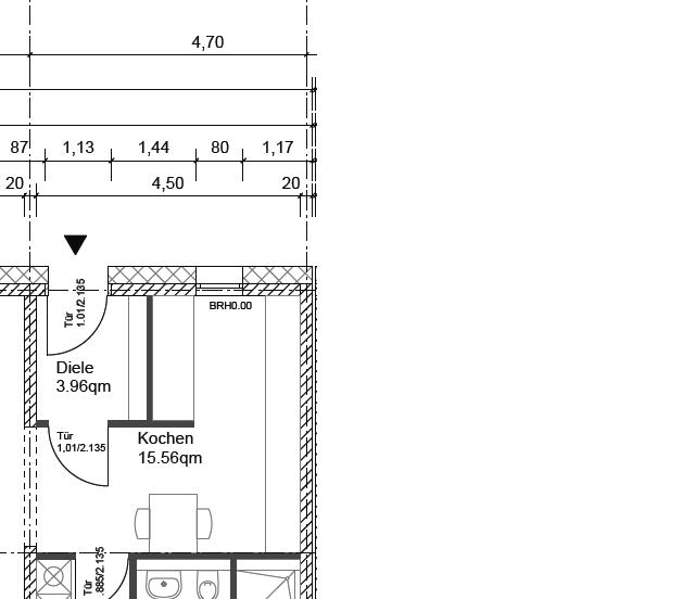
So, jetzt auch Bildchen für zum Gucken. Was man in den Grundrissen nicht sehen kann: die kurze Zeile steht vor einer 1,95 m langen Wand. Wir stellen uns eine 1,80 m lange Zeile (3 x 60) vor und eine kleines Regal für Schlüssel, Handys und dergleichen. Die lange Zeile ist im Plan mit 4,56 m Länge eingezeichnet. Dies hat sich geändert, tatsächlich ist die Wand nur 4,26 m lang. Deshalb habe ich in einem anderen Thread die Einteilung 30/120/60/60/120/30 benannt.

Wir stellen uns vor, die Spüle in dem 120er zum Fenster anzuordnen, den Herd im anderen 120er. Wenn wir mal Gäste haben, soll das schmutzige Geschirr quasi in der Nische verschwinden und nicht vom Essplatz aus sichtbar sein.

Eins meiner Probleme: wo bringe ich den Müll unter?
 
AW: 2 Zeilen; der Versuch einer Annäherung

hmmm.... ich habe mir gerade versucht die Maße der eigentlichen Küchenecke zu überschlagen.

Ich glaube nämlich: wenn man den Tisch unten rechts als Eckbank in die Ecke stellt, hat man ziemlich genau meinen Küchenraum: grobmaß: 270x270

Ich habe letztes Jahr die eine Wand rausnehmen lassen (mehr Luft, mehr Licht im Eßbereich) und eine Küche gekauft. Vielleicht magst Du da einen Blick drauf werfen bezüglich welcher Geräte wo usw.

Ich habe ein etwas ausgefallenes U gewählt, hatte aber auch einen Schreiner, der die Küche gebaut hat (da gehen solche Spielereien). Aber von der grundlegenden Geräteverteilung her ist das schon mal nicht ganz falsch und bedient sich angenehm.

https://www.kuechen-forum.de/forum/galerie/alben/nekos-neue-kueche.291/

Nachtrag zu Deiner Frage bezügl. Müll: ich würde den GSP sehr in der Nähe der Spüle plazieren und den Müll in einer Schublade daneben, so daß man alle 3 Devices (Müll, GSP, Spüle) gleichzeitig verwenden/öffnen kann. Ich hatte das vorher, daß der Müll bei offener GSP nicht richtig auf ging - nie wieder! Auch ein Müll wie bei mir (und einigen anderen hier im Forum) in der ungewohnten Position im oberen Auszug (und unter der Spüle dann andere Dinge lagern) hat sich bewährt und macht Freude.

NachtragII: nachdem ich gerade Deine genaueren Maße habe: ich würde die Hochschrankkombination (KS/Backofen &Co) tatsächlich in der kleinen abgeschlossenen Nische unterbringen und den Rest auf der langen Fläche verteilen - zumindest mal versuchen. Im Prinzip genauso, wie Du das da oben vorgeschlagen hast....

Hmmm... leider geht dabei die ganze schöne Arbeitsfläche irgendwie flöten... Vielleicht hat jemand von den anderen hier eine tolle Idee?

neko
 
AW: 2 Zeilen; der Versuch einer Annäherung

Ich kann mir wirklich nicht helfen, hinzuzufügen, daß ich es genau so wie Du siehst, was Verkaufstaktik von :kfb:anbelangt. Warum müssen Sie erst nach dem Geld oder Budget der Käufer fragen, bevor sie überhaupt etwas zur Überlegung präsentieren? Klar, ihre Arbeitszeit kostet Geld. Aber mal ehrlich, ich kaufe meine Küche auch ähnlich wie Du ein - erstmals planen, was gebraucht wird/werden kann und evtl. hier und da Kompromisse machen, um im Budget zu bleiben. Aber anstatt einer Hilfe zu sein, arbeiten viele :kfb:anders und laufen gleich weg, nachdem sie nicht einen bestimmten Midestbetrag in dem Geschäft sehen. Bitte fühle sich kein :kfb:Mitglied hier beleidigt. Aber, ein Paar :kfb:, auch einer, der mir wärmsten empfohlen wurde, haben schon ein Geschäft mit uns verloren - und nur durch die Geldfrage, die zu ungünstigem Zeitpunkt gestellt wurde, nämlich als allererste, ohne überhaupt von uns zu hören, was wir in der neuen Küche wünschen. Und unsere Küche wird ja auch nicht gerade 5 Eurocent kosten. Ich schreibe hier den Beitrag als Hilfe für einige :kfb:, die ja auch zur taktischen Geschickheit und Erfahrung trainiert werden sollen, um in ihrem Job erfolgreich zu sein. Schlißlich gehört ja der Verkaufsanteil zum großen Teil Ihres Jobs. Das ist hier nur die Sicht einer Verbraucherin, die genug Geschäfte mit genug Verkäufern wegen solcher ungeschickten Verkaufstrategie aufgegeben hat. Mag sein, daß andere es anders sehen. Mir geht es zumindest so.

Viel Erfolg bei Deinem Küchenkauf!
VG,
Hobby-Chef
 
AW: 2 Zeilen; der Versuch einer Annäherung

Hallo,
beim Betrachten des Grundrisses fiel mir spontan diese Küche hier ein:

Halboffene Küche mit Speisekammer - Fertiggestellte Küchen - SieMatic SC21

Grundsätzlich finde die Lösung als 1-Zeiler mit reichlich 4m Gesamtlänge sehr gut. Das sind noch einigermaßen kurze Wege, es ist kompakt und bietet trotzdem genug Arbeitsfläche, ohne daß Spüle oder Kochfeld zu nah an die Seite müßten.
Und es ist klar gegliedert.

Grüße,
Jens
 
AW: 2 Zeilen; der Versuch einer Annäherung

also ich bin ja beruflich kein KFB, sondern Schreiner der in Sachen Küche berät.
Allerdings steht bei mir die Budgetfrage auch recht weit Vorne, 1.) da ich wissen sollte, ob mein Kunde sich eine Schreinerküche überhaupt leisten will, und 2.) weil viele Beratungsaspekte vom Preis abhängen.

Überall wird sich darüber beschwert, dass die Küchenbranche so undurchsichtig, und die Preis-gestaltung so wenig nachvollziehbar ist, aber manchmal werde ich hier im Forum das Gefühl nicht los, dass manche Kunden mit ihrer Budgetgeheimhalterei ein ordentlich Teil dazu beitragen.

Vllt. sollte man mal drüber nachdenken, dass ein KüchenfachBERATER eigentlich jemand ist, der für seine Dienstleistung (planen, beraten, kalkulieren) bezahlt werden müsste.
Das was die Kunden so im Studio treffen ist kein Küchenfachberater, sondern ein Küchenfachverkäufer, und der sollte natürlich wissen um was es letztlich geht.

Ich denke, die besten Geschäfte für beide Seiten werden gemacht, wenn alle Fakten aufm Tisch liegen.
Der Juwelier um die Ecke fragt auch was ich ausgeben will, :w00t: bevor er eine Fachberatung fürs Weihnachtsgeschenk startet.

*winke*
Samy
 
AW: 2 Zeilen; der Versuch einer Annäherung

mozart, danke für den link. Die Küche sieht unserer tatsächlich nicht unähnlich. Gucke ich mir noch mal im Detail an.

Samy, das sehe ich - jedenfalls im Küchenstudio - ein bisschen anders. Der Preis wird doch, wenn ich das richtig verstehe, ganz wesentlich von Geräten und Fronten bestimmt. Die Beratungsleistung, die ich suche, besteht für mich zunächst vor allem darin, dass man mir sagt, wo BO, DGC, Spüle, GSP, Kochfeld etc. sinnvoll angeordnet werden und wie die Küche bzw. das Arbeiten in ihr organisiert werden kann. Ob ich dann billige oder teure Geräte nehme, ob ich eine Holz-, Lack- oder eine Folienfront nehme, hat aus meiner Sicht mit der Frage, wo ein BO sinnvoll angeordnet wird, recht wenig zu tun.

Ich wäre übrigens ohne weiteres bereit, für Planung und Beratung einen Preis zu zahlen, weil ich dann mit dem fertigen Plan zu verschiedenen Studios gehen könnte und auf diese Weise echte Transparenz in den Vergleich zwischen verschiedenen Angeboten bringen könnte.

A propos Anordnung - wäre es sinnvoll, den GSP in der langen Zeile ganz links, am Fenster, anzuordnen, und den Müll dann rechts von der Spüle? Sollte der Müll eher zur Spüle oder zum Kochfeld?

Wenn GSP ganz links, dann müsste die Aufteilung in 60/120/60/120/60 geändert werden. Dann ist zwischen Spüle und Kochfeld relativ wenig Arbeitsfläche. Zwischen den beiden relativ viel Platz zu haben, ist ein Aspekt, der mir an der bisherigen Planung gut gefällt, weil dann zwei Leute nebeneinander arbeiten können. Aber wenn dann da irgendwo der Müll ist, muss entweder der eine ständig von der Arbeitsfläche weg oder es kann doch wieder nur einer arbeiten.

neko, warum geht bei der bisherigen Planung die Arbeitsfläche flöten? Ich sehe da relativ viel.

Ein weiterer der mich störenden Aspekte an der bisherigen Planung sind die 30er Schränke an den Enden. Was bringt man denn in einem 30er US unter?

Außerdem würde es mir von der Ästhetik gefallen, wenn sich die Aufteilung der US bei den OS wiederfindet. 30er unten bedeuten dann auch 30er oben. Was bringt man in einem 30er OS unter?
 
AW: 2 Zeilen; der Versuch einer Annäherung

ok-ok... kein Glaubenskrieg wegen Budgetangabe.
Ich wollte nur klarstellen, dass das auch von KFB-Seite aus ein Grund zum Abbruch des Verkaufsgesprächs sein kann.
Samy
 
AW: 2 Zeilen; der Versuch einer Annäherung

Glaubenskrieger bin ich da auch nicht. Dass ich mir das Studio einigermaßen passend zum Budget aussuche und mich bei (als Beispiel) Bulthaup nicht mit einem Budget von 2.000 Euro beraten lassen will, so viel Intelligenz dürfte mir der KFB trotzdem mal zutrauen.

Fand ich bei dem KFB, bei dem wir uns haben beraten lassen, sehr angenehm: er hat erst mal geplant und dann grob überschlagen, wo wir preislich landen würden, wenn wir uns bei Geräten und Fronten jeweils für eine einfachere oder eine aufwendigere Lösung entscheiden würden. So hatten wir zwei Hausnummern und können jetzt überlegen, in welche Richtung wir gehen wollen.
 
AW: 2 Zeilen; der Versuch einer Annäherung

neko, warum geht bei der bisherigen Planung die Arbeitsfläche flöten? Ich sehe da relativ viel.

Vorher schon. Wenn man auf diesen wundervollen 4 Metern Spülbecken und
Kochfläche mit angemessenen Flächen rechts und links verteilt bleibt
irgendwie ... grob geschätzt vielleicht 1.2/1.5 m übrig (grob
überschlagen). Das reicht für einen, aber zwei rücken sich da dann schon
ziemlich auf die Pelle.


Und wenn dann da noch was steht, Toaster, Wasserkocher, Küchenmaschine,
Mixer und was man so alles an Kleingeräten auch nur temporär beim kochen
und backen braucht, wird es schon langsam gedrängt. Da wirds für das
große Schneidebrett plötzlich eng.

Es gibt genug Küchen, in denen man auch so leben kann. Natürlich. Aber
ich bin ein Fan von viel freier Arbeitsfläche ;-) - Ja, die muß man dann
auch hin und wieder putzen. Aber wenn sie frei ist, geht das schnell.

Was die 30-er Schränke angeht: sowas will man meist auch nicht. Backbleche, Schneidbretter, manchmal Müll (braucht aber eher 40+), Flaschen (Essig/Öl), Putzmittel, geringe Mengen Lebensmittel, die in der Küche bevorratet werden (Kartoffeln, Zwiebeln, Brot, Kekse...), Putzlappen, Geschirrtücher, Küchenschürze...

Aber das geht meist alles auch wunderbar in breitere Schränke. Also ein schmaler Lückenfüller ist manchmal nicht schlecht aber wirklich effizient sind die Dinger nicht: teuer und innen schmal. Knapp 2cm Seitenwände auf jeder Seite und dann eventuelle Mechaniken für Auszüge, macht schnell mal 8cm weniger und statt 30cm sind es dann plötzlich nur noch 25-22cm nutzbare Fläche. Wenn man das häufiger macht, hat man am Ende fast mehr Holz in seiner Küche als Platz ;-)

neko
 
AW: 2 Zeilen; der Versuch einer Annäherung

Ich habe mal neu aufgeteilt. Die grundsätzliche Verteilung ist eigentlich ok.

GSP jetzt mit in die Hochschrankzeile, dadrüber den DG. Backofen kommt damit auch in eine angenehme Höhe.

Die Zeile
60-90-60-60-90-60 und zwar in Übertiefe. Dadurch werden auch die 60er zu gutem Stauraum.

Ganz links, Aufbewahrung
Der Spülenschrank als 90er, damit man statt 1 Becken und Abtropfe einfach 2 große Becken wählen kann. Abtropfen können Sachen auch in einem Becken, sie sind damit aber gleich etwas aus der Ansicht von Ess-/Wohnzimmer entfernt.
Im oberen Auszug dann noch Platz für eine kleine Putzreling, der untere Auszug ist Stauraum:
full
full


Müll direkt unter der APL ... der zweite Auszug unten ist Stauraum:
full
 

Anhänge

  • kf_fantast_20111209_kb_var1.POS
    7,6 KB · Aufrufe: 225
  • kf_fantast_20111209_kb_var1_Ansicht1.jpg
    kf_fantast_20111209_kb_var1_Ansicht1.jpg
    92,3 KB · Aufrufe: 281
  • kf_fantast_20111209_kb_var1_Ansicht2.jpg
    kf_fantast_20111209_kb_var1_Ansicht2.jpg
    88,9 KB · Aufrufe: 268
  • kf_fantast_20111209_kb_var1_Ansicht3.jpg
    kf_fantast_20111209_kb_var1_Ansicht3.jpg
    116,5 KB · Aufrufe: 269
  • kf_fantast_20111209_kb_var1_Grundriss.jpg
    kf_fantast_20111209_kb_var1_Grundriss.jpg
    75,6 KB · Aufrufe: 603
  • kf_fantast_20111209_kb_var1.KPL
    4,1 KB · Aufrufe: 231
AW: 2 Zeilen; der Versuch einer Annäherung

Das sieht super aus, Kerstin, vielen Dank für Deine Mühe. Muss ich mal intensiv drüber nachdenken.
 
AW: 2 Zeilen; der Versuch einer Annäherung

Der Kuecheentwurf von Kerstin gefaellt mir sehr gut. Ich ermutige Euch dazu, ihn zu nehmen (Entscheidung liegt letztendlich bei Euch, ist klar). Der Entwurf ist meiner Kueche aehnlich, 2 Zeilen (lt. Alno Program, wohl die beste Form, wenn man nach der Raumgegebenheit sie nehmen kann) mit einer Fenstertuer oder einem hohen Fenster als Abstandshalter zwischen den Zeilen. Viel Licht komm rein, guter Arbeitsfluss.

Viel Spass in der neuen Kueche, wie die auch immer aussehen wird!
Hobby-Chef
 
AW: 2 Zeilen; der Versuch einer Annäherung

Kerstin, gibt's noch einen anderen Namen für die Putzreling? Wenn ich den Begriff bei Google eingebe, bekomme ich nur Links hier zum Forum. Wie heißt das denn bei den Herstellern?
 
AW: 2 Zeilen; der Versuch einer Annäherung

Meinst Du mit 'Putzreling' ein Wandabschlussprofil?
 

Ähnliche Beiträge

Neff Hausgeräte Ballerina Küchen Blum Bewegungstechnologie Weibel - Intelligente Küchenlüftung

Neff Spezial

Blum Zonenplaner

Weibel Abluft-Tuning

Weibel Abluft-Tuning
Zurück
Oben