AGMUC
Mitglied
- Beiträge
- 12
Wohnraum mit Küche?
Sehr geehrte Forummitglieder
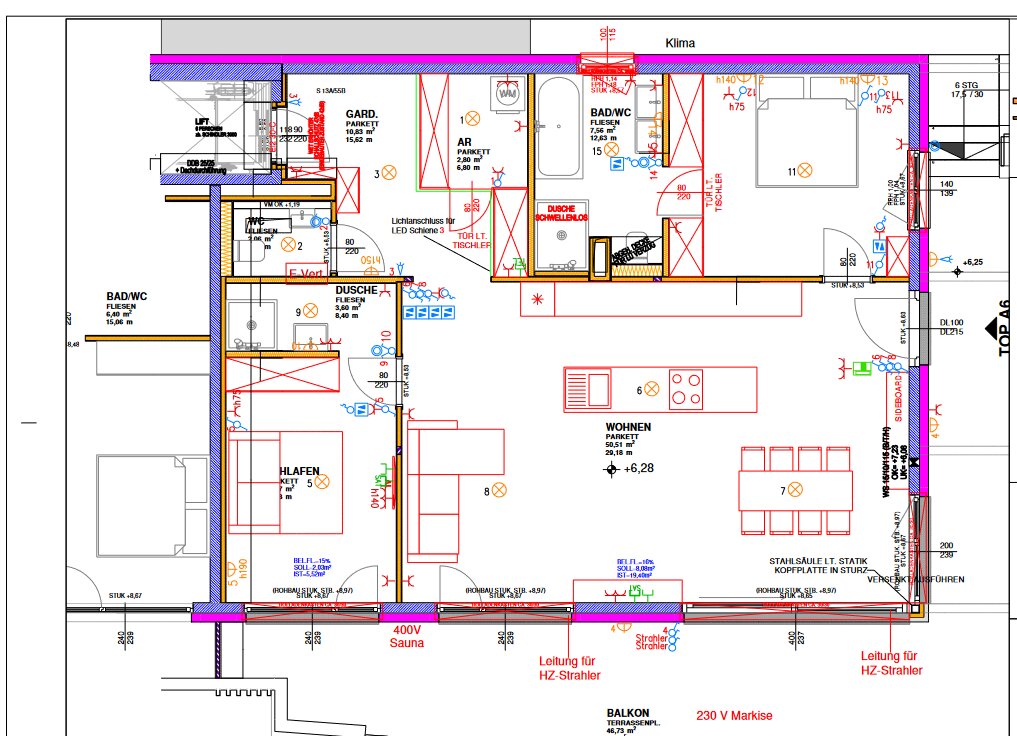
Meine Frau will mit mir einen Traum realisieren. Momentan wird dieser in Form einer Penthauswohnung realisiert. Wir haben mit dem Bauherrn aufgrund des phantastischen Panoramaausblicks auf den See und die Berge einen offenen Wohnraum (ohne Fernseher!) geplant. Der Wohnraum ist etwa 50 m² groß aber länglich zur von Südost bis Südwestterrasse ausgerichteten Terrasse ausgerichtet. Die Deckenhöhe ist aufgrund des Dachs zwischen 4,60 und 3,41 im Bereich der geplanten Küchenzeile.
Im Wohnraum ist eine Küchenzeile mit Insel, der Esstisch mit 8 Sitzgelegenheiten und ein Sofa vorgesehen.
Dies sind unsere bestellten Hardwarekomponenten:
Wir sind mir der Planung zusammen mit Studio für Innenarchitektur - Handwerk für gelebte Räume fast durch aber nun drängt die Zeit da die Betondecke erstellt wird. Vielleicht kennt der eine oder andere das Gefühl aber je nächer der Zeitpunkt der Realisierung kommt desto unsicherer fühlen wir uns. Die "räumliche" Nähe des Sofas zur gefühlten Riesenküche macht uns plötzlich unsicher.
Tipps und Ratschläge sind jederzeit erwünscht.
Dankeschön
Checkliste zur Kuechenplanung
Personenkriterien und Ergonomie
Anzahl Personen im Haushalt: 2
Davon Kinder: keine
Körpergrößen aller Hauptbenutzer in cm (wegen Arbeitshoehe): 162, 180
Welche Arbeitshöhe ist angedacht (in cm)?: 92
Gebäudekriterien
Art des Gebäudes: Neu-/Umbau > Planänderungen möglich, Eigentum
Bruestungshöhe des Fensters (in cm): N. a.
Fensterhöhe (in cm): N. a.
Raumhöhe in cm: 341 im Bereich der geplanten Küchenzeile; Raumhöhe max 460
Heizung: Fußbodenheizung
Sanitäranschlüsse: variabel an aktueller Wand
Einbaugerätekriterien
Ausführung Kühlgerät: Integriert im Hochschrank (60cm)
Einbaukühlgerät Größe: 178cm
Ausführung Tiefkühl (TK)-Gerät: Im Kühlschrank ab 3 Schubladen unten
Dunstabzugshaube: keine
Hochgebauter Backofen : ja
Geplante Heißgeräte: Dampfgarer ohne Wasseranschluß, Backofen
Hochgebauter Geschirrspüler : nein
Art des Kochfeldes: Induktionskochfeld
Kochfeldbreite (ca. in cm): 80
Sitzmöglichkeiten
Sitzmöglichkeit in der Küche / im Küchenbereich: Keine
Sitzmöglichkeit: Für wieviel Personen?: nein
Sitzmöglichkeit: Tisch - wenn gesonderter Tisch oder offene Küche: Vorhandener Tisch
Gewünschte oder vorhandene Tischgröße: 1 x 2 m Thonet S 1072 eiche
Wofür soll der Sitzplatz in der Küche genutzt werden und wie häufig: N. a.
Stauraum-Planung
Was steht auf der Arbeitsplatte oder soll dort stehen?: Kaffeemaschine, Wasserkocher
Welche weiteren Küchenmaschinen müssen in der Küche untergebracht werden: Küchenmaschine, Allesschneider (z.B. in Schublade), Handrührgerät, Pürierstab, Sonstiges (evtl. im Beitragstext benennen)
Was soll in der Küche außer den Standards untergebracht werden: ALLE Vorräte, Geschirr komplett (nichts in Ess-/Wohnzimmer)
Welchen Stauraum gibt es sonst noch: Hauswirtschaftsraum, Keller
Kochgewohnheiten
Was/wie wird gekocht? (Alltagsküche, Menüs, Snacks usw): Alltagsüche
Wie häufig wird gekocht: (fast) täglich 1x warm
Wird alleine gekocht? Oder auch gemeinsam? Mit und für Gäste?: Tägliche Nutzung je nach Saison, wir geben gerne Einladungen für Gäste
Spülen und Müll
Spülenform: 1 Becken ohne Abtropffläche
Welche Mülltrennung soll in der Küche vorgehalten werden: Biomüll, Restmüll
Sonstiges
Steht schon ein Küchenhersteller fest oder wird bevorzugt: Wir haben mit Häcker gestartet sind aber jetzt in der Finalsisierung mit : Studio für Innenarchitektur - Handwerk für gelebte Räume
Steht schon ein Gerätehersteller fest oder wird bevorzugt: Elektogeräte sind schon alle bestellt. Liebherr Kühlgefrierkombination und Weinschrank; Wärmeschublade, Kochfeld, Herd, Dampfgarer alles Miele
Küchenstil: Grifflose Küche
Was stört an der bisherigen Küche und was soll die neue Küche unbedingt können? Warum?: Wir habe seit 10 Jahren in unserer momentanen Wohnung eine weiße Hochglanzküche (Glasoberflächen) und sind damit bis heute sehr zufrieden. Jetzt wollen wir aber nicht nur eine geographische sondern auch optische Veränderung.
Preisvorstellung (Budget): für die Elektorgeräte haben wir zur Zeit ca. 20000 Euro investiert.
Angehängte Dateien
Sehr geehrte Forummitglieder
Meine Frau will mit mir einen Traum realisieren. Momentan wird dieser in Form einer Penthauswohnung realisiert. Wir haben mit dem Bauherrn aufgrund des phantastischen Panoramaausblicks auf den See und die Berge einen offenen Wohnraum (ohne Fernseher!) geplant. Der Wohnraum ist etwa 50 m² groß aber länglich zur von Südost bis Südwestterrasse ausgerichteten Terrasse ausgerichtet. Die Deckenhöhe ist aufgrund des Dachs zwischen 4,60 und 3,41 im Bereich der geplanten Küchenzeile.
Im Wohnraum ist eine Küchenzeile mit Insel, der Esstisch mit 8 Sitzgelegenheiten und ein Sofa vorgesehen.
Dies sind unsere bestellten Hardwarekomponenten:
| Link zum Gerät | |||
1 | Weinschrank Liebherr | EWTgb 3583 | EWTgb 3583 Vinidor Einbaubarer Weintemperierschrank | Liebherr |
2 | Kühl/Gefrierkombi Liebherr | ICBNd5163 | ICBNd 5163 Prime BioFresh NoFrost Integrierbare Kühl-Gefrierkombination mit BioFresh und NoFrost | Liebherr |
3 | Kompakt Backofen Miele | H7440 BPX | Miele H 7440 BPX Griffloser Kompakt-Backofen |
4 | Dampfgarer Miele | DG7440 | Miele - DG 7440 Obsidianschwarz – Dampfgarer |
5 | Spühlmaschine Miele | G7695 SCVi | Miele - G 7695 SCVi XXL AutoDos K2O Obsidianschwarz – Geschirrspüler |
6 | Wärmeschublade Miele | ESW 7030 | Miele - ESW 7030 Obsidianschwarz – Schubladen |
7 | Miele Kochfeld mit Abzug | KMDA 7634 FL | Miele - KMDA 7634 FL Schwarz – Kochfelder |
8 | Miele Umbausatz Umluft | DUU1000-2 | Miele - DUU 1000-2 – Küchenzubehör |
9 | 2 x Flachkanalbogen | DFK-BV 90 | Miele - DFK-BV 90 – Küchenzubehör |
10 | 3 x Flachkanal | DFK-R 1000 | Miele - DFK-R 1000 – Küchenzubehör |
11 | Verbindungsstück | DFK-V | Miele - DFK-V – Küchenzubehör |
12 | Flachkanalbogen | DFK-BH 90 | Miele - DFK-BH 90 – Küchenzubehör |
Wir sind mir der Planung zusammen mit Studio für Innenarchitektur - Handwerk für gelebte Räume fast durch aber nun drängt die Zeit da die Betondecke erstellt wird. Vielleicht kennt der eine oder andere das Gefühl aber je nächer der Zeitpunkt der Realisierung kommt desto unsicherer fühlen wir uns. Die "räumliche" Nähe des Sofas zur gefühlten Riesenküche macht uns plötzlich unsicher.
Tipps und Ratschläge sind jederzeit erwünscht.
Dankeschön
Checkliste zur Kuechenplanung
Personenkriterien und Ergonomie
Anzahl Personen im Haushalt: 2
Davon Kinder: keine
Körpergrößen aller Hauptbenutzer in cm (wegen Arbeitshoehe): 162, 180
Welche Arbeitshöhe ist angedacht (in cm)?: 92
Gebäudekriterien
Art des Gebäudes: Neu-/Umbau > Planänderungen möglich, Eigentum
Bruestungshöhe des Fensters (in cm): N. a.
Fensterhöhe (in cm): N. a.
Raumhöhe in cm: 341 im Bereich der geplanten Küchenzeile; Raumhöhe max 460
Heizung: Fußbodenheizung
Sanitäranschlüsse: variabel an aktueller Wand
Einbaugerätekriterien
Ausführung Kühlgerät: Integriert im Hochschrank (60cm)
Einbaukühlgerät Größe: 178cm
Ausführung Tiefkühl (TK)-Gerät: Im Kühlschrank ab 3 Schubladen unten
Dunstabzugshaube: keine
Hochgebauter Backofen : ja
Geplante Heißgeräte: Dampfgarer ohne Wasseranschluß, Backofen
Hochgebauter Geschirrspüler : nein
Art des Kochfeldes: Induktionskochfeld
Kochfeldbreite (ca. in cm): 80
Sitzmöglichkeiten
Sitzmöglichkeit in der Küche / im Küchenbereich: Keine
Sitzmöglichkeit: Für wieviel Personen?: nein
Sitzmöglichkeit: Tisch - wenn gesonderter Tisch oder offene Küche: Vorhandener Tisch
Gewünschte oder vorhandene Tischgröße: 1 x 2 m Thonet S 1072 eiche
Wofür soll der Sitzplatz in der Küche genutzt werden und wie häufig: N. a.
Stauraum-Planung
Was steht auf der Arbeitsplatte oder soll dort stehen?: Kaffeemaschine, Wasserkocher
Welche weiteren Küchenmaschinen müssen in der Küche untergebracht werden: Küchenmaschine, Allesschneider (z.B. in Schublade), Handrührgerät, Pürierstab, Sonstiges (evtl. im Beitragstext benennen)
Was soll in der Küche außer den Standards untergebracht werden: ALLE Vorräte, Geschirr komplett (nichts in Ess-/Wohnzimmer)
Welchen Stauraum gibt es sonst noch: Hauswirtschaftsraum, Keller
Kochgewohnheiten
Was/wie wird gekocht? (Alltagsküche, Menüs, Snacks usw): Alltagsüche
Wie häufig wird gekocht: (fast) täglich 1x warm
Wird alleine gekocht? Oder auch gemeinsam? Mit und für Gäste?: Tägliche Nutzung je nach Saison, wir geben gerne Einladungen für Gäste
Spülen und Müll
Spülenform: 1 Becken ohne Abtropffläche
Welche Mülltrennung soll in der Küche vorgehalten werden: Biomüll, Restmüll
Sonstiges
Steht schon ein Küchenhersteller fest oder wird bevorzugt: Wir haben mit Häcker gestartet sind aber jetzt in der Finalsisierung mit : Studio für Innenarchitektur - Handwerk für gelebte Räume
Steht schon ein Gerätehersteller fest oder wird bevorzugt: Elektogeräte sind schon alle bestellt. Liebherr Kühlgefrierkombination und Weinschrank; Wärmeschublade, Kochfeld, Herd, Dampfgarer alles Miele
Küchenstil: Grifflose Küche
Was stört an der bisherigen Küche und was soll die neue Küche unbedingt können? Warum?: Wir habe seit 10 Jahren in unserer momentanen Wohnung eine weiße Hochglanzküche (Glasoberflächen) und sind damit bis heute sehr zufrieden. Jetzt wollen wir aber nicht nur eine geographische sondern auch optische Veränderung.
Preisvorstellung (Budget): für die Elektorgeräte haben wir zur Zeit ca. 20000 Euro investiert.
Angehängte Dateien
Anhänge
-
Küche BV Millstatt.pdf3,5 MB · Aufrufe: 152
-
Tangerner A6 Grundriss-1 Installationsplan Küche 2023.04.13. (1).pdf408,7 KB · Aufrufe: 129
-
Tangerner A6 Perspektive-1 Küche 2023.03.09..pdf759,7 KB · Aufrufe: 125
-
Tangerner A6 Ansicht-1 Insel Küche 2023.03.09..pdf434,9 KB · Aufrufe: 114
-
Tangerner A6 Perspektive-6 Küche 2023.03.09. - Kopie.pdf748,5 KB · Aufrufe: 109
-
Tangerner A6 Perspektive-2 Küche 2023.03.09. - Kopie.pdf943,2 KB · Aufrufe: 102
-
Tangerner A6 Perspektive-8 Küche 2023.03.09..pdf895,7 KB · Aufrufe: 120
-
Tangerner A6 Perspektive-7 Küche 2023.03.09. - Kopie.pdf598 KB · Aufrufe: 112
-
The View E-Plan Top A6 (EG) Quer.pdf584,2 KB · Aufrufe: 122
