Magnolia
Mitglied
- Beiträge
- 6.888
AW: Verbesserungsvorschläge für Planung
Hallo,
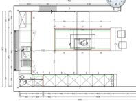
mir gefällt der Plan (Plan Kerstin, Umsetzung Jo Nr. 14) so richtig gut, wenn noch einige kleine Änderungen gemacht werden würden.
Diese Theke hätte ich lieber als durchgehende APL.
Sieht m.M. nach besser aus und ist zudem auch noch praktisch.
Dann wäre mehr Arbeitsfläche da und man könnte dieses "Loch" links vom Fenster mit einem UllaSchrank (evtl. mit Lifttüre) "verschließen. Das "Loch" gefällt mir persönlich auch nicht so. Der Hängeschrank rechts vom Fenster finde ich auch nicht so prickeln.
Würde ich rausschmeißen.
Dann würde der Plan optisch nicht nur gut sondern einfach klasse aussehen.
Hallo,
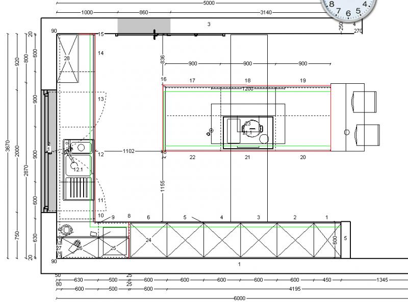
mir gefällt der Plan (Plan Kerstin, Umsetzung Jo Nr. 14) so richtig gut, wenn noch einige kleine Änderungen gemacht werden würden.
Diese Theke hätte ich lieber als durchgehende APL.
Sieht m.M. nach besser aus und ist zudem auch noch praktisch.
Dann wäre mehr Arbeitsfläche da und man könnte dieses "Loch" links vom Fenster mit einem UllaSchrank (evtl. mit Lifttüre) "verschließen. Das "Loch" gefällt mir persönlich auch nicht so. Der Hängeschrank rechts vom Fenster finde ich auch nicht so prickeln.
Würde ich rausschmeißen.
Dann würde der Plan optisch nicht nur gut sondern einfach klasse aussehen.
















