poisony
Mitglied
- Beiträge
- 7
- Wohnort
- Österreich
Hallo Küchen-Forum,
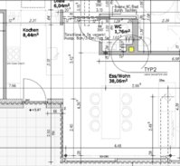
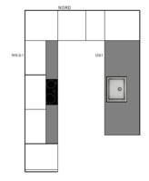
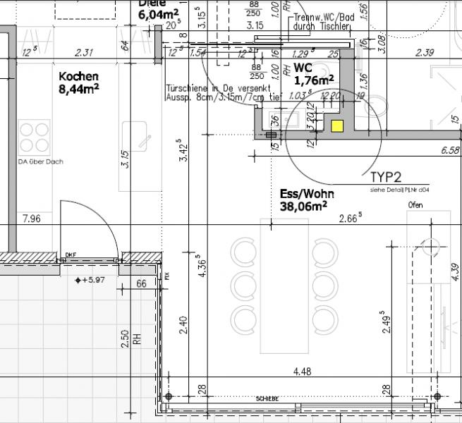
Ich beschäftige mich seit einiger Zeit mit der Planung für meine neue Wohnung.
Gerne möchte ich euere Meinung zum Küchen Grundriss / Einteilung lesen
Danke schon mal vorab.
poisony
_______________________________________________
Checkliste zur Küchenplanung von poisony
Anzahl Personen im Haushalt : 2
Davon Kinder? : keine
Körpergrösse des Hauptbenutzers (wegen Arbeitshöhe ) in cm : 170
Hochgebauter Geschirrspüler ? : nein
Hochgebauter Backofen ? : Ja
Art des Gebäudes? : Eigentum Neubau
Sanitäranschlüsse : variabel
Dunstabzugshaube? : Abluft
Sitzmöglichkeit in der Küche erforderlich? : nein
Gefriermöglichkeit? : nein
Ausführung Kühlgerät? : integriert
Küchenstil? : grifflos
Kochfeldbreite ca. (in cm)? : 60
Kochfeldart? : Induktion
Spülenform: : 1 Becken ohne Abtropffläche
Raumhöhe in cm: : 250
Brüstungshöhe des Fensters (in cm) :
Fensterhöhe (in cm) :
Preisvorstellung (Budget) : mehr als 25.000,-
Ich beschäftige mich seit einiger Zeit mit der Planung für meine neue Wohnung.
Gerne möchte ich euere Meinung zum Küchen Grundriss / Einteilung lesen
Danke schon mal vorab.
poisony
_______________________________________________
Checkliste zur Küchenplanung von poisony
Anzahl Personen im Haushalt : 2
Davon Kinder? : keine
Körpergrösse des Hauptbenutzers (wegen Arbeitshöhe ) in cm : 170
Hochgebauter Geschirrspüler ? : nein
Hochgebauter Backofen ? : Ja
Art des Gebäudes? : Eigentum Neubau
Sanitäranschlüsse : variabel
Dunstabzugshaube? : Abluft
Sitzmöglichkeit in der Küche erforderlich? : nein
Gefriermöglichkeit? : nein
Ausführung Kühlgerät? : integriert
Küchenstil? : grifflos
Kochfeldbreite ca. (in cm)? : 60
Kochfeldart? : Induktion
Spülenform: : 1 Becken ohne Abtropffläche
Raumhöhe in cm: : 250
Brüstungshöhe des Fensters (in cm) :
Fensterhöhe (in cm) :
Preisvorstellung (Budget) : mehr als 25.000,-
Anhänge






