Unbeendet Planung einer Küche im Neubau

Xuka

Mitglied
Beiträge
7
Liebe Küchenforum-Community,
ich habe schon einiges gelesen und bin total begeistert auf welche tollen Lösungen ihr kommt.
Ihr wende mich jetzt mit einem noch sehr unkonkreten Projekt an Euch, da wir jetzt noch Einfluss auf Raum/Türen (Innenwände) und hoffentlich sogar Fenstergröße und -position (Außenwände) nehmen können.
Im Anhang findet ihr einen Grundriss, der allerdings noch nicht ganz fix ist. Er ist für das Reihenendhaus in der 1. Reihe, wir wollen jedoch das in der 2. Reihe beziehen, so dass sich hier noch kleine Änderungen ergeben können.
Insbesondere dem bodentiefen Fenster und den 2 Türen aus dem Flur in Küche und Wohnzimmer stehe ich kritisch gegenüber. Bevor wir hier aber konkret Umplanen wollte ich mal nach Eurer Meinung fragen, so dass wir uns nicht verrennen.

Unsere Vorstellung wäre, die Tür zum Wohnzimmer zu verschließen und eine breite (wahrscheinlich Schiebetür) an die Stelle der Küchentür zu setzen.
Vorteile wären:
- eine längere Wand im Flur für die Garderobe (siehe Link https://s-media-cache-ak0.pinimg.com/564x/33/b5/d3/33b5d34e1d9108a0fd7799c27cb8d731.jpg )

(ggf. muss der Treppenaufgang gedreht werden)
- mehr Wand und somit Stellfläche im Wohnzimmer

Nur normales statt bodentiefes Fenster in der Küche, und/oder Fenster an der Küche seitlich wie in dem Bildbeispiel (siehe Links, finde ich ziemlich guut :-) )

http://www.stylingroom.de/s/cc_images/cache_2463092257.jpg
http://www.stylingroom.de/s/cc_images/cache_2463092258.jpg
Oder auch so, nur reicht der Platz ohne Hochschränke/Oberschränke?

https://s-media-cache-ak0.pinimg.com/564x/2b/04/0d/2b040d19724f9cf3d1049435a0b61b2d.jpg


Aktuell sind wir im Haushalt 3 Personen, mehr Zuwachs ist geplant ;-)

Ich würde gerne mal Eure Meinung zu den Umbauten/Anpassungen hören.

Sobald ich genauere und verlässliche Daten bekomme (bis jetzt heißt es nur "es wird ganz ähnlich zu den Häusern in der 1. Reihe") werde ich den Thread natürlich aktualisieren.

Ich wünsche einen schönen sonnigen Sonntag (wie gut das heute passt :-) ),
Caro (Xuka)

Ergänzung: Die Größe der Bodenplatte beträgt 10,24 * 6,985 m (Außenmaße)

Checkliste zur Küchenplanung

Anzahl Personen im Haushalt: 3
Davon Kinder?: 1
Art des Gebäudes?: Neu-/Umbau, Planänderungen möglich
Körpergrössen aller Hauptbenutzer (wegen Arbeitshöhe ) in cm: 172 und 184
Brüstungshöhe des Fensters (in cm):
Fensterhöhe (in cm):
Raumhöhe in cm:
ca. 229
Heizung: Fussbodenheizung
Sanitäranschlüsse: vollkommen variabel
Ausführung Kühlgerät:
Kühlgerät Größe:
Ausführung Tiefkühl (TK)-Gerät:
Im Kühlschrank ab 3 Schubladen unten
Dunstabzugshaube: Umluft
Backofen etc. hochgebaut?: Wenn möglich
Hochgebauter Geschirrspüler ?: Wenn möglich
Kochfeldart: Induktion
Kochfeldbreite ca. (in cm)?: 60-80
Spülenform: Noch nicht festgelegt
Geplante Heißgeräte: Backofen
Küchenstil: Grifflos
Sitzmöglichkeit in der Küche / im Küchenbereich: Überstehende Arbeitsplatte
Sitzmöglichkeit: Für wieviel Personen?: für 2 Personen
Sitzmöglichkeit: Tisch - wenn gesonderter Tisch oder offene Küche: Vorhandener Tisch
Gewünschte o. vorhandene Tischgröße: 1*2 m
Wofür soll der Sitzplatz in der Küche genutzt werden? Wie häufig?: Frühstücksbar, für die Kinder z.B. beim Hausaufgabenmachen während man kocht
Welche Arbeitshöhe ist angedacht (in cm)?:
Was steht auf der Arbeitsplatte oder soll dort stehen?:
Kaffeemaschine, Wasserkocher, Obstschale, Sonstiges (evtl. im Beitragstext benennen)
Welche weiteren Küchenmaschinen müssen in der Küche untergebracht werden?: Küchenmaschine, Toaster, Handrührgerät, Pürierstab, Sonstiges (evtl. im Beitragstext benennen)
Was soll in der Küche außer den Standards untergebracht werden?: ALLE Vorräte
Welchen Stauraum gibt es sonst noch?: Hauswirtschaftsraum
Was/wie wird gekocht? (Alltagsküche, Menüs, Snacks usw): Gesunde Küche und auch mal etwas aufwendigeres am Wochenende, kleinere Sachen wie Pasta auch mal unter der Woche.
Da mein Mann ein großer Griller ist, soll auch auch ein schöner Gasgrill noch in den Haushalt einziehen, so dass die Zubereitung von Fleisch/Burgern/Fisch eher draußen stattfinden soll.

Wie häufig wird gekocht?: Sonstiges (evtl. im Beitragstext benennen)
Wird alleine gekocht? Oder auch gemeinsam? Mit und für Gäste?: Eher alleine, einfachere Gerichte auch für bis zu 8 - 10 Personen
Was stört an der bisherigen Küche und was soll die neue Küche unbedingt können? Warum?: Jetzt haben wir eine katastrophale Küche in der Mietwohnung mit jeweils nur 30 cm Platz neben dem Herd bzw. zwischen Herd und Spüle.
Ich hätte gerne soviel Arbeitsfläche, dass man einen Kuchen in Ruhe Backen kann und soviel Platz hat, dass man erst hinterher aufräumen muss.


Das möchte ich gerne haben:
Spülbecken gross genug für ein Backblech, Locheinhänger zum Liegenlassen von Bürste+Schwamm etc.
Arbeits- und Staufläche
Backofen mit Pyrolyse
Unterschränke: Schubladen oder Auszüge

Welche Mülltrennung soll in der Küche vorgehalten werden?: Biomüll, Gelber Sack Müll, Restmüll
Steht schon ein Küchenhersteller fest oder wird bevorzugt?:
Steht schon ein Gerätehersteller fest oder wird bevorzugt?:
Preisvorstellung (Budget):
bis 20.000,-
------------------
Im Threadverlauf hinzugekommen:
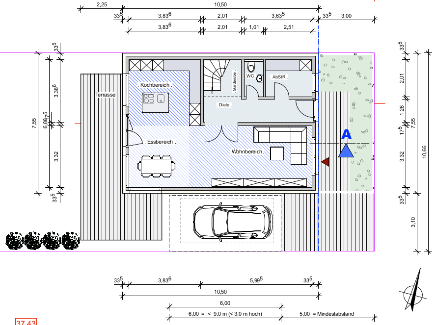
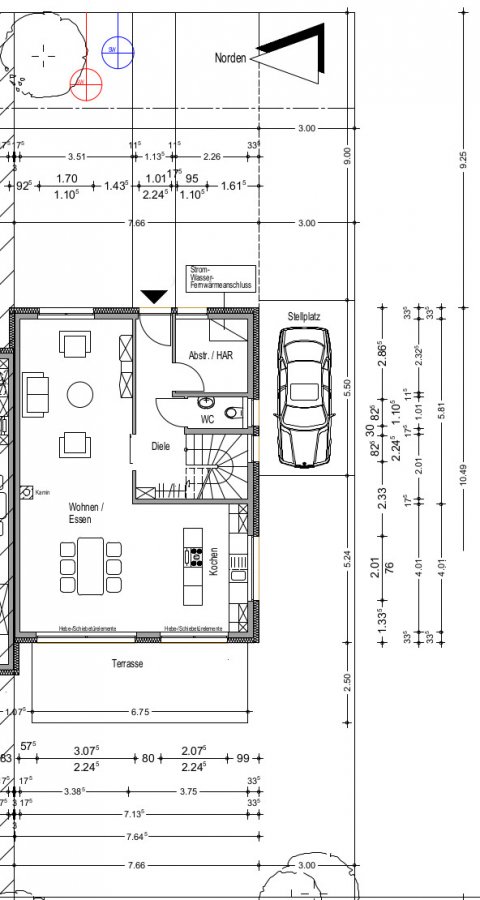
10.02.2018 NEUER vermaßter Grundriss
eg-jpg.260051



27.04.2017 .. vermaßter Grundriss

bildschirmfoto-vom-2017-04-28-21-40-55-png.241854
 

Anhänge

  • Bildschirmfoto vom 2017-01-22 10:20:04.png
    Bildschirmfoto vom 2017-01-22 10:20:04.png
    356,3 KB · Aufrufe: 375
Zuletzt bearbeitet von einem Moderator:
Ich frage mal ganz ketzerisch, ob ein Raumtausch Wohnzimmer <=> Küche möglich ist?
 
Hi Breezy, danke für deine Ideen.
Prinzipiell ja, aber ein Wohnzimmer mit Nordausrichtung?
 
Wer braucht schon Sonne im Wohnzimmer? Ist dort nicht couchlümmeln und fernsehen oder lesen angesagt, zumeist eh abends? Wir haben ein Ost-Süd-Wohnzimmer und es nervt uns gewaltig. :P
 
Es kommt natürlich auch darauf an, wie Eure Gewohnheiten sind - z.B. sitzt Ihr mit Besuch am Esstisch oder eher auf der Couch? Wenn Ihr im Sommer gerne auf der Terrasse sitzt, wären die Wege zum Kühlschrank oder zum Essen vorbereiten/ raustragen kürzer. Wenn die Kinder alleine draußen spielen, hättet Ihr sie auch gleich im Blick.

Auf der Couch sitzt man ja tendentiell eher abends. Wir haben das Wohnzimmer zur Südseite und das ist im Nachhinein betrachtet die falsche Entscheidung gewesen. Beim Grillen muss ich alles quer durchs Erdgeschoss auf die Terrasse tragen und die Sonne scheint immer genau aufs TV.

Das waren so meine Gedanken.
 
Hallo Caro!
Deine Idee mit Treppe drehen und Wohnzimmertür zu finde ich schonmal super: so habt ihr geradeaus von der Haustür ordentlich Platz für eine Garedeobe, denn sowas scheint in dem 'Flürchen' ja nicht vorgesehen.
Was Du so schreibst, klingt nach Küche-ist-Lebensmittelpunkt. Ich gehe mit Breezy konform:
Wir haben ein ganz ähnliches Haus und wir ärgern uns schwarz, dass wir damals nicht Küche und Wohnzimmer getauscht haben. So drubbeln sich immer alle in der engen Küche, sitzen gesellig am Tisch und die Couch ist wirklich nur Fernseh-Möbel, der Weg auf die Terrasse ist relativ weit und die Sonne blendet beim Fernsehen.
Der Tausch klingt unkonventionell, aber (je nach Leben) sinnvoll.
 
unser wohnbereich ist auch im süd-westen (mietwohnung daher keine wahl), zum fenrsehen im sommer muss eine gardine zugezogen werden -.- einfach nur blöd. im haus wird definitiv mehr wert auf südausrichtung des koch und essbereichs gelegt werden!
 
Ich fürchte auch, dass der Essbereich in der derzeitigen Planung gerade mal so für 4 Personen geht - was wird mit Besuch?

Ich stimme auch für einen Raumtausch, dann ist auch Platz für einen ausziehbaren Esstisch.
 
@Xuka,
unabhängig von der Diskussion des raumtausches benötigen wir einen komplett vermaßten Grundriss des gesamten Raumes. Anhand des Bildschirmfotos können wir dir nicht helfen.
 
Hallo, danke für Eure Anregungen. Erst fand ich es sehr befremdlich, aber jetzt nachdem ich auch im Kopf durch die Häuser von Freunden und Verwandten geschritten bin, macht es irgendwie Sinn. Selbst unsere Mietwohnung ist so geplant und eigentlich ganz parktisch von der Aufteilung.
 
Jetzt gibt es (ENDLICH!!) einen vermaßten Grundriss und die Küche ist schon zur Gartenseite geplant. Alternativ überlegen wir, ob es sinnvoll wäre Esszimmer und Küche zu tauschen. Eine Küche an der aktuellen Esszimmerposition könnte einen netten Loftcharacter hervorrufen denken wir.
 

Anhänge

  • Bildschirmfoto vom 2017-04-28 21-40-55.png
    Bildschirmfoto vom 2017-04-28 21-40-55.png
    107,7 KB · Aufrufe: 559
Glückwunsch zur Entscheidung, die Küche zentral an die Terrasse zu legen. Das werdet ihr noch oft genießen.

Was ist denn an einer Küche an der planunteren Position loftiger als an einem zentralem Esstisch? Der ist übrigens nur mit ca. 80 cm Breite in dem Architektengrundriss.

Die eingezeichnete Küchenplanung ist nicht ernst gemeint oder?
 
Nein, die Küchenplanung ist nicht ernst gemeint. Das ist nur das, was rauskam, nachdem wir darauf bestanden, die Küche zu verlegen. (Was die Planer im übrigen eher nicht so kannten, dann aber auch überzeugend fanden ;-) ).
Auch die Fensterpositionen sind noch nicht fix.

Ich hatte mich schon am seitlichen Küchenfenster stehen sehen, aber aufgrund der oberen Etage musste das Treppenhaus die Position in dem Reihenendhaus wechseln, daher ist auch die Küche erstmal zur Nachbarseite gerutscht.

Ich dachte, dass eine Küche an der Esszimmerpostion mehr von dem seitlichen Fenster profitiert als das Esszimmer. Zudem könnte man mit dem Einbau eines Kamins oder eines kleinen Raumtrenners ein kleines L (plus Küchenblock) oder ist das Blödsinn?
Siehe angehängte Bilder.
http://media-cache-ec0.pinimg.com/736x/36/e3/27/36e32717bdce651c5450c9e204481853.jpg
http://referenzbauten.de/system/html/Haus am Hang_06-c083aa77.jpg

Wir liebäugeln zusätzlich in dem Esszimmer noch mit einem kleinem Sekretär so als Minibüro, der hätte in der getauschten Version auch eher Platz gefühlt?!?
 
Ich würde ja Gäste WC und Abstellraum tauschen, damit das WC ein Fenster hat. Sonst braucht man ja eine Entlüftung und Geräusche sind weiter weg von Wohnzimmertür.
 
Hallo liebe Forumsmitglieder.
So langsam gehts voran, es wurde noch einiges umgeplant und wir haben uns schon in dem ein oder anderen Studio über Küchen informiert.
Ich schreibe daher jetzt einfach jetzt nochmal die aktualisierte Anforderungen (wir haben inzwischen auch ein 2. Kind bekommen ;-))

Checkliste zur Küchenplanung

Anzahl Personen im Haushalt: 4
Davon Kinder?: 2
Art des Gebäudes?: Neu-/Umbau, Planänderungen möglich
Körpergrössen aller Hauptbenutzer (wegen Arbeitshöhe ) in cm: 172 und 184
Brüstungshöhe des Fensters (in cm):
Fensterhöhe (in cm):
Raumhöhe in cm:
lichte Raumhöhe 254
Heizung: Fussbodenheizung
Sanitäranschlüsse: vollkommen variabel
Ausführung Kühlgerät: a.e. freistehend, keine Side-by-side
Kühlgerät Größe:
Ausführung Tiefkühl (TK)-Gerät:
Im Kühlschrank ab 3 Schubladen unten
Dunstabzugshaube: Umluft (Muldenlüfter )
Backofen etc. hochgebaut?: Wenn möglich
Hochgebauter Geschirrspüler ?: Wenn möglich
Kochfeldart: Induktion mit Muldenlüfter
Kochfeldbreite ca. (in cm)?: 60-80
Spülenform: Noch nicht festgelegt
Geplante Heißgeräte: Backofen , fraglich Dampfgarer
Küchenstil: Grifflos oder Griffleisten
Sitzmöglichkeit in der Küche / im Küchenbereich: Überstehende Arbeitsplatte
Sitzmöglichkeit: Für wieviel Personen?: für mind. 2 Personen
Sitzmöglichkeit: Tisch - wenn gesonderter Tisch oder offene Küche: Vorhandener Tisch
Gewünschte o. vorhandene Tischgröße: 1*2 m
Wofür soll der Sitzplatz in der Küche genutzt werden? Wie häufig?: Frühstücksbar, für die Kinder z.B. beim Hausaufgabenmachen während man kocht
Welche Arbeitshöhe ist angedacht (in cm)?:
Was steht auf der Arbeitsplatte oder soll dort stehen?:
Kaffeemaschine, Wasserkocher, Obstschale, Sonstiges (evtl. im Beitragstext benennen)
Welche weiteren Küchenmaschinen müssen in der Küche untergebracht werden?: Küchenmaschine, Toaster, Handrührgerät, Pürierstab, Sonstiges (evtl. im Beitragstext benennen)
Was soll in der Küche außer den Standards untergebracht werden?: ALLE Vorräte
Welchen Stauraum gibt es sonst noch?: Hauswirtschaftsraum
Was/wie wird gekocht? (Alltagsküche, Menüs, Snacks usw): Gesunde Küche und auch mal etwas aufwendigeres am Wochenende, kleinere Sachen wie Pasta auch mal unter der Woche.
Da mein Mann ein großer Griller ist, soll auch auch ein schöner Gasgrill noch in den Haushalt einziehen, so dass die Zubereitung von Fleisch/Burgern/Fisch eher draußen stattfinden soll.
Wie häufig wird gekocht?: Sonstiges (evtl. im Beitragstext benennen)
Wird alleine gekocht? Oder auch gemeinsam? Mit und für Gäste?: Eher alleine, einfachere Gerichte auch für bis zu 8 - 10 Personen
Was stört an der bisherigen Küche und was soll die neue Küche unbedingt können? Warum?: Jetzt haben wir eine katastrophale Küche in der Mietwohnung mit jeweils nur 30 cm Platz neben dem Herd bzw. zwischen Herd und Spüle.
Ich hätte gerne soviel Arbeitsfläche, dass man einen Kuchen in Ruhe Backen kann und soviel Platz hat, dass man erst hinterher aufräumen muss.


Das möchte ich gerne haben:
Spülbecken gross genug für ein Backblech, Locheinhänger zum Liegenlassen von Bürste+Schwamm etc.
Arbeits- und Staufläche
Backofen
Muldenlüfter (a.e. Siemens )
Unterschränke: Schubladen oder Auszüge
Welche Mülltrennung soll in der Küche vorgehalten werden?: Biomüll, Gelber Sack Müll, Restmüll
Steht schon ein Küchenhersteller fest oder wird bevorzugt?:
Steht schon ein Gerätehersteller fest oder wird bevorzugt?:
Siemensgeräte
Preisvorstellung (Budget):
bis 25.000,-


Plan ist eine L-Form mit Hochschränken zum Flur hin und Unterschränken zur Südseite sowie einer Kücheninsel mit Muldenlüfter.
Wir haben uns jetzt mit verschiedenen Systemen beschäftigt.
Einerseits finden wir die Matrix 900 von Nolte interessant, da sie ja mehr Stauraum hat und nur einen niedrigen Sockel (was uns optisch gut gefällt.) Zusammen mit einer schmalen Arbeitsplatte von 1,2 cm käme man auch auf eine vernünftige Arbeitshöhe.
Der Muldenlüfter von Siemens braucht jedoch einen 10 cm Sockel, oder einen seitlichen Auslass, wenn ich das richtig verstanden habe.
Andererseits hätten wir in der Ecke auf der Arbeitsplatte gerne einen Schrank mit Drehschiebetür und vlt Ulla-Schrank (das gibt es jedoch nur von bestimmten Herstellern in eher hohem Preissegment, oder?) (wohl Leicht, Next 125 oder Team 7, was aber glaube ich unser Budget sprengt??)

Ich bin gespannt auf eure Meinung und weitere Anregungen..
 

Anhänge

  • EG.jpg
    EG.jpg
    74,5 KB · Aufrufe: 436
Hmm ... Glückwunsch zu Kind Nr. 2 ;-).

Warum habt ihr die Treppe auf die andere Haushälfte gelegt? Paßt denn das gut mit dem OG?

Arbeitshöhe habt ihr ausgelassen und wohl immer noch nicht erprobt - oder? Denn Nolte heißt Korpushöhe 90 cm, 6 cm Sockel sollten es schon sein plus APL-Dicke, also mind. 97,2 cm Arbeitshöhe.

Ich bin ja wie immer eher Fan der Spülen/Arbeitsinsel und gerade bei Fenstern mit nur 76 cm Mauerloch (Brüstungshöhe fehlt auch in der Checkliste) Fan von Kochen an der Wand, idealerweise mit Decken-DAH und Abluft. Wg. Kamin und auch sonst mit kombiniertem Zuluftmauerkasten.

* Decken-DAH, Links und Bild im Lexikon *

Wofür soll der Sitzplatz in der Küche genutzt werden? Wie häufig?: Frühstücksbar, für die Kinder z.B. beim Hausaufgabenmachen während man kocht
Wäre doch sinnvoller, die würden dann am Tisch sitzen und Hausaufgaben machen, und noch sinnvoller, in ihren Zimmern. Und, die Frage ist ja, Hausaufgaben werden doch in aller Regel eher so zwischen 14 und 17 Uhr gemacht .. nicht gerade die übliche Kochzeit ;-).
 
Na Ihr seid ja fleißig! Glückwunsch zum 2. Kind! Und neben bei noch ein bisschen Haus planen....
Auch von mir der Gedanke: Treppenhaus an der Außenwand: raubt Ihr euch damit nicht viel Fensterwand im OG?

Ich würde das KF auch an die Wand legen. Die Insel wird der coole Lieblingsplatz der Kinder; dann würde ich da kein spritzendes Fett haben wollen. Nebenbei ist der Weg nach draußen für die Abluft kürzer, wenn die DAH an der Außenwand liegt.
Noch ein Gedanke: Eure Garderobe steht quasi im Treppenabgang in den Keller; das würde ich nochmal überdenken und ggf. eine Nische für die Garderobe in Richtung Küche einplanen.

Sehe gerade die Ausrichtung des Hauses: planrechts ist Süden. Braucht Ihr so viel Licht im Klöchen? Wenn Ihr das Haus spiegelt, habt Ihr mehr Licht im Wohnbereich, die Wirtschaftsräume zum Nachbarn hin.
 

Ähnliche Beiträge

Neff Hausgeräte Ballerina Küchen Blum Bewegungstechnologie Weibel - Intelligente Küchenlüftung

Neff Spezial

Blum Zonenplaner

Weibel Abluft-Tuning

Weibel Abluft-Tuning
Zurück
Oben