Optimale Planung für RH-Küche

megnut

Mitglied
Beiträge
24
Wohnort
NRW
Hallo zusammen,
seit einiger Zeit lege ich Nachtschichten ein, weil ich immer wieder auf tolle, interessante Beiträge in diesem Forum stoße. Ich bin begeistert von den vielen gelungenen Planungen und den kreativen Ideen der Mitglieder und der "Profis". Und hier liegt mein Problem: ich bin gar nicht kreativ und habe keinen Schimmer, wie für unsere Gegebenheiten die beste Planung aussieht.
Wir planen eine Schüller C2 mit Lack Hochglanz- oder Glasfronten in Weiß mit aufgesetzten Griffleisten, Arbeitshöhe 92 cm, Arbeitsplatte evtl. aus Naturstein.

Räumliche Situation:
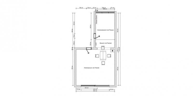
Zum Wohnzimmer haben wir vor Jahren einen Durchbruch gemacht, der leider etwas schmaler wurde als gewünscht, da in der einen Wand Rohre verlaufen und auf der anderen Seite ein Kamin ist. Das Parkett wurde aus dem WZ in Richtung Küche verlängert. Die Grenze Fliesen/Parkett ist im Grundriss eingezeichnet und die neue Küche sollte nur im gefliesten Bereich stehen. Daher habe ich den Grundriss im Alnoplaner nur auf diese Fläche bezogen. Im Wohnzimmer steht unser Esstisch, an dem eigentlich alle Mahlzeiten eingenommen werden. Trotzdem möchten wir in der Küche ein oder zwei Sitzplätze zum Arbeiten oder mal für 'nen Kaffee zwischendurch haben. Der Heizkörper (z. Z. unter dem Fenster) kann verlegt werden. Er wurde bei den Planungen links neben die Tür verschoben. Der Wasseranschluss befindet sich auf der linken Seite und kann nur an dieser Wand verändert werden. An der gleichen Wand befindet sich auch der Elektroanschluss, der aber problemlos verlegt werden kann. Das dreiflügelige Fenster geht über die gesamte Breite an der Stirnseite. Darüber ist über die gesamte Breite ein Rollladenkasten, sodass keine Deckenhaube infrage kommt. Bei der Dunstabzugshaube ist nur Umluft möglich, wobei ich schon sehr gerne eine Kopffreihaube hätte.
So, ich hoffe, dass der Grundriss zu Verdeutlichung beiträgt. Die Planung aus dem ersten Küchenstudio habe ich versucht mit dem Alnoplaner nachzustellen, aber ich finde nicht die richtigen Griffe (bei Schüller heißen sie 935).Die Spülmaschine sollte eigentlich auch vollintegriert sein.:-\
Ich bin sehr gespannt auf eure Meinungen und Denkanstöße und ob sich bei unseren Gegebenheiten eine Küche verwirklichen lässt, bei der die Arbeitsabläufe harmonisch sind, genügend Stauraum vorhanden ist und die zudem noch gut aussieht.
Vorab schonmal vielen Dank für die Mühe.:clap:


PS: Die Dateianhänge werden gleich noch eingestellt - wenn ich es schaffe ;-)


Checkliste zur Küchenplanung von megnut

Anzahl Personen im Haushalt : 3
Davon Kinder? : keine
Körpergrössen aller Hauptbenutzer (wegen Arbeitshöhe) in cm : 168, 189
Art des Gebäudes? : Bestandsbau, (kleinere) Umbauten möglich
Brüstungshöhe des Fensters (in cm) : 94
Fensterhöhe (in cm) : 120
Raumhöhe in cm: : 250
Heizung : Heizkörper wie im Grundriss
Sanitäranschlüsse : variabel an aktueller Wand
Ausführung Kühlgerät? : Integriert im Hochschrank (60cm)
Kühlgerät Größe : bis 122 cm Höhe
Ausführung Tiefkühl (TK)-Gerät : Im Kühlschrank als kleines Fach oben
Dunstabzugshaube? : Umluft
Hochgebauter Backofen ? : Ja
Hochgebauter Geschirrspüler ? : wenn möglich
Kochfeldart? : Induktion
Kochfeldbreite ca. (in cm)? : 80
Spülenform: : 1,5 Becken mit Abtropffläche
Weitere geplante Heißgeräte : Einbaumikrowelle
Küchenstil? : modern
Sitzmöglichkeit in der Küche / im Küchenbereich als : Überstehende Arbeitsplatte
Sitzmöglichkeit: Für wieviel Personen? : für 2 Personen
Sitzmöglichkeit: Tisch - wenn gesonderter Tisch oder offene Küche : Vorhandener Tisch
Gewünschte o. vorhandene Tischgröße : 140 cm
Wofür soll der Sitzplatz in der Küche genutzt werden? Wie häufig? : Zum Vorbereiten, Kaffee oder Snack zwischendurch
Welche Arbeitshöhe ist angedacht (in cm)? : 92
Was steht auf der Arbeitsplatte oder soll dort stehen? : Kaffeemaschine, Messerblock, Allesschneider, Toaster, Obstschale
Welche weiteren Küchenmaschinen müssen in der Küche untergebracht werden? : Handrührgerät, Eierkocher
Was soll in der Küche außer den Standards untergebracht werden? : Staubsauger/Wischer etc., Geschirr komplett (nichts in Ess-/Wohnzimmer)
Welchen Stauraum gibt es sonst noch? : Geschirr/Gläserschrank im Wohn-/Esszimmer, Keller
Was/wie wird gekocht? (Alltagsküche, Menüs, Snacks usw) : Alltagsküche
Wie häufig wird gekocht? : (fast) täglich 1x warm
Wird alleine gekocht? Oder auch gemeinsam? Mit und für Gäste? : alleine / gemeinsam ohne Gäste
Was stört an der bisherigen Küche und was soll die neue Küche unbedingt können? Warum? : Einbaugeräte gehen kaputt. Küche soll modernisiert werden
Steht schon ein Küchenhersteller fest oder wird bevorzugt? : Schüller
Steht schon ein Gerätehersteller fest oder wird bevorzugt? : Siemens , Berbel
Preisvorstellung (Budget) : bis 20.000,-
 
AW: Optimale Planung für RH-Küche

Hoffentlich könnt ihr jetzt alles sehen......
 

Anhänge

  • Grundriss Küche, Wohn- bzw. Esszimmer.jpg
    Grundriss Küche, Wohn- bzw. Esszimmer.jpg
    20 KB · Aufrufe: 288
  • Grundriss.KPL
    3,9 KB · Aufrufe: 216
  • Grundriss.POS
    3 KB · Aufrufe: 211
  • Grundriss.JPG
    Grundriss.JPG
    24,7 KB · Aufrufe: 249
  • Plan I.JPG
    Plan I.JPG
    27,8 KB · Aufrufe: 271
  • Plan I.KPL
    3,9 KB · Aufrufe: 223
  • Plan I.POS
    5,4 KB · Aufrufe: 214
  • Plan I_3D_Bild 1.jpg
    Plan I_3D_Bild 1.jpg
    70,7 KB · Aufrufe: 279
  • Plan I_3D_Bild 2.jpg
    Plan I_3D_Bild 2.jpg
    60,3 KB · Aufrufe: 259
  • Plan I_3D_Bild 3.jpg
    Plan I_3D_Bild 3.jpg
    51,4 KB · Aufrufe: 257
AW: Optimale Planung für RH-Küche

Hallo mgenut,

:welcome:

herzlich Willkommen im Küchenforum.

Es ist verständlich, dass du den Küchenbereich mit den Fliesen enden lassen möchtest. Es ist jedoch sinnvoll, den angrenzenden Essbereich mit anzulegen. Um den Holzboden zu symbolisieren könntest du Korpusmaterial mit der Zaubertaste "F4" an die Maßa anpassen. Leider sind die Zahlen auf dem Grundriss nicht zu lesen (zumindest für mich).

Ansonsten eine schöne Thread-Eröffnung mit Grundriss und den erforderlichen Dateien.

Ich wünsche dir viel Input und dass du eifrig mitschiebst.
 
AW: Optimale Planung für RH-Küche

:welcome:

Schöne Vorstellung :2daumenhoch: mit vielen nützlichen Infos und allen Alno -Dateien.

Du solltest den Alno-Plan erweitern, so dass Du Wohn/Esszimmer mit abbildest - das erleichtert Dir die Perspektive und ein Gefühl für die Raumverhältnisse zu bekommen. Dann auch gleich das Esszimmer mit möblieren.

Steht der Esstisch bei euch wirklich so im Durchgang? dann sehe ich den Sinn von einem Kaffeeplatz nicht so ganz.
 
AW: Optimale Planung für RH-Küche

Man kann "erlesen" das du schon den ein oder anderen Thread gelesen hast! Klasse Vorstellung!:top:
 
AW: Optimale Planung für RH-Küche

Danke für den freundlichen Empfang:-)

Hier nochmal der vergrößerte Grundriss.

Leider steht der Esstisch wirklich so im Durchgang.Das ist schon manchmal ziemlich eng, besonders wenn wir Besuch haben. Trotzdem möchten wir mindestens einen Sitzplatz als Arbeitsplatz in der Küche haben.

Der Platz hinter den Fliesen bis zum Durchgang ist, glaube ich, nicht zu wirklich zu gebrauchen.
 

Anhänge

  • Grundriss Küche, Wohn- bzw. Esszimmer (vergrößert) 2.0.jpg
    Grundriss Küche, Wohn- bzw. Esszimmer (vergrößert) 2.0.jpg
    29,9 KB · Aufrufe: 242
AW: Optimale Planung für RH-Küche

Nur mal eine Frage um rauszufinden was ihr möchtet ohne eine konkrete Idee. Wäre es denkbar das der Essplatz hinter den Fliesen isr? Oder zumindest der Stuhl /Hocker?
Oder die Hochschränke? Evtl farblich abgesetzt, so das die Trennlinie der Fliesen trotzdem eingehalten wird?
 
AW: Optimale Planung für RH-Küche

Ich kann leider die Maße des Bereuchea außerhalb der Fliesen nucht erkennen. Ich denke da an ein L planoben und rechts , Kochstelle rechts , Hochschränke im "nicht-fliesenbereich" und planlinks eine spülenhalbinsel. Kann das leider aber gersde nicht zesten. Ist also ihne Gewähr ;-)
 
AW: Optimale Planung für RH-Küche

Queenie,
hast du ein Kind auf dem Arm? ;-)
 
AW: Optimale Planung für RH-Küche

@littlequeen

es wäre schon möglich, dass ein Stuhl auf dem Parkett steht, aber ich habe Bedenken, dass es nach hinten also zum Esstisch hin zu eng wird.
z.Z. haben wir die Küche als U-Form, wobei vor dem Fenster nur eine Arbeitsplatte von rechts links geht ohne Schränke darunter. Da ist jetzt unser Arbeitsplatz.
Wenn wir die Küche nun in G-Form planen, ist der Blick vom WZ in die Küche auch nicht mehr so offen und man sieht vielleicht nicht mehr sofort, wenn es mal nicht so aufgeräumt ist ;-)
 
AW: Optimale Planung für RH-Küche

;-) eine G-Küche wird den Blick in die unaufgeräumte Küche auch nicht besser machen - Du hast ja nun schon den Esstisch im Durchgang stehen und es nützt nichts .. dazu müsstest Du schon eine Abtrennung in ca 140cm höhe bauen um einen Sichtschutz zu generieren.

Du solltest trotzdem den Alno -Planer inkl. Wohn-Essraum erweitern.
 
AW: Optimale Planung für RH-Küche

Mela du hast mich ertappt ;-) - Multitasking für Fortgeschrittene.... ich übe noch ;-)
 
AW: Optimale Planung für RH-Küche

Soo...., nun ist der Alno -Planer erweitert um den angrenzenden Essbereich. Das Wohnzimmer ist natürlich länger, aber bei 9,00 m hört der Alno-Planer auf. Den Fliesenboden habe ich mit einer APL symbolisiert. Hoffentlich könnt ihr euch den Raum jetzt besser vorstellen.:(
 

Anhänge

  • Grundriss Küche und WZ 1.jpg
    Grundriss Küche und WZ 1.jpg
    41,1 KB · Aufrufe: 243
  • Grundriss Küche und WZ 2.jpg
    Grundriss Küche und WZ 2.jpg
    34,5 KB · Aufrufe: 246
  • Grundriss Küche und WZ 3.jpg
    Grundriss Küche und WZ 3.jpg
    47,5 KB · Aufrufe: 242
  • Küchenplanung_Grundriss erweitert 26_02.KPL
    3,9 KB · Aufrufe: 203
  • Küchenplanung_Grundriss erweitert 26_02.POS
    7,8 KB · Aufrufe: 225
AW: Optimale Planung für RH-Küche

Da hast du eine Super-Arbeit geleistet.:2daumenhoch:

Leider habe ich momentan keine Zeit, ansonsten würde ich gerne mitschieben. Aber du wirst nicht allein gelassen.
 
AW: Optimale Planung für RH-Küche

Ich muss nochmal eine Frage stellen. Ihr schreibt zum einen das in der Küche das komplette Geschirr ist, zum anderen das es einen Geschirrschrank im Wohnzimmer gibt. Was trifft zu? Und wieviel Putzutensilien habt ihr die in die Küche sollen und wie hoch ist das höchste (wegen dem Stauraum hierfür)?
 
AW: Optimale Planung für RH-Küche

Hier einmal ein erster Versuch.

Folgende Fragen haben sich mir dabei gestellt, ich habe es jetzt aber erstmal nach euren Angaben geplant.

-Warum Sitzplätze IN der Küche bei einem so nahen Tisch (ich persönlich würde diese eher durch Stauraum ersetzen)
-Warum eine Einbaumikrowelle? (Im Verhältnis sind diese unheimlich teuer, eine Standmikrowelle hinter einer Lifttür tut den selben Dienst ;-) für wesentlich weniger Geld)
-Warum 1,5 Becken bei der Spüle? Ich würde eher 2 Becken nehmen, ggf mit einem kleinen Einsatz für Schwämme etc. so kann das zweite Becken flexibel als Ablage oder Spüle genutzt werden

Spülenzeile in 75cm Tiefe

90cm Tisch in Arbeitsplattenhöhe, so kann dieser auch noch zum schnippeln genutzt werden und es entsteht keine unschöne "Kipp/Schmutzkante" (hier müsst ihr auf die Position des Beines achten, nicht das euch das behindert beim sitzen)
80cm Spülenunterschrank, Spüle rechtsbündig eingebaut, oben Putzreling, unten Stauraum
40cm Müll unter APL
60cm GSP
Blende

Kochzeile in 75cm Tiefe (bei entsprechendem Budget wäre es hier toll die Schränke auch übertief zu gestalten,das gibt wesentlich mehr Stauraum

Blende
80cm 1-1-2-2 (evtl 1-3-2 in der Optik von 1-1-2-2 damit Platz für Essig/Öl und andere hohe Dinge ist)
80cm 1-1-2-2
80cm 1-1-2-2 (mittig über den 2 und 3 das Kochfeld, dann ist rechts davon noch genug Platz für Toaster etc. und links zum schnippeln)
80cm 1-1-2-2
90cm 1-1-2-2
Blende (abschließend mit dem Fliesenboden)

60cm Hochschrank mit BO+Microwelle
60cm Kühli (ist so auch nahe am Essplatz)

Hochschränke in einer anderen Farbe, evtl so wie der Boden, jedoch in einem hellen Ton, das es nicht erdrückt.


Gegenüber eine selbstgebaute Konstruktion (bestenfalls in Frontoptik der Hochschränke) , bestehend aus Türen, bis zum Fliesenboden, in Höhe des Mauervorsprungs im Durchbruch. Hier können dann Staubsauger, Wische etc, verschwinden.
 

Anhänge

  • M1.jpg
    M1.jpg
    43,8 KB · Aufrufe: 256
  • M2.JPG
    M2.JPG
    24,1 KB · Aufrufe: 255
  • M3.jpg
    M3.jpg
    34,7 KB · Aufrufe: 261
  • M4.jpg
    M4.jpg
    42,4 KB · Aufrufe: 265
  • M5.jpg
    M5.jpg
    38,9 KB · Aufrufe: 255
  • Megnut_LQ_Var1.KPL
    3,9 KB · Aufrufe: 217
  • Megnut_LQ_Var1.POS
    11,2 KB · Aufrufe: 221
  • M6.jpg
    M6.jpg
    43,9 KB · Aufrufe: 260
AW: Optimale Planung für RH-Küche

Ich habe gerade eine Vermutung..... soll das planunterhalb der Tür eine Heizung und kein Mauervorsprung sein? Dann müsste meine Variante natürlich so abgewandelt werden das die Heizung etwas weiter zur Tür gesetzt wird und der Einbauschrank dann nur bis zur Heizung reicht.
Ansonsten würde die Heizung auch unterhalb deTischplatte am Sitzplatz passen ;-)
 
AW: Optimale Planung für RH-Küche

Oh mann, habe gerade gesehen, dass ich meinen Antworttext an littlequeen wohl irgendwie nicht eingestellt habe. Morgen Abend nochmal neu:stocksauer:
 
AW: Optimale Planung für RH-Küche

Jetzt einer neuer Versuch. Erstmal ein großes:danke:an littlequeen für die Planung. Die Idee mit den übertiefen Schränken finde ich toll. Muss mich mal schlau machen wieviel teurer die sind. Und nun zu den Fragen:
1. Neben der Tür soll tatsächlich ein Heizkörper sein. Aber der kann ja verlegt werden. Z.Zt. ist er unter dem Fenster, vielleicht kann er ja da bleiben, wenn man kein U plant.
2. Wir setzen uns beim Vorbereiten (Kartoffeln schälen usw.) ganz gerne mal hin (man wird ja nicht jünger :(, deshalb der Sitzplatz. Auch um mal eben ein Brot zu essen und dabei in die Zeitung zu gucken, deckt man ja nicht den Esstisch, wenn man alleine ist und isst.
3. Einbaumikrowelle: es erscheint uns einfach praktischer ohne vorher eine Schranktür öffnen zu müssen.
4. Spüle mit 1,5 Becken weil ich gerne eine Abtropffläche haben möchte. Das halbe Becken haben wir schon oft gebraucht, wenn schon Spülwasser eingelassen ist und in irgendeinem Topf doch noch Einweichwasser war.
5. Geschirr und Gläser für den täglichen Gebrauch sind in der Küche untergebracht.
Im WZ steht nur das "gute Geschirr" und ein paar Schüsseln, die ich gaaanz selten brauche.
6. Für die Putzutensilien (Staubsauger, Besen, Wischer, Eimer) habe ich auf dieser Etage sonst keine Abstellmöglichkeit.
 
AW: Optimale Planung für RH-Küche

Jetzt einer neuer Versuch. Erstmal ein großes:danke:an littlequeen für die Planung. Die Idee mit den übertiefen Schränken finde ich toll. Muss mich mal schlau machen wieviel teurer die sind. Und nun zu den Fragen:
1. Neben der Tür soll tatsächlich ein Heizkörper sein. Aber der kann ja verlegt werden. Z.Zt. ist er unter dem Fenster, vielleicht kann er ja da bleiben, wenn man kein U plant.
2. Wir setzen uns beim Vorbereiten (Kartoffeln schälen usw.) ganz gerne mal hin (man wird ja nicht jünger :(, deshalb der Sitzplatz. Auch um mal eben ein Brot zu essen und dabei in die Zeitung zu gucken, deckt man ja nicht den Esstisch, wenn man alleine ist und isst.
3. Einbaumikrowelle: es erscheint uns einfach praktischer ohne vorher eine Schranktür öffnen zu müssen.
4. Spüle mit 1,5 Becken weil ich gerne eine Abtropffläche haben möchte. Das halbe Becken haben wir schon oft gebraucht, wenn schon Spülwasser eingelassen ist und in irgendeinem Topf doch noch Einweichwasser war.
5. Geschirr und Gläser für den täglichen Gebrauch sind in der Küche untergebracht.
Im WZ steht nur das "gute Geschirr" und ein paar Schüsseln, die ich gaaanz selten brauche.
6. Für die Putzutensilien (Staubsauger, Besen, Wischer, Eimer) habe ich auf dieser Etage sonst keine Abstellmöglichkeit.
 

Ähnliche Beiträge

Neff Hausgeräte Ballerina Küchen Blum Bewegungstechnologie Weibel - Intelligente Küchenlüftung

Neff Spezial

Blum Zonenplaner

Weibel Abluft-Tuning

Weibel Abluft-Tuning
Zurück
Oben