kattakü
Mitglied
- Beiträge
- 3
Hallo liebe Forums-Mitglieder,
nachdem ich nun seit einigen Tagen ganz begeistert im Forum lese und mir viele fertige Küchen angeschaut habe, möchte ich Euch nun um Feedback zu unserer zukünftigen Küche bitten.
Wir werden erst Mitte 2016 in unsere Wohnung einziehen, daher haben wir für die Details und das Design noch ein wenig Zeit, allerdings müssen wir uns schon recht bald für eine grundsätzliche Planung entscheiden, da anschließend die Wasser-und Elektro-Installationen festgelegt werden.
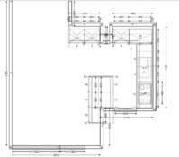
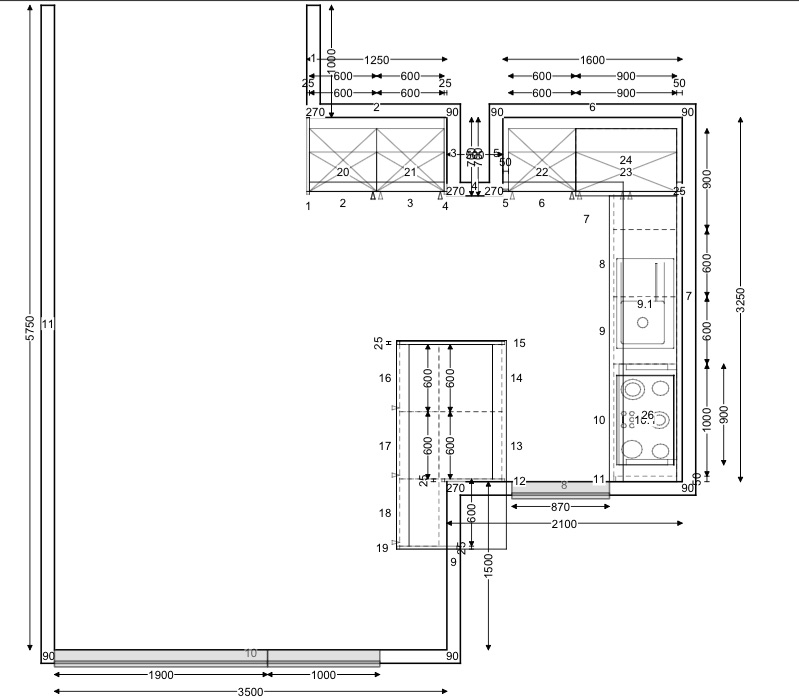
Ich würde mich freuen, wenn Ihr Euch den Grundriss anschauen und uns vielleicht ein paar Tipps geben könntet. Ich finde die Planung nämlich ein wenig schwierig, da auf der einen Seite der Schacht und auf auf der anderen Seite das Fenster mit nur 90cm Brüstungshöhe ist.
Hier einige Gedanken, die wir uns bereits gemacht haben:
- Da wir keinen Keller oder sonstigen Stauraum haben, müssten wir alles, d.h. Geschirr, Geräte und Vorräte in der Küche unterbringen. Zumindest teilweise können wir uns deckenhohe Schränke gut vorstellen. Bei 3m Deckenhöhe würde man dann auch einiges unterbringen. Wir möchten keine Hängeschränke.
- Backofen und Geschirrspüler falls möglich erhöht.
- Spüle nur mit einem Becken und Abtropfbereich.
- Induktionsherd, kann auch kleiner als in der Planung sein. Wir möchten auf jeden Fall eine DAH.
- Kühlschrank und Kühlfach getrennt.
- Da wir gerne und häufig kochen, auch gerne zu zweit, brauchen wir ausreichend Arbeitsfläche. Zurzeit schneiden wir Gemüse etc. auf einer IKEA -Kommode in 96cm Höhe, was wir sehr angenehm finden. Somit wäre auch ein 6er-Raster möglich.
- Als Esstisch haben wir einen relativ großen Ikea-Tisch (NORDEN Ausziehtisch - IKEA), den wir gerne behalten möchten. Wenn der Platz vor der Balkontür zu knapp wäre, dann würden wir ihn jedoch auch austauschen. Maße: 303x100cm; Dazu auf der Wandseite eine Bank
(NORDEN Bank - IKEA) und auf der anderen Seite Stühle.
- Vom Design her gefällt uns am Besten: minimalistisch - weiss matt evtl. mit kleineren Farbeffekten (z.B. Siematic S3). Unsere Decke wird im Rohbau (Beton) bleiben, Wände weiss. Boden: Dielen in Eiche geölt.
Wir haben auch eine erste Planung machen lassen. Leider kann ich sie nicht in den Alno -Planer übertragen, da ich einen Mac habe. In der Planung ist neben der Balkon-Tür ein Fenster eingezeichnet. Dies ist so nicht richtig, es handelt sich um eine große dreiteilige Tür.
Ich würde mich über Eure Meinung zu dieser Planung freuen und vielleicht über weitere Ideen und Tipps.
Vielen Dank schon einmal für Eure Mühen!!
Liebe Grüße
Checkliste zur Küchenplanung
Anzahl Personen im Haushalt: 3
Davon Kinder?: 1
Art des Gebäudes?: Neu-/Umbau, Planänderungen nicht möglich
Körpergrössen aller Hauptbenutzer (wegen Arbeitshöhe ) in cm: 181 und 174 cm
Brüstungshöhe des Fensters (in cm): 90 cm
Fensterhöhe (in cm):
Raumhöhe in cm: 300 cm
Heizung: Heizkörper wie im Grundriss
Sanitäranschlüsse:
Ausführung Kühlgerät: Integriert im Hochschrank (60cm)
Kühlgerät Größe: noch unbekannt
Ausführung Tiefkühl (TK)-Gerät: Eigenständiges Gerät bis 72 cm Höhe
Dunstabzugshaube: Umluft
Backofen etc. hochgebaut?: Wenn möglich
Hochgebauter Geschirrspüler ?: Wenn möglich
Kochfeldart: Induktion
Kochfeldbreite ca. (in cm)?: 60cm
Spülenform: 1 Becken mit Abtropffläche
Geplante Heißgeräte: Dampfgarer mit Wasseranschluß, Backofen
Küchenstil: Modern
Sitzmöglichkeit in der Küche / im Küchenbereich: Gesonderter Tisch
Sitzmöglichkeit: Für wieviel Personen?: für 8 Personen
Sitzmöglichkeit: Tisch - wenn gesonderter Tisch oder offene Küche: Vorhandener Tisch
Gewünschte o. vorhandene Tischgröße: 303x100cm
Wofür soll der Sitzplatz in der Küche genutzt werden? Wie häufig?: Der Esstisch wird in unserer jetzigen Wohnung ständig genutzt: Zum Essen, als Schreibtisch, zum Spielen.
Welche Arbeitshöhe ist angedacht (in cm)?: 96
Was steht auf der Arbeitsplatte oder soll dort stehen?: Wasserkocher, Küchenmaschine, Toaster, Brotbehälter, Obstschale
Welche weiteren Küchenmaschinen müssen in der Küche untergebracht werden?: Handrührgerät, Pürierstab, Sonstiges (evtl. im Beitragstext benennen)
Was soll in der Küche außer den Standards untergebracht werden?: ALLE Vorräte, Geschirr komplett (nichts in Ess-/Wohnzimmer)
Welchen Stauraum gibt es sonst noch?:
Was/wie wird gekocht? (Alltagsküche, Menüs, Snacks usw): Alltagsküche, gelegentlich Menüs
Wie häufig wird gekocht?(fast) täglich 1x warm[/COLOR]
Wird alleine gekocht? Oder auch gemeinsam? Mit und für Gäste?: häufig zu zweit, seltener mit Gästen
Was stört an der bisherigen Küche und was soll die neue Küche unbedingt können? Warum?: wenig Stauraum
Welche Mülltrennung soll in der Küche vorgehalten werden?: Altglas, Altpapier, Biomüll, Gelber Sack Müll, Restmüll
Steht schon ein Küchenhersteller fest oder wird bevorzugt?: evtl. Nolte , Schüller
Steht schon ein Gerätehersteller fest oder wird bevorzugt?: GSM Miele , alle anderen Gerätehersteller noch offen
Preisvorstellung (Budget): bis 15.000,-
nachdem ich nun seit einigen Tagen ganz begeistert im Forum lese und mir viele fertige Küchen angeschaut habe, möchte ich Euch nun um Feedback zu unserer zukünftigen Küche bitten.
Wir werden erst Mitte 2016 in unsere Wohnung einziehen, daher haben wir für die Details und das Design noch ein wenig Zeit, allerdings müssen wir uns schon recht bald für eine grundsätzliche Planung entscheiden, da anschließend die Wasser-und Elektro-Installationen festgelegt werden.
Ich würde mich freuen, wenn Ihr Euch den Grundriss anschauen und uns vielleicht ein paar Tipps geben könntet. Ich finde die Planung nämlich ein wenig schwierig, da auf der einen Seite der Schacht und auf auf der anderen Seite das Fenster mit nur 90cm Brüstungshöhe ist.
Hier einige Gedanken, die wir uns bereits gemacht haben:
- Da wir keinen Keller oder sonstigen Stauraum haben, müssten wir alles, d.h. Geschirr, Geräte und Vorräte in der Küche unterbringen. Zumindest teilweise können wir uns deckenhohe Schränke gut vorstellen. Bei 3m Deckenhöhe würde man dann auch einiges unterbringen. Wir möchten keine Hängeschränke.
- Backofen und Geschirrspüler falls möglich erhöht.
- Spüle nur mit einem Becken und Abtropfbereich.
- Induktionsherd, kann auch kleiner als in der Planung sein. Wir möchten auf jeden Fall eine DAH.
- Kühlschrank und Kühlfach getrennt.
- Da wir gerne und häufig kochen, auch gerne zu zweit, brauchen wir ausreichend Arbeitsfläche. Zurzeit schneiden wir Gemüse etc. auf einer IKEA -Kommode in 96cm Höhe, was wir sehr angenehm finden. Somit wäre auch ein 6er-Raster möglich.
- Als Esstisch haben wir einen relativ großen Ikea-Tisch (NORDEN Ausziehtisch - IKEA), den wir gerne behalten möchten. Wenn der Platz vor der Balkontür zu knapp wäre, dann würden wir ihn jedoch auch austauschen. Maße: 303x100cm; Dazu auf der Wandseite eine Bank
(NORDEN Bank - IKEA) und auf der anderen Seite Stühle.
- Vom Design her gefällt uns am Besten: minimalistisch - weiss matt evtl. mit kleineren Farbeffekten (z.B. Siematic S3). Unsere Decke wird im Rohbau (Beton) bleiben, Wände weiss. Boden: Dielen in Eiche geölt.
Wir haben auch eine erste Planung machen lassen. Leider kann ich sie nicht in den Alno -Planer übertragen, da ich einen Mac habe. In der Planung ist neben der Balkon-Tür ein Fenster eingezeichnet. Dies ist so nicht richtig, es handelt sich um eine große dreiteilige Tür.
Ich würde mich über Eure Meinung zu dieser Planung freuen und vielleicht über weitere Ideen und Tipps.
Vielen Dank schon einmal für Eure Mühen!!
Liebe Grüße
Checkliste zur Küchenplanung
Anzahl Personen im Haushalt: 3
Davon Kinder?: 1
Art des Gebäudes?: Neu-/Umbau, Planänderungen nicht möglich
Körpergrössen aller Hauptbenutzer (wegen Arbeitshöhe ) in cm: 181 und 174 cm
Brüstungshöhe des Fensters (in cm): 90 cm
Fensterhöhe (in cm):
Raumhöhe in cm: 300 cm
Heizung: Heizkörper wie im Grundriss
Sanitäranschlüsse:
Ausführung Kühlgerät: Integriert im Hochschrank (60cm)
Kühlgerät Größe: noch unbekannt
Ausführung Tiefkühl (TK)-Gerät: Eigenständiges Gerät bis 72 cm Höhe
Dunstabzugshaube: Umluft
Backofen etc. hochgebaut?: Wenn möglich
Hochgebauter Geschirrspüler ?: Wenn möglich
Kochfeldart: Induktion
Kochfeldbreite ca. (in cm)?: 60cm
Spülenform: 1 Becken mit Abtropffläche
Geplante Heißgeräte: Dampfgarer mit Wasseranschluß, Backofen
Küchenstil: Modern
Sitzmöglichkeit in der Küche / im Küchenbereich: Gesonderter Tisch
Sitzmöglichkeit: Für wieviel Personen?: für 8 Personen
Sitzmöglichkeit: Tisch - wenn gesonderter Tisch oder offene Küche: Vorhandener Tisch
Gewünschte o. vorhandene Tischgröße: 303x100cm
Wofür soll der Sitzplatz in der Küche genutzt werden? Wie häufig?: Der Esstisch wird in unserer jetzigen Wohnung ständig genutzt: Zum Essen, als Schreibtisch, zum Spielen.
Welche Arbeitshöhe ist angedacht (in cm)?: 96
Was steht auf der Arbeitsplatte oder soll dort stehen?: Wasserkocher, Küchenmaschine, Toaster, Brotbehälter, Obstschale
Welche weiteren Küchenmaschinen müssen in der Küche untergebracht werden?: Handrührgerät, Pürierstab, Sonstiges (evtl. im Beitragstext benennen)
Was soll in der Küche außer den Standards untergebracht werden?: ALLE Vorräte, Geschirr komplett (nichts in Ess-/Wohnzimmer)
Welchen Stauraum gibt es sonst noch?:
Was/wie wird gekocht? (Alltagsküche, Menüs, Snacks usw): Alltagsküche, gelegentlich Menüs
Wie häufig wird gekocht?(fast) täglich 1x warm[/COLOR]
Wird alleine gekocht? Oder auch gemeinsam? Mit und für Gäste?: häufig zu zweit, seltener mit Gästen
Was stört an der bisherigen Küche und was soll die neue Küche unbedingt können? Warum?: wenig Stauraum
Welche Mülltrennung soll in der Küche vorgehalten werden?: Altglas, Altpapier, Biomüll, Gelber Sack Müll, Restmüll
Steht schon ein Küchenhersteller fest oder wird bevorzugt?: evtl. Nolte , Schüller
Steht schon ein Gerätehersteller fest oder wird bevorzugt?: GSM Miele , alle anderen Gerätehersteller noch offen
Preisvorstellung (Budget): bis 15.000,-





