Mietwohnung - Neue Küche - Budget bis ca. 4000,-€

AW: Mietwohnung - Neue Küche - Budget bis ca. 4000,-€

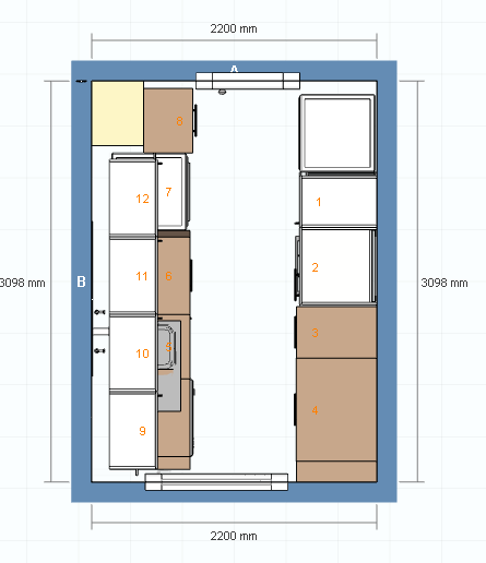
Hallo Fritzi,
zu 1. also die 70 cm wären ja sogar wegen der Uhren gar nicht schlecht, da braucht man mit dem Spülschrank nicht so aufpassen;-)
Steckdosen könnten da ja mit etwas Glück einzeln gesichert sein für GSP und WaMa.

zu 2. ein optisches Highlight ist die Fensterbank nicht ;-), aber vielleicht kannst du da eine stylische Kaffeedose o.ä. hin stellen oder von oben eine Topfpflanze, die runter hängt (Efeu oder so), ich habe große Toneier vor meinen Steckdosen stehen, weil ich die nicht so prickelnd finde;-)

zu 3. ich mag am liebsten Glas als Rückwand, aber es sollte auch ein guter Anstrich mit Elefantenhaut möglich und erst mal ausreichend sein.
Hinter dem Herd vielleicht ein Glasbild, Obi hat da gerade ganz nette, die auch nicht so super teuer sind.
 
AW: Mietwohnung - Neue Küche - Budget bis ca. 4000,-€

Elefantenhaut - was verbirgt sich dahinter? Ist mir nur bekannt vom Basteln.:rolleyes:
Ein Glasbild hinter dem Herd sieht bestimmt schön aus. Nur, ob sich dahinter nicht Krümeleien und so kleines Viehzeug sammelt?

Fritzi
 
AW: Mietwohnung - Neue Küche - Budget bis ca. 4000,-€

Das kommt beim Glasbild darauf an, wie man es anbringt ;-), per Aufhängung kann man es ja ab und an mal abnehmen, würde aber unten auf jeden Fall eine Silikonfuge anbringen, damit nicht hinter die APL tropfen kann, haben wir auch so gemacht, die wäre im Falle eines Falles auch schnell erneuert.

Elefantenhaut ist so eine Art Klarlack für Tapeten, nicht nur das hübsche Papier ;-)
 
AW: Mietwohnung - Neue Küche - Budget bis ca. 4000,-€

Ich sage auch mal, Angelikas Planung ist das, was gut in dem Raum realisierbar ist. Auch mit der 70 cm APL-Tiefe.

Ein gut 300 cm langer Raum wirkt nicht schlauchartig ;-) ... meine letzter Küchenraum war 307x210 cm groß. Ich hatte dort auch einen 2-Zeiler --> Meine neue Küche. Ich habe da auch den Anschluß für das Kochfeld auf die andere Seite legen lassen.

Wg. Burger-Küche, da habe ich ein aktuelles Vergleichspreisbeispiel eingestellt --> https://www.kuechen-forum.de/forum/...ch-ikea-burgerkueche-von-kuechenstudio.12560/

Was noch etwas blöd werden könnte, wären die Bedienelemente der Wama. Die sind ja leicht nach oben gerichtet. Zu weit kann man die Wama also nicht unter die APL schieben.

Bei Kochfeld würde ich über Induktion nachdenken. Und DAH sehe ich auch so ... erstmal ohne und wenn das Budget wieder stimmt, dann eine gute. Ich habe auch erst jetzt in der neuen Küche meine erste DAH ;-)
 
AW: Mietwohnung - Neue Küche - Budget bis ca. 4000,-€

Ich tue mein Waschpulver immer gleich in die Trommel und an die Knöpfe müsste man auch ankommen, wenn die Maschine weiter unter der Arbeitsplatte steht. ;-)

Ich meine mich auch zu erinnern, das Samy in einer Küche, auch mal eine Waschmaschine weiter unter die Platte geschoben hatte und eine Tür davor montiert hat.
 
AW: Mietwohnung - Neue Küche - Budget bis ca. 4000,-€

Ja, sehe ich normal auch so, aber die Bedienblende der verlinkten Maschine ist ca. 45° nach oben gedreht. Das könnte bei zuweit unter der APL stehend wirklich unpraktisch werden.
 
AW: Mietwohnung - Neue Küche - Budget bis ca. 4000,-€

Ok, ich hab mir die Verlinkung nicht angeschaut, :-[ wenn das so ist, hast du natürlich recht.
 
AW: Mietwohnung - Neue Küche - Budget bis ca. 4000,-€

Hallo,
nun war ich mit dem aktuellen Plan (70er APL) bei einem (kompetent wirkenden) Küchen-Einrichter (Burger, Nobilia , Häcker ,. ..) und der meinte:
Waschmaschine so einzubauen, geht so gut wie nicht. Grund:
  • Standgerät ist nicht auf Einbau ausgerichtet, bewegt sich hin und her,
  • gibt an Kaminseite Problem, hier wird sie am Kamin reiben
  • sämtliche Schrauben auf dieser Küchenseite "lottern" aus und
  • WaMa kann bei 70er APL nach hinten rutschen,
  • wegen hin und her bewegen könnte u. U. Wasserschlauch herausgezogen werden.
  • Verlängerungsschlauch Wasser birgt Risiko in sich, dass Abwasser nicht ganz abläuft und beim nächsten Waschgang wieder in Waschmaschine kommt.
  • Waschmaschine so nah an Herdanschluss geht nicht -> gefährlich

Spülmaschine:
  • Kann man vermutlich keinen Sockel davor machen, weil Unterbaugerät.

Standgerät Kühl-Gefrier-Kombi:
Standgerät braucht Platz um sich herum, wegen Erwärmung/lüften:
  • Soll als erstes kommen und nicht zwischen 2 Schränken stehen oder mit Platz dazwischen und
  • soll erst recht nicht oben noch ein Regal haben

Er glaubt nicht, dass er Küche für diesen Betrag machen kann, will aber überlegen, was sich machen lässt und mir Angebot zukommen lassen. :'(:'(

Irgendwie bin ich gerade ganz schön gefrustet und frage mich, ob es Sinn macht mit dem Plan zu einem anderen Küchenhändler zu gehen?
Oder ist eine alternative Planung notwendig?
Oder stocke ich mein Budget auf -ungern, aber wenn not-wendig ?
Ich war auch schon mit dem Küchen-Grundriss an sich bei einem Küchen-Einrichter um mir die Küche planen zu lassen und auch dort hieß es - für dieses Geld kriegen wir hier keine Küche hin.

Für eure Tipps und Ideen wäre ich dankbar.
Fritzi
 
AW: Mietwohnung - Neue Küche - Budget bis ca. 4000,-€

Irgendwie denke ich, dass dieser Herr nicht verkaufen möchte ;-)

Klar, die Wama sollte nicht auf Schnapp ab zwischen den Schränken an der Wand stehen. Aber, es ist eine Miele und meine Miele wackelt nicht ;-)

Das mit den Wasserschläuchen verstehe ich gar nicht.

Elektroanschluß Kochfeld soll ja auf die andere Seite gelegt werden, und wenn das ein Elektriker ordentlicht macht, sehe ich nicht, warum da nicht eine Wama stehen kann. GSP und Spüle waren ja vorher auch dort.

Kühlschrank ... ja, man darf den Schrank obendrüber nicht direkt draufstellen. Aber gut 5 cm Abstand sollten reichen.

Und, man fragt sich, wie es sonst kommt, dass man Stand-Alone-Kühlschränke auch einkoffern kann. Trifft sich gut, ich habe heute gerade eine Sammlung realisierter Umbauten eingestellt.

__________________________Beispiele Stand-Alone-Kühlschrank-Realisationen, die mir gefallen:
Aus der Küche von cumin
_img-2891-1338007009.JPG

Aus der Küche von Angelika
954_kueche02-1333210430.JPG

aus der Küche von mailuj
_dsc-4102-1327245573.JPG

Aus der Küche von starlet (eigentlich gefällt mir Stand-Alone neben Heißgeräteschrank nicht, hier ist es aber eine eher sehr versteckte Lösung ;-) )
_22102011242-1319288175.jpg

SbS ohne hohe Geräte daneben und "richtige" Öffnungsrichtung aus Darlas Küche
_04_1305316900.JPG

Technikzentrum aus Eriks Küche (normalerweise finde ich Hochschrank mit Heißgeräten direkt neben dem Stand-Alone nicht gut. Hier ist durch Heißgeräte rechts und links aber wirklich eine Art Technikzentrum entstanden und da gefällt es mir):
504_IMG7363Large_1304973606.JPG

Echte Stand-Alone-Lösung in der Küche von keks
_forum004_1301255224.jpg
 
AW: Mietwohnung - Neue Küche - Budget bis ca. 4000,-€

Hallo Fritzi,
fritzi_1-1.JPG
in dieser Planung steht der Kühlschrank ja eben NICHT *knirsch* zwischen den Schränken, sondern mit Blenden versehen, den Schrank darüber wird man wahrscheinlich aus der Hängeschränkeabteilung nehmen, also weniger tief und zwischen die beiden Hochschränke einsetzen, das geht locker mit Abstandsleisten und langen Schrauben, nur deine Bleiplatten solltest du da oben nicht lagern ;-), mehr so was wie Plastikschüssel, sehr belastbar ist der Schrank nicht, aber die Optik gewinnt deutlich und Luft hat der Kühlschrank dann auch ausreichend, hat unser auch, der *röchelt* auch nicht und kühlt so normal, wie vorher auch. Hält jetzt schon fast 5 Jahre so eingebaut zwischen Schränken, bzw. Leisten (vorher).

Wasserschläuche ist mir auch gerade ein Rätsel, beide Geräte pumpen ihr Wasser ab, da muss nichts von alleine ablaufen, Restwasser im Schlauch dient dem Geruchsverschluss und etwas Wasser bleibt eigentlich auch in beiden Maschinen zurück.
Wir reden hier ja von einer Wand, die insgesamt nur ca. 2,60 m hat, da ist in keine Richtung der Weg zu *weit* ;-).

Sollte die WaMa nun mehr Platz zum Rütteln brauchen:cool:, dann kann man den Schubladenschrank in 50 cm ausführen, dann kommt die WaMa vom Kamin noch mal 10 cm weg. Das nach hinten Wandern kann man ganz einfach mit einem entsprechend breiten Holzklotz vermeiden (praktisches Denken für :kfb:!), haben wir auch so gemacht, denn unsere WaMa steht knapp vor der Wasseruhr und es wäre äußerst unschön, wenn sie die abrüttelt :w00t:.

Durchgängige Fußleiste wäre zwar schön, aber wenn die Monteure das gut machen und Sichtblenden nach hinten anstückeln, dann sollte das immer noch gut aussehen.

Und wenn er solche Angst um seine Schrauben hat :rofl:, dann muss er die eben fester anziehen;-)... was der wohl für eine WaMa zu Hause hat?
 
AW: Mietwohnung - Neue Küche - Budget bis ca. 4000,-€

Meine Mutter hat ihre Waschmaschine schon seit 17 Jahren in ihrer Küche unter der Arbeitsplatte stehen. Zuerst schnapp zwischen zwei Unterschränken, später schnapp, zwischen Geschirrspüler und Besenschrank. Ab Montag wird ihre neue Küche montiert, da sie sich im letztem Jahr erst eine neue Waschmaschine gekauft hat, wieder nur ein Unterbaugerät, wird sie wieder einfach nur unter die Arbeitsplatte gestellt, zwischen Geschirrspüler und Hochschrank . ;-) Die :kfb: hatte auch überhaupt keine Bedenken deswegen, wieso auch, es funktioniert ja schon seit 17 Jahren so.

In welcher Ecke wohnst du, das es den :kfb: nicht möglich ist, für 4000 Euro eine Küche zu planen...?
 
AW: Mietwohnung - Neue Küche - Budget bis ca. 4000,-€

Und die brauchen nicht mal planen! Nur Bestellung aufnehmen und mit den hauseigenen Möbeln realisieren, da ist NICHTS besonderes verplant, von wegen um 56° Ecken oder so was, das macht mich fast ein bisschen böse;-)
 
AW: Mietwohnung - Neue Küche - Budget bis ca. 4000,-€

G e l ö s c h t.
Fritzi / 10.08.12 / 16.09 h
 
AW: Mietwohnung - Neue Küche - Budget bis ca. 4000,-€

Hallo,
hier gibt es Neues von der "Küchen-Front".
Ihr hattet recht, nachdem sich der letzte Küchenplaner (fast schon) herablassend verhalten hat :'(,:stocksauer: und seine Planung dann natürlich auch nicht das Gelbe vom Ei war, bin ich nun noch bei einem anderen Küchenstudio gewesen.

Der Küchenplaner dort war erfreut über die schon gut geplante Küche - das Lob gebe ich gerne an euch weiter :rose:. Er sah beim Standort der WaMa kein Problem, Unterbau-SpMa macht auch kein Problem und er fand die Idee mit der 70er-APL geschickt. Das tat schon mal gut nach diesem schrecklichen Typ.

Sein Angebot beläuft sich auf 4.560€: Burger-Möbel, Front (weiß)und APL(beton). Mit Montage, aber Kabelverlegung Herd, Zusatzteile um Wasser richtig anschließen zu können extra
Derzeitiger Stand:
Anders als bei Angelikas Plan
planrechts (Herdseite):

  • haben Kühlgefrierkombi und Vorratsschrank die Plätze getauscht und
  • ist über der Kühlgefrierkombi kein Schrank-Aufsatz.
  • ohne DAH (er hat mir eine Turboair etu 4025 vorgeschlagen: B 90 cm, 2x40w Glühlampen, 210 w Anschlusswert, Abluftleistung freiblasend:450m[SUP]3[/SUP]/h bei Anschlussstutzen 125 mm). Hier habe ich eine Frage: Wenn die DAH auf diese Seite kommt, gibt es da ja keine Steckdose in entsprechender Höhe. Wie löst man dieses Problem?
planlinks (Wasserseite) :
  • es sind 4 Oberschränke à 60 cm dazu gekommen H 72cm, 2 Einlegeböden,
  • geht die APL zusätzlich noch am Kamin vorbei, bis an die Zimmerwand (Türseite).

Hochschrank : B 50 cm H: 214, mit Sockel glaube ich 219 cm
Spüle von Franke ; 1 tiefes Becken, in das auch Backbleche gut passen, macht mir stabilen Eindruck, Typ weiß ich noch nicht

Elektrogeräte:
Kochfeld: Bauknecht Lightronic ETPI 8640
Einbaubackofen: BLPM 8100
Habe so gut wie nichts über diese Geräte herausgefunden. Bei den Schweizern scheint Bauknecht stärker vertreten, dort findet man mehr Bauknecht-Seiten.

Was meint ihr zum Angebot?
Fritzi
 
AW: Mietwohnung - Neue Küche - Budget bis ca. 4000,-€

Das hört sich doch gut an.

Wenn du eh den Elektriker für die Herdkabelverlegung rufst, dann soll er prüfen, wie er da eine Steckdose oben hinbekommen kann.

Die Alternative war ja auch zunächst ohne DAH, da eh nur Umluft und das Budget nicht übergroß ist.

Zum Kochfeld, da mußt du überlegen, ob du 2 so kleine Kochstellen (Größenangaben fehlen ja, ich vermute 14 cm und die anderen beiden 20 cm) gebrauchen kannst. Und mir wäre wenigstens eine größere Kochstelle weiter vorne wichtig. Vielleicht hat dein KFB da ja noch andere preiswerte Induktionsvarianten.

Die Daten zum Backofen (mit Pyrolyse :top:) lesen sich auf jeden Fall gut.

Die Idee, die APL bis zur Tür vorzuziehen lohnt sich auch. Da sollte man vielleicht sogar prüfen, ob da ein 60 cm breiter Schrank in Hängeschranktiefe mit Drehtür paßt. Platz für Waschmittel, Fleckentferner usw. Dann ist so etwas nicht in den Küchenschränken und das da vorne eher deine "Waschecke" ;-)
 
AW: Mietwohnung - Neue Küche - Budget bis ca. 4000,-€

Hallo Kerstin,
da hast du recht - große Kochstellen und mindestens 1 davon vorne ist praktisch(er).
Deine Idee vor dem Kamin einen Wandschrank zu platzieren ist super :top:. Das wäre ein feiner Platz für Waschmittel etc. Werde ich mich gleich erkundigen.
Fritzi
 
AW: Mietwohnung - Neue Küche - Budget bis ca. 4000,-€

Jetzt habe ich einmal mit dem IKEA -Planer die Küche geplant.

IKEA bietet mir 2 riesengroße Vorteile, dass

  • ich die Küche relativ günstig verändern/erweitern könnte; im Küchenhaus wird das -wenn ich es richtig verstanden habe- so teuer, dass sich eine Änderung oftmals nicht lohnt und
  • ich könnte die Elektrogeräte meiner Wahl verwenden.

Wenn ich bei IKEA nicht einiges vergessen habe, käme mich eine IKEA-Küche im Grund nicht teurer als die Burger-Küche.
lt. meiner IKEA-Planung (mit 92er-Oberschränken: ca.2000,-) mit 70er-Oberschränken: 1950,-
IKEA APL: Prägel Eiche Nachb. 186: 35,- + maßgefert. Personlig 3,10mx51,-) 160,-
Lieferung+Montage (lt. Ikea in meiner Nähe) 990,-
Ergänzung vom 18.08.12: Die 990,- gelten nur ab einem bestimmten Kücheneinkaufswert. Fritzi
Elektrogeräte (BO+Kochfeld): ca. 1200,- (Geräte unten verlinkt)
+ Montage meiner eigenen Geräte ?
Summe: ca. 4350,- Dann ändert sich diese Summe auch. Muss aber genaue Montagekosten noch erkunden.
Problem: Meine eigenen Geräte wären noch nicht eingebaut. Kosten?

Ein großer Nachteil ist:
Den Hochschrank zwischen Kühlgefrierkombi und Hochschrank für Elektrogeräte kann ich bei IKEA nur 40 cm breit planen. Für einen Vorratsschrank mickrig.

Elektrogeräte:
BO: Siemens HB63AB521 oder Neff Mega BP1542N
Kochfeld: Siemens EH675MN11E oder Neff T44T43N0

Es ist schon nicht schlecht, wenn man die Option hat seine Küchenmöbel nach Bedarf zu ändern und erweitern. Auch kommen Neff und Siemens in den Foren besser weg, als Bauknecht .

Habe ich etwas Wesentliches übersehen und habt Ihr eine Idee, wie das 40-er-Hochschrank-Problem lösen könnte?

Liebe Grüße
Fritzi
 

Anhänge

  • ikea 3.PNG
    ikea 3.PNG
    17,9 KB · Aufrufe: 188
  • ikea 1.PNG
    ikea 1.PNG
    222,6 KB · Aufrufe: 206
  • ikea 2.PNG
    ikea 2.PNG
    222,7 KB · Aufrufe: 186
  • ikea Hochschrankseite.jpg
    ikea Hochschrankseite.jpg
    19,3 KB · Aufrufe: 144
  • ikea wasserseite.jpg
    ikea wasserseite.jpg
    20,2 KB · Aufrufe: 148
Zuletzt bearbeitet:
AW: Mietwohnung - Neue Küche - Budget bis ca. 4000,-€

Hallo,
ich möchte mir noch ein Angebot einholen das dem Plan in #5 (Angelikas Plan) entspricht, aber anstatt der beiden 70 oder 92 cm langen und 40 cm hohen Wandschränke höhere Wandschränke hat. Sonst reicht mir der Stauraum nicht.
Also auf der Wasserseite 4 Wandschränke je 60 cm breit und 92 cm hoch oder erdrückt einen das? Damit es nicht so klobig aussieht, die beiden mittleren mit einer andersfarbigen Tür?

Viele Grüße
Fritzi
 
AW: Mietwohnung - Neue Küche - Budget bis ca. 4000,-€

Du musst bedenken, dass du auch bei höheren Wandschränken nur an das erste bzw. zweite Regal kommst....für alles andere musst du dir eine Leiter holen...

Ansonsten warum nicht?

Mit ner anderen Farbe...hmmmm, ich denke, dass ist eine Geschmacksfrage....ich finde, dass es meist gestückelt aussieht...
 
AW: Mietwohnung - Neue Küche - Budget bis ca. 4000,-€

In so einer schmalen Küche, würde ich bei einer Farbe bleiben, mehrfarbig wirkt da nicht, finde ich. Ich würde sie auch möglichst hell wählen, damit es nicht erdrückend wirkt.
 

Ähnliche Beiträge

Neff Hausgeräte Ballerina Küchen Blum Bewegungstechnologie Weibel - Intelligente Küchenlüftung

Neff Spezial

Blum Zonenplaner

Weibel Abluft-Tuning

Weibel Abluft-Tuning
Zurück
Oben