Iba
Mitglied
- Beiträge
- 3
Titel des Themas: Küchenplanungsfrischling sucht Rat: Küche für Mietwohnung
Hallo zusammen,
anlässlich meiner Recherchen zum bevorstehenden Küchenkauf bin ich auf dieses hervorragende Forum gestossen. Weil ich die Planung (mangels Zeit und Wissen ) möglichst effizient gestalten möchte hoffe ich von Eurer geballten Erfahrung Gebrauch machen zu dürfen.
Ich bin gerade in eine neue Mietwohnung gezogen – Altbau, komplett renoviert, jedoch ohne Küche.
Bei der Planung schwanke ich zwischen Budget so gering wie möglich halten (werde dort vermutlich nur ein paar Jahre bleiben) und trotzdem gute Qualität kaufen. Hier hoffe ich auch auf Tipps Eurerseits.
Unten mal die Checkliste und ein paar erste Überlegungen.
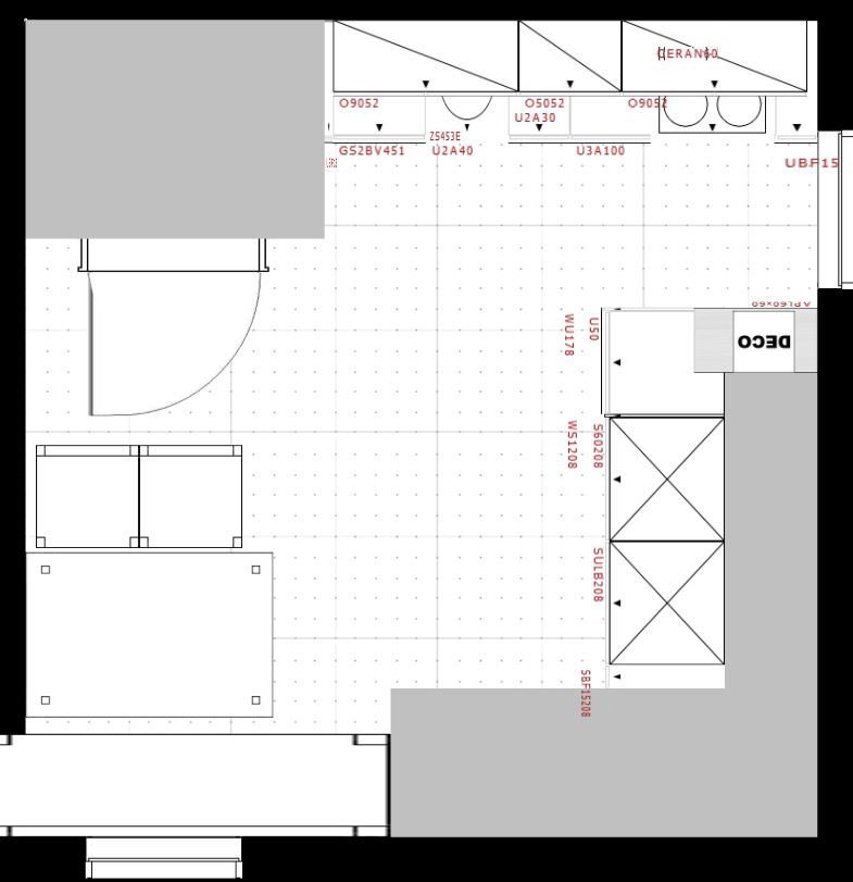
Der Vermieter hat mal wegen der Anschlüsse eine Planung von einem Küchenstudio erstellen lassen (diese anbei – ACHTUNG veraltete Masse, es wurde eine zusätzliche Wandisolierung eingezogen, dadurch jetzt weniger Platz).
Durch die Anordnung der Anschlüsse/Steckdosen ist nach meinem Eindruck relativ wenig Spielraum. Ich habe auf Basis der neuen Grundrissmasse schon mal mit dem Alno -Planer herumgespielt (anbei) und habe einige Elemente mehr nach meinen Vorstellungen angeordnet (bitte Sinnhaftigkeit gerne hinterfragen, ich bin hier blutiger Anfänger): z.B. Spülbecken weg von der Wand + gedreht.
Von links nach rechts:
45 Spülmaschine
45 Unterschrank mit Spüle
40 Unterschrank
60 Herd/Backofen
30 Unterschrank (evtl. wäre hier ein 40er drin – bin aber nicht sicher)
Oberschränke analog, falls möglich Oberschrank mit integriertem Dunstabzug (ggf. auch Kostenfrage)
Dies lediglich als Grobplanung, um zu schauen, was Platz hat. Über die Details und Innenleben habe ich mir noch keine Gedanken gemacht.
Was ich etwas «holprig» finde ist das Einzelelement/Unterschrank neben dem in meiner Planung freistehenden Kühlschrank. So vom Küchenstudio übernommen, da mir gerade auch noch nichts Besseres einfällt. Hier könnte aber statt dessen ein IKEA Teil hin, in Kombi mit dem freistehenden Kühlschrank.
Alternativ wäre eine integrierte Kühl-/Gefrierkombi als Unterschrank statt Hochschrank denkbar (= mehr Arbeitsfläche statt mehr Stauraum).
Da ich den Post in mehreren Etappen geschrieben habe, hoffe ich habe mich nicht wiederholt und alles ist einigermassen stringent und verständlich...
Vielen Dank frü jegliche Tipps und Hinweise.
Iba
Checkliste zur Küchenplanung
Personenkriterien und Ergonomie
Anzahl Personen im Haushalt: 1
Davon Kinder: keine
Körpergrößen aller Hauptbenutzer in cm (wegen Arbeitshöhe ): 160
Welche Arbeitshöhe ist angedacht (in cm)?: soll nicht auf meine Grösse angepasst werden
Gebäudekriterien
Art des Gebäudes: Bestandsbau > Umbauten ausgeschlossen, Miete
Brüstungshöhe des Fensters (in cm): ca. 118 cm
Fensterhöhe (in cm): ca 95 cm
Raumhöhe in cm: 250 cm
Heizung: Heizkörper wie im Grundriss
Sanitäranschlüsse: fix
Einbaugerätekriterien
Ausführung Kühlgerät: Integriert im Hochschrank (60cm)
Einbaukühlgerät Größe: Noch unbekannt
Ausführung Tiefkühl (TK)-Gerät: Im Kühlschrank bis 2 Schubladen unten
Dunstabzugshaube: Umluft
Hochgebauter Backofen : nein
Geplante Heißgeräte: Backofen
Hochgebauter Geschirrspüler : nein
Art des Kochfeldes: Ceran (herkömmliche Beheizung)
Kochfeldbreite (ca. in cm): 60 - ggf auch Induktion
Sitzmöglichkeiten
Sitzmöglichkeit in der Küche / im Küchenbereich: Separater Tisch
Sitzmöglichkeit: Für wieviel Personen?: Für 4 Personen
Sitzmöglichkeit: Tisch - wenn gesonderter Tisch oder offene Küche: Wird nach Bedarf neu gekauft
Gewünschte oder vorhandene Tischgröße: 80 x120
Wofür soll der Sitzplatz in der Küche genutzt werden und wie häufig: täglich für Frühstück und Abendessen, am Wochenende für alle Mahlzeiten, ggf. am Wochenende/Abends als «Arbeitsplatz»
Stauraumplanung
Was steht auf der Arbeitsplatte oder soll dort stehen?: Wasserkocher, Messerblock, Brotbehälter, Obstschale, Sonstiges (evtl. im Beitragstext benennen)
Welche weiteren Küchenmaschinen müssen in der Küche untergebracht werden: Handrührgerät, Mixer, Pürierstab, Eierkocher
Was soll in der Küche außer den Standards untergebracht werden: ALLE Vorräte, Geschirr komplett (nichts in Ess-/Wohnzimmer)
Welchen Stauraum gibt es sonst noch: Keller
Kochgewohnheiten
Was/wie wird gekocht? (Alltagsküche, Menüs, Snacks usw): täglich Frühstück, meistens kaltes Abendessen, am Wochenende wird häufig ausgiebiger gekocht und gebacken.
Wie häufig wird gekocht: (fast) täglich 1x warm
Wird alleine gekocht? Oder auch gemeinsam? Mit und für Gäste?: allein, hin und wieder (alle 1-2 Monate) mit/für Gäste
Spülen und Müll
Spülenform: 1 Becken mit Abtropffläche
Welche Mülltrennung soll in der Küche vorgehalten werden: Biomüll, Gelber Sack Müll, Restmüll
Sonstiges
Steht schon ein Küchenhersteller fest oder wird bevorzugt: nicht festgelegt – mittleres Preissegment, gerne auch günstigere Hersteller, wenn die Qualität stimmt; IKEA eher nicht für die Küchenzeile, ggf. für zusätzliche Arbeitsfläche (Kücheninsel, Servierwagen)
Steht schon ein Gerätehersteller fest oder wird bevorzugt: bevorzugt wären Siemens , Bosch , AEG - offen für Tipps, falls es günstigere Marken mit guter Qualität gibt
Küchenstil: Landhausküche
Was stört an der bisherigen Küche und was soll die neue Küche unbedingt können? Warum?: Soll zum Holzdielenboden passen, mir schwebt ausserdem ein schöner massiver Holztisch für die Sitzecke vor, Sitzecke soll so gestaltet werden, dass man sich auch abseits vom Essen gerne dort aufhält – ich denke es würde eine Art modernerer Landhausstil passen, hell, warm, gemütlich.
Grosszügige und unempfindliche Arbeitsfläche, aktuell besteht die Tendenz Arbeitsfläche zuzustellen mit Kleingeräten, Öl/Essigflaschen und was sonst noch so täglich in Reichweite sein soll. Das lässt sich ggf. auch über smartere Nutzung von Stauraum lösen.
Unempfindliche, leicht zu reinigende Oberflächen inkl Fronten und Rückwand/Spritzschutz.
Auszüge statt Türen wäre schon, soweit bei den schmaleren Massen und Preisvorstellungen möglich.
Stauraum oben (Oberschränke) sollte sich zum grössten Teil in Reichweite befinden (in Bezug auf meine Körpergrösse).
Anordnung möglichst praktisch, effizient und pflegeleicht
Da Kochen und Backen für mich «Freizeitvergnügen» ist und ich gerne auch mal was ausprobiere sind mir gute Geräte + ausreichend Arbeitsfläche trotz Single-Haushalt und verhältnismässig geringem «Kochaufkommen» wichtig
Preisvorstellung (Budget): ): suche nach dem optimale Preis-/Leistungsverhältnis, um meine Vorstellungen einigermassen umzusetzen zu können, da es aber eine Mietwohnung ist sollen die Kosten möglichst gering bleiben. Habe aktuell noch überhaupt keine Ahnung würde aber max. 4000-5000 inkl. Geräte anpeilen, falls nicht komplett unrealistisch
Angehängte Dateien
Hallo zusammen,
anlässlich meiner Recherchen zum bevorstehenden Küchenkauf bin ich auf dieses hervorragende Forum gestossen. Weil ich die Planung (mangels Zeit und Wissen ) möglichst effizient gestalten möchte hoffe ich von Eurer geballten Erfahrung Gebrauch machen zu dürfen.
Ich bin gerade in eine neue Mietwohnung gezogen – Altbau, komplett renoviert, jedoch ohne Küche.
Bei der Planung schwanke ich zwischen Budget so gering wie möglich halten (werde dort vermutlich nur ein paar Jahre bleiben) und trotzdem gute Qualität kaufen. Hier hoffe ich auch auf Tipps Eurerseits.
Unten mal die Checkliste und ein paar erste Überlegungen.
Der Vermieter hat mal wegen der Anschlüsse eine Planung von einem Küchenstudio erstellen lassen (diese anbei – ACHTUNG veraltete Masse, es wurde eine zusätzliche Wandisolierung eingezogen, dadurch jetzt weniger Platz).
Durch die Anordnung der Anschlüsse/Steckdosen ist nach meinem Eindruck relativ wenig Spielraum. Ich habe auf Basis der neuen Grundrissmasse schon mal mit dem Alno -Planer herumgespielt (anbei) und habe einige Elemente mehr nach meinen Vorstellungen angeordnet (bitte Sinnhaftigkeit gerne hinterfragen, ich bin hier blutiger Anfänger): z.B. Spülbecken weg von der Wand + gedreht.
Von links nach rechts:
45 Spülmaschine
45 Unterschrank mit Spüle
40 Unterschrank
60 Herd/Backofen
30 Unterschrank (evtl. wäre hier ein 40er drin – bin aber nicht sicher)
Oberschränke analog, falls möglich Oberschrank mit integriertem Dunstabzug (ggf. auch Kostenfrage)
Dies lediglich als Grobplanung, um zu schauen, was Platz hat. Über die Details und Innenleben habe ich mir noch keine Gedanken gemacht.
Was ich etwas «holprig» finde ist das Einzelelement/Unterschrank neben dem in meiner Planung freistehenden Kühlschrank. So vom Küchenstudio übernommen, da mir gerade auch noch nichts Besseres einfällt. Hier könnte aber statt dessen ein IKEA Teil hin, in Kombi mit dem freistehenden Kühlschrank.
Alternativ wäre eine integrierte Kühl-/Gefrierkombi als Unterschrank statt Hochschrank denkbar (= mehr Arbeitsfläche statt mehr Stauraum).
Da ich den Post in mehreren Etappen geschrieben habe, hoffe ich habe mich nicht wiederholt und alles ist einigermassen stringent und verständlich...
Vielen Dank frü jegliche Tipps und Hinweise.
Iba
Checkliste zur Küchenplanung
Personenkriterien und Ergonomie
Anzahl Personen im Haushalt: 1
Davon Kinder: keine
Körpergrößen aller Hauptbenutzer in cm (wegen Arbeitshöhe ): 160
Welche Arbeitshöhe ist angedacht (in cm)?: soll nicht auf meine Grösse angepasst werden
Gebäudekriterien
Art des Gebäudes: Bestandsbau > Umbauten ausgeschlossen, Miete
Brüstungshöhe des Fensters (in cm): ca. 118 cm
Fensterhöhe (in cm): ca 95 cm
Raumhöhe in cm: 250 cm
Heizung: Heizkörper wie im Grundriss
Sanitäranschlüsse: fix
Einbaugerätekriterien
Ausführung Kühlgerät: Integriert im Hochschrank (60cm)
Einbaukühlgerät Größe: Noch unbekannt
Ausführung Tiefkühl (TK)-Gerät: Im Kühlschrank bis 2 Schubladen unten
Dunstabzugshaube: Umluft
Hochgebauter Backofen : nein
Geplante Heißgeräte: Backofen
Hochgebauter Geschirrspüler : nein
Art des Kochfeldes: Ceran (herkömmliche Beheizung)
Kochfeldbreite (ca. in cm): 60 - ggf auch Induktion
Sitzmöglichkeiten
Sitzmöglichkeit in der Küche / im Küchenbereich: Separater Tisch
Sitzmöglichkeit: Für wieviel Personen?: Für 4 Personen
Sitzmöglichkeit: Tisch - wenn gesonderter Tisch oder offene Küche: Wird nach Bedarf neu gekauft
Gewünschte oder vorhandene Tischgröße: 80 x120
Wofür soll der Sitzplatz in der Küche genutzt werden und wie häufig: täglich für Frühstück und Abendessen, am Wochenende für alle Mahlzeiten, ggf. am Wochenende/Abends als «Arbeitsplatz»
Stauraumplanung
Was steht auf der Arbeitsplatte oder soll dort stehen?: Wasserkocher, Messerblock, Brotbehälter, Obstschale, Sonstiges (evtl. im Beitragstext benennen)
Welche weiteren Küchenmaschinen müssen in der Küche untergebracht werden: Handrührgerät, Mixer, Pürierstab, Eierkocher
Was soll in der Küche außer den Standards untergebracht werden: ALLE Vorräte, Geschirr komplett (nichts in Ess-/Wohnzimmer)
Welchen Stauraum gibt es sonst noch: Keller
Kochgewohnheiten
Was/wie wird gekocht? (Alltagsküche, Menüs, Snacks usw): täglich Frühstück, meistens kaltes Abendessen, am Wochenende wird häufig ausgiebiger gekocht und gebacken.
Wie häufig wird gekocht: (fast) täglich 1x warm
Wird alleine gekocht? Oder auch gemeinsam? Mit und für Gäste?: allein, hin und wieder (alle 1-2 Monate) mit/für Gäste
Spülen und Müll
Spülenform: 1 Becken mit Abtropffläche
Welche Mülltrennung soll in der Küche vorgehalten werden: Biomüll, Gelber Sack Müll, Restmüll
Sonstiges
Steht schon ein Küchenhersteller fest oder wird bevorzugt: nicht festgelegt – mittleres Preissegment, gerne auch günstigere Hersteller, wenn die Qualität stimmt; IKEA eher nicht für die Küchenzeile, ggf. für zusätzliche Arbeitsfläche (Kücheninsel, Servierwagen)
Steht schon ein Gerätehersteller fest oder wird bevorzugt: bevorzugt wären Siemens , Bosch , AEG - offen für Tipps, falls es günstigere Marken mit guter Qualität gibt
Küchenstil: Landhausküche
Was stört an der bisherigen Küche und was soll die neue Küche unbedingt können? Warum?: Soll zum Holzdielenboden passen, mir schwebt ausserdem ein schöner massiver Holztisch für die Sitzecke vor, Sitzecke soll so gestaltet werden, dass man sich auch abseits vom Essen gerne dort aufhält – ich denke es würde eine Art modernerer Landhausstil passen, hell, warm, gemütlich.
Grosszügige und unempfindliche Arbeitsfläche, aktuell besteht die Tendenz Arbeitsfläche zuzustellen mit Kleingeräten, Öl/Essigflaschen und was sonst noch so täglich in Reichweite sein soll. Das lässt sich ggf. auch über smartere Nutzung von Stauraum lösen.
Unempfindliche, leicht zu reinigende Oberflächen inkl Fronten und Rückwand/Spritzschutz.
Auszüge statt Türen wäre schon, soweit bei den schmaleren Massen und Preisvorstellungen möglich.
Stauraum oben (Oberschränke) sollte sich zum grössten Teil in Reichweite befinden (in Bezug auf meine Körpergrösse).
Anordnung möglichst praktisch, effizient und pflegeleicht
Da Kochen und Backen für mich «Freizeitvergnügen» ist und ich gerne auch mal was ausprobiere sind mir gute Geräte + ausreichend Arbeitsfläche trotz Single-Haushalt und verhältnismässig geringem «Kochaufkommen» wichtig
Preisvorstellung (Budget): ): suche nach dem optimale Preis-/Leistungsverhältnis, um meine Vorstellungen einigermassen umzusetzen zu können, da es aber eine Mietwohnung ist sollen die Kosten möglichst gering bleiben. Habe aktuell noch überhaupt keine Ahnung würde aber max. 4000-5000 inkl. Geräte anpeilen, falls nicht komplett unrealistisch
Angehängte Dateien
Anhänge
-
PLAN1.KPL3,6 KB · Aufrufe: 159
-
PLAN1.POS5,4 KB · Aufrufe: 159
-
Grundriss[1403]_kopie.jpg90,1 KB · Aufrufe: 241 -
Foto Küche 1.jpg45,2 KB · Aufrufe: 253 -
Foto Küche 2.jpg65,8 KB · Aufrufe: 239 -
Planung Studio 1_Küchenzeile und Anschlüsse.jpg75,2 KB · Aufrufe: 241 -
Planung Studio 2.jpg57,6 KB · Aufrufe: 220 -
Planung Studio_Küchengrundriss alte Masse.jpg87,2 KB · Aufrufe: 228
