alcazar
Mitglied
- Beiträge
- 9
Titel des Themas: Küchenplanung - Mietswohnung
Hallo,
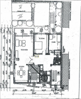
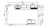
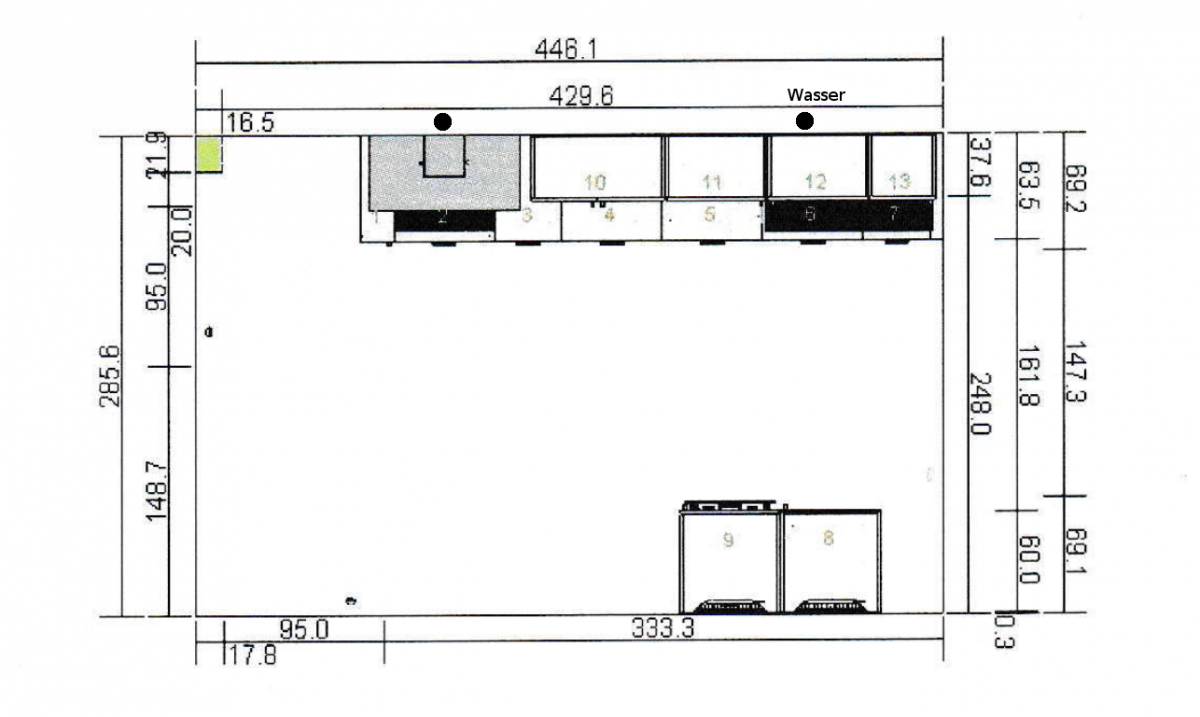
ich beziehe in 2 Monaten eine neue Wohnung und benötige eine neue Küche. Ich habe leider noch kein vollständiges Aufmaß. Von der Vormietern habe ich den Grundriss, den ich hier anhänge und zwei Fotos von der leeren Küche von beiden Seiten. Der Raum ist 285 x 446 cm. Er hat zwei Türen mit einer Breite von 95 cm (zur Diele und zum Wohnzimmer) und ein Fenster mit einer Breite von 161 cm. Heizkörper ist unter der Fensterbank, die ca. 5 cm in den Raum ragt - Höhe ca. 75 cm. Es gibt ein Abluftloch - allerdings nur 10 cm - d.h. wir müssten eine Umluftabzugshaube verwenden. Der Wasseranschluss befindet sich auf der oberen Wandseite bei ca. 90 cm. Steckdosen sind leider auch eher spärlich im Bereich des Arbeitsfeldes untergebracht - es gibt auf der oberen Seite eine 3er Steckdose - auf der rechten Seite gibt es zwei 3er Steckdosen. In der Küche ist noch ein 16,5 x 21,9 cm Versorgungsschacht links von der Tür.
In der Wohnung selber ist relativ wenig Stauraum, d.h. alles was es an Kochutensilien und Vorrat gibt, muss mit in der Küche untergebracht werden.
Darüber hinaus würde ich gerne eine Sitz- und Essgelegenheit für 2 - 3 Personen (hiervon 1 Kind) in der Küche schaffen.
Wir waren jetzt in diversen Küchenstudios und haben primär Nobiliaküchen (Preisgruppe 1) und eine Störmerküche geplant bekommen - jeweils mit einem hohen Korpus von 78 cm, Sockel bei 10 cm, Arbeitsplatte bei 3,8 - 4 cm - Oberschränke zwischen 73 und 78 cm.
Wir sind aktuell grob bei folgender Aufteilung angekommen:
obere Seite:
1x offenes Regal mit 2 Einlegeböden - ca. 90cm
1x 3er Auszugsschrank - 90cm mit 60er Glaskeramikkochfeld, welches aus meiner alten Küche übernommen werden soll
1x 3er Auszugsschrank - 90cm
1x 3er Auszugsschrank - 90cm mit Spüle und Mülltrennsystem
1x 60cm Geschirrspüler - integriert
Passleiste
Oberschränke:
2x Wandboard - ca. 90cm
1x Dunstabzugshaubenschrank - aktuell als Klapptürschrank geplant - 90cm
4x 60er Schränke - Empfehlung wegen besserer Gewichtsverteilung bei den Einlegeböden
untere Seite: ab der Tür:
Tischplatte (75 cm x 140 cm)
1x offenes Regal (40x35) - für Lagerung der Getränke gedacht
1x 3er Auszugsschrank - 80 cm
1x 3er Auszugsschrank - 60 cm
1x Apothekerschrank - 30 cm
1x freistehender Kühlschrank aus meiner aktuellen Küche - ca. 60 cm
Oberschränke:
offenes Regal - 30 cm
Oberschrank - 80 cm
Hochschrank - Hochgebauter Backofen + Mikrowelle + Oberschrank
Apothekerschrank
Kühlschrank
Ich frag mich, ob das Konzept und die Anordnung der Schränke die beste Lösung ist - insbesondere ob die kombinierte Arbeits-/Essplatte auf der unteren Seite so sinnvoll und praktikabel sind.
Außerdem plage ich mich mit dem Apothekerschrank nach dem Lesen der Einträge hier und frage mich, ob ein 40er Hochschrank mit Innenschubladen nicht doch sinnvoller vom Verstauen von Vorräten für mich wäre.
Ich würde gerne die Preisangebote aktuell auch noch etwas reduziert bekommen (liegen mit einfacher Spüle, Geschirrspüler und Dunstabzugshaube, sowie Beleuchtung und Steckdosen) im Bereich 7100 - 7900 Euro. Einsparmöglichkeiten sähe ich zum Beispiel bei dem Dunstabzugshaubenschrank - wenn man hier auch auf einen "normalen" Schrank mit zwei Türen wechselt anstelle des Klapptürschrankes.
Bin über jedes Feedback und Ideen noch dankbar.
Checkliste zur Küchenplanung
Personenkriterien und Ergonomie
Anzahl Personen im Haushalt: 3
Davon Kinder: 1
Körpergrößen aller Hauptbenutzer in cm (wegen Arbeitshöhe ): 183 und 175
Welche Arbeitshöhe ist angedacht (in cm)?: 94
Gebäudekriterien
Art des Gebäudes: Miete
Brüstungshöhe des Fensters (in cm):
Fensterhöhe (in cm):
Raumhöhe in cm: 250
Heizung: Heizkörper wie im Grundriss
Sanitäranschlüsse: fix
Einbaugerätekriterien
Ausführung Kühlgerät: Stand-Alone bis 60cm Breite
Einbaukühlgerät Größe: N. a.
Ausführung Tiefkühl (TK)-Gerät: Im Kühlschrank ab 3 Schubladen unten
Dunstabzugshaube: Umluft
Hochgebauter Backofen : wenn möglich
Geplante Heißgeräte: Einbaumikrowelle, Backofen
Hochgebauter Geschirrspüler : nein
Art des Kochfeldes: Ceran (herkömmliche Beheizung)
Kochfeldbreite (ca. in cm): 60
Sitzmöglichkeiten
Sitzmöglichkeit in der Küche / im Küchenbereich: Überstehende Arbeitsplatte
Sitzmöglichkeit: Für wieviel Personen?: Für 3 Personen
Sitzmöglichkeit: Tisch - wenn gesonderter Tisch oder offene Küche: N. a.
Gewünschte oder vorhandene Tischgröße:
Wofür soll der Sitzplatz in der Küche genutzt werden und wie häufig: Vorbereitung
Frühstück / teils Abendessen
Stauraumplanung
Was steht auf der Arbeitsplatte oder soll dort stehen?: Wasserkocher, Messerblock
Welche weiteren Küchenmaschinen müssen in der Küche untergebracht werden: Mixer, Pürierstab
Was soll in der Küche außer den Standards untergebracht werden: Getränkekisten, Geschirr komplett (nichts in Ess-/Wohnzimmer)
Welchen Stauraum gibt es sonst noch: Keller
Kochgewohnheiten
Was/wie wird gekocht? (Alltagsküche, Menüs, Snacks usw): Alltagsküche mit frischem Obst / Gemüse
Wie häufig wird gekocht: (fast) täglich 1x warm
Wird alleine gekocht? Oder auch gemeinsam? Mit und für Gäste?: Überwiegend alleine, ab und an Hilfe durch Tochter / Freundin
Spülen und Müll
Spülenform: 1 Becken mit Abtropffläche
Welche Mülltrennung soll in der Küche vorgehalten werden: Altglas, Altpapier, Biomüll, Gelber Sack Müll, Restmüll
Sonstiges
Steht schon ein Küchenhersteller fest oder wird bevorzugt:
Steht schon ein Gerätehersteller fest oder wird bevorzugt:
Küchenstil: Klassisch
Was stört an der bisherigen Küche und was soll die neue Küche unbedingt können? Warum?:
Preisvorstellung (Budget): 7000
Angehängte Dateien
Hallo,
ich beziehe in 2 Monaten eine neue Wohnung und benötige eine neue Küche. Ich habe leider noch kein vollständiges Aufmaß. Von der Vormietern habe ich den Grundriss, den ich hier anhänge und zwei Fotos von der leeren Küche von beiden Seiten. Der Raum ist 285 x 446 cm. Er hat zwei Türen mit einer Breite von 95 cm (zur Diele und zum Wohnzimmer) und ein Fenster mit einer Breite von 161 cm. Heizkörper ist unter der Fensterbank, die ca. 5 cm in den Raum ragt - Höhe ca. 75 cm. Es gibt ein Abluftloch - allerdings nur 10 cm - d.h. wir müssten eine Umluftabzugshaube verwenden. Der Wasseranschluss befindet sich auf der oberen Wandseite bei ca. 90 cm. Steckdosen sind leider auch eher spärlich im Bereich des Arbeitsfeldes untergebracht - es gibt auf der oberen Seite eine 3er Steckdose - auf der rechten Seite gibt es zwei 3er Steckdosen. In der Küche ist noch ein 16,5 x 21,9 cm Versorgungsschacht links von der Tür.
In der Wohnung selber ist relativ wenig Stauraum, d.h. alles was es an Kochutensilien und Vorrat gibt, muss mit in der Küche untergebracht werden.
Darüber hinaus würde ich gerne eine Sitz- und Essgelegenheit für 2 - 3 Personen (hiervon 1 Kind) in der Küche schaffen.
Wir waren jetzt in diversen Küchenstudios und haben primär Nobiliaküchen (Preisgruppe 1) und eine Störmerküche geplant bekommen - jeweils mit einem hohen Korpus von 78 cm, Sockel bei 10 cm, Arbeitsplatte bei 3,8 - 4 cm - Oberschränke zwischen 73 und 78 cm.
Wir sind aktuell grob bei folgender Aufteilung angekommen:
obere Seite:
1x offenes Regal mit 2 Einlegeböden - ca. 90cm
1x 3er Auszugsschrank - 90cm mit 60er Glaskeramikkochfeld, welches aus meiner alten Küche übernommen werden soll
1x 3er Auszugsschrank - 90cm
1x 3er Auszugsschrank - 90cm mit Spüle und Mülltrennsystem
1x 60cm Geschirrspüler - integriert
Passleiste
Oberschränke:
2x Wandboard - ca. 90cm
1x Dunstabzugshaubenschrank - aktuell als Klapptürschrank geplant - 90cm
4x 60er Schränke - Empfehlung wegen besserer Gewichtsverteilung bei den Einlegeböden
untere Seite: ab der Tür:
Tischplatte (75 cm x 140 cm)
1x offenes Regal (40x35) - für Lagerung der Getränke gedacht
1x 3er Auszugsschrank - 80 cm
1x 3er Auszugsschrank - 60 cm
1x Apothekerschrank - 30 cm
1x freistehender Kühlschrank aus meiner aktuellen Küche - ca. 60 cm
Oberschränke:
offenes Regal - 30 cm
Oberschrank - 80 cm
Hochschrank - Hochgebauter Backofen + Mikrowelle + Oberschrank
Apothekerschrank
Kühlschrank
Ich frag mich, ob das Konzept und die Anordnung der Schränke die beste Lösung ist - insbesondere ob die kombinierte Arbeits-/Essplatte auf der unteren Seite so sinnvoll und praktikabel sind.
Außerdem plage ich mich mit dem Apothekerschrank nach dem Lesen der Einträge hier und frage mich, ob ein 40er Hochschrank mit Innenschubladen nicht doch sinnvoller vom Verstauen von Vorräten für mich wäre.
Ich würde gerne die Preisangebote aktuell auch noch etwas reduziert bekommen (liegen mit einfacher Spüle, Geschirrspüler und Dunstabzugshaube, sowie Beleuchtung und Steckdosen) im Bereich 7100 - 7900 Euro. Einsparmöglichkeiten sähe ich zum Beispiel bei dem Dunstabzugshaubenschrank - wenn man hier auch auf einen "normalen" Schrank mit zwei Türen wechselt anstelle des Klapptürschrankes.
Bin über jedes Feedback und Ideen noch dankbar.
Checkliste zur Küchenplanung
Personenkriterien und Ergonomie
Anzahl Personen im Haushalt: 3
Davon Kinder: 1
Körpergrößen aller Hauptbenutzer in cm (wegen Arbeitshöhe ): 183 und 175
Welche Arbeitshöhe ist angedacht (in cm)?: 94
Gebäudekriterien
Art des Gebäudes: Miete
Brüstungshöhe des Fensters (in cm):
Fensterhöhe (in cm):
Raumhöhe in cm: 250
Heizung: Heizkörper wie im Grundriss
Sanitäranschlüsse: fix
Einbaugerätekriterien
Ausführung Kühlgerät: Stand-Alone bis 60cm Breite
Einbaukühlgerät Größe: N. a.
Ausführung Tiefkühl (TK)-Gerät: Im Kühlschrank ab 3 Schubladen unten
Dunstabzugshaube: Umluft
Hochgebauter Backofen : wenn möglich
Geplante Heißgeräte: Einbaumikrowelle, Backofen
Hochgebauter Geschirrspüler : nein
Art des Kochfeldes: Ceran (herkömmliche Beheizung)
Kochfeldbreite (ca. in cm): 60
Sitzmöglichkeiten
Sitzmöglichkeit in der Küche / im Küchenbereich: Überstehende Arbeitsplatte
Sitzmöglichkeit: Für wieviel Personen?: Für 3 Personen
Sitzmöglichkeit: Tisch - wenn gesonderter Tisch oder offene Küche: N. a.
Gewünschte oder vorhandene Tischgröße:
Wofür soll der Sitzplatz in der Küche genutzt werden und wie häufig: Vorbereitung
Frühstück / teils Abendessen
Stauraumplanung
Was steht auf der Arbeitsplatte oder soll dort stehen?: Wasserkocher, Messerblock
Welche weiteren Küchenmaschinen müssen in der Küche untergebracht werden: Mixer, Pürierstab
Was soll in der Küche außer den Standards untergebracht werden: Getränkekisten, Geschirr komplett (nichts in Ess-/Wohnzimmer)
Welchen Stauraum gibt es sonst noch: Keller
Kochgewohnheiten
Was/wie wird gekocht? (Alltagsküche, Menüs, Snacks usw): Alltagsküche mit frischem Obst / Gemüse
Wie häufig wird gekocht: (fast) täglich 1x warm
Wird alleine gekocht? Oder auch gemeinsam? Mit und für Gäste?: Überwiegend alleine, ab und an Hilfe durch Tochter / Freundin
Spülen und Müll
Spülenform: 1 Becken mit Abtropffläche
Welche Mülltrennung soll in der Küche vorgehalten werden: Altglas, Altpapier, Biomüll, Gelber Sack Müll, Restmüll
Sonstiges
Steht schon ein Küchenhersteller fest oder wird bevorzugt:
Steht schon ein Gerätehersteller fest oder wird bevorzugt:
Küchenstil: Klassisch
Was stört an der bisherigen Küche und was soll die neue Küche unbedingt können? Warum?:
Preisvorstellung (Budget): 7000
Angehängte Dateien
Anhänge



