Puzzle
Mitglied
- Beiträge
- 15
Hallo liebes Forum,
jetzt ist es passiert - wir haben ein altes Haus gekauft und wollen jetzt natürlich auch eine Küche hineinbauen.
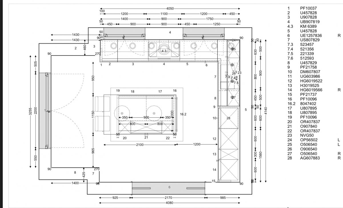
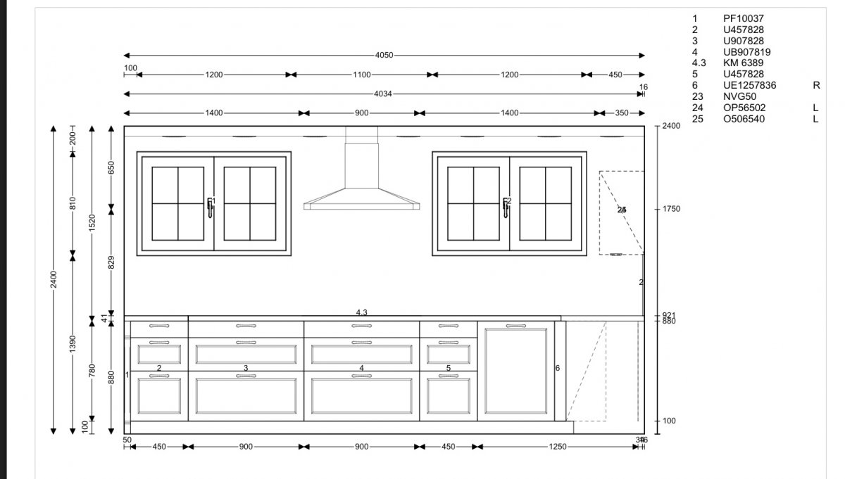
Die Küche kommt in ein altes Wohnzimmer und da früher eher weniger Fenster gebaut wurden planen wir auch zwei zusätzliche Fenster durchzubrechen. Die Fenster beginnen am 1.40m wegen einer hohen Garage nebenan.
Mit den Anschlüssen sind wir (noch) total flexibel.
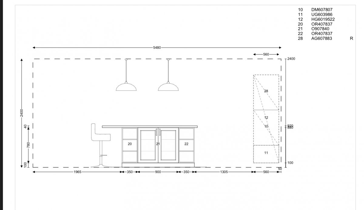
In der Mitte planen wir eine Insel. Die Küche soll gemütlich und ein Kommunikationszentrum werden. Die Kinder machen hier Hausaufgaben, wir kochen hier zusammmen und genießen die gemeinsame Zeit wenn Teile der Familie sich in der Küche aufhalten. Aus diesem Grund haben wir uns eine Insel vorgestellt die zum einen zum Plätzchen backen aber eben auch zum Frühstücken und für gemeinsame Unterhaltungen dienen kann.
Aktuell sind die Sitze an der Stirnseite angeordnet. Das finden wir nicht so toll. Wir überlegen aktuell die Sitzplätze alternativ an der Längsseite mit Rücken zum Wohnzimmer zu installieren, und dann auch 3.
Neben der Küche planen wir noch eine Speisekammer für Konserven, Müll, größerer Geschirr und weitere Vorräte.
Die Kücke soll im modernen Landhausstil sein und wir haben uns für Häcker Küche Modell Bristol in Magniolienfarben entschieden. Die Arbeitsplatte an der Wand ist Keramik und Inselarbeitsplatte ist aus Holz.
Alle Geräte Induktionsherd 90cm, Dunstabzugshaube Weiss, Kombidampfgarer, Backofen mit Pyrolyse und Spülmaschine ist von Miele , der Kühlschrank von Liebherr .
Im Bezug auf das Spülbecken sind wir noch unentschlossen (1 großes oder 2 mittlere). Ein Backblech sollte auf jeden Fall reinpassen.
Der Gesamtpreis vom Küchenstudio ist 40.000 €. Wir finden das sehr teuer bekommen aber gleichzeitig kein Einblick in die Einzelpreise.
Nun wollten wir Sie liebes Forum fragen, was Eure Einschätzung zu unserem Plan ist.
Wir sind für jede Idee sehr dankbar, insbesondere auch wie wir einen niedrigeren Preis erzielen könnten. Leider barg das alte Haus einiges an "Überraschungen" so dass wir jetzt das Budget etwas straffen müssen.
Vielen lieben Dank für Eure Mühe
Olga
Checkliste zur Küchenplanung
Anzahl Personen im Haushalt: 4
Davon Kinder?: 2
Art des Gebäudes?: Neu-/Umbau, Planänderungen möglich
Körpergrössen aller Hauptbenutzer (wegen Arbeitshöhe ) in cm: 185,169
Brüstungshöhe des Fensters (in cm): 140
Fensterhöhe (in cm): 90
Raumhöhe in cm: 240
Heizung: Fussbodenheizung
Sanitäranschlüsse: vollkommen variabel
Ausführung Kühlgerät: Integriert im Hochschrank (60cm)
Kühlgerät Größe: bis 178 cm Höhe
Ausführung Tiefkühl (TK)-Gerät: Nicht erforderlich bzw. steht woanders
Dunstabzugshaube: Abluft
Backofen etc. hochgebaut?: Ja
Hochgebauter Geschirrspüler ?: Ja
Kochfeldart: Induktion
Kochfeldbreite ca. (in cm)?: 90
Spülenform: 1 Becken ohne Abtropffläche
Geplante Heißgeräte: Backofen , Dampfbackofen (DGC) ohne Wasseranschluß
Küchenstil: Landhaus
Sitzmöglichkeit in der Küche / im Küchenbereich: Überstehende Arbeitsplatte
Sitzmöglichkeit: Für wieviel Personen?: für 3 Personen
Sitzmöglichkeit: Tisch - wenn gesonderter Tisch oder offene Küche: Keiner
Gewünschte o. vorhandene Tischgröße:
Wofür soll der Sitzplatz in der Küche genutzt werden? Wie häufig?: - als Gesellschaft wenn jemand kocht
- wenn Gäste zu Besuch sind
- wenn Kinder frühstücken
- zum Plätzchenbacken
- zum Hausaufgaben machen
Welche Arbeitshöhe ist angedacht (in cm)?:
Was steht auf der Arbeitsplatte oder soll dort stehen?: Kaffeemaschine, Wasserkocher, Toaster, Brotbehälter, Obstschale
Welche weiteren Küchenmaschinen müssen in der Küche untergebracht werden?: Mixer, Pürierstab, Eierkocher
Was soll in der Küche außer den Standards untergebracht werden?:
Welchen Stauraum gibt es sonst noch?: Speisekammer, Keller
Was/wie wird gekocht? (Alltagsküche, Menüs, Snacks usw): Wir kochen für die Familie gesund, frisch
Einfache Gerichte, nichts ompliziertes
Aber auch: Aufwärmen von Gerichten vom Vortag
Wie häufig wird gekocht?: (fast) täglich 2x warm
Wird alleine gekocht? Oder auch gemeinsam? Mit und für Gäste?: auch gemeinsam
Was stört an der bisherigen Küche und was soll die neue Küche unbedingt können? Warum?: zu wenig Platz
kein Kommunikationsort (Anordnung als U / Schlauch)
Welche Mülltrennung soll in der Küche vorgehalten werden?: Altglas, Altpapier, Gelber Sack Müll
Steht schon ein Küchenhersteller fest oder wird bevorzugt?: aktuell Häcker geplant, Modell Bristol
Steht schon ein Gerätehersteller fest oder wird bevorzugt?: aktuell Miele geplant, Liebherr für den Kühlschrank
Preisvorstellung (Budget): bis 25.000,-
jetzt ist es passiert - wir haben ein altes Haus gekauft und wollen jetzt natürlich auch eine Küche hineinbauen.
Die Küche kommt in ein altes Wohnzimmer und da früher eher weniger Fenster gebaut wurden planen wir auch zwei zusätzliche Fenster durchzubrechen. Die Fenster beginnen am 1.40m wegen einer hohen Garage nebenan.
Mit den Anschlüssen sind wir (noch) total flexibel.
In der Mitte planen wir eine Insel. Die Küche soll gemütlich und ein Kommunikationszentrum werden. Die Kinder machen hier Hausaufgaben, wir kochen hier zusammmen und genießen die gemeinsame Zeit wenn Teile der Familie sich in der Küche aufhalten. Aus diesem Grund haben wir uns eine Insel vorgestellt die zum einen zum Plätzchen backen aber eben auch zum Frühstücken und für gemeinsame Unterhaltungen dienen kann.
Aktuell sind die Sitze an der Stirnseite angeordnet. Das finden wir nicht so toll. Wir überlegen aktuell die Sitzplätze alternativ an der Längsseite mit Rücken zum Wohnzimmer zu installieren, und dann auch 3.
Neben der Küche planen wir noch eine Speisekammer für Konserven, Müll, größerer Geschirr und weitere Vorräte.
Die Kücke soll im modernen Landhausstil sein und wir haben uns für Häcker Küche Modell Bristol in Magniolienfarben entschieden. Die Arbeitsplatte an der Wand ist Keramik und Inselarbeitsplatte ist aus Holz.
Alle Geräte Induktionsherd 90cm, Dunstabzugshaube Weiss, Kombidampfgarer, Backofen mit Pyrolyse und Spülmaschine ist von Miele , der Kühlschrank von Liebherr .
Im Bezug auf das Spülbecken sind wir noch unentschlossen (1 großes oder 2 mittlere). Ein Backblech sollte auf jeden Fall reinpassen.
Der Gesamtpreis vom Küchenstudio ist 40.000 €. Wir finden das sehr teuer bekommen aber gleichzeitig kein Einblick in die Einzelpreise.
Nun wollten wir Sie liebes Forum fragen, was Eure Einschätzung zu unserem Plan ist.
Wir sind für jede Idee sehr dankbar, insbesondere auch wie wir einen niedrigeren Preis erzielen könnten. Leider barg das alte Haus einiges an "Überraschungen" so dass wir jetzt das Budget etwas straffen müssen.
Vielen lieben Dank für Eure Mühe
Olga
Checkliste zur Küchenplanung
Anzahl Personen im Haushalt: 4
Davon Kinder?: 2
Art des Gebäudes?: Neu-/Umbau, Planänderungen möglich
Körpergrössen aller Hauptbenutzer (wegen Arbeitshöhe ) in cm: 185,169
Brüstungshöhe des Fensters (in cm): 140
Fensterhöhe (in cm): 90
Raumhöhe in cm: 240
Heizung: Fussbodenheizung
Sanitäranschlüsse: vollkommen variabel
Ausführung Kühlgerät: Integriert im Hochschrank (60cm)
Kühlgerät Größe: bis 178 cm Höhe
Ausführung Tiefkühl (TK)-Gerät: Nicht erforderlich bzw. steht woanders
Dunstabzugshaube: Abluft
Backofen etc. hochgebaut?: Ja
Hochgebauter Geschirrspüler ?: Ja
Kochfeldart: Induktion
Kochfeldbreite ca. (in cm)?: 90
Spülenform: 1 Becken ohne Abtropffläche
Geplante Heißgeräte: Backofen , Dampfbackofen (DGC) ohne Wasseranschluß
Küchenstil: Landhaus
Sitzmöglichkeit in der Küche / im Küchenbereich: Überstehende Arbeitsplatte
Sitzmöglichkeit: Für wieviel Personen?: für 3 Personen
Sitzmöglichkeit: Tisch - wenn gesonderter Tisch oder offene Küche: Keiner
Gewünschte o. vorhandene Tischgröße:
Wofür soll der Sitzplatz in der Küche genutzt werden? Wie häufig?: - als Gesellschaft wenn jemand kocht
- wenn Gäste zu Besuch sind
- wenn Kinder frühstücken
- zum Plätzchenbacken
- zum Hausaufgaben machen
Welche Arbeitshöhe ist angedacht (in cm)?:
Was steht auf der Arbeitsplatte oder soll dort stehen?: Kaffeemaschine, Wasserkocher, Toaster, Brotbehälter, Obstschale
Welche weiteren Küchenmaschinen müssen in der Küche untergebracht werden?: Mixer, Pürierstab, Eierkocher
Was soll in der Küche außer den Standards untergebracht werden?:
Welchen Stauraum gibt es sonst noch?: Speisekammer, Keller
Was/wie wird gekocht? (Alltagsküche, Menüs, Snacks usw): Wir kochen für die Familie gesund, frisch
Einfache Gerichte, nichts ompliziertes
Aber auch: Aufwärmen von Gerichten vom Vortag
Wie häufig wird gekocht?: (fast) täglich 2x warm
Wird alleine gekocht? Oder auch gemeinsam? Mit und für Gäste?: auch gemeinsam
Was stört an der bisherigen Küche und was soll die neue Küche unbedingt können? Warum?: zu wenig Platz
kein Kommunikationsort (Anordnung als U / Schlauch)
Welche Mülltrennung soll in der Küche vorgehalten werden?: Altglas, Altpapier, Gelber Sack Müll
Steht schon ein Küchenhersteller fest oder wird bevorzugt?: aktuell Häcker geplant, Modell Bristol
Steht schon ein Gerätehersteller fest oder wird bevorzugt?: aktuell Miele geplant, Liebherr für den Kühlschrank
Preisvorstellung (Budget): bis 25.000,-
Anhänge
-
Kueche Plan.jpg122,5 KB · Aufrufe: 432 -
Grundriss EG.jpg102 KB · Aufrufe: 378 -
Kueche Plan 2.jpg89,1 KB · Aufrufe: 478 -
Kueche Plan 3.jpg100,8 KB · Aufrufe: 472 -
Kueche Plan 4.jpg69,3 KB · Aufrufe: 417 -
Kueche Plan 5.jpg53,9 KB · Aufrufe: 389 -
3D Küchenplan 2 - Kopie.jpg127 KB · Aufrufe: 403 -
3D Küchenplan 3.jpg135,2 KB · Aufrufe: 397 -
3D Kuechenplan 1.jpg160,7 KB · Aufrufe: 436
