AW: Küche im Neubau - Anordnung, Türen, Fenster
So liebe Kerstin, jetzt hattest Du lange Zeit zum atmen!

Leider kam ein kaputtes Auto und der Urlaub dazwischen, aber dafür habe ich den
Alno -Planer jetzt ohne Mann funktionstüchtig bekommen - auf der Alnoseite steht noch ein dicker Hinweis für Windows 7.
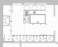
Raummaße: 3,38x4,63
Fenster: 2 m - ggf. kann hier noch zusätzlich über eine Terrassentüre nachgedacht werden (optional) zwischen Fenster und Hochschränken.
Ich habe im Urlaub ziemlich lange über die Varianten nachgedacht und die mit dem Herd an der Außenwand und Hochschränke an der Innenseite kommt nicht so richtig an mich ran. Grade weil ich dachte, dass ihr mehr Erfahrung habt usw., habe ich nochmal für mich überlegt. Ich hätte mehr Stauraum, aber in der Praxis? Wenn ich um die Insel muss, um Nudeln abzukippen, dann stoße ich mir an der Ecke der Insel doch ständig die Hüfte. Ich habe das hier bei einem
Küchenstudio mal gesehen und bin im Schaufenster

mit Topf bewaffnet ein paar Mal hin und her gelaufen und wenn es hektisch ist, geht das sicher nicht oft gut.
Dadurch, dass wir die 20 cm mehr in der Hauslänge nicht durchbekommen, wären es mit großer Terrassentüre und Insel ohnehin schwierig geworden. Die Architektin meinte zur Küche, wir sollten doch so ein Sitzfenster machen, dann gibt es auch nicht solche engen Wege.
Aktuell habe ich rund um die Insel ca. 100 cm und das müsste denke ich passen.
So, folgende Fragen sind jetzt noch offen:
- in welchen Schrank Müll und Putzsachen?
- ließe sich auf sinnvolle Art noch ein kleiner Weinkühlschrank integrieren? Oder ein großer Kühlschrank plus separate kleine Tiefkühltruhe?
- Kochen + Spülen: der Mann findet kochen auf der Insel komisch und ich wiederum befürchte wilde Wasserschlachten rund um die Insel, wenn dort das Wasser ist. *sprüh auf den Bruder, weil der die Zunge rausgestreckt hat*

- ich habe jetzt mal versucht, einen hochgebauten GSP zu integrieren, bin mir aber nicht sicher, ob der dort Sinn macht. Ggf. darauf verzichten, den Stauraum nehmen und einen normalen neben der Spüle?
- sind Kühlschrank und Backofen gut platziert?
- für des Mannes Kaffeemaschine hatte ich mir den Ullaschrank überlegt. Jetzt ist er am maulen, weil er meint, dass er da ja nie und nimmer rankommt und sicher noch mehr Schweinerei
veranstneuet, als bisher und nicht richtig Wasser einfüllen kann und überhaupt und sowieso... Aktuell steht die Maschine nebst Mühle und Wasserkocher unter einem Oberschrank in einer Ecke und er muss sie auch immer vorzerren. 
- dann wäre noch die Frage offen, was man mit der überstehenden Arbeitsplatte der Insel macht? Noch Regale drunter? Schränke? (die wenig tiefen Unterschränke werden mir im Planer gar nicht angezeigt)
- machen die aktuell geplanten Unterschränke Sinn? Besteck, Alufolie, Brettchen, Spültücher usw. Oder sind es zuviele / zuwenige flache Schubladen?
- Für die Einkastung der Hochschränke hatte ich mir überlegt, das mit so Natursteinplatten zu machen und das an der langen Wand fortzusetzen und dort dann eine deckenhohe Glasplatte davor, damit man da nicht mit der Zahnbürste Ritzen putzen muss. Irgendwo hier auf der Seite bei einem der Küchenplaner auf der HP habe ich das gesehen. Gatto? *grübel*
- ach und ich suche noch ein Plätzchen für meine Kochbuchsammlung. Wo würde die denn noch hinpassen?
Anhang anzeigen dffnheg_22072012.POSAnhang anzeigen dffnheg_22072012.KPL

