Küche im Neubau - Anordnung, Türen, Fenster

Status
Nicht offen für weitere Antworten.
AW: Küche im Neubau - Anordnung, Türen, Fenster

Es muss auch nicht unbedingt ein vollwertiger Essplatz sein. Mir geht es mehr darum, dass wir das für den Alltag haben und wir eben alles etwas schneller erledigen können, wenn mein Mann nicht da ist, die Kinder Besuch haben und mit Keksen gekrümelt wird etc. Oder Kinder morgens mal schnell vor der Schule ein Müsli essen / einen Kakao trinken können. Oder der Große Hausaufgaben macht, während ich was werkle oder oder oder... Und da der Esstisch selbst ja direkt nebenan ist, finde ich es irgendwie komisch, wenn da noch ein Tisch in der Küche wäre. Rein vom Gefühl.




Habt Ihr denn generell auch noch Ideen zur Flur-Situation bzw. der Türe zum Wohnzimmer?

Der Architektin haben wir die Änderungen mit den Fenstern weiter geleitet und in der Küche wird jetzt eine 2 Meter breite Terrassentüre sein. Ich diskutiere mit dem Gatten gerade über eine Schiebetüre, da eine andere mit der Insel irgendwie vom Ablauf komisch wäre. Meine Freundin hat noch vorgeschlagen die Terrasse (die rechts an der Ecke sein soll) bis zur Küche zu verlängern und dort einen kleinen Tisch für einen schnellen Espresso einzurichten. :2daumenhoch:



Mit der Türsituation bin ich jedoch noch unsicher. Also: Türe zum Wo-Zi über Eck? Oder ganz anders?
 
AW: Küche im Neubau - Anordnung, Türen, Fenster

Schiebetüre ist wirklich die praktischste Variante - dazu würde ich auch raten.

Inselsitzplätze - ja, dafür sind die so tauglich ;-)

Die Terrasse würde ich auch bis vor die Küche verlängern (ohne das Grundstück und die Lage zu kennen) aber ein Sitzplatz direkt vor der Küche ist praktisch.

Vorallem sollte ein Gartensitzplatz für meinen Geschmack Windgeschützt und überdacht sein ;D

Türe zum Wohnzimmer - meinst Du die von der Diele aus? Es kommt vorallem auf eure Möbel und den Möblierungswunsch drauf an.

Am besten Du schiebst mal Möbel im Wohnzimmer (Alno hat sich da auch bewährt) und setz die Türe nach Bedarf.
 
AW: Küche im Neubau - Anordnung, Türen, Fenster

Och nee, ich komme mit dem Alno -Planer nach wie vor nicht zurecht. Naja, ich habe die wichtigsten Möbel jetzt mal "maßstabsgerecht" eingezeichnet.

Allerdings ist der Zugang zum Wohnzimmer jetzt mit diesem "Pfeiler" in der Mitte - der müsste noch weg.

Und jetzt bin ich schon wieder so verunsichert, ob das alles richtig ist.

Folgende Punkte:

  • ich habe noch ein "antikes", weisses Sideboard, das ich hier nirgendwo stellen kann
  • alternativen Platz für ein "Buffet" kann ich auch nicht finden
    • definitiv zu viele Fenster
  • der Eingangsbereich ist sehr knapp, wenn da noch der Einbauschrank ist? Wie tief müsste der denn mindestens sein, damit man Jacken reinhängen kann? Ggf. kann man auf die hintere Rückwand verzichten?
  • grundsätzlich könnte man auch bei den Schiebetüren zur Küche noch mit Einbauschränken / -Vitrinen arbeiten auf der Wohnzimmerseite, damit auch die Türen wandinnliegend sind.

Also unterm Strich bin ich mit dem Zugang zum Wohnzimmer nicht ganz zufrieden, weiss aber auch nicht, wie man es anders lösen könnte, damit immer noch genügend Schrankfläche im Flur bleibt bzw. der TV im Wohnzimmer noch gegenüber des Sofas bleibt.
 

Anhänge

  • EG 09032012.JPG
    EG 09032012.JPG
    48,3 KB · Aufrufe: 261
AW: Küche im Neubau - Anordnung, Türen, Fenster

Ich würde nur die Türe ins Esszimmer (so breit wie möglich) bauen - die zum WHZ zu - dafür kannst Du dort ein Buffett stellen.

Dann könntest Du noch auf das Fenster gegenüber von der Esszimmertüre verzichten und auch dort ein Möbel stellen. Evt. das andere Fenster dann mehr nach Planlinks schieben.

Oder die schiebst den Durchgang zwischen Küche und Essen auf 70cm von der Wand Planunten und hast dann oben noch ein Wandstück vor das Du ein Möbel stellen kannst..

Fenst
 
AW: Küche im Neubau - Anordnung, Türen, Fenster

So, ich bin wieder zurück und habe Neuigkeiten dabei. ;D

Ich war mittlerweile in zwei Küchenstudios und die Ergebnisse sind teilweise echt ernüchternd.

Studio 1: jeweils zwei Hochschränke unten links und rechts, dazwischen Kochbereich; l-förmige Insel mit Spüle. Linke Fensterseite wird gar nicht genutzt - dezente Hinweise, dass das doch schade ist, nicht gehört.

Studio 2: L-förmige Küche an der Wand entlang mit Tisch in der Ecke oben rechts. Unten Kochbereich abgesenkt auf 85 cm und der linke Schenkel auf 100.

Irgendwann war ich so entnervt, weil er auf Grund meiner "Unzufriedenheit" entnervt *wtf???* war, dass ich meinte, wir könnten ja auch das Fenster links streichen.


Also: das Fenster links, an dem in der Planung von Vanessa die Spüle war, habe ich jetzt mal gestrichen. Mein Herz hing da eh nicht dran und Licht sollte es durch die 2 Meter breite Terrassentüre ja genügend geben. Zumal dort bei diesem Fenster auch das Carport sein wird.

Wie gefällt euch denn diese Alternative?

Eine Geschirrspülmaschine ist jetzt noch nicht eingeplant - wo würde das Sinn machen? Alternativ zu diesem großen Eckschrank könnte ich mir auch gut einen Ulla-Schrank vorstellen.

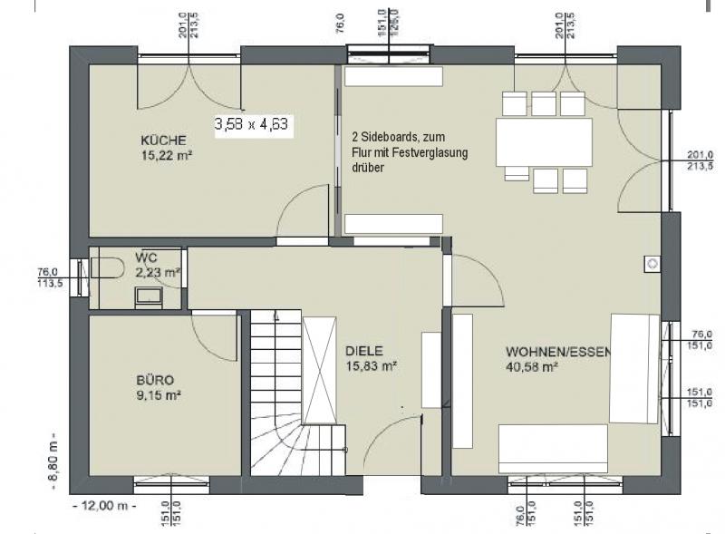
Die Maße der Küche haben sich wie folgt verändert: 3,38 (wurde um 0,2 verkleinert, weil wir sonst mit dem Faktor nicht hinkommen) x4,30 (wurde verkleinert, damit wir links und rechts der Schiebetüren auf Esszimmerseite noch zwei Vitrinen stellen können.


Frage: auf das Fenster verzichten und die Hochschrankseite dort stellen? Oder lassen?

Ach Mistikus, schon wieder so todesmutige Entscheidungen. :-X :rolleyes:



Ich bin jetzt auch nochmal unsere jetzige Küche durchgegangen, die viel zu klein ist:


  • Kühlschrank mit Staufach für Backformen oben: könnte größer sein, fliegt mir immer alles entgegen, weil keiner richtig rankommt. Dort müssten andere Dinge gelagert werden
  • 60er Spülenschrank mit Müll: Türe und Boden unten immer siffig
  • 2 80er Oberschränke mit je 3 Fächern für Gläser und Tassen (Nr. 1); Teller, Vasen und Kannen (Nr. 2): zu wenig insgesamt
  • 60er Unterschrank für Tupper, Schüsseln: zu wenig, schlecht zugänglich
  • 2x 80 Unterschränke mit Schubladen (1 davon für Besteck, Kochlöffel): Nr. 1 für Töpfe, Salatschüsseln, Pfannen; Nr. 2 für Vorräte: geht so
  • 40er Hochschrank mit Auszügen und Fächern oben dient für Gewürze, Essig-Öl-Kram, Trockenlager (Grieß usw.), Süßigkeiten und oben teilweise Geräte: knapp

Was also immer ein Problem ist, wohin mit den Backblechen, wenn gebacken wird? Und die großen Pfannen? Die stehen dann immer irgendwo rum, bis sich einer erbarmt und sie wieder einräumt.

Es fehlt also überall an vor allem sinnvollen Staumöglichkeiten.
 

Anhänge

  • dffneg12042012_3.JPG
    dffneg12042012_3.JPG
    22,2 KB · Aufrufe: 219
  • dffneg12042012_2.JPG
    dffneg12042012_2.JPG
    28,2 KB · Aufrufe: 228
  • dffneg12042012_1.JPG
    dffneg12042012_1.JPG
    23,5 KB · Aufrufe: 224
  • dffneg12042012.POS
    6,2 KB · Aufrufe: 185
  • dffneg12042012.KPL
    4,1 KB · Aufrufe: 185
  • dffneg12042012_4.JPG
    dffneg12042012_4.JPG
    23 KB · Aufrufe: 679
AW: Küche im Neubau - Anordnung, Türen, Fenster

Warum die Küche von 358 auf 338 reduzieren? D. h., die Terrassentür wird als Schiebetür ausgeführt . oder? Sonst gehen die Flügel der Türen ja gar nicht auf.

Mir gefällt die Zugangsecke Wohnen/Essen/Kochen nach der Änderung gar nicht:

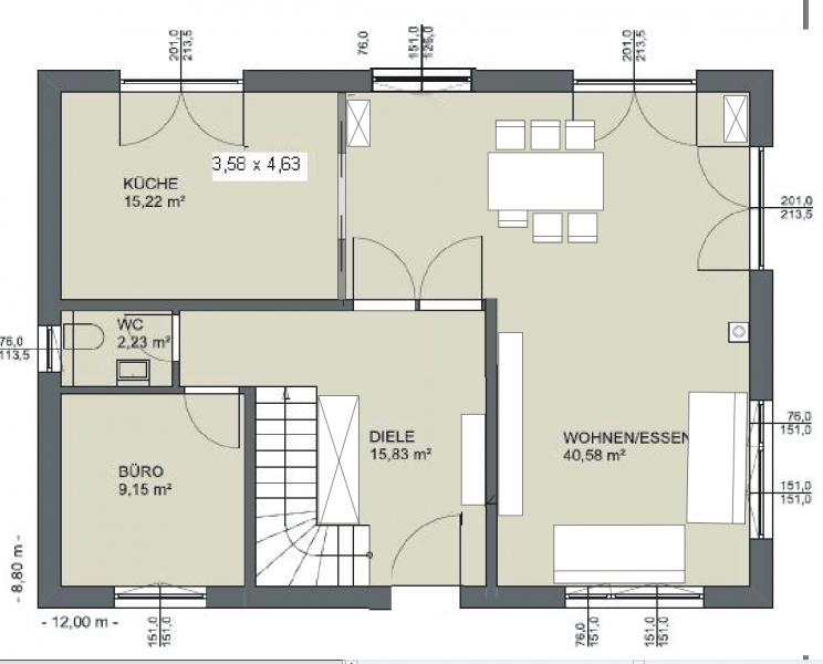
76646d1334241034-kueche-im-neubau-anordnung-tueren-fenster-dffneg12042012_4.jpg


Ah, die obere Außen-Wand zurückgesetzt - warum denn? Die 20 cm würde ich doch eher den Innenräumen gönnen.

So war die Ausgangssituation:

71912d1329857819-kueche-im-neubau-anordnung-tueren-fenster-dffneg-gr-eg.jpg


__________________________

Warum nicht eher so, Küche auf 358x463 cm lassen und dann gerader Flur, größerer Flurschrank im Treppenauge und ggü. kleinere Ablage oder ein paar Wandhaken:
kf_dffnheg_20120412_Grundriss.jpg
 
AW: Küche im Neubau - Anordnung, Türen, Fenster

Da Du in der Küche eine Insel wünschst, ist das verschmälern eine schlechte Idee - der Patz fehlt Dir in der Küche.
 
AW: Küche im Neubau - Anordnung, Türen, Fenster

Kerstin: richtig, die Terrassentür wird eine Schiebetür.

Nachdem die Architektin den Baufaktor berechnet hat, bleiben uns "nur" 8,8x12, um den Baufaktor von 0,2 einzuhalten. Wir versuchen nochmal ein Gespräch zu führen, damit uns eben diese 20 cm nicht fehlen - ob wir das bekommen, steht auf einem anderen Blatt. Die Gemeinde ist: :rolleyes: Das sind also die ersten 20 cm, die in der "Höhe" fehlen. Am liebsten Wäre es mir, wenn wir sogar noch 40 cm in der Haustiefe bekämen. Das würde der Küche und dem Essbereich sehr zugute kommen. Aber verlassen kann ich mich darauf nicht.

Der Zugang zum Wohnzimmer ist die "einzige" Lösung, damit der Einbauschrank bleiben kann und wir trotzdem eine Doppeltür zu diesem riesigen Raum haben. Lässt man es so, wie es war (also gerade Wand), dann kann man die Türe entweder nach rechts setzen oder nach oben, wie in der ursprünglichen Version angedacht. Das gefällt mir jedoch nicht, da man dann so blöd um die Ecke gehen muss, um in den Wohnbereich zu gelangen. Da wir auch durch den Essbereich in die Küche kommen, finde ich einen kleineren Zugang für diesen Bereich (immerhin 70% der Wohnfläche im EG) zu mickrig - was anderes fällt uns und der Architektin dazu leider nicht ein. :-\

Die 35 cm in der Küche habe ich abgeknappst, damit man links und rechts der Türe zur Küche (Esszimmerseite) zwei Vitrinen einbauen lassen kann. Sonst bleibt nur noch der Platz unterm Fenster, um in diesem Bereich überhaupt etwas stellen zu können und das ist mir irgendwie zu wenig. Das nur auf den Essbereich bezogen.

Nur mit einer Ablage und Haken kommen wir nicht hin. Bei 5 Personen fallen Unmengen an Jacken, Schuhen, Fahrradhelmen, Matschhosen usw. an. Aktuell haben wir im Eingangsbereich immer so ein wahnsinniges Chaos, dem man nur mit Mühe Herr werden kann. Eigentlich wäre mir ein kleiner Garderobenraum lieber gewesen - der Schrank ist der Kompromiss.

Mache ich die Türe so, wie Du sie eingezeichnet hast, dann muss ich ja immer rechts umme Ecke gehen, bzw. sogar die Tür schliessen, um in den rechten Bereich zu gelangen. Oder Tür in Richtung Flur aufgehen lassen, was auch nicht so toll ist.

Ach, ich weiss es nicht. Scheisse.





Vanessa: es muss nicht unbedingt eine Insel sein - wenngleich ich mich dafür schon sehr begeistere. Aber ich weiss aktuell auch nicht, wie man es sonst lösen kann, wenn in irgendeiner Form noch ein Sitzplatz vorhanden sein soll.

Die Frage ist, ob es bei der Inselform bleiben kann, wenn wir die 20 cm wieder dazuknapsen können. Die kürzere Länge von 4,30 müsste doch in Ordnung sein, oder?



Lassen wir mal die verminderte Tiefe weg: wie findet ihr denn den Tausch der beiden Bereiche - also Hochschrankbereich hinten?
 
AW: Küche im Neubau - Anordnung, Türen, Fenster

Ich sage mal ... dann sollte man das Haus nochmal planen.

Du hast Schiebetüren zur Küche eingezeichnet und vor denen willst du im Esszimmer Schränke stellen?

Garderobenschrank hatte ich ja ins Treppenauge geplant.

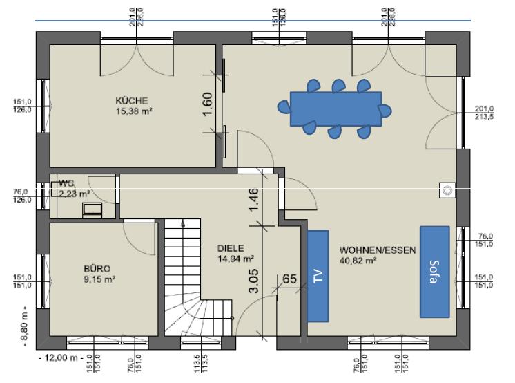
Wie wäre es denn mit Küchen und Wohnbereichszugang.

Im Essbereich hätten dann 2 Sideboards Platz, über dem einen könnte ein Lichtband oder so zum Flur sein.

kf_dffnheg_20120412_Grundriss2.jpg
 
AW: Küche im Neubau - Anordnung, Türen, Fenster

Was ist denn jetzt genau das Problem? Der schräge Eingang? Ich verstehe es grade nicht. Die Garderobe als Einbaulösung war in der anderen Versionen auch und das wurde bislang nicht bekrittelt. Auch dass keine Türe zur Küche ist, was in meinen Augen noch ein Vorteil ist, wenn man dann eine komplette Wand hat.

Jetzt steht da die "schräge" Wand, die Küche wird um einige cm verkleinert und jetzt soll das ganze Haus neu geplant werden? Ich werd wahnsinnig!
 
AW: Küche im Neubau - Anordnung, Türen, Fenster

Vielleicht fahr ich Morgen mal zum Schreiner und frag nach, ob die ursprünglich angedachte Ecktüre so gar nicht geht. Lt. Architektin gibts sowas nicht - wobei ich jetzt nicht raushören konnte, ob sie die eingezeichnete Säule aus statischen Gründen braucht, was ich nicht glaube.
 
AW: Küche im Neubau - Anordnung, Türen, Fenster

Wie weit ist denn die Planung? Eingereicht?

Bei der schrägen Tür ... mir gefällt so etwas halt einfach nicht. Man öffnet entweder nur einen Flügel der Tür und geht dann in die Küche, stehen beide Flügel offen, umläuft man auch die linke Tür wg. Küchenzugang. Das ist alles unrund. Die Eingangstür gleich neben der Treppe. Simuliere mal, wenn du von innen nach draußen gehen willst. Gibt es eigentlich einen Keller? Vermutlich ja - oder? Kellerzugang dann im WC-Flur?

Klar, wir können einfach an der Küche weitermachen ... aber, wo sollen z. B. deine Schiebetüren zum Essbereich hin, wenn da Schränke stehen sollen.

Essen/Wohnen hat mehr als 40 qm, trotzdem hast du Schwierigkeiten 2 Schränke im Essbereich unterzubringen (Was soll da eigentlich rein?).
 
AW: Küche im Neubau - Anordnung, Türen, Fenster

Wir stehen jetzt kurz vor der Einreichung. Der Mann ist grad auf dem Globus unterwegs und die Architektin im Urlaub. Danach sollten die letzten Kleinigkeiten geändert werden.

Grundsätzlich stelle ich mir eher vor, dass die Flügeltüre zum Wohnbereich offen steht und nur geschlossen wird, wenn Besuch da ist und es mal lauter wird.

Treppe neben der Tür finde ich nicht schlimm. Keller gibt es und ja, der Abgang wird im kleinen Flur sein - vermutlich mit Türe. Was ist denn an der Situation wenn ich nach draußen will?

Diese Wege habe ich ja bereits durchgespielt. Ggf. streichen wir direkt neben der Türe noch eine Stufe, die dann oben angehängt wird - ginge ohne Probleme. Dann wäre die Situation entzerrt.

Wie gesagt sollen es innliegende Schiebetüren werden - also in der Wand verlaufen. Insofern gibt es auch keine Probleme, wenn da was stehen soll.

Was in die Vitrinen soll? Nippes. ;D

Bzw. möchte ich mir einfach die Option freihalten, dort etwas machen zu können, wenn ich will.

Türe zum Wohnzimmer nach rechts finde ich auch nicht so ideal, wenn ich dann zur Küche immer so einen Schlenker machen muss.



Ich bin grade echt irritiert - die Pläne, auch mit der Ecktüre stehen seit Wochen hier und da wurde nie was zu gesagt. Versteh mich nicht falsch, ich bin ja für Lösungen offen, aber nachdem wir in den letzten 4 Wochen hin und her überlegt haben, hier auch nichts mehr kam, lief die Planung eben weiter.

Ich möchte eben die Möglichkeit haben, nach links zur Küche und nach rechts zum Sofa gehen zu können.
 
AW: Küche im Neubau - Anordnung, Türen, Fenster

Also, die Zugangssituation Wohn/Essbereich mit der schrägen Wand hast du heute eingestellt ;-) und sie fällt halt krass auf.

In erster Linie gucken wir natürlich nach Küchen, und seitdem hier soviele aufschlagen, habe ich auch nicht immer jederzeit jede Küche parat. Aber, wenn es mir halt auffällt, dann erwähne ich es auch.
 
AW: Küche im Neubau - Anordnung, Türen, Fenster

Ja, weiss ich - bezog mich auf den Schocksmilie, als ich die Ecktüre erwähnte. Hoffentlich bist Du nicht vom Höckerchen gefallen bzw. hast Dir den Kopf nicht gestoßen. ;-)

Wir werden es nochmal überdenken. Es stehen sowieso noch einige Kleinigkeiten auf der Liste und wir machen auf jeden Fall nochmal einen Termin mit der Architektin bzw. auch mit dem Bauamt. Aber zuvor muss das Gatte wieder einfliegen.
 
AW: Küche im Neubau - Anordnung, Türen, Fenster

Die gute Nachricht: das Bauamt interessiert sich nicht gross für die Inneneinteilung - da kannst Du nach belieben schieben! Auch wenn Du Fenster noch etwas schiebst interessiert es wenig, solange die Vorschriften eingehalten werden und der Gesamteindruck dem eingereichten Plan mehr oder weniger entspricht :cool:.

Ich finde die Hochschränke auf der Küchenbreitseite besser, da kommst Du zur Insel mit einem 90cm Gang gut hin, weil nicht auf beiden Seiten gearbeitet wird. Die Herd am Kopfende der Küche wäre von daher auch gut platziert und die Spüle dann auf der Insel.
 
AW: Küche im Neubau - Anordnung, Türen, Fenster

Hier nochmal eine Variante mit Küchentüre - damit man einen kurzen Weg in den Keller hat und die Küche auf direktem Weg betreten kann.

Die Kochzeile ist übertief. Die Durchgänge überall mind. 90cm

dffnheg25.JPGdffnheg20.JPG
dffnheg26.jpgdffnheg24.jpg

Die Hochschränke im Einzelnen
60cm Geschirrschrank
80cm über der Türe für selten benötigtes
60cm hochgeb. GSP evt. mit Microwelle hinter einer Klappe
60cm Kühli
60cm BO etc.
80cm Ullaschrank mit offener Nische drunter für Küchenmaschinen etc.
dffnheg22.jpg

nach der toten Ecke in übertiefe (+ 36% Stauraum)
80cm Küchenhelfer
100cm Kochstellenunterschrank
90cm Vorräte
(natürlich könnte man auch 90/90/90 aufteilen, allerdings wird man die unterschiedlichen Breiten eher nicht sehen, dafür ist es für sperriges praktisch einen 100cm -U-Schrank zu haben)
dffnheg23.jpg

Die Spüleninsel habe ich von Deiner Planung übernommen.

dffnheg21.jpg
 

Anhänge

  • kf_dffneg_nn_v2.POS
    14,9 KB · Aufrufe: 177
  • kf_dffneg_nn_v2.KPL
    4,1 KB · Aufrufe: 189
AW: Küche im Neubau - Anordnung, Türen, Fenster

Danke euch beiden nochmal für den Input! :kiss:

In Gedanken spiele ich grade die Version durch, wenn die Wand im Flur eine Ecke bekommt, Eingang nach rechts ins Wohnzimmer, wie von Kerstin vorgeschlagen und Türe von Dir - Vanessa. Ich tue mich damit noch etwas schwer, aber so ist es immer bei mir. Ich denke auf jeden Fall weiter drüber nach. Wenn man dies so übernehmen würde, dann könnte man die Küche sogar auf 4,60 Breite lassen, da man dann ja trotzdem noch Stellfläche am Kücheneingang hat.

Morgen such ich mir die Pläne nochmal raus und mess alles ab.

Backofen an der Stelle von Dir, Vanessa finde ich total praktisch, da man die heissen Bleche dann gleich rechts auf die Arbeitsplatte stellen kann oder die fettigen Bleche gleich ins Spülbecken stellen. :top:


Zwei Fragen: Fenster dann trotzdem weglassen, wenn an der jetzigen "Kochseite" nur Unterschränke sind? Zum kochen ist es sicher nicht so praktisch, wenn man am Fenster steht - irgendwie irritiert es mich. Muss aber nicht wichtig sein.

Im Küchenstudio war eine Küche aufgebaut mit einem freistehenden L-Block. An der langen Seite war das Kochfeld, am kurzen Schenkel die Spüle. Ich habe das gedanklich bzw. auch praktisch durchgespielt und denke, dass man sich da am Ende immer die Hüfte stößt, wenn man z.B. Nudelwasser abkippen möchte. Jetzt muss man ja quasi auch umme Ecke, wenn man dieses Szenario hat - gleiches Hüft-Stoß-Potential? Oder ist das entzerrt, da es nicht der gleiche Block ist? Deswegen kam ich darauf, die Hochschränke an die kurzse Seite zu packen. *grübel*
 
AW: Küche im Neubau - Anordnung, Türen, Fenster

So, nach Gesprächen mit einer befreundeten Architektin Neuigkeiten von uns!

Die bisher angedachte Terrassentüre in der Küche weicht einem Fenster und das Fenster links kommt weg.

Wir sind so verblieben, dass die Insel so tief werden soll, dass sie in einer Sitzgelegenheit vor bzw. in der Fensterlaibung endet. Versteht man, was ich meine? :-[

Wir tendieren momentan auch dazu, die Hochschrankzeile dort zu platzieren, wo aktuell die Arbeitszeile ist und umgekehrt.

Was meint ihr dazu?

Die Türlösung zum Wohnraum steht auch und zwar wird diese von der Haustür aus gerade in den Wohn-Essbereich gehen, direkt bei der Küche. Also in der Verlängerung der Küchenwand zum Flur. Das ganze mit einem Abstand von ca. 45 cm zur Küchenwand, damit dort noch eine Vitrine gestellt werden kann.

Nach einigen Versuchen, den Alnoplaner auf den neuen Laptop zu installieren, bekomme ich beim Öffnen immer einen "runtime error" angezeigt. Was kann das denn sein? Ich wollte die Änderungen doch gerne durchspielen.
 
Status
Nicht offen für weitere Antworten.

Ähnliche Beiträge

Neff Hausgeräte Ballerina Küchen Blum Bewegungstechnologie Weibel - Intelligente Küchenlüftung

Neff Spezial

Blum Zonenplaner

Weibel Abluft-Tuning

Weibel Abluft-Tuning
Zurück
Oben