Küche für Eltern (Neubau - Tirol)

betapeter

Mitglied
Beiträge
8
Hallo, ich bin auf der Suche nach einer Lösung für die Küchen der Eltern meiner Frau.

Nach einem Besuch im Küchenstudio bin ich recht ratlos, da dieses in der Planung so viel offensichtlich Fehler gemacht hat, dass es uns den Plan nicht einmal mehr mitgeben wollte. (Abstand Herd zur Wand 5cm, Abstand zw. Spüle und Herd 15 cm).

Es ist etwas schwierig, die Küchenecke ist recht klein, so stellt sich für uns die Frage, ob wir den Planungsvorschlag des Planers (mit der Ecke wie im Bild) weiterverfolgen sollen, oder lieber ein Küche mit zwei Zeilen und einem Raumtrenner nehmen sollen.

Die Tür zum Schlafzimmer kann auch bei Bedarf etwas nach links verschoben werden.

Die Küche zur Speisekammer/Abstellkammer kann auch verschoben werden. Hier kommen die Vorräte und Putzsachen rein.

Die Mutter meiner Frau möchte "geschützt" werkeln können, sie möchte zum Esstisch eine Begrenzung haben.

Variante 1 (bis jetzt bevorzugt)
Küche um die Ecke
Hier stellt sich uns die Frage, Herd in die dem Raum zugewandte Arbeitsplatte oder zur Wand. Das
Ich hab das mit dem IKEA Planer gemacht, da wir die Küche vermutlich bei IKEA kaufen.

Was meint ihr, Herd in die Mitte oder zur Wand? Eine Inselhaube würde ich gerne vermeiden, aber ich weiss nicht, wie ich den Herd ergonomisch in die Arbeitsplatte bei der Wand integrieren kann. Vor allem Spüle und Geschirrspüler sind dann weit auseinander.

Variante 2:
zwei gegenüberliegende Zeilen

Variante 3:
wir sind aufgeschlossen gegenüber allem.

Den Alno Planer habe ich leider noch nicht zum laufen gebracht, ich muss den neuen erste (beta) installieren, deswegen nur Fotos, sorry.

Ich freue mich auf die Expertenratschläge!

Checkliste zur Küchenplanung

Anzahl Personen im Haushalt: 2
Davon Kinder?:
Art des Gebäudes?:
Neu-/Umbau, Planänderungen möglich
Körpergrössen aller Hauptbenutzer (wegen Arbeitshöhe ) in cm: 175
Brüstungshöhe des Fensters (in cm):
Fensterhöhe (in cm):
Raumhöhe in cm:
250
Heizung: Fussbodenheizung
Sanitäranschlüsse: vollkommen variabel
Ausführung Kühlgerät: Integriert im Hochschrank (60cm)
Kühlgerät Größe: noch unbekannt
Ausführung Tiefkühl (TK)-Gerät: Nicht erforderlich bzw. steht woanders
Dunstabzugshaube: Abluft
Backofen etc. hochgebaut?: Wenn möglich
Hochgebauter Geschirrspüler ?: Wenn möglich
Kochfeldart: Ceran (herkömmlich)
Kochfeldbreite ca. (in cm)?: 60
Spülenform: Noch nicht festgelegt
Geplante Heißgeräte: Dampfbackofen (DGC) mit Wasseranschluß
Küchenstil: Modern
Sitzmöglichkeit in der Küche / im Küchenbereich: Tresen in Barhöhe
Sitzmöglichkeit: Für wieviel Personen?: Nein
Sitzmöglichkeit: Tisch - wenn gesonderter Tisch oder offene Küche: Keiner
Gewünschte o. vorhandene Tischgröße:
Wofür soll der Sitzplatz in der Küche genutzt werden? Wie häufig?:
kein Sitzplatz nötig, an Bar anlehnen wäre nett.
Welche Arbeitshöhe ist angedacht (in cm)?:
Was steht auf der Arbeitsplatte oder soll dort stehen?:
Kaffeemaschine, Wasserkocher, Messerblock
Welche weiteren Küchenmaschinen müssen in der Küche untergebracht werden?: Pürierstab, Eierkocher
Was soll in der Küche außer den Standards untergebracht werden?: Geschirr komplett (nichts in Ess-/Wohnzimmer)
Welchen Stauraum gibt es sonst noch?: Speisekammer, Hauswirtschaftsraum
Was/wie wird gekocht? (Alltagsküche, Menüs, Snacks usw): Alltagsküche
Wie häufig wird gekocht?: (fast) täglich 2x warm
Wird alleine gekocht? Oder auch gemeinsam? Mit und für Gäste?: alleine
Was stört an der bisherigen Küche und was soll die neue Küche unbedingt können? Warum?:
Welche Mülltrennung soll in der Küche vorgehalten werden?:
Biomüll, Restmüll
Steht schon ein Küchenhersteller fest oder wird bevorzugt?: steht noch nicht fest, bevorzugt Ikea
Steht schon ein Gerätehersteller fest oder wird bevorzugt?: egal
Preisvorstellung (Budget): bis 15.000,-
 

Anhänge

  • IMG_20160104_173050.jpg
    IMG_20160104_173050.jpg
    63,1 KB · Aufrufe: 220
  • IMG_20160104_173105.jpg
    IMG_20160104_173105.jpg
    137 KB · Aufrufe: 234
  • Variante 1 Ikea.pdf
    257,9 KB · Aufrufe: 246
  • ikea_pdf_in_jpg.JPG
    ikea_pdf_in_jpg.JPG
    55 KB · Aufrufe: 220
Zuletzt bearbeitet:
Hallo @betapeter, herzlich Willkommen im KF! :welcome:

Für ein L ist tatsächlich sehr wenig Platz vorhanden... Ich würde einen Zweizeiler Planen... Nachteil wäre allerdings, das die Tür zur Abstellkammer nach Plan unten verschoben werden muss und die Waschmaschine dann einen anderen Platz bräuchte. Wäre das akzeptabel, bzw. wegen der Anschlüsse machbar?

Was heißt "geschützt" werkeln? Meint sie damit eine Wand oder kann die Küche offen bleiben und soll nur mit einer Halbinsel abgetrennt sein? Wahrscheinlich wohl letzteres, denn sonst wäre eine Theke ja nicht möglich....
Wir lassen Theken gerne weg und planen bevorzugt Inseln, mit einer Durchgehenden Arbeitsfläche. Die haben den Vorteil, das man sich beim Arbeiten richtig ausbreiten kann. Zum Teig ausrollen, ist so eine tiefe Fläche genial und auch zum Buffet anrichten, ist die große Fläche toll.
Könnte deine Schwiegermutter sich mit so einer Planung anfreunden, oder muss die Theke Barhöhe haben?

Die Abluft, wo kann sie herausgeführt werden?

Mit einem Budget von 15K würde ich in ein Küchenstudio gehen. Ikea hat auch eine Plantiefe von 63cm. Das wird sich in der kleinen Küche, wahrscheinlich ungünstig auswirken.
 
Hallo Conny,

danke für die Antwort. "geschützt" werkeln heisst, dass sie sich gerne hinter einer Theke / Bar aufhalten möchte, genauso geht aber ein Insel / Halbinsel. Es muss keine eTheke sein.

Die Tür können wir leider nur ein par cm verschieben, da ist die Treppe dahinter.

Was ich nicht ganz verstanden habe, ist, wie Du die beiden Zeilen anordnen würdest. Könntest Du mir bitte das ganz auf die schnelle Skizziern oder erklären.

Sind 90cm zw. 2 Zeilen nicht zu eng?

Küchenstudio war ich schon, war enttäuschend. Innsbruck ist recht klein...

Danke schon mal im voraus!
Peter
 
Ein Zweizeiler funktioniert nur, wenn die Tür Richtung Hochschränke verschoben werden kann. Im Grundriss ist dort keine Treppe verzeichnet, es steht dort die Waschmaschine, die dann einen anderen Platz finden müsste.

Der Wandstummel bei den Hochschränken ist sicher tragend? Wenn nicht könnte man die Planung auch spiegeln.

90cm sind vollkommen ausreichend, insbesondere für eine Einzelkämpferin. Da die Küche offen ist, wird man es auch optisch nicht eng empfinden.
Die Schlafzimmertür muss für die Planung auch etwas verschoben werden, um Platz für die rückseitigen Inselschränke zu schaffen. Ansonsten könnte man aber auch mit übertiefen U-Schränken auf der Inselvorderseite arbeiten und rückseitig eine Mauer in Thekenhöhe stellen. Das bedeutet dann aber einen Stauraumverlust.
 

Anhänge

  • betapeter - conny 1.KPL
    3,9 KB · Aufrufe: 177
  • betapeter - conny 1.POS
    8,6 KB · Aufrufe: 187
  • betapeter grundriss.JPG
    betapeter grundriss.JPG
    27,1 KB · Aufrufe: 210
  • betapeter.JPG
    betapeter.JPG
    52,4 KB · Aufrufe: 225
Liebe Conny, vielen Dank.
Das ist genial!
Jetzt muss ich mal mit dem Planer reden, der Wandstummel ist nicht tragend, d.h. ich könnte alles spiegeln.

Jetzt geht es mal drum, die Türen abzuklären. Was würdest Du mir als Mindestabstand zw. den beiden Zeilen empfehlen?
 
90cm wären schon gut, in der Küche meiner Mutter sind es nur 85cm. Das funktioniert auch, würde ich aber nur machen, wenn es sich nicht vermeiden lässt.
 
So, die Planung jetzt mal gespiegelt... Allerdings stehen die rückseitigen Inselschränke etwas in den Gang hinein. Das war andersherum günstiger.

Ich hab grad noch mal auf den Grundriss geschaut. Die letzten Treppenstufen über der Waschmaschine hab ich übersehen. Sie sollten aber nicht stören. In dem Bereich sind die schon über Türhöhe.

Aufgeteilt habe ich die Schränke in...

Kühlschrank - GSP hochgestellt - BO-Hochschrank

Kochzeile: 2 x 90er im Raster 1-1-2-2

Halbinsel: Wange - 80er im Raster 1-1-2-2 - 50er Spülenschrank - 40er - Blende

Auf einen MUPL hab ich in dieser Küche verzichtet, da war mir normaler Stauraum wichtiger.
 

Anhänge

  • betapeter - conny 1. gespiegelt KPL.KPL
    3,9 KB · Aufrufe: 166
  • betapeter - conny 1. gespiegelt KPL.POS
    10,1 KB · Aufrufe: 184
  • betapeter grundriss.JPG
    betapeter grundriss.JPG
    39,8 KB · Aufrufe: 417
  • betapeter.JPG
    betapeter.JPG
    60,4 KB · Aufrufe: 217
  • betapeter1.JPG
    betapeter1.JPG
    57,3 KB · Aufrufe: 207
@Conny ... genau deine letzte Variante hat mir beim Lesen des Eingangsthreads gleich vorgeschwebt :2daumenhoch:

Ich würde allerdings auf einen MUPL nicht verzichten. Dazu den Spülenblock von planunten:
  • 90er Spülenschrank, dort kann die Spüle dann rechtsbündig eingebaut werden. Im oberen Auszug hätten noch Sachen wie küchentypische Putzmittel, Handtuchvorrat, Altglassammlung und ähnliches Platz. Unterer Auszug ganz normaler Stauraum, z. B. Teller, Geschirr etc.
  • 90er * Samy-Schrank * .. unten 90 cm breiter Auszug als ganz normaler Stauraum, dann geteilt weiter .. 45cm breiter * MUPL * und 45 cm Schublade/Auszug. Schublade hier für Messer, Küchenhelfer usw.

    betapeter_20160107_Spülenblock.jpg

So einen Schrank haben wir hier schon von Schüller oder auch Nobilia in Forumsküchen realisiert.
 
Hallo,

liebe Conny, liebe Kerstin, ich möchte mich wirklich recht herzlich für den Input bedanken. Wir werden das jetzt so ausführen.

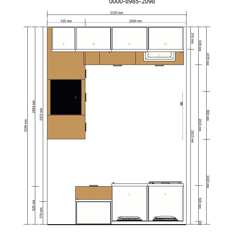
Da die Mutter meiner Frau nicht mit dem Rücken zum Raum kochen möchte, habe ich den Herd auf die rechte Seite gesetzt und ein U draus gemacht. Was haltet Ihr davon?

Spüle - an der Wand hinten
Kochfeld - rechts im U
Geschirrspüler - im Hochschrank oder kann ich den in das U irgendwo integrieren? GSP im Hochrank geht bei Ikea nicht bzw. nur mit Eigenbau.
Backofen - im Hochschrank

Das mit dem MUPL kling gut, ist ja mit IKEA auch einfach zum umsetzen. In ein Küchenstudio muss ich sowieso noch.

Danke!
 

Anhänge

  • ikea_pdf_in_jpg.JPG
    ikea_pdf_in_jpg.JPG
    30 KB · Aufrufe: 481
Plane in dem U einmal die Spüle mit ein und dann erzähle mal wie du dir das arbeiten in der Küche vorstellst...

Die Idee beim Zweizeiler:

Vorbereiten und Spülen auf der Insel. Zum Vorbereiten braucht man die längste Zeit, die Spüle wird dabei immer gebraucht, sei es zum Gemüse waschen, kurz mal einen Löffel oder ein Messer abspülen oder auch die Hände. Fertig geschnittenes kommt dann in den Topf und auf das Kochfeld oder in den DGC und köchelt meist alleine vor sich hin .
Fleisch soll auf den Punkt gebraten werden, darum ist es besser, dabei nicht abgelenkt zu werden. Große Braten, schneidet man dann wieder auf der Spüleninsel auf, dort kann man dann zwischendurch oder danach, auch schnell die Hände wieder abspülen, weil sie schmierig geworden sind. Ein Lappen liegt natürlich auch eher bei der Spüle, den man sich schnell greifen kann, weil der Fleischsaft auf die APL gelaufen ist....
 
Zuletzt bearbeitet:
Ich unterschreibe zu 100% bei Conny. Mit dem U geht soviel Stauraum verloren, noch dazu mit Ikea . Bei Ikea darf man auch nicht vergessen, dass man mit 64 cm Tiefe planen muss. Das kostet hier Bewegungsraum.
 
Hallo,

das mit dem Zweizeiler leuchtet mir schon ein, aber da ist dann so wenig Arbeitsfläche. Der Stauraum ist nicht so tragisch, es gibt ja eine Speisekammer und 3 Hochschränke.

Ich könnte aber statt des freien Platzes im Zweizeiler einen 40er Unterschrank platzieren und tote Ecken machen, was haltet ihr davo?
 
Welche Arbeitsfläche geht dir denn verloren? Man kann ja auch nicht erkennen, wo du die Spüle planst:
ikea_pdf_in_jpg-jpg.201405


Hier hast du
betapeter-grundriss-jpg.201146

rund 90x100 cm Vorbereitungsfläche direkt neben der Spüle und ein Dreh und du bist am Kochfeld, wo auch nochmal voll zugängliche, also auch fürs Arbeiten, Fläche von einem 80er Unterschrank ist.
In der Checkliste hast du:
Was steht auf der Arbeitsplatte oder soll dort stehen?: Kaffeemaschine, Wasserkocher, Messerblock
angegeben. Kaffeemaschin ist planunten neben der Spüle eingeplant, auch gut von der Tischseite zu erreichen, Wasserkocher könnte man einsparen bei Induktion und Messer statt Messerblock in ein Fach in einer Schublade.
 
Hallo Kerstin,

Du hast absolut recht! Wenn ich alles in den Schubladen verstaue, klappt das.
Vielen Dank an dich und Conny!
 

Ähnliche Beiträge

Neff Hausgeräte Ballerina Küchen Blum Bewegungstechnologie Weibel - Intelligente Küchenlüftung

Neff Spezial

Blum Zonenplaner

Weibel Abluft-Tuning

Weibel Abluft-Tuning
Zurück
Oben