Küche 8,5 qm für Reihenmittelhaus, Mitnahme der alten Küche

Sandra3103

Mitglied
Beiträge
33
Hallo liebes Küchenforum,

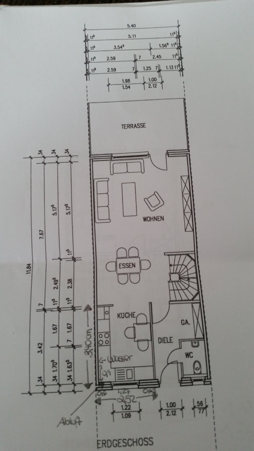
vor zwei Jahren habe ich mit Hilfe von euch meine derzeitige Küche geplant. Mit dem Ergebnis bin ich sehr zufrieden. Noch einmal vielen Dank dafür. Nun ziehen wir in ein Reihenmittelhaus und wollen unsere bestehende Nolteküche gerne mitnehmen und erweitern. Die Küche ist 252 cm breit und 340 cm lang.

Die Küche besteht aus folgenden Schränken (siehe auch Anhang):
- 30 cm Türenschrank
- Vollintegrierter Geschirrspüler (60 cm)
- Spülenunterschrank (50 cm Tür, 90 cm Gesamtbreite (Eckschrank))
- Spüle links, Abtropf rechts
- 60 cm Auszugschrank
- 60 cm Auszugschrank für Induktionsfeld
- 50 cm Auszugschrank
- 60 cm Hochschrank für Backofen und Mikrowelle im Schrank
- 60 cm Kühl-/Gefrierkombi
- 100 cm Wandschrank
- 45 cm Wandschrank (Öffnung nach oben)
- 30 cm Wandschrank
- Schräge Dunstabzugshaube

Derzeit ist die neue Küche noch eine geschlossene Küche. Die Tür soll jedoch geschlossen werden und ein Durchbruch zum Wohnzimmer gemacht werden. Ob wir einen kompletten Durchbruch machen oder an einer Seite etwas Wand stehen lassen, wo die Küchenzeile hinter verschwinden könnte, ist noch flexibel.

Der Wasseranschluss könnte auch etwas nach rechts oder links verschoben werden. Ganz auf die andere Seite verlegen, wollten wir jedoch nicht.

Ein paar Steckdosen müssten wahrscheinlich auch noch verlegt werden. Da derzeit noch eine Küche in dem Haus steht, können wir nur die offenen Steckdosen sehen.

Eine Heizung ist derzeit noch vorhanden, kommt jedoch weg.

Gegen einen kleinen Tresen habe ich auch nichts, weiß jedoch nicht, ob es aussieht, da in der Nähe der Küche der Esstisch hinkommt. Macht vielleicht den Durchgang zur Küche auch zu eng.

Derzeit fände ich zwei Küchenvarianten interessant:
- 2 Zeiler rechts links (Planung 1)
- L mit den Hochschränken extra (Planung 2)
derzeitige Küche mit Maßen - links.JPG derzeitige Küche mit Maßen - rechts.JPG

Grundriss mit Maßen - offene Küche.jpg neue Küche derzeit.jpg

Planung 1 - links 3D.JPG Planung 1 - links.JPG
Planung 1 - rechts.JPG Planung 1 - von oben.JPG


Zwei Planungen habe ich mal angehangen. Leider nicht mit dem Alnoplaner, damit komme ich nicht so gut zurecht. Einen Apothekerschrank sollte, wenn möglich, ergänzt werden.

Was habt ihr für Ideen und wie würdet Ihr die Schränke stellen? Über Anregungen würde ich mich freuen.

Checkliste zur Küchenplanung

Anzahl Personen im Haushalt: 2
Davon Kinder?:
Art des Gebäudes?:
Bestandsbau, (kleinere) Umbauten möglich
Körpergrössen aller Hauptbenutzer (wegen Arbeitshöhe ) in cm: 160 cm und 188 cm
Brüstungshöhe des Fensters (in cm): nicht bekannt. Unterschränke liegen aber unter dem Fenster
Fensterhöhe (in cm):
Raumhöhe in cm:
250
Heizung: Keine Heizung
Sanitäranschlüsse: variabel an aktueller Wand
Ausführung Kühlgerät: Integriert im Hochschrank (60cm)
Kühlgerät Größe:
Ausführung Tiefkühl (TK)-Gerät:
Im Kühlschrank ab 3 Schubladen unten
Dunstabzugshaube: Abluft
Backofen etc. hochgebaut?: Ja
Hochgebauter Geschirrspüler ?: Nein
Kochfeldart: Induktion
Kochfeldbreite ca. (in cm)?: 60
Spülenform: 1 Becken mit Abtropffläche
Geplante Heißgeräte: Standmikrowelle, Backofen
Küchenstil: Modern
Sitzmöglichkeit in der Küche / im Küchenbereich: Keine
Sitzmöglichkeit: Für wieviel Personen?: Nein
Sitzmöglichkeit: Tisch - wenn gesonderter Tisch oder offene Küche: Keiner
Gewünschte o. vorhandene Tischgröße:
Wofür soll der Sitzplatz in der Küche genutzt werden? Wie häufig?:
Welche Arbeitshöhe ist angedacht (in cm)?:
standard
Was steht auf der Arbeitsplatte oder soll dort stehen?: Kaffeevollautomat, Wasserkocher, Messerblock, Toaster
Welche weiteren Küchenmaschinen müssen in der Küche untergebracht werden?: Handrührgerät, Mixer, Pürierstab, Eierkocher
Was soll in der Küche außer den Standards untergebracht werden?:
Welchen Stauraum gibt es sonst noch?:
Geschirr/Gläserschrank im Wohn-/Esszimmer, Keller
Was/wie wird gekocht? (Alltagsküche, Menüs, Snacks usw): Alltagsküche
Wie häufig wird gekocht?: ab und zu
Wird alleine gekocht? Oder auch gemeinsam? Mit und für Gäste?: max. mit zwei Personen
Was stört an der bisherigen Küche und was soll die neue Küche unbedingt können? Warum?: Umbau wegen Umzug. Ansonsten mit der derzeitigen Küche zufrieden. Nur etwas mehr Stauraum wäre gut. Apothekerschrank gewünscht.
Welche Mülltrennung soll in der Küche vorgehalten werden?: Gelber Sack Müll, Restmüll
Steht schon ein Küchenhersteller fest oder wird bevorzugt?: Nolte , da Umbau
Steht schon ein Gerätehersteller fest oder wird bevorzugt?: vorhandenen Geräte sollen mitgenommen werden
Preisvorstellung (Budget): bis 3.000,-
 

Anhänge

  • Planung 1 - rechts 3D.JPG
    Planung 1 - rechts 3D.JPG
    24,8 KB · Aufrufe: 483
Zuletzt bearbeitet von einem Moderator:
Sorry,

bekomme die Bilder nicht als Anhang dargestellt. Ich hoffe man kann das trotzdem erkennen. Muss ich als Vollbild einstellen oder als Miniaturansicht?
 
Hallo Sandra und willkommen zurück im Forum.

Das mit den Thekenplätzen wird wohl nichts. Wenn 6m für Küche und Sitzgruppe gedacht sind, reicht der Platz für die Theke nicht aus.

Die dunklen Fronten in der Planung sind die neuen Schränke.

Euer Kühlschrank öffnet nach rechts oder links?

Die Arbeitszeile habe ich 10cm vorgezogen.

Sandra1.JPG

Sandra2.JPG Sandra3.JPG Sandra4.JPG
 

Anhänge

  • Sandra_Evelin_PLAN1.KPL
    3,9 KB · Aufrufe: 259
  • Sandra_Evelin_PLAN1.POS
    6,8 KB · Aufrufe: 244
Danke Evelin,

mit der Theke habe ich mir schon fast gedacht. War nur so ein Wunschgedanke ;-)

Unser Kühlschrank öffnet nach rechts. Bei der Spüle ist die Abtropffläche auch rechts. Bei deiner Planung wäre die aber links. Oder man müsste halt Spüle nach ganz links und daneben den Geschirrspüler .

Warum hast du die Arbeitszeile 10 cm vorgezogen? Das verkleinert den Raum noch zusätzlich, oder?

Wir waren gestern bei den Nachbarn unseren neuen Hauses. Da wirkte die offene Küche viel viel größer, obwohl sie gleich breit sein soll (wir haben nicht nachgemessen). Lag es vielleicht daran, dass Sie den Wandvorsprung rechts hatten? Oder sollten wir einen Wandvorsprung komplett weglassen? Komme gerade ins Zweifeln, ob die 2,52 m breite Küche doch zu schmal ist :-(
Werde hier mal das Forum nach vergleichbaren Küchen durchsuchen, um mir ein Bild zu machen.

Wäre vielleicht auch ein U denkbar?
 
Wandvorsprung? welcher Wandvorsprung?

Eine tiefere AP ist super, man hat Platz ohne Ende zum Arbeiten. Hinten baust du deine Zutaten auf, und vorne schneidest du. 10cm war ein Beispiel, schon 5cm machen sich erheblich merkbar.

Bei 252cm Raumbreite bleibst dir bei 2 x 60cm US Tiefe, 132cm Zeilenabstand, mehr als was du brauchst. Ich hatte mal 160cm Abstand, bin jetzt bei 136cm, was auch zuviel ist. Persönlich finde ich 120cm Zeilenabstand ideal. Denn mehr Zeilenabstand im gegenzug zu einer tieferen AP bringt dir nicht viel an extra Komfort.

Es wäre hilfreich, wenn du ein Bild der bisherigen Küche zeigen könntest. Denn wie mit der Spúle tappen wir hier im Dunkeln. Du hast auch keine Angaben gemacht, wie hoch die HS bzw OS sind, man plant was, hat aber Null Ahnung, ob s stimmt.

Persönlich würde ich eine neue Spúle kaufen,denn Ablage in Richtung Kochfeld reduziert deine Arbeitsfláche auf ein Minimum.

Und die Spüle ganz ans Fenster zu setzen, ist einmal unpaktisch, weil dir links der Freiraum fehlt. Ausserdem ist es sehr unpraktisch, den GSP mitten in der Küche zu haben, man muss um die geöffnete Tür drumrumlaufen.

Wenn du die Arbeitszeile als L darstellst, fallen die OS planrechts weg,

Machst du ein U, ist die Spüle und der GSP vor dem Fenster, planrechts passt ein 60er US. Auf der Kochseite von planunten

40er US MUPL
100er US
60er US Kochfeld
50er US
Wange

Diese Form ist etwas unpraktischer. Damit man an den MUPL kann, darf niemand vor der Spüle stehen. Der GSP blockiert den US planrechts. Der neue OS planlinks ist jetzt nur noch 80cm breit. Die OS in den Ecken sind schlechter zugänglich.

U-Form...................................... 2-Zeiler

Sandra21.JPG Sandra1.JPG
 
Bei einer Raumbreite von 250cm ist ein 2-Zeiler mit übertiefer Arbeitszeile am praktischsten. Evelins Planung ist genau Richtig für den Raum.

Bei den meisten Kühlschränken kann man den Anschlag umbauen. Ein neues Spülbecken kostet nicht die Welt und eine übertiefe APL ist GOLD wert. Bei einer Raumbreite von 250cm kannst Du Dir ruhig eine 75-80cm tiefe APL gönnen. Wir haben 80cm - ich finde das ideal.
 
80cm Tiefe bei 160cm Körpergrösse stelle ich mir nicht ganz einfach vor, will man auch noch an die OS rankommen.
 
Hi,

sorry für die fehlenden Angaben der HS und OS. Die Maße der HS hab ich gerade nicht im Kopf. Die OS sind 60 cm hoch.
Die derzeitige Küche sieht wie auf den Bildern, wie im ersten Beitrag aus (mit der roten Wand). Dort hatte ich zumindest die Breiten drangeschrieben. Mit der Spüle hatte ich auch geschrieben.

Mit der tiefen Arbeitsplatte werde ich mir mal überlegen. Werde mir die Küchenschränke mal mit Kartons hinstellen, dass ich abschätzen kann, wieviel Platz noch bleibt. Derzeit habe ich eine 10 cm breitere Arbeitsplatte. Hatte aber nur den Grund, weil wir in der Mietwohnung den Wasseranschluss auf Putz verlegt haben.

Mit Wandvorsprung meinte ich die Wand, die du neben den HS eingezeichnet hast. Da sind wir ja variabel, ob wir die kleine Wand rechts oder links machen oder komplett weglassen.

Vielen Dank für eure Meinungen. Habt ihr zufällig ein Bild von eurer Küche mit dem geringen Zeilenabstand?

Gruß
 
Soooo, da bin ich wieder. Wir haben uns jetzt für eine U-Variante entschieden. So haben wir etwas mehr Arbeitsfläche. Platz genug für ein U ist ja auch.

Den Vorratsschrank haben wir etwas verkleinert auf 40 cm, so dass wir rechts etwas mehr Arbeitsfläche haben.

Meint ihr es sieht aus, wenn wir links nur einen 100 cm Wandschrank nimmt. Auf der Seite wäre dann nur noch die Abzugshaube von 80 cm. Oder sollte man da besser noch ein Regal hinsetzen?

Anbei ein paar Fotos von der Planung (leider klappt Alno immernoch nicht richtig). Die neuen Schränke sind noch nicht bestellt. Da muss ich noch was die Küchenhäuser vergleichen.

Was ich aber wahnsinnig finde, sind die Preise für Ab- und Aufbau :nageln::rolleyes: Das günstigste Angebot lag bei 1200 €. Ein paar Angebote stehen aber noch aus. Mache hierzu vielleicht aber mal ne extra Diskussion auf.
 

Anhänge

  • Frontansicht links.JPG
    Frontansicht links.JPG
    19,5 KB · Aufrufe: 324
  • Frontansicht mitte.JPG
    Frontansicht mitte.JPG
    17,4 KB · Aufrufe: 285
  • Frontansicht rechts.JPG
    Frontansicht rechts.JPG
    18,3 KB · Aufrufe: 358
  • Grundriss_von_oben.JPG
    Grundriss_von_oben.JPG
    22,5 KB · Aufrufe: 358
  • Frontansicht mitte 3D.JPG
    Frontansicht mitte 3D.JPG
    19,9 KB · Aufrufe: 668
  • Frontansicht rechts 3D.JPG
    Frontansicht rechts 3D.JPG
    17,9 KB · Aufrufe: 303
  • Frontansicht_links_3D.JPG
    Frontansicht_links_3D.JPG
    20,7 KB · Aufrufe: 349
mh ja, wenn ihr das unbedingt so unpraktisch haben wollt... ihr müsst ja damit leben.
 
Evelins Nr. 4 ist wirklich sehr gelungen.
sandra1-jpg.189646

Und, wenn du aktuell schon die 70 cm tiefe APL gewohnt bist, dann würde ich das nicht aufgeben.
Es gibt rechts gute Abstellmöglichkeiten für Maschinenpark etc. und links kann man gut arbeiten. Mit neuer Spüle dann rechts und links des Spülenplatzes.

Zeilenabstand ist mit 122 cm sehr ausreichend. Ich selber habe 90 bis 93 cm:
full
 

Ähnliche Beiträge

Neff Hausgeräte Ballerina Küchen Blum Bewegungstechnologie Weibel - Intelligente Küchenlüftung

Neff Spezial

Blum Zonenplaner

Weibel Abluft-Tuning

Weibel Abluft-Tuning
Zurück
Oben