- Beiträge
- 98
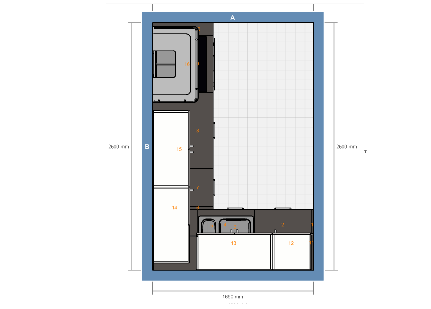
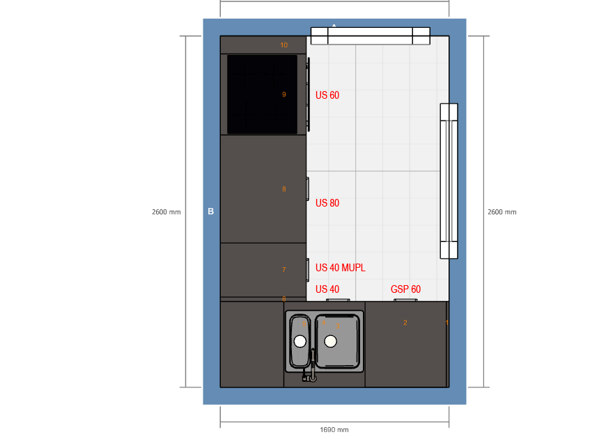
Ach, schaut mal hier, bin ich bei der google-Suche drüber gestolpert... 
https://www.kuechen-forum.de/forum/...rbeitsplatte-spuelmaschine-vzug.116108/#media
https://www.kuechen-forum.de/forum/...rbeitsplatte-spuelmaschine-vzug.116108/#media
