Jetzt kommt mein "UFF"

kuechentante

Spezialist
Beiträge
6.399
Hallo meine Lieblingsplaner !

Bin momentan festgefahren , und hab so gar keine gute Idee, die ich meinem Kunden am Mittwoch :w00t::w00t::w00t:
präsentieren könnte.
Bisher hat erstmal das erstgespräch stattgefunden , Geräte wurden noch nicht besprochen , Modell noch vage.
Bin (leider) der 1. Anlaufpunkt , und wir arbeiten uns dann Stück für Stück durch.
Hab dadurch die meiste Arbeit., Kunde kommt auf Empfehlung.

gewünscht :
Kochinsel
Backofen hoch
Kühl/GF
Kochfeld Ceran (Induktion sprechen wir nochmal drüber)
Breite je nach Planung
Thekenplatz am Kochfeld (den find ich persönlich überflüssig , da Sitzplatz im Raum , aber Kundenwunsch ist erstmal Befehl)
Habe erstmal großspurig über Arbeitsinseln gesprochen und Kochen an der Wand . Aber nach der 1. Planung , bin ich leider auch auf Kochen in der Insel gelandet.
Haube : erstmal Umluft, da Kamin (Details sind dann später abzustimmen)
Spüle : Keramik 1 Becken, 1 Ablage (wahrscheinlich Subway 45 V&B o. ähnlich)
Mülltrennung


Über Wände rausreißen möchte ich nicht gleich spekulieren, und nicht gleich mit der Tür ins Haus fallen.
Dazu fehlt mir außerdem der Komplettgrundriß des Hauses. (Salami-Taktik - Ihr versteht ...?);-)

Ich hänge hierzu noch meine 1. Planung nach Kundenwunsch ein, die zugegebenermaßen nicht optimal ist.

1. Blick vom Flur gleich auf die Arbeitsfläche:(
2. Kochen in der dunkelsten Ecke:(
3. vorhandner Tisch am Fenster( lt. Wunsch), Terassentür stört , wenn geöffnet:(
4. U-Planung - vielfach Nachteile hier dikutiert :rolleyes:


So und nun hoffe ich , daß Euch liebe Mitstreiter , hier wie schon so oft , die Quadratur des Kreises gelingt.
;D





Checkliste zur Küchenplanung von kuechentante

Anzahl Personen im Haushalt :
Davon Kinder? :
Körpergrössen aller Hauptbenutzer (wegen Arbeitshöhe ) in cm : ?
Art des Gebäudes? : Neu-/Umbau, Planänderungen nicht möglich
Brüstungshöhe des Fensters (in cm) : 000
Fensterhöhe (in cm) :
Raumhöhe in cm: :
Heizung : Fussbodenheizung
Sanitäranschlüsse : vollkommen variabel
Ausführung Kühlgerät? : Integriert im Hochschrank (60cm)
Kühlgerät Größe : bis 175 cm Höhe
Ausführung Tiefkühl (TK)-Gerät : Nicht erforderlich bzw. steht woanders
Dunstabzugshaube? : Umluft
Hochgebauter Backofen ? : Ja
Hochgebauter Geschirrspüler ? : nein
Kochfeldart? : Ceran (herkömmlich)
Kochfeldbreite ca. (in cm)? : nach Planungsmöglichkeit
Spülenform: : 1 Becken mit Abtropffläche
Weitere geplante Heißgeräte :
Küchenstil? : klassisch
Sitzmöglichkeit in der Küche / im Küchenbereich als : Überstehende Arbeitsplatte
Sitzmöglichkeit: Für wieviel Personen? : für 6 Personen
Sitzmöglichkeit: Tisch - wenn gesonderter Tisch oder offene Küche : Vorhandener Tisch
Gewünschte o. vorhandene Tischgröße : eventuell neuer Tisch
Wofür soll der Sitzplatz in der Küche genutzt werden? Wie häufig? : Tisch zu Essen , Theke zum klönen
Welche Arbeitshöhe ist angedacht (in cm)? :
Was steht auf der Arbeitsplatte oder soll dort stehen? : Sonstiges (evtl. im Beitragstext benennen)
Welche weiteren Küchenmaschinen müssen in der Küche untergebracht werden? : Sonstiges (evtl. im Beitragstext benennen)
Was soll in der Küche außer den Standards untergebracht werden? : Sonstiges (evtl. im Beitragstext benennen)
Welchen Stauraum gibt es sonst noch? : Hauswirtschaftsraum
Was/wie wird gekocht? (Alltagsküche, Menüs, Snacks usw) : Alltagsküche
Wie häufig wird gekocht? : Sonstiges (evtl. im Beitragstext benennen)
Wird alleine gekocht? Oder auch gemeinsam? Mit und für Gäste? :
Was stört an der bisherigen Küche und was soll die neue Küche unbedingt können? Warum? : ?
Steht schon ein Küchenhersteller fest oder wird bevorzugt? : ?
Steht schon ein Gerätehersteller fest oder wird bevorzugt? : ?
Preisvorstellung (Budget) : bis 15.000,-
 

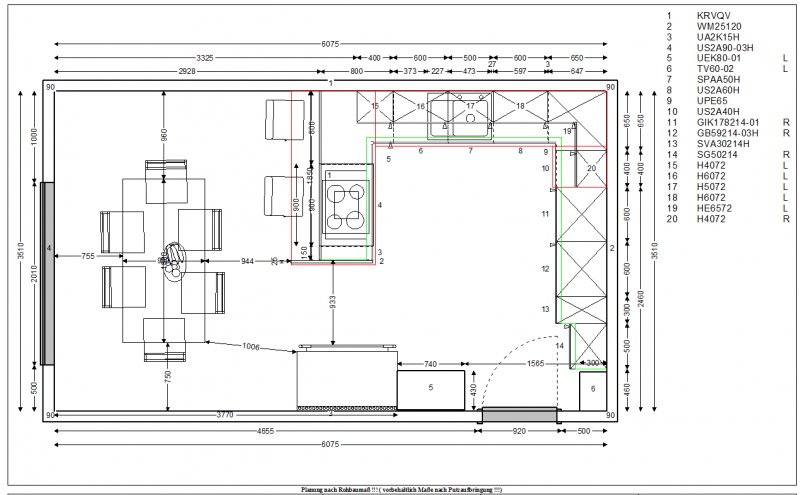
Anhänge

  • Grundriß Küfo .pdf
    382,4 KB · Aufrufe: 281
AW: Jetzt kommt mein "UFF"

Ich sehe keinen Plan nach Kundenwunsch ;-).

Im Grundriss ist am Kamin eine "Kochmaschine" gestellt ... soll da so etwas wie ein Kochherd hin?
 
AW: Jetzt kommt mein "UFF"

Plan kommt gleich !
Musste schnell mal vor in den Verkauf - Kunde !
 
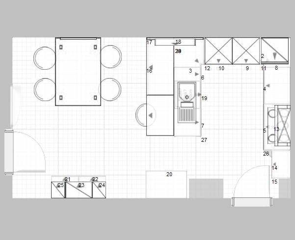
AW: Jetzt kommt mein "UFF"

Ich hoffe es hat geklappt.:-\
 

Anhänge

  • Planung .jpg
    Planung .jpg
    72,2 KB · Aufrufe: 263
AW: Jetzt kommt mein "UFF"

Jo Kochmaschine !

Mit dem Holz durchs ganze Haus oder durch den Garten über die Terasse.
Wie gesagt es war ein Erstgespräch , wo nur die Frau da war.
Den Mann kenne ich , ist viel beschäftigt .Erstmal muß ein guter Vorschlag her, dann wär der mit Sicherheit offen für Vorschläge. Aber totbombardieren kann und will ich den nicht.
Mittwoch haben wir den 2. Termin, wo es um Vorschläge für die Planung geht.
Budgetfrage ist auch noch nicht geklärt.
 
AW: Jetzt kommt mein "UFF"

Diese Kochmaschine stört irgendwie ein wenig ;-) ... hast du mal die Außenmaße von dem Teil?

Wie variabel schätzt du den Wasseranschluß denn ein? Ist er aktuell etwa dort, wo du die Spüle geplant hast?

Es ist DER Essraum, nicht wahr? Soll der Tisch auch mal vergrößerbar für mehr Leute werden?

Wie groß sind die Leute etwa? Mit welcher Arbeitshöhe planst du?
 
AW: Jetzt kommt mein "UFF"

Lt. Kundin ist der Tisch so vorhanden und nicht ausziehbar.
Ob der UNBEDINGT mit muss ins neue Haus , glaub ich nichtmal.
Wenn ich eine Top-Lösung vorzeigen kann , dann trau ich mir schon zu , daß zu kommunizieren, daß der wegmuß und was anderes her.
Zum Haushalt gehören 2 Erwachsene.
Ich weiß derzeit auch nicht , ob im Wohnzimmer für die große Party noch extra Platz ist. (Das Wozi ist nicht aufm Plan drauf)

Die Kochmaschine hab ich nur so aus den Grafikartikeln eingestellt und vorsichtshalber die Große mit 1100mm Breite genommen.
Auch hier müssen die Kunden sich dann mit der größe danach richten , was wir vorgeben, wenns die Planung erfordert.

Am Mittwoch stelle ich dann auch die Frage, wo das Holz geparkt wird.

Arbeitshöhe hab ich erstmal 91 genommen, 5-er Raster, da ich noch kein Budget habe. Werde dann bei Gelegenheit aber noch auf das 6-er Raster zu sprechen kommen. Frau hat erstmal nach Optik geschaut. Die Kundin steht da wirklich noch gaaaanz am Anfang.

Alle Anschlüsse noch ganz variabel. Baugenehmigung ist in Beantragung.
 
AW: Jetzt kommt mein "UFF"

Diese Kochmaschine stört irgendwie ein wenig ;-) ... hast du mal die Außenmaße von dem Teil?

Völlig deplaziert. (mit Holz durchs Haus)
Aber ich kann doch nicht gleich mit der Tür ins Haus fallen.

Vielleicht kann ich ja noch den Gesamtgrundriß kriegen und ma schauen , wie es dann mit dem Wozi aussieht, und ob es überhaupt zugunsten einer besseren Planung Sinn machen würde, wenn die blöde Wand dazwischen fällt.

Macht ja auch nur Sinn wenn's der Kunde will.
da gibt es ja sehr schöne Kombinationen Kochmaschine/Kamin ums Eck .
 
AW: Jetzt kommt mein "UFF"

Hier noch eine Stellvariante.

Da geht der linke Fensterflügel gut auf. AAAber Spüle und herd liegen mir zu weit auseinander.
Ebenso ist die Tischecke dann ziehmlich kahl.
Eventuell würde ich hier eine Eckbanklösung/Banklösung mit Überbau in Betracht ziehen.
 

Anhänge

  • Planung 1.jpg
    Planung 1.jpg
    54,7 KB · Aufrufe: 209
AW: Jetzt kommt mein "UFF"

Deine letzte Planung hat mich mal wieder zu der so von mir gemochten Spülen/Arbeits/Sitzinsel inspiriert.

Spülenschrank als 90er, Spüle linksbündig, dann sollte im oberen Auszug noch Gelber Sack etc. passen. Hinter der Spüle (im Grundriss grün die Wasserinstallation (könnte eine Wand sein). Links von der Spüle übertiefer Müll unter der APL und noch ein übertiefer 60er Auszugsunterschrank.

In der Hochschrankwand Vorratsschrank mit Innenauszügen, Backofenschrank, hochgebaute GSP, Kühlschrank und Holzregal ;-)

Die Kochfeldzeile könnte mit so einem Aufsatzschrank enden für Gläser oder so.

Planoben links könnte auch eine vorhandene Glasvitrine sein oder eine Möbelanrichte, evtl. auch antik oder so.

Die Bank könnte Truhenbank sein und richtig ordentlich gepolstert. Die Tischbeine querverbunden als Abstellpunkt für die Füße. Gatto hatte da neulich auch so ein Planungsbeispiel.

Vorteil .. Tresenplätze sind gleich integriert, Terrassentür frei zugänglich, Kochofen gut eingebunden, viel Stauraum und Arbeitsfläche möglich.
 

Anhänge

  • kuechentante-UFF_20130531_kb1.KPL
    4,1 KB · Aufrufe: 180
  • kuechentante-UFF_20130531_kb1.POS
    14,4 KB · Aufrufe: 184
  • kuechentante-UFF_20130531_kb1_Ansicht1.jpg
    kuechentante-UFF_20130531_kb1_Ansicht1.jpg
    135,5 KB · Aufrufe: 189
  • kuechentante-UFF_20130531_kb1_Ansicht2.jpg
    kuechentante-UFF_20130531_kb1_Ansicht2.jpg
    157,3 KB · Aufrufe: 198
  • kuechentante-UFF_20130531_kb1_Ansicht3.jpg
    kuechentante-UFF_20130531_kb1_Ansicht3.jpg
    118,6 KB · Aufrufe: 196
  • kuechentante-UFF_20130531_kb1_Ansicht4.jpg
    kuechentante-UFF_20130531_kb1_Ansicht4.jpg
    107,6 KB · Aufrufe: 208
  • kuechentante-UFF_20130531_kb1_Ansicht5.jpg
    kuechentante-UFF_20130531_kb1_Ansicht5.jpg
    80,6 KB · Aufrufe: 198
  • kuechentante-UFF_20130531_kb1_Ansicht6.jpg
    kuechentante-UFF_20130531_kb1_Ansicht6.jpg
    132,3 KB · Aufrufe: 207
  • kuechentante-UFF_20130531_kb1_Grundriss.jpg
    kuechentante-UFF_20130531_kb1_Grundriss.jpg
    63,9 KB · Aufrufe: 200
AW: Jetzt kommt mein "UFF"

Sachma, so als erste Idee zur Entkrampfung des Grundrisses: könnte man vorschlagen, die Terrassentür als Schiebetür zu gestalten? Linke Hälfte wird vor rechte Hälfte geschoben, circa 90cm Durchgangsbreite sollten doch genügen?
 
AW: Jetzt kommt mein "UFF"

Fände ich auch eine gute Idee ... und dann noch gleich die Tür so positionieren, dass auch planunten mind. 60 cm Wand sind, besser 65 cm. Dann kann man Küchenzeilen auch durchgehend setzen :cool:
 
AW: Jetzt kommt mein "UFF"

Hallo Ihr Lieben,

Hatte bis jetzt leider keine Zeit hier weiterzumachen.
(Am Wochenende Party, Party, Party)
Ich denke die Schiebetür wird das Maß aller Dinge sein.
Die kam mir schon in den Sinn , als ich die 1. Planung erstellte.
Bevor ich nicht mehr Infos habe, denke ich , drehen wir uns hier im Kreis.

Die Kundin soll mir mal den gesamten Hausgrundriß mitbringen.
Könnte mir auch vorstellen, daß die Wnad zum WoZi fallen muß/Kann.
 
AW: Jetzt kommt mein "UFF"

Der Raum ist halt ungünstig dimensioniert - bei einer Breite von 4,20m aufwärts hätte man mehr Möglichkeiten.
 
AW: Jetzt kommt mein "UFF"

Genau, Kerstin, diese 51 cm sind ja mal wieder sooo sinnlos!

Wie weit fortgeschritten ist der Bau denn? Noch in der Planungsphase?
Dann würde ich die Wand zum Heizungsraum auch gleich noch so weit schieben, dass rechts von der Flurtür wenigstens 60cm Tiefe entstehen. ;-) Dann kann vielleicht die WZ-Wand bleiben. Mal schauen.
 
AW: Jetzt kommt mein "UFF"

Ja, auch eine gute Idee, Annette.

Wanddurchbruch zum Wohnbereich sehe ich nicht unbedingt als vorteilhaft an. Denn, wenn dieser Kochherd unbedingter Wunsch ist, dann bietet es sich ja an, das Kochfeld gleich daneben zu haben und für beides gemeinsam eine DAH zu nutzen. Wobei ich da eben Decken-DAH in so eine Abhängung eingebaut, die möglichst viele Wrasen einfängt, als am effektivsten erachte.
 
AW: Jetzt kommt mein "UFF"

Ohne Grundrissänderungen mal noch ein Versuch:

Ich hab die Kochmaschine jetzt doch als Sologerät stehen gelassen (davon ausgehend, dass dort quasi nie gekocht werden wird) und an der Wand sonst nur noch ein "Familienerbstück" platziert. So eine Kochmaschine sieht nicht direkt modern aus, oder? Oder es ist Platz für ein wenig tiefes Sideboard.

Die Küche wieder als U, aber mit Kochen an der Wand rechts und den Seitenschränken planoben.
Ob da nun ein Rolloschrank oder etwas anderes in die Ecke kommt, ist ja variabel.

Die Schränke an der planrechten Seite sind 80 - 100 - 60 mindertief, damit das Kochfeld ein bißchen weiter weg von der Tür kommt. 90-90-60 sind natürlich auch möglich.

Die Spülenhalbinsel besteht aus 30cm Müllschrank - 60cm Spüle - 60cm GSP. Das saubere Geschirr kann aus der GSP auf die Insel gestellt werden und hat auf der Inselrückseite einen 120cm Unterschrank zum aufgeräumt werden.

Zwischen Spüle und Kochfeld sind 130cm Platz. Das finde ich noch okay und beim Kochen zu zweit auch angenehm.

Der Esstisch mit Stühlen hat noch fast 3 Meter Platz. Bei Bedarf kann es weiter in Richtung planunten geschoben werden.

Zu wenig Küche?
Zu dunkle Küche?
Zu schmaler Durchgang?
 

Anhänge

  • kuechentante-UFF_mca_V1.POS
    19,8 KB · Aufrufe: 186
  • kuechentante-UFF_mca_V1_A1.jpg
    kuechentante-UFF_mca_V1_A1.jpg
    76,8 KB · Aufrufe: 183
  • kuechentante-UFF_mca_V1_A2.jpg
    kuechentante-UFF_mca_V1_A2.jpg
    50,3 KB · Aufrufe: 181
  • kuechentante-UFF_mca_V1_A3.jpg
    kuechentante-UFF_mca_V1_A3.jpg
    54,7 KB · Aufrufe: 178
  • kuechentante-UFF_mca_V1_A4.jpg
    kuechentante-UFF_mca_V1_A4.jpg
    53,5 KB · Aufrufe: 179
  • kuechentante-UFF_mca_V1_A5.jpg
    kuechentante-UFF_mca_V1_A5.jpg
    63,3 KB · Aufrufe: 192
  • kuechentante-UFF_mca_V1_G.JPG
    kuechentante-UFF_mca_V1_G.JPG
    44,3 KB · Aufrufe: 193
  • kuechentante-UFF_mca_V1.KPL
    3,9 KB · Aufrufe: 158
AW: Jetzt kommt mein "UFF"

Vom IPhone ! Halten wir fest : Es muss eine Schiebetür sein . Wand sollte in Richtung HWR verschoben werden . Morgen bin ich in Berlin und kümmere mich um meine eigene Wohnraumplanung . Am Mittwoch bekomme ich hoffentlich mehr Infos .
 
AW: Jetzt kommt mein "UFF"

Ja Mittwoch ist vorbei, aber die Erkenntnisse sind nicht größer.
:w00t::w00t:
Wenn Frau mir auf jede meiner Fragen mit " Weiß ich nicht, muß ich erst fragen" antwortet, kann ich da erstmal nicht anknüpfen.:-\

Sie will keine Kochmaschine , er wohl.

Kochen will Sie da nicht und wozu er die Kochmaschine will (heizen ??), konnte nicht geklärt werden, weil FUBO-Heizung.

Meine Idee ging auch dahin , eventuell Raumverbreiterung(Richtung WoZi) und /oder Verlängerung(Richtung Heizraum)

Wir sind jetzt so verblieben, daß die Fragen erstmal bei den beiden Partner geklärt werden, und wir dann anknüpfen.

Erstmal haben wir vertagt.

Beim nächsten Termin wollen (u. müssen) beide kommen.

Sonst spielen wir stille Post.
 

Ähnliche Beiträge

Neff Hausgeräte Ballerina Küchen Blum Bewegungstechnologie Weibel - Intelligente Küchenlüftung

Neff Spezial

Blum Zonenplaner

Weibel Abluft-Tuning

Weibel Abluft-Tuning
Zurück
Oben