Hilfe bei Küchenplanung im Neubau

Ares

Mitglied
Beiträge
7
Hallo!

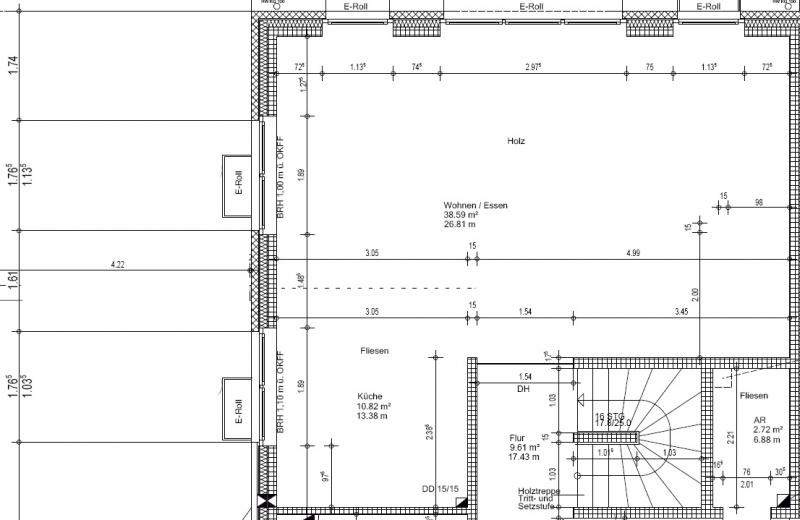
Es geht um den Aufbau der Küche in unserem Neubau. Ich habe den betreffenden Ausschnitt des EG-Grundrisses als Bild beigefügt. Die Küche ist zum Wohnzimmer hin offen und soll durch eine Bar/Theke abgegrenzt werden.

Im Grundriss über der Küche folgt der Essplatz. In der Küche selbst sind also (bis auf die Theke) keine Sitzgelegenheiten notwendig.

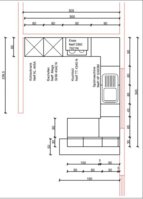
Unsere bisherige Planung sieht eine Küche von Schüller mit Neff Geräten vor. Ich habe versucht den aktuellen Stand der Planung so gut es geht aufzuzeichnen. Auch mit dem Küchenplaner von Alno habe ich die Küche nachgebaut, allergins habe ich hier nicht alle benötigten Teile gefunden.

Die Theke soll mit drei Füßen auf den darunter liegenden Schränken, an der Wand und durch einen Sockel auf dem Boden gestützt werden. Ich hoffe das kann man aus den Zeichnungen erkennen.

Die Hochschränke sollen 169cm hoch sein. Da ich im Alno-Programm keine passenden modelle gefunden habe, habe ich diese einfach etwas hoch gesetzt.

In der Alno Planung ist über dem Backofen noch eine Einbaumikrowelle zu sehen. Hier kommt zwar eine Mikrowelle hin, jedoch kein Einbaumodell sondern ein Standardgerät das hinter einer Schranktür verschwinden soll.

Als Spülbecken soll ein Modell mit einem Becken, einem Restebecken und Abtropffläche verwendet werden.

Bei den Schränke unter der Theke die vom Wohnzimmer aus zugeänglich sind habe die äußeren beiden Türen aus Korpusmaterial, ermittlere hat eine Glastür.

Grundsätzlich soll die Alno Planung nur als Visualisierung dienen. Die Details und tatsächlichen Aufteilungen finden sich eher in den anderen Plänen.

Bezüglich der Checkliste habe ich noch folgende Ergänzungen:

  • Körpergrösse des Hauptbenutzers: Meine Frau ist 160, ich bin 195. Für die Küche also ein recht ungünstiges Verhältnis. Unsere aktuelle Küche hat eine Arbeitshöhe von 92cm womit meine Frau gut zurecht kommt
  • Dunstabzugshaube: Eigentlich ist ein Wanddurchbruch für Abluft vorgesehen. Im Küchenstudio wurde uns allerdings gesagt, dass es bei einem Neubau eine Schande wäre die warme Luft nach außen zu Pusten. Da wir eine kontrollierte Belüftung haben wäre eine Umlufthaube zum filtern der Gerüche absolut ausreichend. Zudem bräuchten wir bei Ablufthaube und Belüftung zusätzlich eine Zwangsbelüftung. Wie seht ihr das? Die Position des Wanddurchbruches ist noch flexibel.
  • Anzahl der Personen im Haushalt: Noch sind wir zu zweit, das soll aber nicht so bleiben :-)
Wie seht ihr diese Planung? Ist die Aufteilung sinnvoll? Was würdet Ihr ggf. anders machen?

Wir haben schon überlegt den 90er Eckschrank durch eine tote Ecke zu ersetzten und entsprechend normale Unterschränke zu ergänzen. Wir haben allerdings noch keine gute Lösung gefunden wie wir die Unterschränke dann aufteilen.

Herzlichen Dank für euer Feedback!
Ares
 

Anhänge

  • EG Grundriss.jpg
    EG Grundriss.jpg
    52,3 KB · Aufrufe: 216
  • Küche Ansichten.jpg
    Küche Ansichten.jpg
    23,5 KB · Aufrufe: 202
  • Küche Grundriss.jpg
    Küche Grundriss.jpg
    32,2 KB · Aufrufe: 201
  • Küche 4.KPL
    4,1 KB · Aufrufe: 180
  • Küche 4.POS
    12,5 KB · Aufrufe: 197
AW: Hilfe bei Küchenplanung im Neubau

Hallo Ares,

hier mal ein paar Beiträge zu den gestellten DAH Fragen, die das Problem bereits behandeln. Am Ende sind die Meinungen dazu sehr unterschiedlich und jeder muss für sich entscheiden, wie er das Problem löst.

Zudem bräuchten wir bei Ablufthaube und Belüftung zusätzlich eine Zwangsbelüftung

Das ist natürlich Unsinn und wahrscheinlich auf den Einsatz einer offenen Feuerstelle bezogen, die das erfordert.

https://www.kuechen-forum.de/forum/themen/2593-kontrollierte-be-und-entlueftungsanlagen.html

https://www.kuechen-forum.de/forum/themen/dunstabzugshaube-o-f-a-line.3139/

Ohne Gewähr auf Vollständigkeit. Da gibt es sicher noch mehr.

Und hier zu deiner Idee, den Eckschrank zu canceln:

https://www.kuechen-forum.de/forum/themen/warum-tote-ecken-gute-ecken-sind.1616/
 
AW: Hilfe bei Küchenplanung im Neubau

Hallo Ares,
wenn du so von euren unterschiedlichen Größen schreibst, dann vermute ich, dass ich ihr auch beide in der Küche arbeitet. Von daher wäre es vielleicht sinnvoll über 2 verschieden hohe Arbeitsbereiche nachzudenken. Ich werde das gleich mal versuchen.

Der Tresen gefällt mir sehr gut. Man könnte rechts von der Esszimmerseite aus auch einen 60 bis 75 cm tiefen Schrank in die tote Ecke schieben, Fronttür und innen dann Innenauszüge, damit man auch rankommt. Da kann dann Geschirr fürs Esszimmer untergebracht werden.

VG
Kerstin
 
Zuletzt bearbeitet:
AW: Hilfe bei Küchenplanung im Neubau

Hallo Ares,
an der grundsätzlichen Aufteilung habe ich nichts geändert.

Kochbereich bis zur Spüle jetzt mal in einer Arbeitshöhe von ca. 86 bis 88 cm ... je nach Möbelprogramm. Im Kochbereich geht diese Höhe auch für große Leute und ermöglicht einen guten Blick in die Töpfe. Im Tresenbereich das Element dann in einer Arbeitshöhe von 99 bis 101 cm ... eben wieder je nach Möbelprogramm und Sockelhöhe. Damit ergibt sich ein Schnippelbereich im Licht für die größere Person, der auch noch in der Nähe der Spüle ist. Gleichzeitig wird diese höhere Höhe auch noch zu einem zusätzlichem Sichtschutz.

In der toten Ecke habe ich jetzt von Esszimmerseite tatsächlich mal einen 50 breiten und 60 tiefen Schrank mit Innenauszügen geplant. Dann nutzt man die Ecke gut.

EDIT: Zu den Unterschränken ... beim Kochfeld einen 90er für Töpfe usw. sowie einen 30er für Gewürze, Öle, Kleinvorräte wie Mehl etc. Was man halt beim Kochen so braucht.

An der Spülenzeile ebenfalls einen 90er für Schüsselchen, Tupper usw. Die Aufteilung der Schubladen ist jetzt mal so gewählt, dass es ein ruhiges Bild ergibt. Das muss man dann mit dem gewählten Möbelprogramm unter Berücksichtigung der Stauraumwünsche machen. In der Koch und flacheren Arbeitsecke sollte auf jeden Fall irgendwo eine Schublade für Kochbesteck und Messer sowie Küchenhelfer sein.

Am Tresen dann genügend Stauraum für Geschirr etc. Evtl. muss man dann überlegen, den 90er Schrank mit der Spüma zu tauschen, damit man beim Spüma-Ausräumen besser an den Geschirrschrank kommt.

Wo ist eigentlich ein TK gedacht?

In der neuesten Version vom Alnoplaner gibt es 173 cm hohe Seitenschränke. Die habe ich jetzt verwendet. Wie kommst du eigentlich auf den exakten Wert von 169 cm? Aus dem Schüller -Angebot?
VG
Kerstin
 

Anhänge

  • kf_ares_20090523_Variante1_Ansicht4.jpg
    kf_ares_20090523_Variante1_Ansicht4.jpg
    173,1 KB · Aufrufe: 175
  • kf_ares_20090523_Variante1_Ansicht2.jpg
    kf_ares_20090523_Variante1_Ansicht2.jpg
    143,1 KB · Aufrufe: 176
  • kf_ares_20090523_Variante1_Ansicht3.jpg
    kf_ares_20090523_Variante1_Ansicht3.jpg
    173,4 KB · Aufrufe: 169
  • kf_ares_20090523_Variante1_Ansicht1.jpg
    kf_ares_20090523_Variante1_Ansicht1.jpg
    146,3 KB · Aufrufe: 186
  • kf_ares_20090523_Variante1.POS
    9,8 KB · Aufrufe: 189
  • kf_ares_20090523_Variante1.KPL
    4,2 KB · Aufrufe: 184
  • kf_ares_20090523_Variante1_Grundriss.jpg
    kf_ares_20090523_Variante1_Grundriss.jpg
    65,9 KB · Aufrufe: 173
AW: Hilfe bei Küchenplanung im Neubau

Hallo!

Erst einmal herzlichen dank für den großen Aufwand und die tolle Planung! Die Anregungen mit den zwei Arbeitshöhen und dem tieferen Schrank zur Ausnutzung der toten Ecke sind wirklich genial!

Bei den zwei Arbeitshöhen müssen wir nur mit der Höhe der Theke aufpassen. Wenn ich mich recht erinnere gibt es die Füße die auf den Schränken aufstehen nur in fixen Größen. Wenn wir hier die Arbeitshöhe um 10cm rauf setzten würde natürlich auch die Theke entsprechend höher und wir müssen testen ob das dann nicht für meine Frau zu hoch wird.

Zusätzlich zu diesen beiden Änderungen (tieferer Eckschrank und höhere Arbeitsfläche) kommen für uns dann noch zwei weitere Änderungen in Frage:


  1. Ersetzung des Eckkarussells durch eine eine Tote Ecke und damit zusätzliche Schubladenschränke (z.B. wie von dir geplant)
  2. Ersetzung des Hochschranken für den Kühlschrank durch ein solitär Gerät wodurch wir uns versprechen wir uns mehr Platz im Kühlschrank versprechen. Hier müsste natürlich ein Gerät gefunden werden, dass ca. die gleiche Höhe hat wie der verbleibende Hochschrank um keine Stufe zu bauen.
Bevor wir uns hier in die genauere Planung stürzen würden wir gerne abschätzen können welche preislichen Auswirkungen diese Lösungen ca. haben. Leider gibt es ja keine öffentlichen Preislisten die solchen einen Vergleich zulassen (oder gibt es diese doch?) und wir wenden und daher an die Experten hier :p

Bei dem Tausch des Eckkarussells gegen zwei Schubladenschränken hoffen wir diesen ca. preisgleich ausführen zu können. Oder sind die Schubladen deutlich teurer?

Auch bei dem Tausch des Hochschrankes hoffen wir durch den Verzicht auf den Schrank ca. die Mehrkosten für den Kühlschrank decken zu können. Aber eine genaue Vorstellung was so ein Schrank kostet haben wir leider nicht.

Das 10cm mehr Höhe und ein 50-70cm Tiefer Schrank mit Innen Auszügen mehr kosten ist klar. Aber von Kosten in welcher Höhe gegen wir hier ganz grob aus?

Wenn dies hier jemand einschätzen kann wären wir für jeden Hinweis dankbar. Das hier keine genauen Preise genannt werden können ist klar, aber es geht wie gesagt nur darum ca. die Richtung einschätzen zu können.

Achja:
Bezüglich der Höhe der Hochschränke scheine ich mich einfach vertan zu haben. Ich meine zwar aus dem Beratungsgespräch noch die Höhe von 169cm im Ohr zu haben, das Schüllerprospekt zeigt mir jedoch, dass hier nur Höhen von 159,5cm oder 172,5cm möglich wären.

Besten Dank
Ares
 
AW: Hilfe bei Küchenplanung im Neubau

Noch eine Rückfrage:

Kann mir jemand sagen in welchen Breiten es die Schänke im aktuellen Schüllerprogramm gibt? Die Unterlagen die ich hierzu habe geben leider nur Aufschluss über die Verfügbaren Höhen...
 
AW: Hilfe bei Küchenplanung im Neubau

Hallo Ares,
gehe bitte bei den unterschiedlichen Höhen nicht von 10 cm aus, sondern von 1 Raster. Bei Schüller (nextline?) liegt das wohl je nach Programm zwischen 12,5 und 13 cm. D. h. die höhere Arbeitsfläche hätte eine Schubladenhöhe mehr. Der Sockel wäre aber überall identisch.

Die Arbeitshöhe in der hohen Variante wäre ca. 99 cm .. die Oberkante Tresen wäre dann sinnvollerweise so ca. 115 cm ... eigentlich richtig normale Barhöhe.

Und die Idee mit dem Solokühlschrank würde ich hier wieder verwerfen. Das dürfte nicht so gut aussehen.

Preise ... am einfachsten ist es, sich das anbieten zu lassen. Man kann das einfach nicht pauschal auf Heller und Pfennig nach xx preiswerter oder teurer beziffern. Wesentlich sollte bei einer Planung ja auch zunächst mal die Praxistauglichkeit sein.

VG
Kerstin
 
AW: Hilfe bei Küchenplanung im Neubau

Hallo Kerstin,

der Unterschied in der Arbeitshöhe wäre 13cm, das ist klar. Wie ich hier auf 10cm gekommen bin weiß ich auch nicht mehr :-)

Damit das ein integrierter Kühlschrank an dieser Stelle besser aussähe hast du vermutlich recht. Dennoch werden wir uns diese Option in jedem Fall mal anbieten lassen. Wie du selbst sagst kommt es im Wesentlichen ja auf die Praxistauglichkeit an. Die Solitärgeräte die wir uns angeschaut haben bieten doch deutlich mehr Platz und damit auch zusätzliche Funktionen (z.B. mehr Platz für 0 Grad Zone, etc.) als die integrierten Geräte die wir gesehen haben.

Bei dem integrierten Kühlschrank der im Moment vorgesehen ist, befindet sich darunter ja noch ein Schrankfach. Wir glauben nicht, dass sich das wirklich sinnvoll nutzen lässt und würden den Platz daher gerne für den Kühlschrank nutzen. Ein integrierter Kühlschrank der den gesamten Innenraum des Hochschranks verwendete steht laut Beratung nicht zur Verfügung.

Das für konkrete Preisunterschiede nur mit einem konkreten Angebot in Erfahrung gebracht werden können ist klar. Auf die genaue Preisdifferenz soll es hier aber wie gesagt auch gar nicht ankommen. Eine ganz grobe Einschätzung wäre uns erstmal vollkommen ausreichend. Was kostet z.B. der Schrank für den Kühlschrank ca.? Sind hier 100, 500 oder 1000 EUR realistisch? Ist der Tausch Eckkarussell vs. zwei Schubladenschränke ca. 1:1 möglich?

Besten Dank
Ares
 
AW: Hilfe bei Küchenplanung im Neubau

Hallo Ares,
der Tausch Karrussell gegen die Schubladenschränke ist auch nicht so einfach abzuschätzen. In der Spülenzeile hattest du ja einen eh schon einen Schrank vorgesehen, aber wohl nur 60 oder so mit Tür? In der Kochfeldzeile war es ein 100er Auszugsschrank, nicht wahr, der jetzt zu 90 + 30 wird.

Zum Kühlschrank ... ich habe ja selber ein Stand-Alone-Gerät. Ich weise aber darauf hin, wenn dieses am Ende der Zeile steht, musst du ca. 5 cm Wandabstand, dann eben ohne Blende einrechnen, damit die Tür wg. dem Griff vollständig aufgeht. Bei mir fällt das nicht weiter auf .. aber bei euch wäre das voll im Blick. Und, es ist nun mal eine offene Küche, wo dann Optik irgendwann auch eine Rolle spielen sollte. Außerdem, wird vermutlich der zweite Hochschrank dann teurer, wenn du ihn in der Höhe dem Kühlschrank anpassen willst. Und wehe, der Kühlschrank muss dann getauscht werden ... so sehr ich Stand-alone-Fan bin, hier würde ich eindeutig abraten.

Ich habe mal im Alnoplaner geguckt, für die 175 cm hohen Hochschränke (mit 17er Sockel ) gibt es einen Schrank, der für den Einbau von 140 bis 152er Kühlschränken vorgesehen ist.

Als 140er finde ich da z. B. den Liebherr IKB 2820 Premium Biofresh mit A++ ... das wäre doch eine Möglichkeit ... oder?

VG
Kerstin
 

Ähnliche Beiträge

Neff Hausgeräte Ballerina Küchen Blum Bewegungstechnologie Weibel - Intelligente Küchenlüftung

Neff Spezial

Blum Zonenplaner

Weibel Abluft-Tuning

Weibel Abluft-Tuning
Zurück
Oben