Unbeendet Bitte um Verbesserungsvorschläge und Tips!

bernd36

Mitglied
Beiträge
31
Hallo Ihr Lieben!

Ich hoffe Ihr steinigt mich nicht ;-)

Unsere Küche ist eigentlich soweit relativ fertig geplant.
Es wird eine Nobilia Pia mit Fronten, APL und Rückwand in Eiche Provence NB, die Fronten der Oberschränke und des Kühlschrankblocks werden in Rio Magnolia-Lack sein.
Über Empfehlungen zu anderen Herstellern im selben oder günstigeren Preissegment dürfen gerne genannt werden.
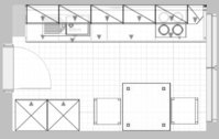
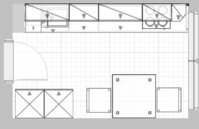
Ihr seht hier die Bilder wie die Planung momentan ist.

IMG_4143.jpgIMG_4142.jpgIMG_4141.jpgIMG_4140.jpg

Wir wollen jetzt keine andere Küchenform, von den Maßen ist es gut wie es ist.
Wasser kann auch nicht verlegt werden, ebenso keine Fenster etc.
Ich bitte nur um Infos ob man im Rahmen der bestehenden Planung etwas besser machen kann oder
um Vorschläge um die Möbel in anderer Reihenfolge zu stellen etc.
Auch gerne Tips für die Frontgestaltung, Rückwände etc. (evtl. doch keine Rückwand ider nur halbhoch?)

Bei den Geräten bin ich sehr unschlüssig ob ich sie direkt im Möbelhaus kaufen soll oder sie selbst bestellen sollte.
Ich hätte gerne eine Kühl-Gefrierkombi mit wenigstens drei Gefrierfächern, Geschirrspüler (voll integriert), Induktionsfeld, Backofen mit Pyrolyse und Teleskopschienen oder Backwagen hochgestellt, evtl. Mikrowelle .
Spülbecken, Armatur und Dunstabzug sind schon fix.

Sollte man den 120er Block mit KS und BO umgestalten oder erweitern, hier wäre noch Spielraum?
Evtl. könnte ich mir hier noch Wangen vorstellen.

Als Budget habe ich jetzt 5000.- € genannt, wenn es 5500.- € sind auch ok.
Der aktuelle Preis inkl. Geräten wäre 5400.- €, da sind aber schon 1500.- € "Rabatt", etliche Prozente "ich frag die Chefin ob noch was geht" und die Differenz zur UVP abgezogen. UVP wären angeblich über 12000.- €.


Checkliste zur Küchenplanung von bernd36

Anzahl Personen im Haushalt : 3
Davon Kinder? : 1
Körpergrössen aller Hauptbenutzer (wegen Arbeitshöhe ) in cm : 170,180
Art des Gebäudes? : Bestandsbau, Umbauten ausgeschlossen
Brüstungshöhe des Fensters (in cm) : 91
Fensterhöhe (in cm) :
Raumhöhe in cm: :
Heizung : Heizkörper wie im Grundriss
Sanitäranschlüsse : fix
Ausführung Kühlgerät? : Integriert im Hochschrank (60cm)
Kühlgerät Größe : noch unbekannt
Ausführung Tiefkühl (TK)-Gerät : Im Kühlschrank ab 3 Schubladen unten
Dunstabzugshaube? : Umluft
Hochgebauter Backofen ? : Ja
Hochgebauter Geschirrspüler ? : nein
Kochfeldart? : Induktion
Kochfeldbreite ca. (in cm)? : 60
Spülenform: : 1 Becken mit Abtropffläche
Weitere geplante Heißgeräte : Standmikrowelle
Küchenstil? : klassisch
Sitzmöglichkeit in der Küche / im Küchenbereich als : Gesonderter Tisch
Sitzmöglichkeit: Für wieviel Personen? : für 3 Personen
Sitzmöglichkeit: Tisch - wenn gesonderter Tisch oder offene Küche : Wird nach Bedarf neu gekauft
Gewünschte o. vorhandene Tischgröße : noch nicht fix
Wofür soll der Sitzplatz in der Küche genutzt werden? Wie häufig? : Frühstück
kleine Mahlzeiten
Welche Arbeitshöhe ist angedacht (in cm)? : 94
Was steht auf der Arbeitsplatte oder soll dort stehen? : Wasserkocher, Allesschneider, Sonstiges (evtl. im Beitragstext benennen)
Welche weiteren Küchenmaschinen müssen in der Küche untergebracht werden? : Küchenmaschine, Toaster, Handrührgerät, Mixer, Pürierstab, Sonstiges (evtl. im Beitragstext benennen)
Was soll in der Küche außer den Standards untergebracht werden? : Geschirr komplett (nichts in Ess-/Wohnzimmer)
Welchen Stauraum gibt es sonst noch? : Geschirr/Gläserschrank im Wohn-/Esszimmer, Speisekammer, Keller
Was/wie wird gekocht? (Alltagsküche, Menüs, Snacks usw) : alles
Wie häufig wird gekocht? : (fast) täglich 1x warm
Wird alleine gekocht? Oder auch gemeinsam? Mit und für Gäste? : meist alleine
Was stört an der bisherigen Küche und was soll die neue Küche unbedingt können? Warum? : bisherige Küche ist ok, Neukauf wegen Umzug
Steht schon ein Küchenhersteller fest oder wird bevorzugt? : Nobilia (Alternativen im gleichen oder günstigeren Preissegment dürfen gerne genannt werden
Steht schon ein Gerätehersteller fest oder wird bevorzugt? :
Preisvorstellung (Budget) : bis 5.000,-
__________________________Im Threadverlauf hinzugekommen:
Grundrissskizze:

127118d1385946139-bitte-um-verbesserungsvorschlaege-und-tips-grundriss-kueche.jpg


Weitere Fotos und Erläuterungen in Beitrag 14
 
Zuletzt bearbeitet von einem Moderator:
AW: Bitte um Verbesserungsvorschläge und Tips!

Mir würde spontan einfallen: GSP nach außen, Spülenschrank schmaler und dafür einen Müll unter der APL dazu.

Um das genau sagen zu können, braucht man eben doch einen vermaßten Grundriss des Raumes mit genauer Wasserposition von/bis.

Das Kochfeld ist mittig über den beiden Unterschränken?

Wieviel Abstand ist zwischen APL und Unterkante Hängeschränke? Insbesondere mit einer DAH am Kochfeld erscheint mir das sehr beengend.

Glashängeschränke sind sehr breit, habt ihr so viel Schönes, was dahinter stehen soll? Denn auch durch satiniiertes Glas sieht man die Konturen und Farben von dem Staugut.
 
AW: Bitte um Verbesserungsvorschläge und Tips!

Bei Eurer Größe und 94 cm Höhe ist es schade, dass es kein 6er-Raster ist. Wäre jedoch dann ein höherer Preis und Anbieter. Auf jeden Fall würde ich das Abschlussregal bei den Oberschränken weglassen. Erinnert mich immer an die Eiche-Rustikal-Küchen und passt in die modernen Küchen m.E. einfach nicht besonders gut.
Und die Angaben über angebliche UVK's und Rabatte könnt Ihr vergessen. Der letztendlich genannte Preis zählt.
 
AW: Bitte um Verbesserungsvorschläge und Tips!

Also kurz zur Erklärung, das Abwasserrohr und die beiden Zuleitungen für kalt- und Warmwasser befinden sich erst im Bereich nach den ersten 60 cm., genauer enden diese nach 77 cm. von der linken Wandseite. Somit lässt sich weder der GSP verschieben und es brauch einen breiteren Unterschrank .
Viellciht hat jemand eine andere Idee?
Das Kochfeld befindet sich mittig über den beiden Auszugsschränken.
Abstand zwischen APL und Hängeschränke sind 60 cm.
Die Glashängeschränke haben uns halt gut gefallen, was könnten wir alternativ machen?
Kannst Du evtl. noch was zu den anderen Fragen sagen?
Danke & Gruß!
 
Zuletzt bearbeitet von einem Moderator:
AW: Bitte um Verbesserungsvorschläge und Tips!

Das Abschlussregal haben wir erst bei der Neubearbeitung eingefügt, sollte man es lassen?
Ist der genannte Preis realistisch?
 
Zuletzt bearbeitet von einem Moderator:
AW: Bitte um Verbesserungsvorschläge und Tips!

Verstehe ich jetzt nicht - wenn die Anschlüsse mehr als 60cm von der linken Wand weg sind, kann doch die Spülmaschine gut ganz nach links?
 
AW: Bitte um Verbesserungsvorschläge und Tips!

Verstehe ich jetzt nicht - wenn die Anschlüsse mehr als 60cm von der linken Wand weg sind, kann doch die Spülmaschine gut ganz nach links?

Sorry, das habe ich falsch erklärt, das Abwasserrohr läuft teilweise aufputz und steht an der grössten Stelle ca. 8,5 cm. von der Wand ab.
Hier zur Erklärung ein Bild:
IMG_4003.jpg
 
AW: Bitte um Verbesserungsvorschläge und Tips!

Mir würde rein optisch der Glasschrank zwischen den weißen Oberschränken nicht gefallen.
Das wirkt ein bisschen wie Restschränke zusammengestoppelt;-) Ich weiß, du willst die Farbe der Unterschränke wieder aufnehmen...aber wenn es schon zweifarbig sein soll, würde ich hier einen Oberschrank mit der gleichen weißen Front, wie die anderen wählen.

Edit: und Abschlussregal weg....für mich ist das auch ein Nogo in einer modernen Küche;-)
 
AW: Bitte um Verbesserungsvorschläge und Tips!

Wie breit ist der Raum? Eine übertiefe APL könnte das Problem mit dem GSP ganz links lösen (kostet einen kleinen Aufpreis, bringt aber sehr viel Komfort beim Arbeiten, da man 2-Reihig arbeiten kann; ausserdem hat man dann die Hänger nicht mehr so vor dem Kopf hängen).

Wenn ihr auf einer Höhe von 98cm arbeiten könntet, kämen für euch die 6-rastrigen XXL-U-Schränke von Nobilia in Frage, das gibt eine ganze Ebene mehr Stauraum. Bei den mir bekannten Planungen hat der XXL-Korpus keinen Aufpreis gekostet.


Ein ordentlich vermasster Grundriss wäre von Nutzen! Dann müssten wir nicht 'rate mal mit Rosenthal' spielen.

Backwagen ist verneuet und nur bei untergebauten BO praktisch - bei hochgebauten BO gibt es nichts woran man sich sonst so gut verbrennen kann. Teleskopauszüge sind da die passende Wahl.
 
AW: Bitte um Verbesserungsvorschläge und Tips!

Mir würde rein optisch der Glasschrank zwischen den weißen Oberschränken nicht gefallen.;-)

Ich wollte halt gerne nicht bloss eine Reihe gleicher Oberschränke.
Macht es eher Sinn die Glasschränke in weißem Rahmen zu bestellen?
 
AW: Bitte um Verbesserungsvorschläge und Tips!

Eine übertiefe APL könnte das Problem mit dem GSP ganz links lösen

Das ist leider nicht möglich da direkt daneben die Türe ist und diese nicht mehr zugehen würde.
Könnte man was mit einer Blende machen?

Wenn ihr auf einer Höhe von 98cm arbeiten könntet, kämen für euch die 6-rastrigen XXL-U-Schränke von Nobilia in Frage

Unter welcher Typenbezeichnung könnte ich diese beim KFB verlangen?
 
AW: Bitte um Verbesserungsvorschläge und Tips!

Du brauchst nicht jeden Text zitieren :rose:

Bei Nobilia sind das die Maxikorpusse.

Für einen weiteren sinnvollen Blick auf deine Planung wäre ein vermaßter Grundriss Voraussetzung, dann braucht man z. B. nicht Vorschläge zu machen, die sich aufgrund des Grundrisses automatisch klären würden ;-), eine Tür ist nämlich auf den eingestellten Bildern nicht zu sehen.
 
AW: Bitte um Verbesserungsvorschläge und Tips!

Da ich momentan in familiären Angelegenheiten unterwegs bin und erst am Wochenende nach Hause komme, kann ich erst dann einen Grundriss einstellen.
 
Meine neue Küche - bitte um Mithilfe!

Hallo Ihr Lieben!
Da ich ja in den letzten Tagen schon ein bisschen was zu meiner neuen Küche gepostet habe hier nun der Planungsthread dazu.
Die Küche ist derzeit leer, soll aber bis spätestens Ende Februar bezugsfertig sein.
D.h. ich müsste die Küche noch diese Woche bestellen.
Wie schon im letzten Thread beschrieben steht die grobe Planung.
Mit der Beratung der :kfb:bin ich eigentlich recht zufrieden, sie ist sehr freundlich und hilft mir meine
Wünsche umzusetzen.

Ich stelle einen (leider) handgezeichneten Grundriss mit allen Maßen ein, sowie nochmals die letzten
Ergebnisse der Planung aus einem großen Münchner Möbelhaus. ;-)

Das derzeitige Modell beruht auf einer Nobiliaküche Pia mit Korpus, Front, Sockel , APL und Rückwand
in Eiche Provence Nachbildung.
Einzelne Fronten und die Fronten der Oberschränke hätte ich gerne in Magnolia.
Hier wäre mir Lack am liebsten, jedoch würden mich auch die Fronten der Laser-Serie interessieren.

Vor der Aufteilung der Schränke bin ich großteils zufrieden.
Das Kochfeld ist in der jetzigen Planung mittig zwischen den beiden Auszugsschränken vorgesehen, ist aber kein Muß.
Die Abzugshaube ist hinter dem Oberschrank , der gleichzeitig als Gewürzschrank dienen kann.
Leider sind die Wasseranschlüsse so doof gelegen, das man mit einem 60er Spülenschrank nicht auskommt.
Das Ablaufrohr läuft teils aufputz und endet von der linken Wand gesehen erst bei 68,5 cm.
Die Wasseranschlüsse liegen wenn man die jeweilige Mitte des Eckventils misst bei 55 und 74 cm. von der
linken Wand gemessen.
Aus kostentechnischen Gründen ist eine Verlegung nicht möglich.

Auf der anderen Wandseite ist derzeit der Umbauschrank für Kühl-Gefrier-Kombi geplant.
Daneben ein weiterer Hochschrank für den hochgestellten Backofen .

Ich bin offen für alle Vorschläge, gerne auch günstigere oder preisgleiche Anbieter.
Von den Farben möchte ich gerne in dieser Gegend bleiben, jedoch kann man über die Farbaufteilung
der einzelnen Elemente sprechen.

Folgende Wünsche hätte ich für die Elektrogeräte:

-normales Induktionsfeld
-Backofen mit (falls in meinem Preisrahmen möglich) Pyrolyse & Teleskopauszug
-Dunstabzugshaube wie beschrieben
-Kühl-Gefrier-Kombi mit 3 TK-Fächern
-Spülmaschine wenn möglich mit umlegbaren Stacheln

Diese möchte ich gerne auch im Möbelhaus kaufen, da ich die Küche finanzieren will.

Das Spülbecken und die Armatur habe ich bereits ausgewählt, hier möchte ich nichts mehr ändern.
Ebenso steht die Beleuchtung fest.

Unter der Spüle hätte ich gerne einen einbaubaren Mülltrenner.

Gut gefallen würden mir Wangen an dem Block auf der Backofenseite, dies ist aber kein Muss.
Evtl. könnte man den Block auch noch um ein Element aufstocken?

Auch bin ich für Tipps über einen passenden Vinylboden dankbar, dieser soll auch neu verlegt werden.

Ich freue mich über Euere Vorschläge und Anregungen!

Danke!!! :rose:

IMG_4145.jpg Die Armatur habe ich ausgewählt
grundriss küche.jpg Der Grundriss
IMG_4092.jpgWasserinstallationen aus versch. Perspektiven
IMG_4059.jpg
IMG_4058.jpgAnsicht der Türe
IMG_4140.jpgDie bisherige Planung
IMG_4141.jpg

IMG_4143.jpg
IMG_4142.jpg




Checkliste zur Küchenplanung von bernd36

Anzahl Personen im Haushalt : 3
Davon Kinder? : 1
Körpergrössen aller Hauptbenutzer (wegen Arbeitshöhe ) in cm : 170 + 181
Art des Gebäudes? : Bestandsbau, Umbauten ausgeschlossen
Brüstungshöhe des Fensters (in cm) : 91
Fensterhöhe (in cm) : 128,5
Raumhöhe in cm: : 250
Heizung : Fussbodenheizung
Sanitäranschlüsse : fix
Ausführung Kühlgerät? : Integriert im Hochschrank (60cm)
Kühlgerät Größe : noch unbekannt
Ausführung Tiefkühl (TK)-Gerät : Im Kühlschrank ab 3 Schubladen unten
Dunstabzugshaube? : Umluft
Hochgebauter Backofen ? : Ja
Hochgebauter Geschirrspüler ? : nein
Kochfeldart? : Induktion
Kochfeldbreite ca. (in cm)? : 60
Spülenform: : 1 Becken mit Abtropffläche
Weitere geplante Heißgeräte : Standmikrowelle
Küchenstil? : klassisch
Sitzmöglichkeit in der Küche / im Küchenbereich als : Gesonderter Tisch
Sitzmöglichkeit: Für wieviel Personen? : für 2 Personen
Sitzmöglichkeit: Tisch - wenn gesonderter Tisch oder offene Küche : Vorhandener Tisch
Gewünschte o. vorhandene Tischgröße : 90x90
Wofür soll der Sitzplatz in der Küche genutzt werden? Wie häufig? : Schnelles Frühstück, Zeitung lesen
Welche Arbeitshöhe ist angedacht (in cm)? : 94 cm
Was steht auf der Arbeitsplatte oder soll dort stehen? : Wasserkocher, Obstschale
Welche weiteren Küchenmaschinen müssen in der Küche untergebracht werden? : Küchenmaschine, Toaster, Schneidemaschine (z. B. in Schublade), Handrührgerät, Mixer, Pürierstab, Eierkocher
Was soll in der Küche außer den Standards untergebracht werden? : Geschirr komplett (nichts in Ess-/Wohnzimmer)
Welchen Stauraum gibt es sonst noch? : Speisekammer, Keller
Was/wie wird gekocht? (Alltagsküche, Menüs, Snacks usw) : Menüs
Kleinigkeiten
Frühstück
Wie häufig wird gekocht? : (fast) täglich 1x warm
Wird alleine gekocht? Oder auch gemeinsam? Mit und für Gäste? : meist alleine
Was stört an der bisherigen Küche und was soll die neue Küche unbedingt können? Warum? : neue Küche ok, Neuanschaffung wegen Umzug
Steht schon ein Küchenhersteller fest oder wird bevorzugt? : Nobilia
Steht schon ein Gerätehersteller fest oder wird bevorzugt? : egal
Preisvorstellung (Budget) : bis 5.000,-
 
AW: Bitte um Verbesserungsvorschläge und Tips!

Ich habe den neuen Planungsthread mal an den vorhandenen neuen Thread drangehängt. Es macht keinen Sinn da einen neuen Thread zu haben.

Die Grundrissskizze habe ich auch in den ersten Beitrag reingelinkt und dort auch auf ergänzende Infos in Beitrag 14 verwiesen.
 
AW: Bitte um Verbesserungsvorschläge und Tips!

Diese Steckdose unten
127120d1385946139-bitte-um-verbesserungsvorschlaege-und-tips-img_4059.jpg


ist doch vermutlich für die GSP .. wie weit ist die denn von der linken Wand entfernt? Würde die bei der aktuellen Planung nicht ca. genau hinter der GSP liegen?

Hat das Küchenstudio schon Aufmaß vor Ort gemacht?

Wie tief ist denn diese Küchenecke da ... genau 60 cm?
 
AW: Bitte um Verbesserungsvorschläge und Tips!

Nein, ohne Auftrag kein Aufmaß ;-)

Die Steckdose ist hinter dem GSP, ist das ein Problem?
Am Freitag kommt der Elektriker, dann würde ich sie halt versetzen lassen.

Die Tiefe sind exakt 60 cm.
 
AW: Bitte um Verbesserungsvorschläge und Tips!

Ja, es wäre sinnvoll, die Steckdose im Bereich des Spülenschranks zu haben.

Im Grunde kann man an deiner Planung nur wenig ändern oder man müßte den Wasseranschluß so anpassen, dass er insgesamt frühestens 65 cm von der linken Wand weg beginnt und dann mit der GSP ganz außen starten, dafür aber alles ca. 10 cm vorziehen. D. h. tiefere APL und mehr Kosten.

Ich würde vermutlich nur das Kochfeld linksbündig auf den zweiten Schrank ausrichten und max. einen 60er mit Glastür zwischendrin hängen. Damit läßt sich dann der zweite Fensterflügel nicht ganz öffnen.

Einmal Holz für Glastür, linke Blende und Regal rechts ... einmal die komplette Hängeschrankzeile in weiß.

bernd36_20131202_kb1-alt_Ansicht2.jpg bernd36_20131202_kb1-alt_Ansicht1.jpg


Welche DAH hat man dir eigentlich angeboten?
 

Anhänge

  • bernd36_20131202_kb1-alt_Grundriss.jpg
    bernd36_20131202_kb1-alt_Grundriss.jpg
    54,5 KB · Aufrufe: 246
  • bernd36_20131202_kb1-alt.KPL
    4,1 KB · Aufrufe: 244
  • bernd36_20131202_kb1-alt.POS
    5,7 KB · Aufrufe: 236
AW: Bitte um Verbesserungsvorschläge und Tips!

So, Zeile jetzt 10 cm vorgezogen, Wasseranschlüsse alle so verbaut, dass sie hinter dem 60er Spülenschrank landen, auch der GSP-Anschluß.

Dann
- 60er GSP
- 60er Spülenschrank
- 30er MUPL
- 90er Auszugsunterschrank
- 90er Auszugsunterschrank, Kochfeld linksbündig.

Alle Hängeschränke 60 cm breit.

Übrigens würde ich dem Hochschrank mit dem Backofen noch ein Klappfach für die Mikrowelle gönnen, dann muss die nicht auf der APL rumstehen.
 

Anhänge

  • bernd36_20131202_kb1ideal-alt_Ansicht1.jpg
    bernd36_20131202_kb1ideal-alt_Ansicht1.jpg
    130,9 KB · Aufrufe: 590
  • bernd36_20131202_kb1ideal-alt_Grundriss.jpg
    bernd36_20131202_kb1ideal-alt_Grundriss.jpg
    55,3 KB · Aufrufe: 549
  • bernd36_20131202_kb1Ideal-alt.KPL
    4,1 KB · Aufrufe: 232
  • bernd36_20131202_kb1Ideal-alt.POS
    6,1 KB · Aufrufe: 238
AW: Bitte um Verbesserungsvorschläge und Tips!

Danke Kerstin, für Deine Vorschläge!
Die erste Version mit dem einzelnen Glasschrank im Holzton gefällt mir am besten.
Kochfeld bündig macht schon Sinn, ich denke auch wegen den Kosten, oder
DAH haben sie mir eine für knappe 200.- € von Bosch empfohlen (Dunstesse).
Küchenzeile vorziehen geht nicht wegen den Türe.
Da seh ich meine Tochter schon immer gegen die Kante laufen.
Das angesprochene Klappfach war zuerst vorgesehen, sprengt aber mit 300.- € mein Budget.
Die gebe ich dann lieber für was anderes aus.
Was denkst Du zu der zweiten Seite, macht eine Erweiterung Sinn oder soll
ich den Block so belassen?
Abschlussregal lassen oder weg?
Hast Du eine Idee zur Nischenverkleidung ?
Sorgen machen mir die Magnoliafronten, ich möchte gerne welche mit geschlossenen Kanten, also ohne Möglichkeit das sich Schmutz und Feuchtigkeit absetzt.
Die Eiche Provence ist ok so, aber bei Magnolia würde man das schnell sehen.
Kannst Du mir hier noch was empfehlen?
Ich weiss ich bin anstrengend ;-)

Aber vielleicht kann mir hierzu noch jemand was empfehlen?
-normales Induktionsfeld
-Backofen mit (falls in meinem Preisrahmen möglich) Pyrolyse & Teleskopauszug
-Kühl-Gefrier-Kombi mit 3 TK-Fächern
-Spülmaschine wenn möglich mit umlegbaren Stacheln

Und zu allerletzt, Abtropffläche in welche Richtung?

DANKE!!!
 

Ähnliche Beiträge

Neff Hausgeräte Ballerina Küchen Blum Bewegungstechnologie Weibel - Intelligente Küchenlüftung

Neff Spezial

Blum Zonenplaner

Weibel Abluft-Tuning

Weibel Abluft-Tuning
Zurück
Oben