Traumküche für Susi gesucht

Susi_maria

Mitglied
Beiträge
5
Hallo liebes Forum,

es ist soweit, die Suche nach einer Küche für unser neues Haus hat begonnen.

Der Alnoplaner und ich sind noch in der Anfangsphase unserer Freundschaft. Bitte um Nachsicht...

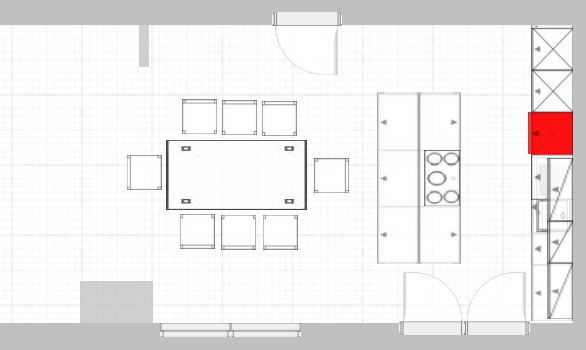
Wir planen eine offene Küche mit großem separatem Tisch zum Essen.
Es muss keine Essmöglichkeit direkt in der Küche geben.

Im EG-Grundriss ist schon eine Küchenvariante eingezeichnet, einfach ignorieren.

Hier ist unser erster Wurf.

Vielen Dank für die Hilfe
Susimaria

Checkliste zur Küchenplanung

Anzahl Personen im Haushalt: 4
Davon Kinder?: 2
Art des Gebäudes?: Neu-/Umbau, Planänderungen nicht möglich
Körpergrössen aller Hauptbenutzer (wegen Arbeitshöhe ) in cm: 189 und 158
Brüstungshöhe des Fensters (in cm): keine Brüstung
Fensterhöhe (in cm): 211
Raumhöhe in cm: 250
Heizung: Fussbodenheizung
Sanitäranschlüsse: vollkommen variabel
Ausführung Kühlgerät: Integriert im Hochschrank (60cm)
Kühlgerät Größe: bis 178 cm Höhe
Ausführung Tiefkühl (TK)-Gerät: Im Kühlschrank als kleines Fach oben
Dunstabzugshaube: Umluft
Backofen etc. hochgebaut?: Ja
Hochgebauter Geschirrspüler ?: Ja
Kochfeldart: Gas
Kochfeldbreite ca. (in cm)?: 90
Spülenform: 1 Becken ohne Abtropffläche
Geplante Heißgeräte: Backofen , Dampfbackofen (DGC) ohne Wasseranschluß
Küchenstil: Modern
Sitzmöglichkeit in der Küche / im Küchenbereich: Keine
Sitzmöglichkeit: Für wieviel Personen?: Nein
Sitzmöglichkeit: Tisch - wenn gesonderter Tisch oder offene Küche: Wird nach Bedarf neu gekauft
Gewünschte o. vorhandene Tischgröße: 200 X 100
Wofür soll der Sitzplatz in der Küche genutzt werden? Wie häufig?:
Welche Arbeitshöhe ist angedacht (in cm)?:
88
Was steht auf der Arbeitsplatte oder soll dort stehen?: Kaffeevollautomat, Wasserkocher, Brotbehälter, Obstschale
Welche weiteren Küchenmaschinen müssen in der Küche untergebracht werden?: Küchenmaschine, Toaster, Handrührgerät, Mixer, Pürierstab
Was soll in der Küche außer den Standards untergebracht werden?: ALLE Vorräte, Geschirr komplett (nichts in Ess-/Wohnzimmer)
Welchen Stauraum gibt es sonst noch?: Hauswirtschaftsraum, Keller
Was/wie wird gekocht? (Alltagsküche, Menüs, Snacks usw): Mindestens ein normales warmes Gericht unter der Woche,
am Wochenende gerne aufwendiger

Wie häufig wird gekocht?(fast) täglich 1x warm[/COLOR]
Wird alleine gekocht? Oder auch gemeinsam? Mit und für Gäste?: Meistens alleine. Ist aber der aktuellen kleinen Küche geschuldet.
Wir würden es gerne mal miteinander versuchen :-)

Was stört an der bisherigen Küche und was soll die neue Küche unbedingt können? Warum?: zu klein und somit zu wenig Stauraum.
Geschirrspüler und Ofen jeweils hochgesetzt
Mein Traum wäre eine schöne große Insel :-)

Welche Mülltrennung soll in der Küche vorgehalten werden?: Biomüll, Gelber Sack Müll, Restmüll
Steht schon ein Küchenhersteller fest oder wird bevorzugt?: nein
Steht schon ein Gerätehersteller fest oder wird bevorzugt?: Mittelklasse oder höher
Preisvorstellung (Budget): bis 20.000,-
 

Anhänge

  • Erdgeschoss.jpg
    Erdgeschoss.jpg
    41,9 KB · Aufrufe: 245
  • Plan 1.0.KPL
    3,9 KB · Aufrufe: 233
  • Plan 1.0.POS
    4,8 KB · Aufrufe: 247
  • Plan 1.0 Bild.JPG
    Plan 1.0 Bild.JPG
    20,8 KB · Aufrufe: 227
Hallo Susi_Maria und herzlich willkommen im Forum.

Keine Panik mit den Bildern, jemand wird das in Ordnung bringen. Was du das nächste Mal selbst tun kannst, wenn's nicht "ordentlich" aussieht, klicke die Bilder an, Befehl cut (in Deutsch weiss ich den Befehl nicht) und plaziere sie an anderen Stelle.

Wichtig wäre es im Moment, dass du den Hausgrundriss als pdf zur Verfügung stellst, denn so können wir keine Maße erkennen.

Obwohl das Haus eigentlich gross ist, ist das layout vielleicht nicht so optimal. Wohnen, Essen, Kochen ist zusammengequetscht. Gibt es einen Grund dafür?

Planrechts vom Kamin ist keine Terassentür sondern ein bodentiefes Doppelfenster?

Du hast mit einem 6er Raster geplant und deine gewünsche AP Höhe 88cm, dh der Korpus ist 78, dein Sockel 8cm und deine AP 2cm (Stein). Ist das richtig?

Du möchtest mit Gas kochen. Hast du schon mit Induktion gekocht? Die Vorteile sind erheblich. Das Reinigen ist ein Kinderspiel, und man kann ein Kochfeld sehr viel besser regulieren. Ich durfte kürzlich wieder eine Woche mit Gas kochen und war am Verzweifeln. Wasserkochen dauert viel länger und man kann im unteren Bereich das Gas nicht gut regulieren.
 
Zuletzt bearbeitet:
so, ich habe deinen Plan etwas angepasst.

Der GSP ist etwas erhöht im HS rechts vom BO. Damit die Wand nicht so nackt aussieht, habe ich schmale 39cm hohe OS vorgesehen.

Rechts von den HS ein 50er US, daneben 60er Spülenschrank, dann 45er MUPL und am Ende einen 80er US.

Auf der Kochfeldseite 3 x 80er US, auf der Rückseite dito mit 2-2-2 Auszügen.

Könntest du dir vorstellen, das Kochfeld an der Wand zu positionieren? Denn im realen Leben ist man mehr mit der Spüle beschäftigt. Du würdest dann nicht soviel "gegen die Wand" arbeiten und hättest das Geschehen im Wohn- und Essbereich im Blickfeld.

Aber hier dein Plan.

Susimaria1.JPG

Susimaria2.JPGSusimaria3.JPG Susimaria4.JPG
 

Anhänge

  • Susimaria_Evelin_Plan 1.KPL
    3,9 KB · Aufrufe: 236
  • Susimaria_Evelin_Plan 1.POS
    10,7 KB · Aufrufe: 293
Hallo Evelin,

vielen lieben Dank, das sieht doch schon viel besser aus...

Ich hab den Eingabeplan nur mit unseren Adressdaten als pdf.
Sobald mein Mann dazu kommt, krieg ich ihn geschwärzt.

Die Spüle dürfte wegen mir gerne auf die Insel. Da diskutiere ich noch mit meinem Mann :-)

Bei Induktion habe ich eine nicht erklärbare Angst vor der Strahlung und aufgrund des Wohnmobils kenne ich Gas und finde es einfach toll.
Aber da bin ich noch diskussionsbereit.

Grundriss:
Die von mir so geliebte Podesttreppe nimmt leider viel Raum weg und auf den Durchgang von der Garage wollen wir nicht verzichten.
planlinksoben soll jetzt erstmal die Spielecke für die Kinder werden und später kann es als eigenständiger Raum abgetrennt werden.
Wie und welche Couch wir ins Wohnzimmer stellen wissen noch nicht.
Daher könnte es sich noch ein bisschen entzerren.

So, Kind ruft... :-)
 
@Susi_maria
Ein Induktionsfeld strahlt nicht. ;-) Ein Induktionsfeld erzeugt ein Magnetfeld das den Topfboden erhitzt, Deshalb muß der auch magnetisch sein sonst bleibt das Essen kalt.

Unser guter Freund und auch meine Ex-Kollegin haben vom Professor der Herzklinik gehört das es auch für sie total ungefährlich ist (trotz Schrittmacher) mit einem Induktionsfeld zu kochen. Lediglich wenn sie sich direkt aufs Feld legen würden, würde die "Gefahr" bestehen das sich der Schnrittmacher auf eine andere Frequenz einstellt. Was aber auch nichts gefährliches ist.

Eher müßte man sich im Umgang mit Mikrowellen, Handys, schnurlosen Telefonen und sogar Bohrmaschinen Sorgen machen.

LG
Sabine
 
Nachtrag: Neben dem Kamin planrechts ist eine Hebeschiebetür geplant.

@Bodybiene: Ich bin noch nicht ganz überzeugt, aber ich gehe mal nochmal in mich :-)
 

Anhänge

  • Erdgeschoss.pdf
    330 KB · Aufrufe: 366
ich habe Spüle und Kochfeld getauscht und den Alnogrundriss nach deinen Maßen angepasst. In der Küche ist ein hohes Fenster (211cm)? Im Moment habe ich da noch eine Terassentür.

Auf der Spülenseite von planoben

Blende
60er US 1-1-2-2
60er Spüle 3-3
60er MUPL 3-3
80er US 1-1-2-2
Blende

Kochfeldseite rechts von HS

15er US
60er US
80er Us für Kochfeld
80er US
Blende

Susimaria21.JPG
Susimaria22.JPG Susimaria23.JPG Susimaria24.JPG
 

Anhänge

  • Susimaria_Evelin_Plan 2.KPL
    3,9 KB · Aufrufe: 237
  • Susimaria_Evelin_Plan 2.POS
    10,8 KB · Aufrufe: 242
oder so, das Kochfeld über 2 x 80 US, mittig zwischen den HS rechts und links. Links davon ein 15er US.

GSP ist jedes mal hochgebaut im HS links von dem 15er US.

Susimaria31.JPG
Susimaria32.JPG Susimaria33.JPG
 

Anhänge

  • Susimaria_Evelin_Plan 3.KPL
    3,9 KB · Aufrufe: 273
  • Susimaria_Evelin_Plan 3.POS
    11,4 KB · Aufrufe: 238
Danke Samy.

Soviele Möglichkeiten gibt's ja nicht, solange die Häuser weiter meist quadratisch gebaut werden.:rolleyes:

Und an die schwierigeren "Fälle" traue ich mich nicht ran.
 
Hallo Evelin,

uui, dankeschön.

Ich bin ehrlich, die zweite Variante mit dem mittigen Kochfeld ist garnet meins.

Mit der Idee die Spüle auf die Insel zu legen, kann mein Mann sich langsam anfreunden :-)

Planrechts unten ist eine Terassentür mit zwei Flügeln. Nur die mittlere Tür ist eine Hebeschiebetür.

Wenn wir die planrechte Wand komplett zumachen, habe ich dann auf der Insel ein Arbeitsflächenproblem? oder reicht meine Insel da aus...

Sorry für meine Fragen, ich bin ein totaler Küchenanfänger;-)

Danke
Susi
 
du meinst zu wie bei Muckelina's Küche? Ihre Insel ist 3.40m lang, das wird knapp bei euch. Auch wenn die Insel 20cm kürzer ist, müsste sie an die Wand angedockt werden und immer um 3.20m herumzulaufen nervt. Bei Muckelina ist die Insel freistehend.

Ansonsten gebe es noch die Möglichkeit, eine AP hinter einer Doppelschranktür in einser geschlossenen Wand zu verstecken.
AP hinter Tür1.JPG

Hier ein paar Beispiele, dass Löcher in der Wand sehr dekorativ sein können. Die DAH arbeitet besser an der Wand als im offenen Raum.

DANKitchen  with hole1.JPG DAN Kitchen with hole2.JPG DAN Kitchen with hole3.JPG DAN Kitchen with hole4.JPG DAN Kitchen with hole5.JPG DAN Kitchen with hole6.JPG
 
Zuletzt bearbeitet:
Evelin, danke fürs Importieren der schönen Beispielbilder! Könntest du wegen des Urheberrechts bitte dazuschreiben, wo die Bilder her sind oder gleich nur frei im Netz verfügbare wählen? Danke!:kiss:
 
So, mal meine Variante.

Zum Hausbau möchte ich auf folgendes hinweisen.

  • aktuell sind ganz rechts bis zur Terrassentür 62,5 cm Rohbaumaß geplant. Würde ich auf mind. 65 cm Rohbaumaß erhöhen
  • aktuell ist die mittlere Terrassentür als Schiebetür geplant .. ich würde auf jeden Fall die Tür im Küchenbereich als Schiebetür planen. Dann stört keine Tür an der Küchenzeile oder, wenn man reinkommt und Richtung Esstisch will. Die mittlere könnte man auch als Schiebetür ausführen, muss aber meiner Meinung nach nicht zwangsweise sein.
Bekanntermaßen bin ich ja auch Spüleninsel-Fan. Allerdings sollte es dann auch immer einen Platz geben, wo KVA, Küchenmaschine und solche Sachen einsatzbereit stehen können.

Ich habe daher mal planoben angefangen:
  • erhöhte GSP
  • 100er Auszugsunterschrank, hier Stellplatz KVA/Küchenmaschine
  • Backofen , DGC
  • tote Ecke mit Ulla-Schrank
  • 100-90-100 Auszugsunterschränke, der mittlere mit Kochfeld
  • 60er Hochschrank für Kühlschrank .. mit der angedachten Schiebetür dann auch gut von der Terrasse zu erreichen. Aber auch gut vom Esstisch ohne Störung der Kochenden.
Evtl. sollte man Backofenschrank und GSP-Schrank tauschen. Das muss man mal durchspielen.

Die Insel dann aus 80er Spülenschrank in Normaltiefe. Dahinter dann quer ein 15er Element für Handtuchhalter, zum Einstellen nicht benötigter Backbleche etc.
Daneben 45er MUPLin Übertiefe und 45er Auszugsunterschrank.
Zum Essbereich hin eine Trockenbauwand an der dann eine Bank stehen könnte.

Durch die "Anlehn-Wand" ergibt sich trotzdem eine Inseltiefe von ca. 90 bis 95 cm.

Hochschrankseite würde ich auf jeden Fall abkoffern. Ob man die Kochfeldzeile abkoffert und z. B. mit einer Decken-DAH ausstattet, das richtet sich ja auch nach Gefallen.
 

Anhänge

  • Susi_maria_20141022_kb1_alt.KPL
    4,1 KB · Aufrufe: 227
  • Susi_maria_20141022_kb1_alt.POS
    15,3 KB · Aufrufe: 229
  • Susi_maria_20141022_kb1_alt_Grundriss.jpg
    Susi_maria_20141022_kb1_alt_Grundriss.jpg
    20,8 KB · Aufrufe: 226
  • Susi_maria_20141022_kb1_alt_Ansicht7.jpg
    Susi_maria_20141022_kb1_alt_Ansicht7.jpg
    34,3 KB · Aufrufe: 233
  • Susi_maria_20141022_kb1_alt_Ansicht6.jpg
    Susi_maria_20141022_kb1_alt_Ansicht6.jpg
    30,4 KB · Aufrufe: 223
  • Susi_maria_20141022_kb1_alt_Ansicht5.jpg
    Susi_maria_20141022_kb1_alt_Ansicht5.jpg
    29 KB · Aufrufe: 219
  • Susi_maria_20141022_kb1_alt_Ansicht4.jpg
    Susi_maria_20141022_kb1_alt_Ansicht4.jpg
    28,5 KB · Aufrufe: 230
  • Susi_maria_20141022_kb1_alt_Ansicht3.jpg
    Susi_maria_20141022_kb1_alt_Ansicht3.jpg
    38,2 KB · Aufrufe: 225
  • Susi_maria_20141022_kb1_alt_Ansicht2.jpg
    Susi_maria_20141022_kb1_alt_Ansicht2.jpg
    35,7 KB · Aufrufe: 224
  • Susi_maria_20141022_kb1_alt_Ansicht1.jpg
    Susi_maria_20141022_kb1_alt_Ansicht1.jpg
    24 KB · Aufrufe: 219

Ähnliche Beiträge

Neff Hausgeräte Ballerina Küchen Blum Bewegungstechnologie Weibel - Intelligente Küchenlüftung

Neff Spezial

Blum Zonenplaner

Weibel Abluft-Tuning

Weibel Abluft-Tuning
Zurück
Oben