Stylisch moderne Küche für Neubau

alphamasl

Mitglied
Beiträge
5
Hallo liebes Forum,

erstmal möchte ich allen aktiven Mitgliedern in diesem Forum danken. Euer Beitrag zur optimalen Küchenplanung ist einfach unbezahlbar.

Ich bechäftige mich seit mehreren Wochen mit der Planung meiner Küche für ein EFH welches in Kürze erstellt wird. Ich habe mich ausgiebig mit den Inhalten dieses Forums beschäftigt, war im Küchenstudio und habe mir zahlreiche Bilder und Planungsbeispiele angeschaut.

Mit meiner eigenen Planung bin ich dennoch nicht zufrieden, da ich meine Wünsche einfach nicht unterbekomme. Daher hoffe ich auf eure Unterstützung.

Zu meinen Wünschen:

"Stylisch, modern"
Herd auf Augenhöhe
Verlängerte Arebitsplatte zum Sitzen mit 4 Personen
Zweizeilig
Griffloß
Weiß


Ich habe in einem Küchenstudio eine Küche gesehen die mir sehr gut gefallen hat. Ich habe die Fotos mitangehängt.

Ich freue mich mit nun mit eurer Unterstützung die Küche fertig zu planen, vielen Dank.

Grüße
aus Heidelberg





Checkliste zur Küchenplanung von alphamasl

Anzahl Personen im Haushalt : 4
Davon Kinder? : 2
Körpergrössen aller Hauptbenutzer (wegen Arbeitshöhe ) in cm : 177; 163
Art des Gebäudes? : Neu-/Umbau, Planänderungen möglich
Brüstungshöhe des Fensters (in cm) : 142.5
Fensterhöhe (in cm) : 120
Raumhöhe in cm: : 260
Heizung : Fussbodenheizung
Sanitäranschlüsse : vollkommen variabel
Ausführung Kühlgerät? : Integriert im Hochschrank (60cm)
Kühlgerät Größe : bis 158 cm Höhe
Ausführung Tiefkühl (TK)-Gerät : Im Kühlschrank bis 2 Schubladen unten
Dunstabzugshaube? : Abluft
Hochgebauter Backofen ? : Ja
Hochgebauter Geschirrspüler ? : ja
Kochfeldart? : Ceran (herkömmlich)
Kochfeldbreite ca. (in cm)? : 80
Spülenform: : Noch nicht festgelegt
Weitere geplante Heißgeräte :
Küchenstil? : grifflos
Sitzmöglichkeit in der Küche / im Küchenbereich als : Überstehende Arbeitsplatte
Sitzmöglichkeit: Für wieviel Personen? : für 4 Personen
Sitzmöglichkeit: Tisch - wenn gesonderter Tisch oder offene Küche : Wird nach Bedarf neu gekauft
Gewünschte o. vorhandene Tischgröße : Ausziehbar für 6 eher 8 Personen
Wofür soll der Sitzplatz in der Küche genutzt werden? Wie häufig? : Frühstück, Snack "zwischendurch"
Welche Arbeitshöhe ist angedacht (in cm)? : 94
Was steht auf der Arbeitsplatte oder soll dort stehen? : Sonstiges (evtl. im Beitragstext benennen)
Welche weiteren Küchenmaschinen müssen in der Küche untergebracht werden? : Küchenmaschine, Wasserkocher, Toaster, Schneidemaschine (z. B. in Schublade), Handrührgerät, Mixer, Pürierstab, Eierkocher, Sonstiges (evtl. im Beitragstext benennen)
Was soll in der Küche außer den Standards untergebracht werden? : ALLE Vorräte, Getränkekisten, Geschirr komplett (nichts in Ess-/Wohnzimmer)
Welchen Stauraum gibt es sonst noch? : Hauswirtschaftsraum
Was/wie wird gekocht? (Alltagsküche, Menüs, Snacks usw) : Alltagsküche + (evtl. etwas aufwendiger)
Wie häufig wird gekocht? : (fast) täglich 1x warm
Wird alleine gekocht? Oder auch gemeinsam? Mit und für Gäste? : Gemeinsam
Was stört an der bisherigen Küche und was soll die neue Küche unbedingt können? Warum? : -
Steht schon ein Küchenhersteller fest oder wird bevorzugt? : Nein
Steht schon ein Gerätehersteller fest oder wird bevorzugt? : Qualitativ nicht minderwertig
Preisvorstellung (Budget) : bis 10.000,-
 

Anhänge

  • Grundriss EG.jpg
    Grundriss EG.jpg
    82,3 KB · Aufrufe: 351
  • PLAN3.POS
    6,9 KB · Aufrufe: 208
  • PLAN3.KPL
    3,9 KB · Aufrufe: 213
  • 20130615_111119.jpg
    20130615_111119.jpg
    63,8 KB · Aufrufe: 330
  • 20130615_111141.jpg
    20130615_111141.jpg
    62,1 KB · Aufrufe: 318
  • ALNO 3D.jpg
    ALNO 3D.jpg
    36,9 KB · Aufrufe: 289
  • Grundriss Küche ALNO Plan.JPG
    Grundriss Küche ALNO Plan.JPG
    45,7 KB · Aufrufe: 280
Zuletzt bearbeitet:
AW: Stylisch moderne Küche für Neubau

Hallöle und erst ein Mal ganz herzlich :welcome: hier.
Schöne Threaderöffnung:top: , aber eine Bitte.
Wenn´s geht von den Alno -Dateien Bilder machen und einstellen.
Grund... nicht jeder hat Zeit, sich erst mal die Dateien runterzuladen, den Alno zu starten, nur um sich einen Überblick zu verschaffen.
Und, die meisten Profis hier haben den Alno gar nicht aufm Rechner.

Ansonsten, es ist gerade viel los im Forum. Bitte nicht ungeduldig werden, Falls heute Nachmittag deine Planung noch nicht fertig ist.

Bis dahin mal viel Spass hier und viel nützlichen Input wünscht
Samy
 
AW: Stylisch moderne Küche für Neubau

Mit meiner eigenen Planung bin ich dennoch nicht zufrieden, da ich meine Wünsche einfach nicht unterbekomme. Daher hoffe ich auf eure Unterstützung.

Zu meinen Wünschen:

"Stylisch, modern"
Herd auf Augenhöhe
Verlängerte Arbeitsplatte zum Sitzen mit 4 Personen
Zweizeilig
Griffloß
Weiß
Ich habe in einem Küchenstudio eine Küche gesehen die mir sehr gut gefallen hat. Ich habe die Fotos mitangehängt.

Preisvorstellung (Budget) : bis 10.000,-

Hallo Alpha

Die Küche im Küchenstudio ist sehr schön - wohin wollt ihr das Wohnzimmer verlegen, wenn ihr diese Küche bei euch aufstellt?

Ohne mir Deine Planung angeschaut zu haben, da keine Bilder hochgeladen sind, wundert es mich nicht, dass Deine Planung und Deine Wünsche nicht zusammenpassen.

Der Grundriss gibt das, was Du Dir wünschst einfach nicht her - und euer Budget ist dafür auch sehr sportlich.

Ein Esstisch benötigt in der Raumbreite ca 300cm - mehr ist schöner.
Sitzplätze an an einer überstehenden APL bedingen, dass die mindestens APL 100cm tief ist - besser wäre 120cm und zwischen APL und Tischkante sollte 120cm - besser 150cm Abstand sein, damit man das grosszügig ausschaut.

In eurer Hausgrösse sehe ich auch nicht, wozu ihr 4 Sitzplätze an der Kücheninsel benötigt, wenn doch der Esstisch direkt daneben steht (die zusätzlich benötigeten 160cm Raumbreite hast Du einfach nicht); und besonders kommunikativ finde ich das 'wie die Hühner auf der Stange sitzen' auch nicht.

Grifflos bringt einige Nachteile mit sich. guckst Du hier:
https://www.kuechen-forum.de/forum/...ffmoeglichkeiten-bei-grifflosen-kuechen.2831/
und hier:
https://www.kuechen-forum.de/forum/themen/wie-funzt-eigentlich-grifflos.4697/

Neben dem Stauraumverlust ist es teurer und zum öffnen von Kühlschrank und GSP meist bedienungsunfreundlich - sprich, frau oder kind od rheumapfoten bekommen die Geräte nicht auf.
 
AW: Stylisch moderne Küche für Neubau

Hallo Schreinersam, Nice-nofret,

ich habe die fehlenden Bilder in die Threateröffnung hinzugefügt, vielen Dank für den Hinweise.

Für den Hinweis, dass meine Wünsche und mein Grundriss nicht zusammenpassen bin ich sehr dankbar. Aus diesem Grund habe ich mich an das Forum gewandt.

Wenn Sitzplätze an der Kücheninsel nicht mit dem Grundriss kompatibel sind würde ich schweren Herzens von dieser Idee Abstand nehmen. Allerdings finde ich es unheimlich Praktisch in der Küch zu frühstücken und somit den Esstisch nicht zu nutzen/ "ein zu sauen".

Welche Möglichkeiten gibt es noch eine stylische, moderne Küche zu planen? Ich habe von Alno die Fly Edition gesehen die mir sehr gut gefällt (insbesonders mit Beleuchtung). Vielliecht kann man mit solchen Elementen arbeiten?

Ich freue mich auf euer Feedback.

Grüße aus
Heidelberg
 
AW: Stylisch moderne Küche für Neubau

Hi Alpha,

habt ihr schonmal angedacht Wohnzimmer und Küche zu tauschen?
Dann wäre die Nische breiter und dort könnte man außen Hochschränke platzieren in der Mitte Unterschränke und gegenüber eine Halbinsel.

Oder ggf so wie bei Länschen wäre auch ganz nett.
https://www.kuechen-forum.de/forum/...236-grifflose-kueche-in-dhh-5.html#post237746

In der aktuellen Planung sind mir die Zeilen zuweit auseinander und ein paar Hochschränke würden mir für den Stauraum fehlen. Grifflos wurde schon angesprochen, aufgesetzte Griffleisten waren unser Kompromiss.

LG aus der Nähe von HD, ;-)
Muckelina
 
AW: Stylisch moderne Küche für Neubau

Hallo Muckelina,

ein Tausch von Wohnbereich (Wohnwand/ Couch) ist aufgrund der Lichteinstrahlung und der Aussicht nicht möglich. Die Niesche der Wohnwand ist tatsächlich 0,5 m größer. Diese wurde auf meinen Wunsch verbreitert als ich mich mit dem Thema Wohnwand und Stereoanlage auseinandergesetzt habe...vielleicht doch keine so gute Idee.

Den Vorschlag mit den aufgesetzten Griffleisten werde ich umsetzen.

Die Küche von Länschen gefällt mir ganz gut, könnte man sowas bei meinem Grundriss umsetzten?

Grüße
 
AW: Stylisch moderne Küche für Neubau

Ich habe mal deine erste Idee, in klein ;-) umgesetzt.

Nur mal als erste Stellprobe... Spülen, Kochen könnte man tauschen.

Die Halbinsel wäre mit 1,80 klein, aber fein

In deinem Plan hast du Eckschänke, die dir Platz für breite Unterschränke klauen, verplant. Zudem kannst du in Eckschränken nur auf 2 Böden etwas verstauen.
Da bietet dir ein breiter Auszugschrank mit bis zu 6 Ebenen mehr Platz.
 

Anhänge

  • Spülen.PNG
    Spülen.PNG
    193,2 KB · Aufrufe: 232
  • Kochen.PNG
    Kochen.PNG
    188,8 KB · Aufrufe: 229
  • Grundriss.PNG
    Grundriss.PNG
    46,2 KB · Aufrufe: 235
  • _1Tara.POS
    7,6 KB · Aufrufe: 206
  • _1Tara.KPL
    3,9 KB · Aufrufe: 245
AW: Stylisch moderne Küche für Neubau

Schöner und offener für den Raum fände ich folgende Lösung:

Stör dich bitte nicht an den Farben. Der Alno Planer mag Windows 8 nicht, oder umgekehrt;-)
 

Anhänge

  • _2 Tara.KPL
    3,9 KB · Aufrufe: 214
  • _2 Tara.POS
    8,3 KB · Aufrufe: 212
  • Gesamtansicht.PNG
    Gesamtansicht.PNG
    435,1 KB · Aufrufe: 245
  • Grundriss.PNG
    Grundriss.PNG
    29,3 KB · Aufrufe: 662
AW: Stylisch moderne Küche für Neubau

Hallo,

vielen herzlichen Dank für die zwei Vorschläge.
Ich teile die Meinung, dass die Lösung mit der Kochinsel nicht gut in den Raum passt. Daher habe ich mich entschlossen von dieser Lösung abstand zu nehmen.

Ich habe stattdessen die letzten zwei Abende damit verbracht die vorgeschlagene Küche von Länschen (https://www.kuechen-forum.de/forum/ku...tml#post237746) in meinen Raum einzupassen:

Meiner Meinung nach passt auch diese Lösung ganz gut in meinen Grunsdriss. Wie seht Ihr das?

Ich habe einige Fragen an die Experten:


  • Ist es möglich einen größeren Kühlschrank zu verbauen, ohne die Fugenlinien komplett neu gestalten zu müssen? Der jetzige Schrank hat eine Nischenhöhe von 1,50m.
  • Wird die Fläche der Arbeitsplatte ausreichen wenn wir zu zweit kochen wollen?
  • Ist die Höhe des Backofen etwas ungewönlich? Auf Augenhöhe ist dieser nicht.
  • Wie kann ich aufgesetzte griffleisten beim ALNO Küchenplaner realisieren?

Liebe Grüße
 

Anhänge

  • Alpha_Plan_ 6.JPG
    Alpha_Plan_ 6.JPG
    54,4 KB · Aufrufe: 645
  • Alpha_Plan_6.jpg
    Alpha_Plan_6.jpg
    40,7 KB · Aufrufe: 238
  • ALPHA_PLAN_6.KPL
    3,9 KB · Aufrufe: 195
  • ALPHA_PLAN_6.POS
    11,9 KB · Aufrufe: 186
AW: Stylisch moderne Küche für Neubau

Guten Morgen,

mhh leider scheint es mir zu wenig APL zu sein und Spüle und Kochfeld sind zu dicht beieinander. Gäbe es die Möglichkeit zur Diele die Wand zu entfernen?
Dann könnte man die Seite auf 3m APL ausweiten.
Schau mal Lenas Gesamtgrundriss, sie haben daneben auch eine Treppe.
Bzgl Fugenlinie kannst Du Elemente verstiften, um das Fugenbild zu waren, Schau mal bei mir die Türen über dem Backofen , eine Tür aus zwei Elementen.

LG, Muckelina :-)
 
AW: Stylisch moderne Küche für Neubau

Zur Backofenhöhe: es kommt nicht darauf an, dass du ohne zu Bücken hineinsehen kannst, sondern dass du ohne zu Bücken be- und entladen kannst. So ein Bräter kann ja auch mal ganz schön schwer sein. Daher ist die empfohlene Einbauhöhe maximal so, dass die oberste Einhängehöhe nicht über Schulterhöhe sein sollte. Nach unten ist dann durchaus noch etwas Spielraum.
 
AW: Stylisch moderne Küche für Neubau

Zu zweit kochen kannst du gut in Taras Lösung, da rund um die Spüle genug Platz ist, dass jeweils rechts und links jemand vorbereiten kann und man auch gut an das Kochfeld rankommt.

114885d1371651640-stylisch-moderne-kueche-fuer-neubau-grundriss.png



Vergleiche sie mal mit deiner Lösung:
114989d1371807955-stylisch-moderne-kueche-fuer-neubau-alpha_plan_-6.jpg


Taras Lösung wird auch ins Budget passen, bei deiner Lösung könnte das schwieriger werden.
 
AW: Stylisch moderne Küche für Neubau

Selbst wenn nur ein Person kocht, sehe ich kaum Patz zum schönen Arbeiten.

Der kleine Raum ist lediglich von einer Hochschrankwand bestimmt. Alles andere quetscht du dadurch zusammen.

Wenn du Ecken planst, musst du immer 5cm hinzurechnen, denn du willst die Schubladen ja auch übers Eck aufbekommen.

Im Alnoplaner findest du unter Blenden die Eckblenden.
 

Anhänge

  • Eckblende.PNG
    Eckblende.PNG
    24,6 KB · Aufrufe: 255
AW: Stylisch moderne Küche für Neubau

Wenn der Raum eben nicht so riesig ist, dann würde ich mich auf zwei Hochschränke beschränken: Kühlschrank und Backofenschrank.

Bleibt an der Rückwand Platz für 60cm GSP, 60cm Spülenschrank und 45cm (zB Müll direkt unter der AP).

Alternativ kann man die zwei Hochschränke auch rechts und links stellen, hat dann aber den Nachteil, dass der Backofen direkt neben der Wand steht und nicht so gut zu bedienen ist.

Für mehr Stauraum gibt es keinen Sitzplatz an der Insel, und so sehr saut man den Esstisch beim Frühstück ja auch nicht voll, oder? ;-)
Dafür auf beiden Seiten normaltiefe Unterschränke (alternativ Kochseite übertief plus Tischseite mindertief), jeweils mit 80 - 80 - 40 bestückt so dass eine schöne Fläche von 210 x 120cm entsteht, die ein Zweitkoch auch prima mitnutzen kann.

Das Geschirr und Besteck zum Tischdecken würde ich zB dann auf der Inselrückseite unterbringen.

Es bleiben noch gute 3 Meter für den Esstisch.

Fürs "stylische" habe ich dir über der Spüle eine Reihe Hängeschränke normal gehängt und das ganze als farblich zusammengefasst. Drüber noch eine Reihe Hochschranktiefe Hängeschränke.

Dein Fenstermaß kann nicht ganz stimmen: 120cm Fensterhöhe plus 142,5cm Brüstungshöhe ergebn 262,5cm Gesamthöhe bei 260cm Raumhöhe.
Nächstes Problem: wo möchtest du mit der Abluft nach draußen gehen?? Ich würde eine Deckenumlufthaube nehmen.

Das Fenster habe ich auch noch 10 bis 15cm aus der Ecke herausgerutsch/schmaler gemacht, damit das Wandstück etwas länger als die nötigen 60cm wird. Schaut sonst so knirsch aus.
 

Anhänge

  • alphamasl_mcaV1_G2.JPG
    alphamasl_mcaV1_G2.JPG
    36,1 KB · Aufrufe: 230
  • alphamasl_mcaV1_G.JPG
    alphamasl_mcaV1_G.JPG
    39,3 KB · Aufrufe: 216
  • alphamasl_mcaV1_A4.jpg
    alphamasl_mcaV1_A4.jpg
    55,3 KB · Aufrufe: 230
  • alphamasl_mcaV1_A2.jpg
    alphamasl_mcaV1_A2.jpg
    49,3 KB · Aufrufe: 250
  • alphamasl_mcaV1_A1.jpg
    alphamasl_mcaV1_A1.jpg
    72,9 KB · Aufrufe: 236
  • alphamasl_mcaV1.POS
    10,7 KB · Aufrufe: 191
  • alphamasl_mcaV1.KPL
    3,9 KB · Aufrufe: 213
  • alphamasl_mcaV1_A3.jpg
    alphamasl_mcaV1_A3.jpg
    64,4 KB · Aufrufe: 221
AW: Stylisch moderne Küche für Neubau

Hallo Zusammen,

ich bin zwar noch recht neu im Forum und habe Samstagbereits meine Küche bestellt.
Trotzdem finde ich diese Internetseite unglaublich interessant und meeega hilffreich.

Mein Küche ist sooo unähnlich nicht zu deiner und ich bin extrem zufrieden mit der letztendlichen Lösung. Morgen setzt ich die Fotos von meiner fertigen Küchenplanung rein und werde sie hier mal posten. Vielleicht gibt das einfach mal einen Ideenanreiz. Man muss ja nichts eins zu eins übernehmen und jeder hat immer etwas, was er persönlich anders gelöst hätte oder machen würde.

Ich setzt die Bilder morgen hier rein.

Gruß
Judith
 
AW: Stylisch moderne Küche für Neubau

Hier einmal die Fotos meiner Küchenplanung .
Wie gesagt ist alles Geschmackssache. Ich wollte mir die "kleine" Küche nicht komplett mit Oberschränken zu bomben. Anstelle eines oder zwei Oberschränken kommt in die Lücke neben den Regalen rechts und links ein Lichtspot und wir hängen ein cooles Bild auf. Ich habe ja auf der Ebene noch einen Abstellraum und das Haus ist ja vollunterkellert.
Kurze Info noch dazu. Kochfeld Induktion AEG , Ofen recht normal ohne Schnick Schnack wie Timer und Uhr blabla von AEG. Die Abzugshaube von Goerenje, die Spülmaschine mit 3 Sprüharmen und LED Anzeige auf den Küchenboden der Restlaufzeit vollintregriert von AEG und extra breite und tiefe Spüle von Blanco .
 

Anhänge

  • SKMBT_C22013062707520.pdf
    359,6 KB · Aufrufe: 227
  • SKMBT_C22013062707521.pdf
    366,3 KB · Aufrufe: 247
  • SKMBT_C22013062707522.pdf
    187,2 KB · Aufrufe: 229
  • SKMBT_C22013062707523.pdf
    312,3 KB · Aufrufe: 238
  • SAM_06277.jpg
    SAM_06277.jpg
    51 KB · Aufrufe: 234
  • SAM_06288.jpg
    SAM_06288.jpg
    55,1 KB · Aufrufe: 244
  • SAM_06299.jpg
    SAM_06299.jpg
    41,3 KB · Aufrufe: 243
  • SAM_06300.jpg
    SAM_06300.jpg
    31,1 KB · Aufrufe: 215
AW: Stylisch moderne Küche für Neubau

Achso und ja die Küche ist offen und hat auf der Seite mit bild und Regalen eine Länge von 3 Metern. Daneben ist der Flur, von dem man rein kommt.
Der Kühlschrank steht dann als ich sag mal Highlight mit im Esszimmer.
 
AW: Stylisch moderne Küche für Neubau

Judi, ich finde es ja ganz nett, dass du deine Küche hier vorstellen willst und dass du sicherlich stolz auf deine Küche bist, aber passender wäre es, deine Küche in deinem Thread vorzustellen:kiss:
alphamasl hat doch ein wenig andere Raummaße wie du;-)
Außerdem hast du kleine Schnitzer in deiner Planung;-) Das hier in diesem Thread zu diskutieren, wäre ein Kapern des Threads.

Setz doch einfach einen Link zu deinem Thread, dann kann Alphamasel sich die Küche dort ansehen.;-)
 
AW: Stylisch moderne Küche für Neubau

Hi Tara,

da hast du natürlich absolut Recht. Sollte auch nur so als Idee dienen um von der Kücheninsel, die ja jeder gerne hätte, wegzukommen.

Hier der Link (ich hoffe ich habe das richtig gemacht)
https://www.kuechen-forum.de/forum/...eil-ich-echt-ueberfragt-bin-3.html#post253680

Ich denke mal Schnitzer erlaubt sich jeder, weil man die Küche ja doch irgendwie für sich selber anpassen muss trotz ner Menge Ideen vom Küchenforum, die alle auf jeden Fall mega gut sind, aber doch nciht immer passen, wenn man dann erst einmal mit seinem Budget und etc den Küchenstudios einen Besuch abstattet.;-)

Gruß
Judith
 
AW: Stylisch moderne Küche für Neubau

Vielen Dank für eure Antworten! Ich habe in der letzten Woche wenig Zeit gefunden um mich um die Küchenplanung zu kümmern. Dennoch bleiben eure Beiträge nicht ungelesen und ich freue mich über jedes Feedback.


Zu dem Planungsvorschlag von KerstinB:
Hier wäre der Herd für mich an der "falschen" Seite. Ich möchte gerne beim Kochen den Blick ins Wohnzimmer haben.

Zu dem Planungsvorschlag von Menorca:
Hier wäre in meinen Augen die Spüle an der "falschen" Seite. Ich möchte gerne die Spüle unter dem Fenster haben.

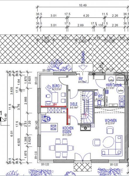
Zu der Planung die ich gezeigt hatte: (hintere Wand Hochschränke, unterm Fenster die Spüle, um die Ecke die AP mit Herd Blickrichtung Wohnzimmer) Ist immer noch mein Favorit. Ich habe aber verstanden, dass mein Grundriss hierfür geändert werden müsste daher möchte ich euch bzw. meinem Architekten folgende Lösung vorschlagen:

Wand zur Diele Verkürzen und die Eingangstür zur Diele streichen: Somit würden die hinteren Hochschranke in die Wand eingekoffert werden und ich hätte mehr Platz um die AP zu verlängern.

Was haltet Ihr davon?

Grüße
alpha
 

Anhänge

  • Grundriss ALT.jpg
    Grundriss ALT.jpg
    97,4 KB · Aufrufe: 211
  • Grundriss NEU.jpg
    Grundriss NEU.jpg
    97,4 KB · Aufrufe: 219

Ähnliche Beiträge

Neff Hausgeräte Ballerina Küchen Blum Bewegungstechnologie Weibel - Intelligente Küchenlüftung

Neff Spezial

Blum Zonenplaner

Weibel Abluft-Tuning

Weibel Abluft-Tuning
Zurück
Oben