GeoPod
Mitglied
- Beiträge
- 2
Offene Küche mit Insel im Neubau für Familie
Hallo, wir sind gerade in den letzten Planungen für unser EFH. Wir warten gerade auf die Genehmigung unseres Bauantrags.
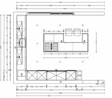
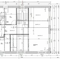
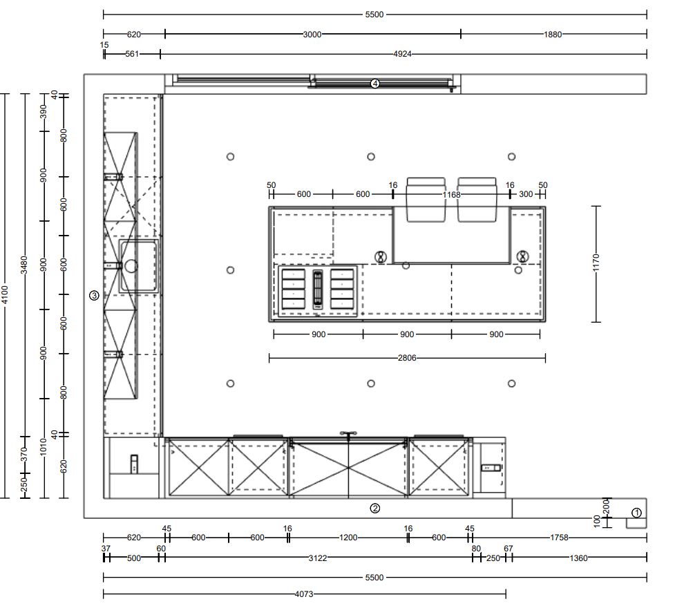
Wir sind eine 4 köpfige Familie (2 Kinder, 4 und 3 Jahre alt). Anbei unser geplanter Grundriss, Küche, Esszimmer und Wohnzimmer. Wir wünschen uns eine Kochinsel, die Platz zum sitzen für unsere 2 Kinder bietet.
Wir nehmen unseren Side by Side Kühlschrank/Gefriereinheit der Firma Liebherr (SBSes 8773) mit. Diesen Side by Side Kühlschrank möchten wir bündig einbauen. Anbei die Maße des Kühlschranks (Anhang 2)
Die Küchenschränke sollten in Trockenbau eingearbeitet werden. Ähnlich wie in Anhang 1.
Wir wünschen uns einen Dampfbackofen und einen Dampfgarer. Unser Geschirrspüler soll von der Firma Miele kommen. Induktion mit Muldenlüfter und Abluft. Hoffentlich bekommen wir dies mit KFW55 Haus und Lüftungsnalge überhaupt hin. Folgende Geräte haben wir uns ausgesucht (sind aber natürlich noch offen):
HS658GXS7
HN678G4S6
EX807LX67E
G7590
Armatur soll mit Sprudelfunktion von der Firma Grohe blu kommen. Hierzu habe auch schon eine Frage gestellt: https://www.kuechen-forum.de/forum/themen/grohe-blue-in-abstellkammer.41056/
Unsere letzte Planung hefte ich mal an. Diese gefällt uns schon sehr.
Versteht mich bitte nicht falsch: unserer Küchenplaner ist absolut spitze!!!! Wir benötigen nur weiteren Input, weil wir die Befürchtung haben, unter den ganzen Entscheidungen die wir mit dem Hausbau treffen müssen, etwas zu vergessen.
Würde uns aber über Verbesserungsvorschläge sehr freuen.
Ich hoffe ich habe nichts vergessen.
Vielen Dank schon einmal für eure Hilfe.
Checkliste zur Küchenplanung
Personenkriterien und Ergonomie
Anzahl Personen im Haushalt: 4
Davon Kinder: 2
Körpergrößen aller Hauptbenutzer in cm (wegen Arbeitshöhe ): 170 (m) und 157 (w)
Welche Arbeitshöhe ist angedacht (in cm)?:
Gebäudekriterien
Art des Gebäudes: Neu-/Umbau > Planänderungen möglich, Eigentum
Brüstungshöhe des Fensters (in cm): Boden tiefe Schiebeelemente
Fensterhöhe (in cm):
Raumhöhe in cm:
Heizung: Fußbodenheizung
Sanitäranschlüsse: vollkommen variabel
Einbaugerätekriterien
Ausführung Kühlgerät: Side by Side (ca. 90cm breit)
Einbaukühlgerät Größe: N. a.
Ausführung Tiefkühl (TK)-Gerät: N. a.
Dunstabzugshaube: Abluft
Hochgebauter Backofen : ja
Geplante Heißgeräte: Dampfgarer ohne Wasseranschluß, Dampfbackofen (DGC) ohne Wasseranschluß
Hochgebauter Geschirrspüler : wenn möglich
Art des Kochfeldes: Induktion
Kochfeldbreite (ca. in cm): 90
Sitzmöglichkeiten
Sitzmöglichkeit in der Küche / im Küchenbereich: N. a.
Sitzmöglichkeit: Für wieviel Personen?: Für 2 Personen
Sitzmöglichkeit: Tisch - wenn gesonderter Tisch oder offene Küche: N. a.
Gewünschte oder vorhandene Tischgröße:
Wofür soll der Sitzplatz in der Küche genutzt werden und wie häufig:
Stauraumplanung
Was steht auf der Arbeitsplatte oder soll dort stehen?: Kaffeemaschine, Wasserkocher, Thermomix, Küchenmaschine
Welche weiteren Küchenmaschinen müssen in der Küche untergebracht werden: N. a.
Was soll in der Küche außer den Standards untergebracht werden: N. a.
Welchen Stauraum gibt es sonst noch: Speisekammer, Hauswirtschaftsraum
Kochgewohnheiten
Was/wie wird gekocht? (Alltagsküche, Menüs, Snacks usw): Der ganz normale Wahnsinn mit 2 Kindern
Wie häufig wird gekocht: (fast) täglich 1x warm
Wird alleine gekocht? Oder auch gemeinsam? Mit und für Gäste?:
Spülen und Müll
Spülenform: Noch nicht festgelegt
Welche Mülltrennung soll in der Küche vorgehalten werden: Altglas, Altpapier, Biomüll, Gelber Sack Müll, Restmüll
Sonstiges
Steht schon ein Küchenhersteller fest oder wird bevorzugt: Nobilia , da wir unsere jetzige Küche auch von Nobilia haben. Sind aber im Grunde offen
Steht schon ein Gerätehersteller fest oder wird bevorzugt: Siemens , sind aber noch offen
Küchenstil: Grifflose Küche
Was stört an der bisherigen Küche und was soll die neue Küche unbedingt können? Warum?:
Preisvorstellung (Budget):
Angehängte Dateien
Hallo, wir sind gerade in den letzten Planungen für unser EFH. Wir warten gerade auf die Genehmigung unseres Bauantrags.
Wir sind eine 4 köpfige Familie (2 Kinder, 4 und 3 Jahre alt). Anbei unser geplanter Grundriss, Küche, Esszimmer und Wohnzimmer. Wir wünschen uns eine Kochinsel, die Platz zum sitzen für unsere 2 Kinder bietet.
Wir nehmen unseren Side by Side Kühlschrank/Gefriereinheit der Firma Liebherr (SBSes 8773) mit. Diesen Side by Side Kühlschrank möchten wir bündig einbauen. Anbei die Maße des Kühlschranks (Anhang 2)
Die Küchenschränke sollten in Trockenbau eingearbeitet werden. Ähnlich wie in Anhang 1.
Wir wünschen uns einen Dampfbackofen und einen Dampfgarer. Unser Geschirrspüler soll von der Firma Miele kommen. Induktion mit Muldenlüfter und Abluft. Hoffentlich bekommen wir dies mit KFW55 Haus und Lüftungsnalge überhaupt hin. Folgende Geräte haben wir uns ausgesucht (sind aber natürlich noch offen):
HS658GXS7
HN678G4S6
EX807LX67E
G7590
Armatur soll mit Sprudelfunktion von der Firma Grohe blu kommen. Hierzu habe auch schon eine Frage gestellt: https://www.kuechen-forum.de/forum/themen/grohe-blue-in-abstellkammer.41056/
Unsere letzte Planung hefte ich mal an. Diese gefällt uns schon sehr.
Versteht mich bitte nicht falsch: unserer Küchenplaner ist absolut spitze!!!! Wir benötigen nur weiteren Input, weil wir die Befürchtung haben, unter den ganzen Entscheidungen die wir mit dem Hausbau treffen müssen, etwas zu vergessen.
Würde uns aber über Verbesserungsvorschläge sehr freuen.
Ich hoffe ich habe nichts vergessen.
Vielen Dank schon einmal für eure Hilfe.
Checkliste zur Küchenplanung
Personenkriterien und Ergonomie
Anzahl Personen im Haushalt: 4
Davon Kinder: 2
Körpergrößen aller Hauptbenutzer in cm (wegen Arbeitshöhe ): 170 (m) und 157 (w)
Welche Arbeitshöhe ist angedacht (in cm)?:
Gebäudekriterien
Art des Gebäudes: Neu-/Umbau > Planänderungen möglich, Eigentum
Brüstungshöhe des Fensters (in cm): Boden tiefe Schiebeelemente
Fensterhöhe (in cm):
Raumhöhe in cm:
Heizung: Fußbodenheizung
Sanitäranschlüsse: vollkommen variabel
Einbaugerätekriterien
Ausführung Kühlgerät: Side by Side (ca. 90cm breit)
Einbaukühlgerät Größe: N. a.
Ausführung Tiefkühl (TK)-Gerät: N. a.
Dunstabzugshaube: Abluft
Hochgebauter Backofen : ja
Geplante Heißgeräte: Dampfgarer ohne Wasseranschluß, Dampfbackofen (DGC) ohne Wasseranschluß
Hochgebauter Geschirrspüler : wenn möglich
Art des Kochfeldes: Induktion
Kochfeldbreite (ca. in cm): 90
Sitzmöglichkeiten
Sitzmöglichkeit in der Küche / im Küchenbereich: N. a.
Sitzmöglichkeit: Für wieviel Personen?: Für 2 Personen
Sitzmöglichkeit: Tisch - wenn gesonderter Tisch oder offene Küche: N. a.
Gewünschte oder vorhandene Tischgröße:
Wofür soll der Sitzplatz in der Küche genutzt werden und wie häufig:
Stauraumplanung
Was steht auf der Arbeitsplatte oder soll dort stehen?: Kaffeemaschine, Wasserkocher, Thermomix, Küchenmaschine
Welche weiteren Küchenmaschinen müssen in der Küche untergebracht werden: N. a.
Was soll in der Küche außer den Standards untergebracht werden: N. a.
Welchen Stauraum gibt es sonst noch: Speisekammer, Hauswirtschaftsraum
Kochgewohnheiten
Was/wie wird gekocht? (Alltagsküche, Menüs, Snacks usw): Der ganz normale Wahnsinn mit 2 Kindern
Wie häufig wird gekocht: (fast) täglich 1x warm
Wird alleine gekocht? Oder auch gemeinsam? Mit und für Gäste?:
Spülen und Müll
Spülenform: Noch nicht festgelegt
Welche Mülltrennung soll in der Küche vorgehalten werden: Altglas, Altpapier, Biomüll, Gelber Sack Müll, Restmüll
Sonstiges
Steht schon ein Küchenhersteller fest oder wird bevorzugt: Nobilia , da wir unsere jetzige Küche auch von Nobilia haben. Sind aber im Grunde offen
Steht schon ein Gerätehersteller fest oder wird bevorzugt: Siemens , sind aber noch offen
Küchenstil: Grifflose Küche
Was stört an der bisherigen Küche und was soll die neue Küche unbedingt können? Warum?:
Preisvorstellung (Budget):
Angehängte Dateien
Anhänge
-
Anhang 1.JPG43,4 KB · Aufrufe: 236 -
Anhang 2.JPG32,7 KB · Aufrufe: 241 -
Grundriss.JPG145,5 KB · Aufrufe: 248 -
Grundriss Küche.JPG102,6 KB · Aufrufe: 258 -
Perpektive 1.JPG68,8 KB · Aufrufe: 249 -
Perpektive 2.JPG61,7 KB · Aufrufe: 241 -
Perpektive 4.JPG58,7 KB · Aufrufe: 223 -
Perpektive 5.JPG61,3 KB · Aufrufe: 221 -
Perpektive 6.JPG71,1 KB · Aufrufe: 239
