wilson24de
Mitglied
- Beiträge
- 45
Hallo zusammen,
als stiller, aber stets interessierter Mitleser durfte ich hier bislang viele schöne Impressionen sammeln.Da eine gute Forumsgemeinde meist aus Interesse heraus handelt und sich so auch wirklich Mühe gibt und wirklich helfen möchte, habe ich mich nun auch dazu entschlossen euch um Hilfe zu bitten.
Wir sind gerade in den abschließenden Planungen für unser neues EFH.
Das Haus wird recht modern, aufgrund der Hanglage terassenförmig im cube-style mit Flachdach und Dachterrasse errichtet.
So gesehen soll auch die Küche sehr modern werden.
Als Bodenbelag wird dunkles Achat-Eichen Parkett verlegt (geklebt).
Im gesamten Raum/Etage wird er eigentlich als geölte Variante verlegt, wir überlegen noch ob wir im Bereich der Küche sozusagen nahtlos auf die versiegelte Version wechseln.
Aber das soll hier eigentlich nicht Thema sein, sondern lediglich einen Eindruck des Bodendesigns vermitteln.
Die Wände im Küchenbereich werden entweder weiß verputzt sein, oder als anthrazitfarbene Steinwand verbaut.
Das hängt auch mit der noch nicht fest stehenden Frontfarbe zusammen.
Als Front soll entweder Mellaminharz Hochglanz, oder wenn es ins Budget passt (bzw. vom Preis/Leistungsverhältnis passend) Lack Hochglanz.
Die Fenster sind alle bodentief. Kann zwar im hinteren Bereich (das einzelne) geändert werden muss aber nicht unbedingt.Das große Fenster wird ggf. noch erweitert damit es noch mehr in den Küchenraum hineinragt.
Idealerweise kocht man dann auch mit Blick nach draußen.
Wichtig sind uns eine große Koch/Spülinsel, mit genug Arbeitsfläche, dazwischen und auf der Gegenseite.
Die Spülkombi könnte auch stirnseitig sein.
Den Rest der Küche stelle ich mir mal NICHT klassisch (Unterschränke, Oberschränke, Arbeitsplatte etc.) vor.
Geräte/Ausstattung:
Backofen mit Pyrolyse FunktionEinbau Mikrowelle (wenn möglich äusserlich weitgehend baugleich)
Breite Spüle bzw. 1,5-2 Becken mit AbtropfflächeFreistehende
Dunstesse
Bar (nur leicht erhöht)
Induktionskochfeld (Aufgrund der vermutlich schmaleren Insel, auch mehr schmal als breites Induktionskochfeld)
Einbau Spülmaschine, äußerlich nicht erkennbar
Auszug Müllfächer mit Trennung
Mehr Vorgaben möchte ich mal noch gar nicht machen da ich zunächst zum einen völlig offen bin.Ich bin gerade recht leer im Kopf und mir mag die rechte Idee einfach nicht einfallen.
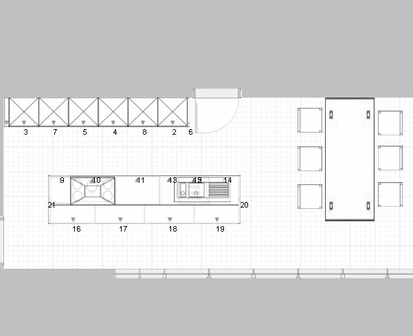
Dennoch möchte ich meinen ersten Entwurf mal beifügen.
Erstellt mit dem Alno Planer.
Die insel ist allerdings zu breit, 1,00m sollte reichen, dann aus Hochschränken?!?
Wie ihr seht bin ich nicht so der planer und es geht mir nicht allzu leicht von der Hand und ich habe vermutlich auch noch nicht alle Funktionen durchschaut.
Seht es mir bitte nach
Über Tipps, Vorschläge jeglicher Art würde ich mich sehr freuen, und werde auch sehr präsent sein in diesem Thread.
Bedanken möchte ich mich bereits im Vorfeld alleine über die Möglichkeit des Austausch und zum Teil professioneller Hilfe
Ich hoffe ich habe nichts vergessen.
Wenn Ihr fragen habt ... immer zu
Zu guter Letzt nochmal die Links zu den Plänen:
Anhang anzeigen PLAN1.KPL
Anhang anzeigen ebene3.pdf
Anhang anzeigen PLAN1.POS
Und die Bilder der aktuellen Alno Planung:


Checkliste zur Küchenplanung von wilson24de
Anzahl Personen im Haushalt : 4
Davon Kinder? : 2
Körpergrössen aller Hauptbenutzer (wegen Arbeitshöhe ) in cm : 188, 162
Art des Gebäudes? : Neu-/Umbau, Planänderungen möglich
Brüstungshöhe des Fensters (in cm) : 1
Fensterhöhe (in cm) : 220
Raumhöhe in cm: : 260
Heizung : Fussbodenheizung
Sanitäranschlüsse : vollkommen variabel
Ausführung Kühlgerät? : Stand-Alone bis 60 cm Breite
Kühlgerät Größe : bis 175 cm Höhe
Ausführung Tiefkühl (TK)-Gerät : Nicht erforderlich bzw. steht woanders
Dunstabzugshaube? : Abluft
Hochgebauter Backofen ? : Ja
Hochgebauter Geschirrspüler ? : nein
Kochfeldart? : Induktion
Kochfeldbreite ca. (in cm)? : 90
Spülenform: : 1,5 Becken mit Abtropffläche
Weitere geplante Heißgeräte : Einbaumikrowelle
Küchenstil? : modern
Sitzmöglichkeit in der Küche / im Küchenbereich als : Tresen in Barhöhe
Sitzmöglichkeit: Für wieviel Personen? : für 4 Personen
Sitzmöglichkeit: Tisch - wenn gesonderter Tisch oder offene Küche : Wird nach Bedarf neu gekauft
Gewünschte o. vorhandene Tischgröße : 160-260
Wofür soll der Sitzplatz in der Küche genutzt werden? Wie häufig? : Gespräche mit Gästen, Drinks
Welche Arbeitshöhe ist angedacht (in cm)? : 86
Was steht auf der Arbeitsplatte oder soll dort stehen? : Kaffeevollautomat, Wasserkocher, Messerblock, Toaster
Welche weiteren Küchenmaschinen müssen in der Küche untergebracht werden? : Küchenmaschine, Handrührgerät, Mixer, Pürierstab, Eierkocher
Was soll in der Küche außer den Standards untergebracht werden? : Sonstiges (evtl. im Beitragstext benennen)
Welchen Stauraum gibt es sonst noch? : Geschirr/Gläserschrank im Wohn-/Esszimmer, Speisekammer, Hauswirtschaftsraum
Was/wie wird gekocht? (Alltagsküche, Menüs, Snacks usw) : quer Beet, hauptsächlich Alltagsküche
Wie häufig wird gekocht? : (fast) täglich 1x warm
Wird alleine gekocht? Oder auch gemeinsam? Mit und für Gäste? : sowohl als auch
Was stört an der bisherigen Küche und was soll die neue Küche unbedingt können? Warum? : MUSS: Insel für kochen UND Spülen. "Schrankwand mit Ofen und Mikro
Steht schon ein Küchenhersteller fest oder wird bevorzugt? : Alno, Nolte
Steht schon ein Gerätehersteller fest oder wird bevorzugt? : völlig offen, Markenartikel
Preisvorstellung (Budget) : bis 15.000,-
als stiller, aber stets interessierter Mitleser durfte ich hier bislang viele schöne Impressionen sammeln.Da eine gute Forumsgemeinde meist aus Interesse heraus handelt und sich so auch wirklich Mühe gibt und wirklich helfen möchte, habe ich mich nun auch dazu entschlossen euch um Hilfe zu bitten.
Wir sind gerade in den abschließenden Planungen für unser neues EFH.
Das Haus wird recht modern, aufgrund der Hanglage terassenförmig im cube-style mit Flachdach und Dachterrasse errichtet.
So gesehen soll auch die Küche sehr modern werden.
Als Bodenbelag wird dunkles Achat-Eichen Parkett verlegt (geklebt).
Im gesamten Raum/Etage wird er eigentlich als geölte Variante verlegt, wir überlegen noch ob wir im Bereich der Küche sozusagen nahtlos auf die versiegelte Version wechseln.
Aber das soll hier eigentlich nicht Thema sein, sondern lediglich einen Eindruck des Bodendesigns vermitteln.
Die Wände im Küchenbereich werden entweder weiß verputzt sein, oder als anthrazitfarbene Steinwand verbaut.
Das hängt auch mit der noch nicht fest stehenden Frontfarbe zusammen.
Als Front soll entweder Mellaminharz Hochglanz, oder wenn es ins Budget passt (bzw. vom Preis/Leistungsverhältnis passend) Lack Hochglanz.
Die Fenster sind alle bodentief. Kann zwar im hinteren Bereich (das einzelne) geändert werden muss aber nicht unbedingt.Das große Fenster wird ggf. noch erweitert damit es noch mehr in den Küchenraum hineinragt.
Idealerweise kocht man dann auch mit Blick nach draußen.
Wichtig sind uns eine große Koch/Spülinsel, mit genug Arbeitsfläche, dazwischen und auf der Gegenseite.
Die Spülkombi könnte auch stirnseitig sein.
Den Rest der Küche stelle ich mir mal NICHT klassisch (Unterschränke, Oberschränke, Arbeitsplatte etc.) vor.
Geräte/Ausstattung:
Backofen mit Pyrolyse FunktionEinbau Mikrowelle (wenn möglich äusserlich weitgehend baugleich)
Breite Spüle bzw. 1,5-2 Becken mit AbtropfflächeFreistehende
Dunstesse
Bar (nur leicht erhöht)
Induktionskochfeld (Aufgrund der vermutlich schmaleren Insel, auch mehr schmal als breites Induktionskochfeld)
Einbau Spülmaschine, äußerlich nicht erkennbar
Auszug Müllfächer mit Trennung
Mehr Vorgaben möchte ich mal noch gar nicht machen da ich zunächst zum einen völlig offen bin.Ich bin gerade recht leer im Kopf und mir mag die rechte Idee einfach nicht einfallen.
Dennoch möchte ich meinen ersten Entwurf mal beifügen.
Erstellt mit dem Alno Planer.
Die insel ist allerdings zu breit, 1,00m sollte reichen, dann aus Hochschränken?!?
Wie ihr seht bin ich nicht so der planer und es geht mir nicht allzu leicht von der Hand und ich habe vermutlich auch noch nicht alle Funktionen durchschaut.
Seht es mir bitte nach
Über Tipps, Vorschläge jeglicher Art würde ich mich sehr freuen, und werde auch sehr präsent sein in diesem Thread.
Bedanken möchte ich mich bereits im Vorfeld alleine über die Möglichkeit des Austausch und zum Teil professioneller Hilfe
Ich hoffe ich habe nichts vergessen.
Wenn Ihr fragen habt ... immer zu
Zu guter Letzt nochmal die Links zu den Plänen:
Anhang anzeigen PLAN1.KPL
Anhang anzeigen ebene3.pdf
Anhang anzeigen PLAN1.POS
Und die Bilder der aktuellen Alno Planung:


Checkliste zur Küchenplanung von wilson24de
Anzahl Personen im Haushalt : 4
Davon Kinder? : 2
Körpergrössen aller Hauptbenutzer (wegen Arbeitshöhe ) in cm : 188, 162
Art des Gebäudes? : Neu-/Umbau, Planänderungen möglich
Brüstungshöhe des Fensters (in cm) : 1
Fensterhöhe (in cm) : 220
Raumhöhe in cm: : 260
Heizung : Fussbodenheizung
Sanitäranschlüsse : vollkommen variabel
Ausführung Kühlgerät? : Stand-Alone bis 60 cm Breite
Kühlgerät Größe : bis 175 cm Höhe
Ausführung Tiefkühl (TK)-Gerät : Nicht erforderlich bzw. steht woanders
Dunstabzugshaube? : Abluft
Hochgebauter Backofen ? : Ja
Hochgebauter Geschirrspüler ? : nein
Kochfeldart? : Induktion
Kochfeldbreite ca. (in cm)? : 90
Spülenform: : 1,5 Becken mit Abtropffläche
Weitere geplante Heißgeräte : Einbaumikrowelle
Küchenstil? : modern
Sitzmöglichkeit in der Küche / im Küchenbereich als : Tresen in Barhöhe
Sitzmöglichkeit: Für wieviel Personen? : für 4 Personen
Sitzmöglichkeit: Tisch - wenn gesonderter Tisch oder offene Küche : Wird nach Bedarf neu gekauft
Gewünschte o. vorhandene Tischgröße : 160-260
Wofür soll der Sitzplatz in der Küche genutzt werden? Wie häufig? : Gespräche mit Gästen, Drinks
Welche Arbeitshöhe ist angedacht (in cm)? : 86
Was steht auf der Arbeitsplatte oder soll dort stehen? : Kaffeevollautomat, Wasserkocher, Messerblock, Toaster
Welche weiteren Küchenmaschinen müssen in der Küche untergebracht werden? : Küchenmaschine, Handrührgerät, Mixer, Pürierstab, Eierkocher
Was soll in der Küche außer den Standards untergebracht werden? : Sonstiges (evtl. im Beitragstext benennen)
Welchen Stauraum gibt es sonst noch? : Geschirr/Gläserschrank im Wohn-/Esszimmer, Speisekammer, Hauswirtschaftsraum
Was/wie wird gekocht? (Alltagsküche, Menüs, Snacks usw) : quer Beet, hauptsächlich Alltagsküche
Wie häufig wird gekocht? : (fast) täglich 1x warm
Wird alleine gekocht? Oder auch gemeinsam? Mit und für Gäste? : sowohl als auch
Was stört an der bisherigen Küche und was soll die neue Küche unbedingt können? Warum? : MUSS: Insel für kochen UND Spülen. "Schrankwand mit Ofen und Mikro
Steht schon ein Küchenhersteller fest oder wird bevorzugt? : Alno, Nolte
Steht schon ein Gerätehersteller fest oder wird bevorzugt? : völlig offen, Markenartikel
Preisvorstellung (Budget) : bis 15.000,-
Zuletzt bearbeitet:



