Unbeendet Neue Planung, wegen Wohnungswechsel

Hallo nochmal..

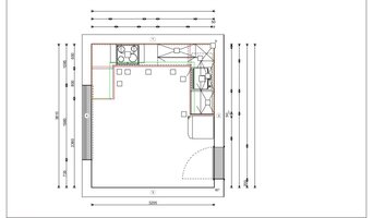
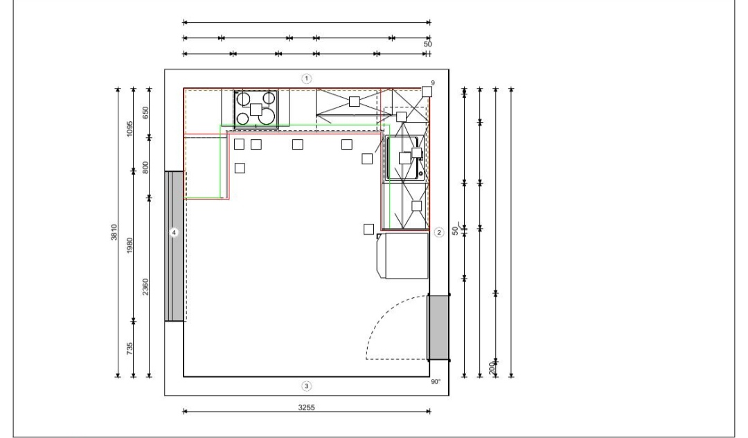
Die Planung für meine neue Küche steht inzwischen und ich würde euch gerne nochmals drüber schauen lassen,um eure Meinung dazu zu hören.

Von dem Gedanken einen HS in der Küche zu haben, habe ich mich inzwischen verabschiedet..musste einsehen das dafür zu wenig Platz ist.

Was haltet ihr davon, die Küche unter dem Fenster noch ein Stück erweitert zu haben?
Die Anordnung der OS gefällt mir optisch so besser, als sie nur gerade am langen Fliesenspiegel zu haben.

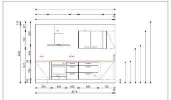
Als Spüle habe ich mir die Etagon 6 ausgesucht..frage mich nur, ob ich die Abtropfe mit der Zeit nicht doch vermissen werde??
Meint ihr denn ich hätte genug Platz für eine Abtropfe?
Rechts von der Spüle, auf die Ablage soll der KVA, Philips Latte Go (23 cm breit) .
Und links würde erstmal nur der Toaster in der Ecke stehen.

Und noch eine Frage.. Würdet ihr lieber höhere OS nehmen, bei einer Größe von 164 cm?

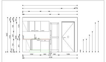
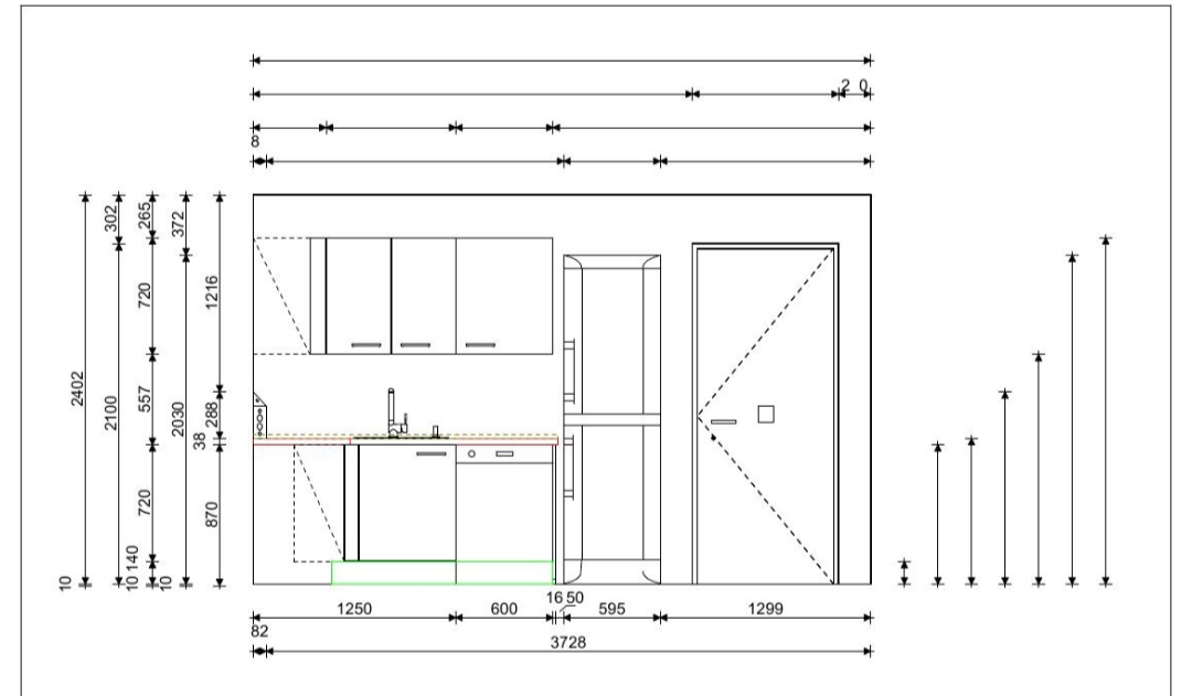
Und eine Lösung für die Mikro hab ich noch nicht wirklich gefunden.. Eigentlich war mein Gedanke die ganze Zeit, eine ganz normale in einem Fach des Hochschranks verschwinden zu lassen. Aber der fällt ja weg..
Natürlich könnte man eine Einbaumikro auch rechts oben in den OS der Spüle einplanen, oder?

Ich würde mich sehr freuen, wenn der ein oder andere sich vielleicht die Zeit nimmt und mir seine Meinung darüber mitteilt.

Ich danke euch Voraus!

LG Tanja
 

Anhänge

  • IMG_20220424_100733.jpg
    IMG_20220424_100733.jpg
    84,8 KB · Aufrufe: 169
  • IMG_20220424_100651.jpg
    IMG_20220424_100651.jpg
    82,2 KB · Aufrufe: 150
  • IMG_20220424_100630.jpg
    IMG_20220424_100630.jpg
    64,5 KB · Aufrufe: 147
  • IMG_20220424_100606.jpg
    IMG_20220424_100606.jpg
    78 KB · Aufrufe: 155
  • IMG_20220424_100545.jpg
    IMG_20220424_100545.jpg
    69,7 KB · Aufrufe: 160
  • IMG_20220424_100516.jpg
    IMG_20220424_100516.jpg
    77,6 KB · Aufrufe: 157
  • IMG_20220424_100501.jpg
    IMG_20220424_100501.jpg
    97,4 KB · Aufrufe: 163
Hallo, warum planst du 2 Ecken? Ich würde beim L bleiben. Macht auch den Essbereich luftiger. Der US die paar cm unter dem Fenster sieht auch nicht gut aus.
 
Hallo..

Ich hatte mir gedacht, daß ich so mehr Abstellfläche und wenigstens 30 cm mehr Stauraum hätte.
 
Wäre evtl. ein kleine fahrbare "Insel" was für dich. Ikea hat da gerade jede Menge von im Programm. Sehr praktisch oben als Stellfläche unten kann man zB. Servietten, Küchenrolle, Besteck reintun und schnell hin und her schieben wo man es gerade braucht. LG Sabine
 

Ähnliche Beiträge

Neff Hausgeräte Ballerina Küchen Blum Bewegungstechnologie Weibel - Intelligente Küchenlüftung

Neff Spezial

Blum Zonenplaner

Weibel Abluft-Tuning

Weibel Abluft-Tuning
Zurück
Oben