Neue Küche in saniertem Haus

Danke Isabella, für den Tipp mit dem z-Wert. Die Methoden zur Arbeitshöhenermittlung hatten wir schon verwendet, aber leider ist Brüstungshöhe so gering, dass wir erst mit den KFB klären müssen, wie hoch wir tatsächlich gehen können bzw. ob wir geteilte APL-Bereiche nehmen.
 
Miss mal den Abstand Unterkante Fensterblatt zu Boden. Das ist ausschlaggebend.
In meiner Küche hatte ich auch das Problem, und ich habe es mit einer Abtreppung gelöst - habe kein Foto zur Hand, aber es ist in meiner fertiggestellten Küche zu sehen.
 
Hallo Isabella,
Deine Küche hatte ich schin gesehen und festgestellt, dass da sehr viel (!!!) Planungsarbeit drinstecken wird.

Abstand Unterkante Fensterblatt zu Boden wird nach Einbau des neuen Bodens ca. 83cm sein.
In der derzeitigen Küche haben wir daher bereits eine abgetreppte APL, was aber dazu führt, dass der Hauptschnibbel-Platz eben nur 80cm hoch ist, was nervt.

In der neuen wollte ich eigentlich eine Abtreppung aus optischen Gründen vermeiden...
 
Naja, normalerweise würde man das Kochfeld auf die niedrige APL platzieren und die Spüle höher. Dann passt es wieder. Die Alternativen sind:
- Abtreppung oder Gattenblock
- Planung ohne Möbel unterm Fenster
- Fenstertausch entweder mit höherem Rahmen unten oder mit festem Unterlicht
- Raumtausch
- Umziehen
Jetzt kannst Du überlegen, welche Alternative für Dich in Frage kommt.
 
Vielen Dank Bibbi, Evelin und Isabella für die wertvollen Tipps und Vorschläge, mit denen ich jetzt ersteinmal weiterarbeite!

VG cg120
 
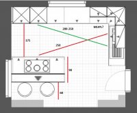
Weil neue Fenster ausscheiden, habe ich mal versucht, eine Halbinsellösung zu finden.
Ein paar Macken in der grafischen Umsetzung sind noch drin, aber ich denke, dass man versteht, was gemeint ist.

Vorteile aus unserer Sicht:
- Fenster könnten so bleiben und blieben komplett funktionstüchtig
- Die Spüle und der Geschirrspüler könnten am Ort bleiben (oder würden zumindest nur wenig örtlich verändert)
- Die Arbeitshöhen kämen halbwegs gut hin (auch wenn der Herd tiefer sein könnte)

Passt auf den ersten Blick ganz gut, was meint ihr?
 

Anhänge

  • Plan_9_Insel_1.JPG
    Plan_9_Insel_1.JPG
    107,6 KB · Aufrufe: 369
  • Plan_9_Insel_2.JPG
    Plan_9_Insel_2.JPG
    84,8 KB · Aufrufe: 381
  • Plan_9_Insel_3.JPG
    Plan_9_Insel_3.JPG
    73,6 KB · Aufrufe: 365
  • Plan_9_Insel_Grundriss.jpg
    Plan_9_Insel_Grundriss.jpg
    53,8 KB · Aufrufe: 378
  • PLAN9a_Wandnah.KPL
    3,9 KB · Aufrufe: 291
  • PLAN9a_Wandnah.POS
    6,3 KB · Aufrufe: 299
Mir gefällt diese Planung überhaupt nicht, auch wenn eine durchgehende Höhe der APL wäre, ist der Weg zwischen Kochfeld und Spüle so ziemlich weit weg. Außerdem sitzt man mit dem Rücken zur Öffnung zum Wohnzimmer mit dem Gesicht zum Kochfeld, irgendwie behagt mir das nicht.

Das Problem in diesem Raum ist, dass zu viele Öffnungen drin sind - wie reift denn die Überlegung, die Flurtür zu schließen?
Dann könnte man bibbis Vorschlag spiegelverkehrt als Basis nehmen, Kochfeld und Spüle tauschen, also Kochfeld auf der niedrigeren Halbinsel, Spüle an die Wand planrechts.

Die Vorteile wären:
- Wasseranschluss bliebe planrechts, eine Verlegung evtl. Aufputz hinter einer übertiefe Spülenzeile dürfte kein Problem darstellen
- planlinke Fenster frei
- die Kochhalbinsel könnte niedriger gestaltet werden (z.B. um 1 Raster) und somit das planobere Fenster auch zu öffnen sein, und wenn ihr Sitzplätze dran haben wollt, kann man sie auch realisieren (ist zwar nicht meine Lieblingslösung, aber eine sehr verbreitete)
- eine übertiefe Spülenzeile in 6er Raster würde ausreichende, bequeme Arbeitsfläche und viel Stauraum bieten
- der Raum würde ansprechend aussehen

Was sind Deine Gedanken dazu?
 
wieso änderst du die Schränke in deiner Planung auf 81cm ab? Soll das eine Kinderküche werden?;-)

Wenn du die Höhe in diner Planung ändern möchtest, dann musst du die Z-Position ändern, sprich den Sockel .

ABER, warum 81c? wenn deine BRH 83, kann deine AP Höhe locker 85+ werden. Entscheidend in deinem Fall ist die Unterkante Fensterflügel, falls du die AP nicht höher machen möchtest. Was ich nicht verstehe, weiter oben schreibst du, es reiht, wenn das Fenster nur schräg zu öffnen ist, dh die AP kann noch höher werden.

Für die Planung selbst, ist es irrelevant, ob du die AP niedriger darstellst oder nicht. Jedes Mal wenn du einen Schränk in deiner Planung austauscht, musst du die AP Höhe anpassen.

Es fehlen auch die Blenden und totes Eck in der Planung. Beides findest du unter Blenden.

Wenn du den V15b Planer nutzt, dann setzte dein Raummaß so, dass es mit dn 2.5cm Sprüngen des Planers passt. Also 400 x 352.5cm. Das ist gut genug und macht die Schieberei sehr viel einfacher.

Um die Theke darzuztellen, gehst du zu Sondrartikel-Sonderartikel und passt ein Stück AP an.

In deiner Planung ist die Wasserzeile vorgezogen. Warum? Wasser ist doch hinter der Spüle?

Warum soll das Kochfeld in der Insel sein, wenn ihr kleine Kinder habt? Genau aus disem Grund habe ich eine nackte Insel/Theke/Tisch dargestellt, dass die beiden auf der Bank sitzen können und eventuell auf dem Tisch malen oder sonst was machen können.

Die Inselhaube soll eigentlich ein Deckenlüfter darstellen oder eine normale Inselhaube? Wenn letzteres, wie macht ihr die Abluftführung? Habt ihr die DAH schon? Insel DAHs sind teurer als Wandgeräte?

Du hattest geschrieben, dass die Geräte vorhanden sind. Ich war der Annahme, dass Kochfeld und BO zusammengehören (genannt Herdset), weil du es so in deiner ersten Planung dagestellt hast. Ist das nicht so?

cs1.JPG
 
Hallo,
das ist viel Input von Euch beiden - das müssen wir hier erst einmal einsortieren!

Isabella:
Nachdem wir die Tür zughängt hatten, ist uns aufgefallen, dass wir zu 95% die Küche durch diese Tür betreten und verlassen, wenn wir nicht gerade im angrenzenden Esszimmer sind. Und weil der Flur und die Raumsituation dieser drei Räume mit Tür insgesamt heller und leichter ist, werden wir die Tür dort möglichst lassen, auch wenn das Verschliessen einige Probleme lösen würde.

Ich werde trotzdem mal Bibbis Vorschlag mit Deinen Änderungsvorschlägen umsetzen.

Evelin:
Vielen Dank für die Tipps zum Planer!
BRH ist 80. Den Rest der Küche habe ich auf 90cm geplant (zumindest hatte ich vorgehabt, das so im Planer umgesetzt zu haben). Weil ich parallel mit zwei anderen Planern arbeite (Nolte und seit gestern auch mit IKEA ), komme ich mittlerweile etwas durcheinander.

Die vorgezogene Wasserzeile hatte ich gemacht, weil das Abwasser nicht in die Wand läuft sondern direkt davor in den Boden und man dann mehr Platz hat, dass Geraffel umzusetzen. Das ist im Moment sehr eng.

Das Kochfeld ist in der Insel, weil ich die Spüle dort nicht ohne weiteres hinbekomme und eine reine Schnibbelinsel andere Probleme mit sich gebracht hatte.

Insel-DAH haben wir noch nicht. Ofen und Herd (Induktion ) sind autark.

Für uns war die Grundidee (nicht die Detailausführung) aus Plan 9 von den Blickrichtungen und im Zusammenhang mit dem Flur und dem Esszimmer (nicht rein kochtechnisch) passender und harmonischer, als die anderen Lösungen.

Nicht zuletzt war das ein Küchenaufbau, bei dem ich mir zugetraut hätte, sie bei IKEA zu kaufen und selbst einzubauen. Mittlerweile rückt IKEA in den Blick, weil Naturholl-Arbetsplatten dort bezahlbar sind und man nicht zu viel Geld versenkt für den Fall, dass einem die Küche doch nicht so gut gefällt.

Wir werden jetzt ersteinmal etwas Abstand gewinnen und die Sache Anfang nächster Woche erneut angehen.

Bis dahin VG cg120
 
Ja, das muss gut überlegt sein. Schließlich lebt man dann mit den Entscheidungen jahrzehntelang. Abwägen und priorisieren muss man immer, man muss überlegen, in welchem Raum man wieviel Zeit verbringt und welche Schwerpunkte man hat.

Sicher für Euch schwierig, den wahrscheinlich kürzlich erneuerten Flur nochmal anfassen zu müssen. Man könnte aber auch in der jetzigen Türöffnung flurseitig ein schönes Regal einpassen oder eine Nische mit einem großen Spiegel, ein Vide-Poche, eine nette Beleuchtung und schon ist der Flur wohnlich(er) ohne die Wände nochmal streichen zu müssen. Evtl. lässt sich sogar die jetzige Türzarge als Einrahmung für die Nische weiterverwenden.

Lasst Euch ein wenig Zeit, um die Ideen wirken zu lassen. Und versuch das, was ich oben beschrieben habe, in irgendeinem Planer abzubilden.
 
Neff Hausgeräte Ballerina Küchen Blum Bewegungstechnologie Weibel - Intelligente Küchenlüftung

Neff Spezial

Blum Zonenplaner

Weibel Abluft-Tuning

Weibel Abluft-Tuning
Zurück
Oben