Fertig mit Bildern Lösung für kleine Küche in Mietwohnung gesucht

Shale Blue wäre mir für die NRW auch zu dunkel. Frontfarbe wäre gut, aber Hochglanz... weiß nicht, wäre nicht Meins. Farbe kommt nicht in Frage?
Wg. Deine Frage im anderen Thread zur Anpassung der Brüstungshöhe des Fensters: Sind die Wände aus Beton oder Ziegelsteine?
 
Shale Blue wäre mir für die NRW auch zu dunkel. Frontfarbe wäre gut, aber Hochglanz... weiß nicht, wäre nicht Meins. Farbe kommt nicht in Frage?
?

Doch, grundsätzlich käme auch Farbe für die Rückwand in Frage. Die Wände bleiben geplant weiß, von daher wäre eine farbige Rückwand machbar. Ich wollte nur mal ein paar Meinungen zur unterschiedlichen Farbgestaltung Rückwand und APL...
 
Na dann ist die Anpassung der BRH relativ einfach, Ziegelsteine lassen sich ziemlich gut bearbeiten.

Welche Frage zur Farbgestaltung hast Du denn, bzw. welche Zweifel oder Wünsche? Was für ein Stil gefällt Dir? Wie ist die Lichtsituation im Raum? In welche Himmelsrichtung ist das Fenster? Stockwerk?
 
Die Küche liegt im ersten Stock mit einem Fenster (siehe erster Beitrag). Das Fenster geht nach Osten. Allerdings steht vor dem Fenster auch ein Baum, der im Frühjar/Sommer viel Licht schluckt.

Beleuchtung an der Decke wird neu, da wissen wir noch nicht genau, was wir machen. Auf jeden Fall VIEL Licht ;-)

Ich fände eine rote Rückwand schön (signalrot oder ähnliches), ein grünblau wäre auch denkbar. Ich bin mir nur nciht sicher, ob sowas mit einer normalen Schichtstoffplatte geht.
 
Hallo zusammen,

ich habe in den letzten Wochen ein paar Angebote eingeholt und das eine oder andere Angebot verfeinert. Das Ergebnis sieht jetzt aus wie auf den Bildern unten.

Hersteller: Häcker Systemat

Geräte:
  • Kochfeld NEFF T68TT60N0 Link
  • Abzugshaube NOVY VISION 90cm Link
  • Spüle BLANCO METRA 5S Link
  • Kühlschrank Standalone (haben wir schon)
  • Spülmaschine, Mikrowelle übernehmen wir aus der alten Küche
Bei der Front ist die Entscheidung für die Qualität gefallen, die Farbe steht noch nicht. Aber es wird wohl eine AV4030 in Satin oder Lichtgrau.

Die Griffe werden von oben aufgesetzte lange Griffe, ähnlich wie hier

Mit Beleuchtung, Rückwand und 2 Ecksteckdosen liegen wir hier momentan bei knapp 8500 EUR.

Wie ist eure Meinung dazu? Sieht das nach einem halbwegs vernünftigen Angebot aus? Ich würde gern unter 8000 EUR kommen. Mal schauen, ob ich das noch hinkriege...
 

Anhänge

  • 01.JPG
    01.JPG
    55,7 KB · Aufrufe: 346
  • 02.JPG
    02.JPG
    53 KB · Aufrufe: 345
  • 03.JPG
    03.JPG
    62,1 KB · Aufrufe: 348
Keiner eine Meinung dazu?

Egal, ich habe noch eine Frage: Kann mir jemand sagen, ob es normale Schichststoffarbeitsplatten auch in weniger als 38mm gibt. Ich hätte gern so 10-15mm.

Gibt es da Hersteller, die sowas anbieten? Ich habe bei Lechner das Thema Compact gelesen. Gibt es Alternativen? Falls jemand weiß, wo da der Preisunterschied zu einer normalen Schichtstoffarbeitsplatte liegt, wäre das natürlich auch noch interessant...
 
Es gibt Arbeitsplatten mit der gleichen Beschichtung wie Schichtstoffplatten, z.B. von Hackl in 18mm. Der innere Aufbau so einer Platte ist aber für die Stabilität ein anderer als der einer normalen 4cm Schichtstoffplatte, die eine einfache Sperrholzplatte als Kern hat. Deshalb ist sie auch teurer.
Küchenaufbau 9.JPG

Bei mir wurde aus Versehen so eine dünnere Platte für die Halbinsel geliefert, was aber in Holz-NB total fipsig aussah, wehalb ich sie dann doch in die 4cm Platte tauschen ließ. Das war aber definitiv eine Frage des verwendeten Musters.
L1090444.JPG L1090621.JPG

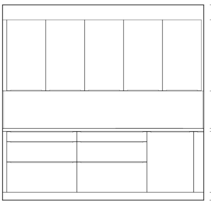
Zur Planung: statt 40-100-40 würde ich 50-80-50 auf der Kochfeldseite nehmen. Bei 40cm Schrankbreite bleiben nur 32cm Stellbreite innen. Dürfte aber preisneutral sein.
Teuer sind natürlich die Aufsatzgriffe. Wenn du dich da für normale Griffe entscheiden könntest, würdest du wahrscheinlich etwas einsparen.
Sicher, dass du keine direkt zugänglichen Schubladen möchtest?
Ansonsten finde ich es okay.
 
Zuletzt bearbeitet:
Systemat hat serienmässig 16 mm Platten in diversen Dekoren im Programm. Wird aber etwas teurer
 
So, es heißt ab sofort warten. Wir haben letzte Woche unterschrieben und bestellt.

Es wird die Häcker Systemat mit der Front AV2030 in Hochglanz polarweiß und der APL in Pinie Vintage repro. Die Rückwand kommt ebenfalls im APL-Material.

Die alte Mikrowelle habe ich noch rausgeschmissen und dafür ein Bosch Gerät (HNG6764W6) in den Hochschrank eingesetzt.

Die DAH wird eine Novy Vision 90.

Jetzt heißt es warten. Danke für die vielen Tipps hier im Forum. Sobald die Küche steht, gibt es Bilder. Ich schätze, dass es Mitte Oktober wird.
 
Dann sind wir gespannt und freuen uns auf die Bilder!

Wie sind denn die letzten Entscheidungen ausgefallen? APL-Dicke, Griffe/grifflos, Schubladen direkt oder innenliegend?

Toi toi toi für Lieferung uns Aufbau! Mitte Oktober ist es eh schon bald.
 
Die APL-Dicke ist bei den 38mm geblieben. Es gab ein paar Gründe, die dafür gesprochen haben.

Auch wenn es teurer ist, haben wir uns für die aufgesetzten Griffe entschieden. Bei den breiten Auszügen sieht das einfach besser aus.

Auf der rechten Seite gibt es unter dem Induktionsfeld eine innenliegende Schublade. Links sieht es aus, wie auf dem Plan. Da fehlt im Bild nur der Geschirrspüler ganz rechts...
 

Anhänge

  • IMG_4615.jpg
    IMG_4615.jpg
    31,1 KB · Aufrufe: 230
  • IMG_4616.jpg
    IMG_4616.jpg
    35,6 KB · Aufrufe: 231
So, dann gibt es jetzt mal ein paar Bilder --> aus alt mach neu...
 

Anhänge

  • IMG_4801.jpg
    IMG_4801.jpg
    94,6 KB · Aufrufe: 534
  • IMG_4798.jpg
    IMG_4798.jpg
    105,2 KB · Aufrufe: 523
  • IMG_5493.jpg
    IMG_5493.jpg
    52,8 KB · Aufrufe: 512
  • IMG_5492.jpg
    IMG_5492.jpg
    62 KB · Aufrufe: 540
  • IMG_5510.jpg
    IMG_5510.jpg
    76,1 KB · Aufrufe: 555
  • IMG_5511.jpg
    IMG_5511.jpg
    81,9 KB · Aufrufe: 555
Was für eine Veränderung! :clap:

Vielen Dank für die Bilder, das gibt doch gleich eine neue Kennzeichnung.
Viel Spaß in eurer neuen Küche!!
 
Whow , was für eine Verwandlung.

Die neue Küche wirkt sehr viel größer als die alte.
Glückwunsch und viel Spaß .
 
...und so wie es aussieht, hat das herabsetzen der Fensterlaibung geklappt! Gut gemacht!! :2daumenhoch::clap:
 
...und so wie es aussieht, hat das herabsetzen der Fensterlaibung geklappt! Gut gemacht!! :2daumenhoch::clap:

Ja, jetzt müssen nur noch die Fugen am Fenster geschlossen werden.

Sonst sind wir ziemlich zufrieden. Unglaublich, wie viel Platz auf einmal ist und wie groß die Küche wirkt...
 

Ähnliche Beiträge

Neff Hausgeräte Ballerina Küchen Blum Bewegungstechnologie Weibel - Intelligente Küchenlüftung

Neff Spezial

Blum Zonenplaner

Weibel Abluft-Tuning

Weibel Abluft-Tuning
Zurück
Oben