Unbeendet Küchenplanung im Reihenhaus (Miete)

Joker181

Mitglied
Beiträge
2
Küchenplanung im Reihenhaus (Miete)

Liebe Forummitglieder,

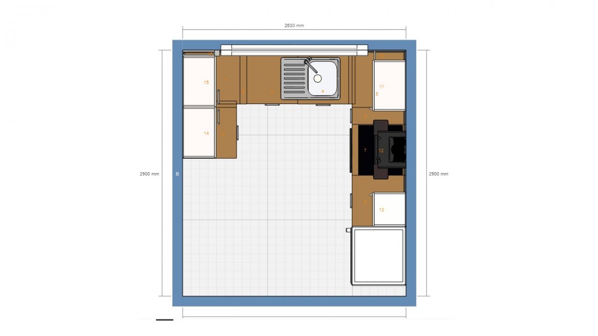
nach langer Recherche und Planung muss ich nun die geballte Schwarmintelligenz hier nutzen, da ich nicht so richtig weiterkomme. Besonders die Ecken auszunutzen fällt schwer. Eckschrank ist jedoch kein muss - lieber Schränke mit Auszügen.

Die Küche ist recht klein und es kommt uns besonders darauf an, den vorhanden Raum optimal auszunutzen. Nach einigen erfolgten Küchenplanungen soll es nun doch eine IKEA Küche werden. Die hohen Schränke bieten viel Stauraum und die ich muss nicht 12 Wochen auf Lieferung und Montage warten.

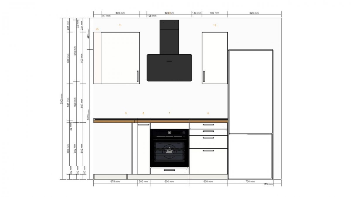
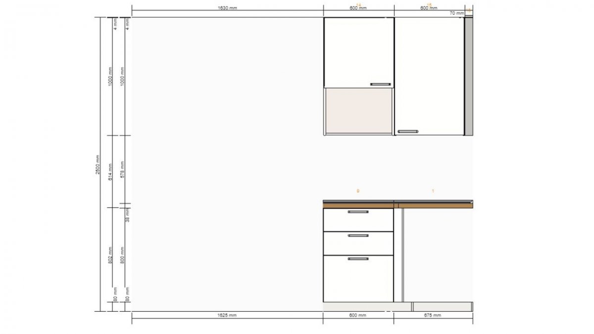
Unseren alten Kühlschrank nehmen wir mit (70*65*201) - sonst soll alles neu angeschafft werden. Mikrowelle auch vorhanden - ggf. in den Möbeln um Arbeitsfläche zu sparen.

Die Geräte werde ich wohl nicht von IKEA nehmen sondern eher Bosch /Siemens -außer Geschirrspüler - falls der Einbau zu viel Basteln bedeutet. Spüle gerne von Schock und ggf. eine vor-Fenster-Armatur (noch nicht ganz sicher ob notwendig)

Die Front soll RINGHULT sein. Arbeitsplatte SÄLJAN. Es wäre schön wenn der Backofen in einem Hochschrank wäre, aber bisher hatte ich dafür keine gute Gesamtlösung - von daher kein muss --> siehe meine Planung. Bei 2 kleinen Kindern jedoch wünschenswert.

Vielen Dank für eure Hilfe/Ratschläge/Ideen.

LG


Checkliste zur Küchenplanung

Personenkriterien und Ergonomie
Anzahl Personen im Haushalt:
4
Davon Kinder: 2
Körpergrößen aller Hauptbenutzer in cm (wegen Arbeitshöhe ): 188
Welche Arbeitshöhe ist angedacht (in cm)?: 91,8

Gebäudekriterien
Art des Gebäudes:
Neu-/Umbau > Planänderungen nicht möglich, Miete
Brüstungshöhe des Fensters (in cm):
Fensterhöhe (in cm):
113
Raumhöhe in cm: 250
Heizung: Fußbodenheizung
Sanitäranschlüsse: fix

Einbaugerätekriterien
Ausführung Kühlgerät:
Stand-Alone bis 75cm Breite
Einbaukühlgerät Größe: N. a.
Ausführung Tiefkühl (TK)-Gerät: N. a.
Dunstabzugshaube: Umluft
Hochgebauter Backofen : N. a.
Geplante Heißgeräte: Standmikrowelle, Backofen
Hochgebauter Geschirrspüler : nein
Art des Kochfeldes: Induktion
Kochfeldbreite (ca. in cm): 60

Sitzmöglichkeiten

Sitzmöglichkeit in der Küche / im Küchenbereich: Keine
Sitzmöglichkeit: Für wieviel Personen?: nein
Sitzmöglichkeit: Tisch - wenn gesonderter Tisch oder offene Küche: Keiner
Gewünschte oder vorhandene Tischgröße:

Wofür soll der Sitzplatz in der Küche genutzt werden und wie häufig:

Stauraumplanung
Was steht auf der Arbeitsplatte oder soll dort stehen?: Kaffeemaschine, Wasserkocher, Thermomix, Messerblock, Obstschale
Welche weiteren Küchenmaschinen müssen in der Küche untergebracht werden: N. a.
Was soll in der Küche außer den Standards untergebracht werden: Geschirr komplett (nichts in Ess-/Wohnzimmer)
Welchen Stauraum gibt es sonst noch: Speisekammer, Hauswirtschaftsraum

Kochgewohnheiten

Was/wie wird gekocht? (Alltagsküche, Menüs, Snacks usw): frische Alltagsküche und aufwendigere Menüs
Wie häufig wird gekocht: (fast) täglich 1x warm
Wird alleine gekocht? Oder auch gemeinsam? Mit und für Gäste?: eher alleine

Spülen und Müll

Spülenform: 1 Becken mit Abtropffläche
Welche Mülltrennung soll in der Küche vorgehalten werden: Altpapier, Bio/Restmüll ungetrennt

Sonstiges

Steht schon ein Küchenhersteller fest oder wird bevorzugt: IKEA
Steht schon ein Gerätehersteller fest oder wird bevorzugt: Bosch/Siemens
Küchenstil: Klassisch
Was stört an der bisherigen Küche und was soll die neue Küche unbedingt können? Warum?: wäre toll: Backofen oben und eine Spüle aus Silgranit
Preisvorstellung (Budget): 6000

Angehängte Dateien
 

Anhänge

  • IMG_1038.jpg
    IMG_1038.jpg
    128,5 KB · Aufrufe: 202
  • IMG_1037.jpg
    IMG_1037.jpg
    120,5 KB · Aufrufe: 217
  • IMG_1568.jpg
    IMG_1568.jpg
    177,6 KB · Aufrufe: 216
  • Folie2.JPG
    Folie2.JPG
    57,8 KB · Aufrufe: 219
  • Folie1.JPG
    Folie1.JPG
    51,8 KB · Aufrufe: 200
  • Folie3.JPG
    Folie3.JPG
    38,5 KB · Aufrufe: 185
  • Folie4.JPG
    Folie4.JPG
    52,3 KB · Aufrufe: 169
  • Folie5.JPG
    Folie5.JPG
    37,5 KB · Aufrufe: 183
  • Folie7.JPG
    Folie7.JPG
    136,4 KB · Aufrufe: 178
:welcome:

Bleibt bei der reinen L-Küche, das gibt eine praktischere Küche mit gleichviel Stauraum. Wenn Du da eine U-Küche planst wird es um GSP , Spüle und Müll rum extrem eng und Du blockierst Dich mit offenen Türen total.

Mhh, naja, Du verlierst auch die Hängeschränke auf der 140cm Wand. Stell sicher, dass das dünne Wändchen die Hänger überhaupt trägt... Evt könnte man ausprobieren auf diese Wand den Kühlschrank zu stellen. Es gefällt mir so garnicht, den BO-Schrank direkt neben dem Kühlschrank ....
 
Moin. Kannst du die Maße des Wassers (ab Wand sowie Anschlussbreite) nachreichen? Ebenso die Maße der Dunstabzugsteckdose.
 
@Nice-nofret
Vielen Dank für deine Hinweise. Kann mir jetzt aber nicht genau vorstellen wie ich ähnlich Stauraum bei der L-Form haben soll, wie bei der U-Form? Da fallen ja direkt 3 Schränke weg. Vielleicht kannst du mal beschreiben oder zeigen wie du es machen würdest.
Die Variante mit dem Kühlschrank links an der 140cm Wand hatte ich auch schon überlegt - müsste ich erneut drauf rum denken.

@Nörgli
Ich bekomme erst am 7.8 die Schlüssel - Wasser müsste aber rein rechnerisch - ausgehend von 60er Fliesen- bei 180cm von links (mit Blick auf das Fenster) sein. Ich weiß - das ist entscheidend für die dortigen Schränke. Werde diese Woche das Aufmaß beantragen, dann kann ich hoffentlich schnell die genauen Werte nachreichen.
 
Bitte dann auch die Maße der Tür zum Installationsraum nachtragen.
 

Ähnliche Beiträge

Neff Hausgeräte Ballerina Küchen Blum Bewegungstechnologie Weibel - Intelligente Küchenlüftung

Neff Spezial

Blum Zonenplaner

Weibel Abluft-Tuning

Weibel Abluft-Tuning
Zurück
Oben