Küche meiner Schwiegereltern

SM01

Mitglied
Beiträge
26
Hallo liebes Team,

nachdem Ihr mir so unsagbar doll geholfen hattet bei meiner Küchenplanung letztes Jahr, bräuchte ich jetzt auch nochmal eure Hilfe :-) Meine Schwiegereltern planen auch eine neue Küche und nachdem ich deren "Vorabplanung" gesehen hab, brauchen wir wirklich definitiv Hilfe :-)

Die Küche sollte in allem rellativ günstig werden... also keine ganz teuren Bauteile bitte :-)

So, dann bin ich mal gespannt, ob ihr meinen Schwiegereltern auch eine so tolle Küche zaubern könnt :-)


Checkliste zur Küchenplanung von SM01

Anzahl Personen im Haushalt : 4
Davon Kinder? : keine
Körpergrössen aller Hauptbenutzer (wegen Arbeitshöhe ) in cm : 165
Art des Gebäudes? : Bestandsbau, (kleinere) Umbauten möglich
Brüstungshöhe des Fensters (in cm) : 110 (87)
Fensterhöhe (in cm) :
Raumhöhe in cm: : 220 (253)
Heizung : Heizkörper wie im Grundriss (komplett variabel)
Sanitäranschlüsse : variabel an aktueller Wand
Ausführung Kühlgerät? : Stand-Alone bis 60 cm Breite
Kühlgerät Größe : noch unbekannt (min. 110 also ein 122er )
Ausführung Tiefkühl (TK)-Gerät : Im Kühlschrank ab 3 Schubladen unten (kein TK)
Dunstabzugshaube? : Abluft
Hochgebauter Backofen ? : Ja
Hochgebauter Geschirrspüler ? : nein (JA)
Kochfeldart? : Ceran (herkömmlich) (Induktion )
Kochfeldbreite ca. (in cm)? : 60 (90)
Spülenform: : 2 Becken mit Abtropffläche (1 Becken m. Abtropfe)
Weitere geplante Heißgeräte :
Küchenstil? : modern
Sitzmöglichkeit in der Küche / im Küchenbereich als : Überstehende Arbeitsplatte
Sitzmöglichkeit: Für wieviel Personen? : für 4 Personen
Sitzmöglichkeit: Tisch - wenn gesonderter Tisch oder offene Küche : Keine
Gewünschte o. vorhandene Tischgröße : Für 4 Personen, Thekenform
Wofür soll der Sitzplatz in der Küche genutzt werden? Wie häufig? : Schnelles Essen, Großer Essplatz im Wohnzimmer vorhanden
Welche Arbeitshöhe ist angedacht (in cm)? :
Was steht auf der Arbeitsplatte oder soll dort stehen? : Kaffeemaschine, Wasserkocher, Messerblock, Toaster, Brotbehälter
Welche weiteren Küchenmaschinen müssen in der Küche untergebracht werden? :
Was soll in der Küche außer den Standards untergebracht werden? : Sonstiges (evtl. im Beitragstext benennen)
Welchen Stauraum gibt es sonst noch? : Geschirr/Gläserschrank im Wohn-/Esszimmer, Speisekammer, Hauswirtschaftsraum, Keller
Was/wie wird gekocht? (Alltagsküche, Menüs, Snacks usw) : Alltagsküche, gut bürgerlich
Wie häufig wird gekocht? : (fast) täglich 2x warm
Wird alleine gekocht? Oder auch gemeinsam? Mit und für Gäste? : Meistens alleine
Was stört an der bisherigen Küche und was soll die neue Küche unbedingt können? Warum? : Mehr Stauraum, moderneres Aussehen, Tisch soll nicht mehr Mitten im Raum stehen
Steht schon ein Küchenhersteller fest oder wird bevorzugt? :
Steht schon ein Gerätehersteller fest oder wird bevorzugt? :
Preisvorstellung (Budget) : bis 15.000,-
 

Anhänge

  • Heidrun küche.jpg
    Heidrun küche.jpg
    29,3 KB · Aufrufe: 226
Zuletzt bearbeitet von einem Moderator:
AW: Küche meiner Schwiegereltern

So, ich hab grad bemerkt das man mit der Zeichnung meiner Schwiegermutter nicht ganz viel anfangen kann. Ich werd heute abend nochmal vorbeifahren und mich mit dem Alno -Planer versuchen anzufreunden :-)

Jemand schon erste Ideen? Ich überleg die ganze Zeit wo man denn den Tisch bzw. die Theke unterbringen könnte....
 
AW: Küche meiner Schwiegereltern

Die Küche sollte in allem rellativ günstig werden... also keine ganz teuren Bauteile bitte :-)

Du gibt 15.000 Euro als Budget an.

Wenn das für Dich günstig ist, dann wird es kein Problem sein, hier eine tolle Küche zu zaubern ;-)
 
AW: Küche meiner Schwiegereltern

:-) für die Größe der Küche finden wir das ganz angemessen. Ich meinte damit jetzt, dass man vielleicht auf Sondergrößen und Spielerein verzichten sollte... Obwohl meine Schwigamu unbedingt einen Apothekerschrank haben möchte, würde ich sie doch gerne davon überzeugen, dass es nur rausgeschmissenes Geld ist :-)
 
AW: Küche meiner Schwiegereltern

Ganz im Ernst. 15.000 Euro sind eine klasse Summe, damit lässt sich etwas anfangen.

Statt Apo sollte sie einen Schrank mit einzelnen Innenauszügen wählen. Vorteile:

- Stauraumgewinn

- Geringeres Gewicht: Man muss nicht wegen jedem Päckchen Vanillezucker 10 Kg bewegen, sondern zieht nur den einzelnen Auszug heraus.
 
AW: Küche meiner Schwiegereltern

Mein bestes Argument GEGEN einen Apotheker ist immer das Beispiel:
Stell dir vor dir fällt da drin eine Tüte Kokosraspel um un du mußt das alles einzeln unten aus der Mechanik pulen. Ich hab nach fast 3 Jahren immer noch mal welche gefunden. Mehl oder Zucker stell ich mir auch schön vor. Davon bin ich aber Gott sei Dank verschont worden.

LG
Sabine
 
AW: Küche meiner Schwiegereltern

Koskosraspel mag mag vielleicht auch noch der Staubsauger killen, bei mir war es ein tropfendes Honigglas, nicht vernünftig zugeschraubt und dann umgestoßen - war natürlich NIEMAND gewesen. 3-Ebenen und Mechanik - ein Traum.

LG Barbara
 
AW: Küche meiner Schwiegereltern

Ach Bärbel du hast auch Kinder die Niemand, Keiner und Weiß-ich-nicht heißen? ;-)

Ne, selbst mit der feinen Düse für Tastaturen und so hab ich nicht alles raus bekommen. Aber Honig???? Die hätten bei mir nur noch Wasser und Brot bekommen.

LG
Sabine
 
AW: Küche meiner Schwiegereltern

So, war ebend nochmal da und hab mich jetzt mit dem Alno Planer versucht. Ich hoffe ihr könnt was damit anfangen :-) Leider soll der Apothekerschrank weiterhin dabei sein :(

und ich weiß nicht ob ich meinen Eingangspost noch ändern kann, aber wir haben grad folgendes gemessen und beschlossen:

brüstungshöhe : 87
Raumhöhe: 253
Heizung: komplett variabel
Kühlgerät im Hochschrank und groß, min. 110
Kein Gefrierschrank
Backofen und Geschirrspüler hoch
Kochfeld induktion und 90cm
Spüle: 1 becken und 1 abtropf

Gaaaanz wichtig, den blöden Tisch/Theke/whatever so planen, dass er nicht mehr stört.... eventuell eine Kochinsel mit integrierter Theke????
 

Anhänge

  • PLAN1.KPL
    4,1 KB · Aufrufe: 184
AW: Küche meiner Schwiegereltern

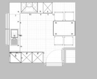
Jetzt den Grundriss für alle die mitschubsen wollen.
 

Anhänge

  • SM01_Grundriss.JPG
    SM01_Grundriss.JPG
    31,1 KB · Aufrufe: 186
  • SM01.POS
    2,5 KB · Aufrufe: 176
  • SM01.KPL
    3,9 KB · Aufrufe: 212
AW: Küche meiner Schwiegereltern

Toll, dass du auch mitschiebst.
Allerdings musst du immer die beiden Dateien KPL. und POS. hochladen und außerdem wären Planungsansichten und der Grundriss (unter Planen "strg+neu+s") sinnvoll.
Denn nicht jeder möchte sich die Dateien herunterladen um einen kurzen Blick darauf zu werfen und die Profis unter uns haben keinen Alnoplaner.

Ich lese gerade deine Ergänzung. Würdest du diese bitte noch im Eingangspost ergänzen.

Ich werde die Angaben im Alno ändern.

Sorry, dass ich deinen Beitrag erst jetzt gelesen haben. Aber da arbeite ich am Grundriss stelle ihn ein und erkenne erst dann ein neuer Beitrag da ist.
 
Zuletzt bearbeitet:
AW: Küche meiner Schwiegereltern

Ich habe einmal geschoben, bin aber selbst nicht mit der Planung zufrieden. Solange eine Essplatz für 4 Personen in der Küche untergebracht werden muss ist es mit viel Stauraum vorbei.
Da du von deiner Schwiegermutter sprichst gehe ich einmal davon aus, dass es sich um erwachsene bzw. jugendliche Bewohner handelt. Wenn es ein schnelles Essen in der Küche sein soll, werden doch nicht alle vier gleichzeitig dort sitzen. Auch ist eine hochgesetzte Spülmaschine so nicht möglich.

Den Heizkörper habe ich einmal hinter die Wand der Tür als schmalen Wandheizkörper geplant. Bei dieser Planung könnte er aber auch unten in die Nische.

Du schreibst Brüstungshöhe des Fensters 87 cm - welche maximale Höhe wäre denn möglich, damit das Fenster noch zu öffnen wäre - und die gewünschte Arbeitshöhe ist nicht ausgefüllt.

Also Hausaufgaben:

ARBEITSHÖHE ermitteln
3 Methoden haben sich da etabliert:
- Ellbogen abwinkeln und von dort 15 cm runtermessen
- Höhe Beckenknochen messen
- z. B. Bügelbrett nehmen und in verschiedenen Höhen Probeschnippeln und messen, wenn es einem am bequemsten erscheint. Sich Vorbeugen, dann ist's zu niedrig, die Schultern hochziehen, dann ist's zu hoch.
Idealerweise ergeben alle 3 Methoden ca. denselben Wert

Ich habe wegen der Brüstungshöhe im 5-Rater, Arbeitshöhe 86, geplant.

beginnend planunten rechts (wo befinden sich die Lichtschalter?)
Blende
Kühli
BO
tote Ecke mit Ullaschrank unten mit Lifttür für Geräte

planlinks ab toter Ecke beginnend:
SpüMa
60er Spüle
80er Auszug
tote Ecke

planoben ab toter Ecke beginnend:
90er Auszug mit Kochfeld und DA
30er Auszug
50er Apotheker - ohne Kommentar
Blende

planrechts:
Sitzplatz für 4 Personen


 

Anhänge

  • SM01_Mela.KPL
    3,9 KB · Aufrufe: 177
  • SM01_Mela.POS
    5,8 KB · Aufrufe: 173
  • SM01_Mela_Grundriss.JPG
    SM01_Mela_Grundriss.JPG
    38,6 KB · Aufrufe: 195
  • SM01_Mela_HS.jpg
    SM01_Mela_HS.jpg
    51,1 KB · Aufrufe: 192
  • SM01_Mela_Kochfeld.jpg
    SM01_Mela_Kochfeld.jpg
    48,9 KB · Aufrufe: 206
  • SM01_Mela_Spüle.jpg
    SM01_Mela_Spüle.jpg
    58,4 KB · Aufrufe: 178
  • SM01_Mela_Draufsicht.jpg
    SM01_Mela_Draufsicht.jpg
    62,6 KB · Aufrufe: 187
AW: Küche meiner Schwiegereltern

Ja, diese 87cm sind fix, da sonst das Fenster nicht mehr aufgeht. Deine Planung sieht echt schon toll aus, was hälst du denn davon, wenn man den Tisch als Verlängerung der Arbeitsplatte nach vorne setzt? Hab das jetzt mal so hingekritzelt... und nach recht die ganzen Hochschränke?
 

Anhänge

  • Heidrun küche.jpg
    Heidrun küche.jpg
    22,7 KB · Aufrufe: 186
AW: Küche meiner Schwiegereltern

Das habe ich gerade so ähnlich ausprobiert...:cool: Hinter den Stühlen ist leider zu wenig Platz. :-\

P.S. ...die Planung ist so natürlich nicht ausgefeilt, weil ich sie verworfen habe. ;-)
 

Anhänge

  • schwiegereltern.JPG
    schwiegereltern.JPG
    32,1 KB · Aufrufe: 210
  • schwiegereltern1.jpg
    schwiegereltern1.jpg
    50,6 KB · Aufrufe: 181
  • SM01-conny.KPL
    3,9 KB · Aufrufe: 180
  • SM01-conny.POS
    8,2 KB · Aufrufe: 185
AW: Küche meiner Schwiegereltern

Conny,
sieht gut aus, es sind aber nur 3 Esspätze.
 
AW: Küche meiner Schwiegereltern

Ich weiß, ist hinter den Stühlen sowieso nicht genug Platz...;-)
 
AW: Küche meiner Schwiegereltern

Hey, so ist toll :-)

hilft es zu sagen, dass alle 4 gaaaaaanz schlank sind? Meine Schwägerin ist nur 1,50 groß und wiegt wohl grad mal 45 kilo (im ausgewachsenen Zustand :-) ) Könnte man einen 4 Stuhl nicht ans Kopfende legen? Und vor dem Fenster auch Arbeitsplatte , also beide Blöcke verbinden... der Rest ist echt schon genial!
 
AW: Küche meiner Schwiegereltern

Obwohl mit ein bißchen (gefällt mir so geschrieben besser als mit neuer Rechtschreibung :tounge:) rutschen der Stühle würde es schon gehen.
 
Neff Hausgeräte Ballerina Küchen Blum Bewegungstechnologie Weibel - Intelligente Küchenlüftung

Neff Spezial

Blum Zonenplaner

Weibel Abluft-Tuning

Weibel Abluft-Tuning
Zurück
Oben