Loki1234
Mitglied
- Beiträge
- 138
Titel des Themas: Last-Minute-Tuning an der Küche meiner Schwiegermutter
Hallo,
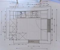
die Küche ist bereits gekauft und angezahlt, aber noch nicht bestellt.
Kleinere Änderungen sind daher noch möglich. Eine komplette Umplanung allerdings nicht mehr, meine Schwiegermutter hat dafür keinen Nerv mehr.
Was sie jetzt noch etwas stört ist das Regal in der Ecke oben-links und wünschte sich ne andere Lösung.
Ich habe bereits eine Spüle ohne Abltropfblech empfohlen und dafür mobile Lösung beworben.
Aufgrund der linken mindertiefen Zeile und dem Wunsch eine Ritter-Schneidemaschine zu haben, ragt die Schublade (Standardtiefe) über dem Heizkörper rein. Ansonsten wäre ein Auszietisch und kein Loch am schönsten.
Natürlich hakt die Küche noch ein paar Checkboxen ab:
Kaum Fläche zwischen Spüle und Kochfeld und kein MUPL .
Checkliste zur Küchenplanung
Personenkriterien und Ergonomie
Anzahl Personen im Haushalt: 2
Davon Kinder: keine
Körpergrößen aller Hauptbenutzer in cm (wegen Arbeitshöhe ): 165
Welche Arbeitshöhe ist angedacht (in cm)?: 90
Gebäudekriterien
Art des Gebäudes: Bestandsbau > Umbauten ausgeschlossen, Eigentum
Brüstungshöhe des Fensters (in cm): 92
Fensterhöhe (in cm): 100
Raumhöhe in cm: 243
Heizung: Heizkörper wie im Grundriss
Sanitäranschlüsse: fix
Einbaugerätekriterien
Ausführung Kühlgerät: Integriert im Hochschrank (60cm)
Einbaukühlgerät Größe: 140cm
Ausführung Tiefkühl (TK)-Gerät: Nicht erforderlich bzw. steht woanders
Dunstabzugshaube: Abluft
Hochgebauter Backofen : wenn möglich
Geplante Heißgeräte: Standmikrowelle, Backofen
Hochgebauter Geschirrspüler : ja
Art des Kochfeldes: Induktion
Kochfeldbreite (ca. in cm): 60
Sitzmöglichkeiten
Sitzmöglichkeit in der Küche / im Küchenbereich: Überstehende Arbeitsplatte
Sitzmöglichkeit: Für wieviel Personen?: Für 1 Person
Sitzmöglichkeit: Tisch - wenn gesonderter Tisch oder offene Küche: N. a.
Gewünschte oder vorhandene Tischgröße:
Wofür soll der Sitzplatz in der Küche genutzt werden und wie häufig: Brote schmieren, abends
Stauraumplanung
Was steht auf der Arbeitsplatte oder soll dort stehen?: Wasserkocher, Messerblock
Welche weiteren Küchenmaschinen müssen in der Küche untergebracht werden: Allesschneider (z.B. in Schublade), Handrührgerät, Pürierstab
Was soll in der Küche außer den Standards untergebracht werden: N. a.
Welchen Stauraum gibt es sonst noch: Geschirr/Gläserschrank im Wohn-/Esszimmer, Speisekammer, Keller
Kochgewohnheiten
Was/wie wird gekocht? (Alltagsküche, Menüs, Snacks usw): Alltagsküche für 2 an den Wochenenden scho mal für 6
Wie häufig wird gekocht: (fast) täglich 1x warm
Wird alleine gekocht? Oder auch gemeinsam? Mit und für Gäste?: Alleine, gelegentlich für Gäste
Spülen und Müll
Spülenform: 1 Becken mit Abtropffläche
Welche Mülltrennung soll in der Küche vorgehalten werden: Biomüll, Restmüll
Sonstiges
Steht schon ein Küchenhersteller fest oder wird bevorzugt: UNICA (Häcker ?)
Steht schon ein Gerätehersteller fest oder wird bevorzugt: nein
Küchenstil: Klassisch
Was stört an der bisherigen Küche und was soll die neue Küche unbedingt können? Warum?:
Preisvorstellung (Budget): 15000
Angehängte Dateien
Hallo,
die Küche ist bereits gekauft und angezahlt, aber noch nicht bestellt.
Kleinere Änderungen sind daher noch möglich. Eine komplette Umplanung allerdings nicht mehr, meine Schwiegermutter hat dafür keinen Nerv mehr.
Was sie jetzt noch etwas stört ist das Regal in der Ecke oben-links und wünschte sich ne andere Lösung.
Ich habe bereits eine Spüle ohne Abltropfblech empfohlen und dafür mobile Lösung beworben.
Aufgrund der linken mindertiefen Zeile und dem Wunsch eine Ritter-Schneidemaschine zu haben, ragt die Schublade (Standardtiefe) über dem Heizkörper rein. Ansonsten wäre ein Auszietisch und kein Loch am schönsten.
Natürlich hakt die Küche noch ein paar Checkboxen ab:
Kaum Fläche zwischen Spüle und Kochfeld und kein MUPL .
Checkliste zur Küchenplanung
Personenkriterien und Ergonomie
Anzahl Personen im Haushalt: 2
Davon Kinder: keine
Körpergrößen aller Hauptbenutzer in cm (wegen Arbeitshöhe ): 165
Welche Arbeitshöhe ist angedacht (in cm)?: 90
Gebäudekriterien
Art des Gebäudes: Bestandsbau > Umbauten ausgeschlossen, Eigentum
Brüstungshöhe des Fensters (in cm): 92
Fensterhöhe (in cm): 100
Raumhöhe in cm: 243
Heizung: Heizkörper wie im Grundriss
Sanitäranschlüsse: fix
Einbaugerätekriterien
Ausführung Kühlgerät: Integriert im Hochschrank (60cm)
Einbaukühlgerät Größe: 140cm
Ausführung Tiefkühl (TK)-Gerät: Nicht erforderlich bzw. steht woanders
Dunstabzugshaube: Abluft
Hochgebauter Backofen : wenn möglich
Geplante Heißgeräte: Standmikrowelle, Backofen
Hochgebauter Geschirrspüler : ja
Art des Kochfeldes: Induktion
Kochfeldbreite (ca. in cm): 60
Sitzmöglichkeiten
Sitzmöglichkeit in der Küche / im Küchenbereich: Überstehende Arbeitsplatte
Sitzmöglichkeit: Für wieviel Personen?: Für 1 Person
Sitzmöglichkeit: Tisch - wenn gesonderter Tisch oder offene Küche: N. a.
Gewünschte oder vorhandene Tischgröße:
Wofür soll der Sitzplatz in der Küche genutzt werden und wie häufig: Brote schmieren, abends
Stauraumplanung
Was steht auf der Arbeitsplatte oder soll dort stehen?: Wasserkocher, Messerblock
Welche weiteren Küchenmaschinen müssen in der Küche untergebracht werden: Allesschneider (z.B. in Schublade), Handrührgerät, Pürierstab
Was soll in der Küche außer den Standards untergebracht werden: N. a.
Welchen Stauraum gibt es sonst noch: Geschirr/Gläserschrank im Wohn-/Esszimmer, Speisekammer, Keller
Kochgewohnheiten
Was/wie wird gekocht? (Alltagsküche, Menüs, Snacks usw): Alltagsküche für 2 an den Wochenenden scho mal für 6
Wie häufig wird gekocht: (fast) täglich 1x warm
Wird alleine gekocht? Oder auch gemeinsam? Mit und für Gäste?: Alleine, gelegentlich für Gäste
Spülen und Müll
Spülenform: 1 Becken mit Abtropffläche
Welche Mülltrennung soll in der Küche vorgehalten werden: Biomüll, Restmüll
Sonstiges
Steht schon ein Küchenhersteller fest oder wird bevorzugt: UNICA (Häcker ?)
Steht schon ein Gerätehersteller fest oder wird bevorzugt: nein
Küchenstil: Klassisch
Was stört an der bisherigen Küche und was soll die neue Küche unbedingt können? Warum?:
Preisvorstellung (Budget): 15000
Angehängte Dateien
Anhänge
-
IMG_20181021_171030-01.jpeg176,4 KB · Aufrufe: 342 -
IMG_20181021_171039-01.jpeg158 KB · Aufrufe: 323 -
IMG_20181021_171051-01.jpeg158,5 KB · Aufrufe: 335 -
IMG_20181021_171107-01.jpeg138,6 KB · Aufrufe: 292 -
IMG_20181021_171614-01.jpeg138,6 KB · Aufrufe: 294 -
IMG_20181021_175424-01.jpeg143,2 KB · Aufrufe: 306
